ᐅ Grundriss Neubau Einfamilienhaus optimieren
Erstellt am: 22.08.20 20:42
H
hausvoraus22.08.20 20:42Hallo zusammen,
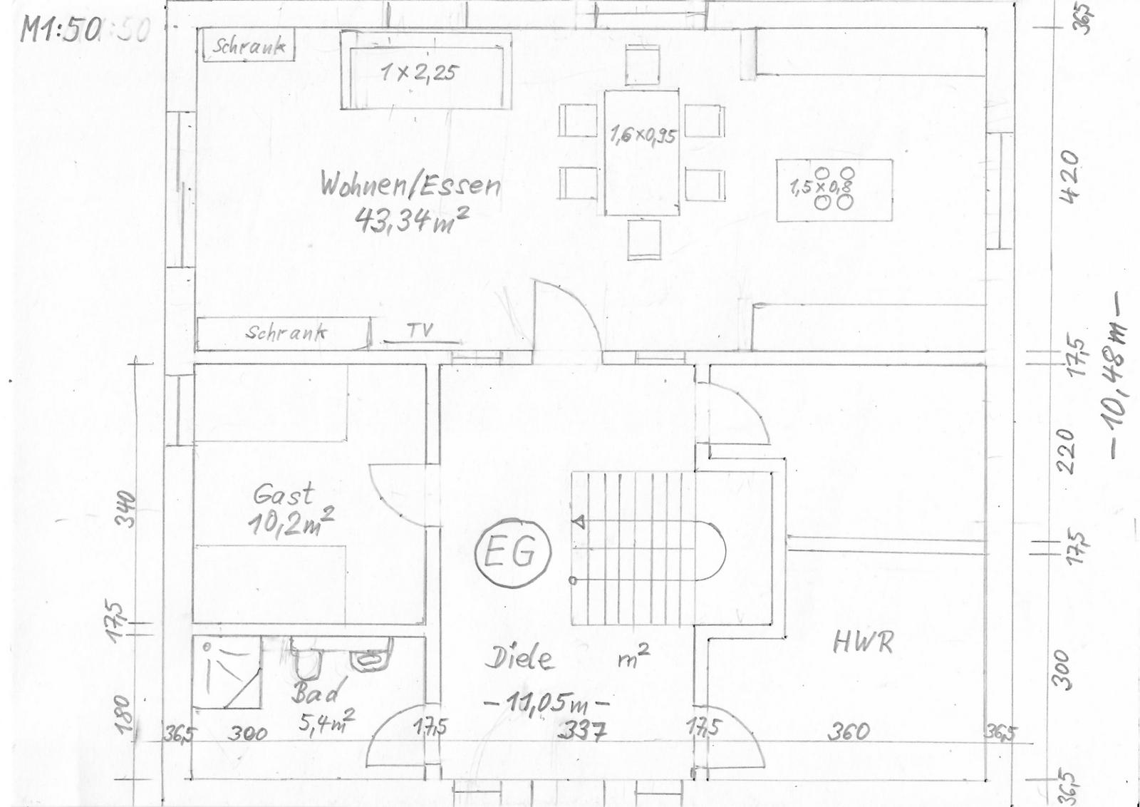
ich hätte gerne Feedback zu folgendem Grundriss. Ich bin komplett neu im Forum, habe aber Feedback zu diversen anderen Entwürfen hier gelesen.
Bevor "komplett neuplanen" als Feedback kommt, stelle ich lieber einen noch nicht ganz fertigen Entwurf zur Diskussion.
Noch nicht fertig sind: Fenster (Position, Größe, ...), Möbelanordnung im Wohnzimmer, Abgrenzung Hauswirtschaftsraum und daneben Vorratskammer, Akustikoptimierung Arbeitszimmer
Bebauungsplan/Einschränkungen: Einfahrt links, darf nicht auf gleicher Seite wie das Haus sein
Größe des Grundstücks: 650 qm
Hang: nein
Grundflächenzahl: 0,35
Geschossflächenzahl: nicht bekannt
Baufenster, Baulinie und -grenze: 3m
Randbebauung:
Anzahl Stellplatz: 1
Geschossigkeit: 2-3
Dachform: kein Walmdach erlaubt
Stilrichtung: egal
Ausrichtung: vorgegeben wg. Straße
Maximale Höhen/Begrenzungen: 11m bei 3 Etagen
weitere Vorgaben: offene Bauweise
Anforderungen der Bauherren
Stilrichtung, Dachform, Gebäudetyp: Bauhaus, Flachdach
Keller, Geschosse: kein Keller, 2 Geschosse
Anzahl der Personen, Alter: 5 Personen, davon 3 Kinder 2-8 J.
Raumbedarf im EG, OG: nicht bekannt, wird eher von den benötigten Räumen abgeleitet
Büro: Arbeitszimmer als separater Raum nötig
Schlafgäste pro Jahr: mind. 2, mehrmals mehrere Wochen am Stück pro Jahr
offene oder geschlossene Architektur: geschlossen wegen der Akustik
konservativ oder moderne Bauweise: modern, schnörkellos, effizient
offene Küche, Kochinsel: Kochinsel gewünscht, offene Küche gewünscht
Anzahl Essplätze: im Normalfall 5, bei Besuch mehr
Kamin: nein
Musik/Stereowand: nein, aber gute Idee
Balkon, Dachterrasse: nein
Garage, Carport: Carport direkt daneben
Nutzgarten, Treibhaus: kleiner Garten, begehbar von der Terrasse, die begehbar vom Wohnzimmer sein soll
weitere Wünsche/Besonderheiten/Tagesablauf, gern auch Begründungen, warum dieses oder das nicht sein soll:
- EG möglichst altersgerecht (alte Gäste, daher auch Gästezimmer und Dusche im EG)
- Morgens soll die Sonne ins Schlafzimmer scheinen, um davon geweckt werden zu können.
- Terrasse nicht Süd-West, da es zu heiß wird
- Das Arbeitszimmer soll so liegen, dass bei sehr frühem Aufstehen oder Nachtarbeit möglichst wenig andere Personen gestört werden.
- Das Arbeitszimmer sollte irgendwie akustisch gut abgeschirmt sein vom Rest wg. Telefonaten (Kinder sollen eher nicht zu hören sein, außerhalb des Raumes soll der "Arbeiter" eher nicht zu hören sein).
- Kinderzimmer können relativ klein sein, da hochbetten geplant sind mit Platz darunter.
- Vor einem TV im Wohnzimmer muss genug Platz für die Kinder zum Mitmachen sein (tanzen etc.).
- Es wird Wert auf Ruhe gelegt (geringe Lautstärke), da es in der aktuellen Wohnsituation zu laut und stressig ist (Straße laut, Türen undicht, die Kinder überall am lärmen).
- möglichst effizient und funktional: kurze Wege, einfach zu putzen, Putzroboter soll möglichst überall hinkommen können
- Noch unklar ist der Bedarf für Smart Home und damit der Platzbedarf für entsprechende Gerätschaften.
- Es soll lichtdurchflutet sein, allerdings abends auch schnell abgedunkelt werden können (Jalousien runter oder so).
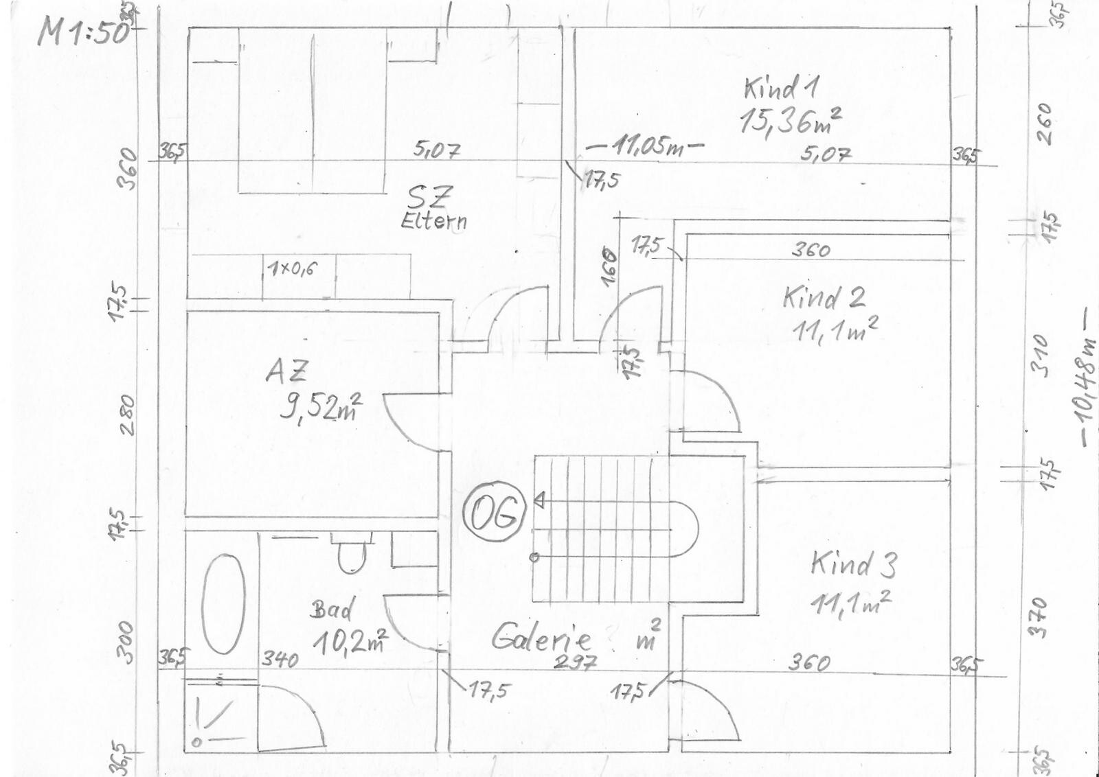
- Irgendwo muss ein E-Piano hin (vermutl. im OG, Galerie über der Haustür).
Hausentwurf
Von wem stammt die Planung: basiert auf einem Standard-Entwurf mit vielen DIY-Modifikationen
Was gefällt besonders: Er scheint schon effizient zu sein.
Was gefällt nicht: Eventuell ist zu wenig Stauraum (kein Keller, dafür muss wohl ein Schuppen irgendwo hin)
Preisschätzung lt Architekt/Planer: noch nicht bekannt
Persönliches Preislimit fürs Haus, inkl Ausstattung: ca. 450.000,-
favorisierte Heiztechnik: Fernwärme, da sie dort Standard ist
Wenn Ihr verzichten müsst, auf welche Details/Ausbauten
-könnt Ihr verzichten:
- Kochinsel
- Küche muss nicht offen sein
- Wenn es wirklich sein muss auf eines der Kinderzimmer, dafür müsste ein anderes größer sein
-könnt Ihr nicht verzichten:
- Trennung von Gäste- und Arbeitszimmer, es müssen wirklich 2 Zimmer sein
Warum ist der Entwurf so geworden, wie er jetzt ist?
Wir haben viele Standardentwürfe angesehen und dann einen als Basis genommen für diverse Modifikationen in vielen Iterationen.
Was macht ihn in Euren Augen besonders gut oder schlecht? /
Was ist die wichtigste/grundlegende Frage zum Grundriss in 130 Zeichen zusammengefasst?
Was kann man noch besser gestalten und warum? Ungefiltertes Feedback ist gerne gesehen.
Dankeschön


ich hätte gerne Feedback zu folgendem Grundriss. Ich bin komplett neu im Forum, habe aber Feedback zu diversen anderen Entwürfen hier gelesen.
Bevor "komplett neuplanen" als Feedback kommt, stelle ich lieber einen noch nicht ganz fertigen Entwurf zur Diskussion.
Noch nicht fertig sind: Fenster (Position, Größe, ...), Möbelanordnung im Wohnzimmer, Abgrenzung Hauswirtschaftsraum und daneben Vorratskammer, Akustikoptimierung Arbeitszimmer
Bebauungsplan/Einschränkungen: Einfahrt links, darf nicht auf gleicher Seite wie das Haus sein
Größe des Grundstücks: 650 qm
Hang: nein
Grundflächenzahl: 0,35
Geschossflächenzahl: nicht bekannt
Baufenster, Baulinie und -grenze: 3m
Randbebauung:
Anzahl Stellplatz: 1
Geschossigkeit: 2-3
Dachform: kein Walmdach erlaubt
Stilrichtung: egal
Ausrichtung: vorgegeben wg. Straße
Maximale Höhen/Begrenzungen: 11m bei 3 Etagen
weitere Vorgaben: offene Bauweise
Anforderungen der Bauherren
Stilrichtung, Dachform, Gebäudetyp: Bauhaus, Flachdach
Keller, Geschosse: kein Keller, 2 Geschosse
Anzahl der Personen, Alter: 5 Personen, davon 3 Kinder 2-8 J.
Raumbedarf im EG, OG: nicht bekannt, wird eher von den benötigten Räumen abgeleitet
Büro: Arbeitszimmer als separater Raum nötig
Schlafgäste pro Jahr: mind. 2, mehrmals mehrere Wochen am Stück pro Jahr
offene oder geschlossene Architektur: geschlossen wegen der Akustik
konservativ oder moderne Bauweise: modern, schnörkellos, effizient
offene Küche, Kochinsel: Kochinsel gewünscht, offene Küche gewünscht
Anzahl Essplätze: im Normalfall 5, bei Besuch mehr
Kamin: nein
Musik/Stereowand: nein, aber gute Idee
Balkon, Dachterrasse: nein
Garage, Carport: Carport direkt daneben
Nutzgarten, Treibhaus: kleiner Garten, begehbar von der Terrasse, die begehbar vom Wohnzimmer sein soll
weitere Wünsche/Besonderheiten/Tagesablauf, gern auch Begründungen, warum dieses oder das nicht sein soll:
- EG möglichst altersgerecht (alte Gäste, daher auch Gästezimmer und Dusche im EG)
- Morgens soll die Sonne ins Schlafzimmer scheinen, um davon geweckt werden zu können.
- Terrasse nicht Süd-West, da es zu heiß wird
- Das Arbeitszimmer soll so liegen, dass bei sehr frühem Aufstehen oder Nachtarbeit möglichst wenig andere Personen gestört werden.
- Das Arbeitszimmer sollte irgendwie akustisch gut abgeschirmt sein vom Rest wg. Telefonaten (Kinder sollen eher nicht zu hören sein, außerhalb des Raumes soll der "Arbeiter" eher nicht zu hören sein).
- Kinderzimmer können relativ klein sein, da hochbetten geplant sind mit Platz darunter.
- Vor einem TV im Wohnzimmer muss genug Platz für die Kinder zum Mitmachen sein (tanzen etc.).
- Es wird Wert auf Ruhe gelegt (geringe Lautstärke), da es in der aktuellen Wohnsituation zu laut und stressig ist (Straße laut, Türen undicht, die Kinder überall am lärmen).
- möglichst effizient und funktional: kurze Wege, einfach zu putzen, Putzroboter soll möglichst überall hinkommen können
- Noch unklar ist der Bedarf für Smart Home und damit der Platzbedarf für entsprechende Gerätschaften.
- Es soll lichtdurchflutet sein, allerdings abends auch schnell abgedunkelt werden können (Jalousien runter oder so).
- Irgendwo muss ein E-Piano hin (vermutl. im OG, Galerie über der Haustür).
Hausentwurf
Von wem stammt die Planung: basiert auf einem Standard-Entwurf mit vielen DIY-Modifikationen
Was gefällt besonders: Er scheint schon effizient zu sein.
Was gefällt nicht: Eventuell ist zu wenig Stauraum (kein Keller, dafür muss wohl ein Schuppen irgendwo hin)
Preisschätzung lt Architekt/Planer: noch nicht bekannt
Persönliches Preislimit fürs Haus, inkl Ausstattung: ca. 450.000,-
favorisierte Heiztechnik: Fernwärme, da sie dort Standard ist
Wenn Ihr verzichten müsst, auf welche Details/Ausbauten
-könnt Ihr verzichten:
- Kochinsel
- Küche muss nicht offen sein
- Wenn es wirklich sein muss auf eines der Kinderzimmer, dafür müsste ein anderes größer sein
-könnt Ihr nicht verzichten:
- Trennung von Gäste- und Arbeitszimmer, es müssen wirklich 2 Zimmer sein
Warum ist der Entwurf so geworden, wie er jetzt ist?
Wir haben viele Standardentwürfe angesehen und dann einen als Basis genommen für diverse Modifikationen in vielen Iterationen.
Was macht ihn in Euren Augen besonders gut oder schlecht? /
Was ist die wichtigste/grundlegende Frage zum Grundriss in 130 Zeichen zusammengefasst?
Was kann man noch besser gestalten und warum? Ungefiltertes Feedback ist gerne gesehen.
Dankeschön
P
Pinky030122.08.20 20:51Hallo,
Was mir spontan aufgefallen ist:
Die Küchenplanung finde ich merkwürdig. Sollen das zwei Zeilen sein und eine kleine Kochinsel in der Mitte? Bei 80cm Tiefe spritzt du dir da eher rundherum den Boden voll beim Braten.
Ich würde Sofa/TV mit den Möbeln planlinks davon tauschen. So hat man mehr Abstand zum Esstisch und vermeidet diesen komischen leeren Raum an der Wand.
Ich glaube, es gibt nicht genug Garderobenplatz für 5 Personen plus Gäste.
Ansonsten ist es schwer einzuschätzen, ob die Möbel und Treppe realistisch eingezeichnet sind, weil keine Maße dran stehen. Hast du eure aktuellen Möbel eingezeichnet?
Was mir spontan aufgefallen ist:
Die Küchenplanung finde ich merkwürdig. Sollen das zwei Zeilen sein und eine kleine Kochinsel in der Mitte? Bei 80cm Tiefe spritzt du dir da eher rundherum den Boden voll beim Braten.
Ich würde Sofa/TV mit den Möbeln planlinks davon tauschen. So hat man mehr Abstand zum Esstisch und vermeidet diesen komischen leeren Raum an der Wand.
Ich glaube, es gibt nicht genug Garderobenplatz für 5 Personen plus Gäste.
Ansonsten ist es schwer einzuschätzen, ob die Möbel und Treppe realistisch eingezeichnet sind, weil keine Maße dran stehen. Hast du eure aktuellen Möbel eingezeichnet?
O
Osnabruecker22.08.20 20:52Für einen Erstentwurf finde ich es sehr gelungen.
Gibt es Gründe, für das deutlich größere Kind1?
Ihr habt anscheindend die Wände vom EG ins OG übertragen. An sich gute Idee, aber ich würde die paar Bewehrungseisen gerne bezahlen wenn dafür Kind 3 größer wird, Kind 2 eine Ecke weniger im Raum hat (auch Ecken kosten Geld) und Kind 2 dann zu Lasten von Kind 1 vergrößern...
Gibt es Gründe, für das deutlich größere Kind1?
Ihr habt anscheindend die Wände vom EG ins OG übertragen. An sich gute Idee, aber ich würde die paar Bewehrungseisen gerne bezahlen wenn dafür Kind 3 größer wird, Kind 2 eine Ecke weniger im Raum hat (auch Ecken kosten Geld) und Kind 2 dann zu Lasten von Kind 1 vergrößern...
H
hausvoraus22.08.20 21:20Pinky0301 schrieb:
Die Küchenplanung finde ich merkwürdig. Sollen das zwei Zeilen sein und eine kleine Kochinsel in der Mitte? Bei 80cm Tiefe spritzt du dir da eher rundherum den Boden voll beim Braten.Kochinsel in der Mitte, Rest drumherum (ist noch nicht detaillierter).Du meinst für eine Kochinsel sind 80 cm zu wenig?
Pinky0301 schrieb:
Ich würde Sofa/TV mit den Möbeln planlinks davon tauschen. So hat man mehr Abstand zum Esstisch und vermeidet diesen komischen leeren Raum an der Wand.OK, evtl. kommt doch eine Eckcouch hin.Pinky0301 schrieb:
Ich glaube, es gibt nicht genug Garderobenplatz für 5 Personen plus Gäste.OK, muss ich prüfen.Pinky0301 schrieb:
Ansonsten ist es schwer einzuschätzen, ob die Möbel und Treppe realistisch eingezeichnet sind, weil keine Maße dran stehen. Hast du eure aktuellen Möbel eingezeichnet?Die Treppenmaße habe ich noch nicht im Detail.Esstisch + Stühle (die sollen am liebsten behalten werden) + Couch + 2 Schränke (können ersetzt werden) sind die aktuellen Möbel.
H
hausvoraus22.08.20 21:26Osnabruecker schrieb:
Für einen Erstentwurf finde ich es sehr gelungen.Danke Osnabruecker schrieb:
Gibt es Gründe, für das deutlich größere Kind1?Nein, hatte sich ergeben. So ein "Schlaucheingang" trägt ja nur auf dem Papier zu einem größeren Zimmer bei, in der Praxis kann man dort kaum etwas hinstellen.Alle 3 Zimmer gleichartig hätten wir am liebsten gehabt.
Osnabruecker schrieb:
Ihr habt anscheindend die Wände vom EG ins OG übertragen. Ganz genau.Osnabruecker schrieb:
An sich gute Idee, aber ich würde die paar Bewehrungseisen gerne bezahlen wenn dafür Kind 3 größer wird, Kind 2 eine Ecke weniger im Raum hat (auch Ecken kosten Geld) und Kind 2 dann zu Lasten von Kind 1 vergrößern...Du meinst die auf dem Bild oberen Wände bei Kind 3 und 2 etwas nach oben schieben?Diele von 11,? Qm mit knapp 4 Metern in der Breite?
Der Raum hat ungefähr 4 x 5,5 + 2 Meter Podest.
Das sind dann 24 qm... vielleicht doch etwas zu viel Fläche, die man durch die mittige Treppenlage noch nicht mal ordentlich möblieren kann.
Essbereich wirkt etwas zwischengeschoben.
Und die Kinderzimmer: nicht gerade dolle dank Mist Treppenlage
Der Raum hat ungefähr 4 x 5,5 + 2 Meter Podest.
Das sind dann 24 qm... vielleicht doch etwas zu viel Fläche, die man durch die mittige Treppenlage noch nicht mal ordentlich möblieren kann.
Essbereich wirkt etwas zwischengeschoben.
Und die Kinderzimmer: nicht gerade dolle dank Mist Treppenlage
Ähnliche Themen