ᐅ Grundriss für Einfamilienhaus 210 m² + Keller - Eure Meinungen
Erstellt am: 16.03.20 18:39
W
Wast_LAHallo zusammen,
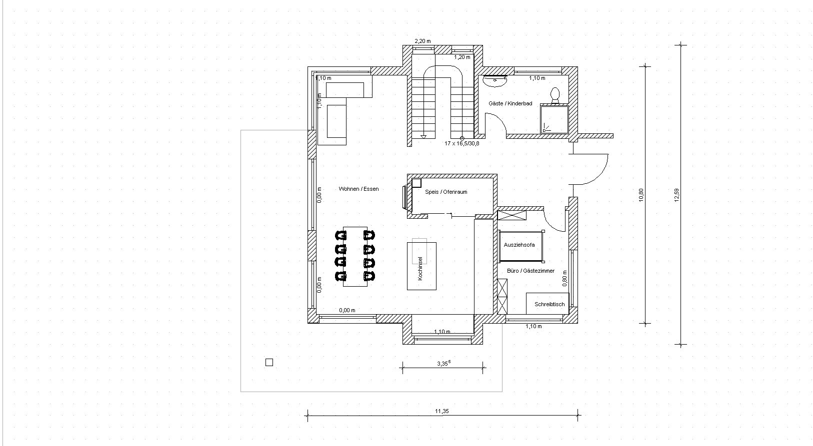
nach längerer Zeit passiven Mitlesens ist es bei uns nun so weit. Wir planen konkret auf einem bereits vorhandenen Grundstück (900 qm annähernd quadratisch, keine besonderen Bauvorschriften) im Landkreis Landshut ein Einfamilienhaus mit ca. 210 qm Wohnfläche.
Durch einige Besuche in Musterhausparks sowie Gesprächen mit einigen Anbietern ist nach und nach ein Grundriss entstanden der unsere Vorstellungen sehr gut widerspiegelt.
Wir würden uns sehr über konstruktive Kritik von eurer Seite freuen. Insbesondere bei Abstände, Durchgänge und Flurgrößen sind wir im Moment etwas unsicher wie die geplante Breite wirkt oder praktikabel ist.
Eine erste Kostenschätzung mit 2500 €/m² (Eigenleistungen bzw. Eigenvergabe von Gewerken ist möglich bzw. sogar gewünscht) + 100.000 € Keller + Abrisskosten (hoher Eigenanteil) würde ca. 625.000 € (zzgl. Küche etc.) ergeben. Ist dies realistisch?
Danke schon Mal!
Sebastian
Bebauungsplan/Einschränkungen
Größe des Grundstücks 900 m²
Hang nein
Grundflächenzahl -
Geschossflächenzahl -
Baufenster, Baulinie und -grenze -
Randbebauung nein
Anzahl Stellplatz 2 - sind bereits in angrenzenden Gebäude vorhanden (zusätzlich der 900 m²)
Geschossigkeit 2
Dachform Satteldach
Stilrichtung
Ausrichtung
Maximale Höhen/Begrenzungen keine
weitere Vorgaben keine
Anforderungen der Bauherren
Stilrichtung, Dachform, Gebäudetyp
Keller, Geschosse Keller mit 2 Geschossen
Anzahl der Personen, Alter 2 Erwachsene 30+ , 2 Kinder < 5
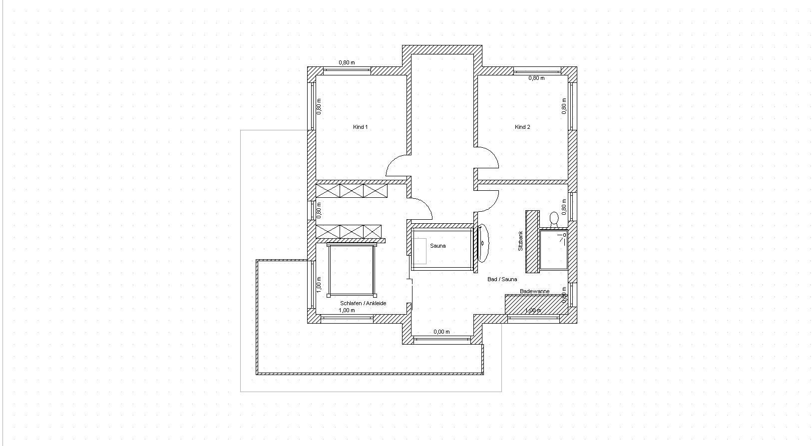
Raumbedarf im EG, Küche/Essen/Wohnen, Gästezimmer/Bad, Garderobe OG: 2 Kinderzimmer, Schlaf/Ankleidezimmer, Bad mit Saunabereich
Büro: Familiennutzung oder Homeoffice? - Familiennutzung
Schlafgäste pro Jahr ca. 5
offene oder geschlossene Architektur offen
konservativ oder moderne Bauweise
offene Küche, Kochinsel ja
Anzahl Essplätze 8
Kamin ja
Musik/Stereowand
Balkon, Dachterrasse falls möglich
Garage, Carport bereits vorhanden
Nutzgarten, Treibhaus
weitere Wünsche/Besonderheiten/Tagesablauf, gern auch Begründungen, warum dieses oder das nicht sein soll
Hausentwurf
Von wem stammt die Planung:
-Do-it-Yourself
Was gefällt besonders? Warum?
Kombination Schlaf/Ankleide mit Bad, Großzügiger Eingangsbereich
Was gefällt nicht? Warum?
Größere Leerräume im Wohn/Essbereich bzw. Flur im Obergeschoss
Preisschätzung lt Architekt/Planer:
600.000 € ohne Grundstück
Persönliches Preislimit fürs Haus, inkl Ausstattung:
700.000 € ohne Grundstück
favorisierte Heiztechnik:
Grundwasser-Wärmepumpe
Wenn Ihr verzichten müsst, auf welche Details/Ausbauten
-könnt Ihr verzichten: Dachterrasse, Vollunterkellerung
-könnt Ihr nicht verzichten: Großzügige Küche
Warum ist der Entwurf so geworden, wie er jetzt ist? ZB
Basierden auf einigen Entwürfen von Fertighausanbietern, Besuchen in Fertighausparks ist der Plan gewachsen
Was ist die wichtigste/grundlegende Frage zum Grundriss in 130 Zeichen zusammengefasst?
Sind die geplanten Abständen v.a. den Fluren ausreichend bzw. zu großzügig. Passt die Preisabschätzung? Danke!


nach längerer Zeit passiven Mitlesens ist es bei uns nun so weit. Wir planen konkret auf einem bereits vorhandenen Grundstück (900 qm annähernd quadratisch, keine besonderen Bauvorschriften) im Landkreis Landshut ein Einfamilienhaus mit ca. 210 qm Wohnfläche.
Durch einige Besuche in Musterhausparks sowie Gesprächen mit einigen Anbietern ist nach und nach ein Grundriss entstanden der unsere Vorstellungen sehr gut widerspiegelt.
Wir würden uns sehr über konstruktive Kritik von eurer Seite freuen. Insbesondere bei Abstände, Durchgänge und Flurgrößen sind wir im Moment etwas unsicher wie die geplante Breite wirkt oder praktikabel ist.
Eine erste Kostenschätzung mit 2500 €/m² (Eigenleistungen bzw. Eigenvergabe von Gewerken ist möglich bzw. sogar gewünscht) + 100.000 € Keller + Abrisskosten (hoher Eigenanteil) würde ca. 625.000 € (zzgl. Küche etc.) ergeben. Ist dies realistisch?
Danke schon Mal!
Sebastian
Bebauungsplan/Einschränkungen
Größe des Grundstücks 900 m²
Hang nein
Grundflächenzahl -
Geschossflächenzahl -
Baufenster, Baulinie und -grenze -
Randbebauung nein
Anzahl Stellplatz 2 - sind bereits in angrenzenden Gebäude vorhanden (zusätzlich der 900 m²)
Geschossigkeit 2
Dachform Satteldach
Stilrichtung
Ausrichtung
Maximale Höhen/Begrenzungen keine
weitere Vorgaben keine
Anforderungen der Bauherren
Stilrichtung, Dachform, Gebäudetyp
Keller, Geschosse Keller mit 2 Geschossen
Anzahl der Personen, Alter 2 Erwachsene 30+ , 2 Kinder < 5
Raumbedarf im EG, Küche/Essen/Wohnen, Gästezimmer/Bad, Garderobe OG: 2 Kinderzimmer, Schlaf/Ankleidezimmer, Bad mit Saunabereich
Büro: Familiennutzung oder Homeoffice? - Familiennutzung
Schlafgäste pro Jahr ca. 5
offene oder geschlossene Architektur offen
konservativ oder moderne Bauweise
offene Küche, Kochinsel ja
Anzahl Essplätze 8
Kamin ja
Musik/Stereowand
Balkon, Dachterrasse falls möglich
Garage, Carport bereits vorhanden
Nutzgarten, Treibhaus
weitere Wünsche/Besonderheiten/Tagesablauf, gern auch Begründungen, warum dieses oder das nicht sein soll
Hausentwurf
Von wem stammt die Planung:
-Do-it-Yourself
Was gefällt besonders? Warum?
Kombination Schlaf/Ankleide mit Bad, Großzügiger Eingangsbereich
Was gefällt nicht? Warum?
Größere Leerräume im Wohn/Essbereich bzw. Flur im Obergeschoss
Preisschätzung lt Architekt/Planer:
600.000 € ohne Grundstück
Persönliches Preislimit fürs Haus, inkl Ausstattung:
700.000 € ohne Grundstück
favorisierte Heiztechnik:
Grundwasser-Wärmepumpe
Wenn Ihr verzichten müsst, auf welche Details/Ausbauten
-könnt Ihr verzichten: Dachterrasse, Vollunterkellerung
-könnt Ihr nicht verzichten: Großzügige Küche
Warum ist der Entwurf so geworden, wie er jetzt ist? ZB
Basierden auf einigen Entwürfen von Fertighausanbietern, Besuchen in Fertighausparks ist der Plan gewachsen
Was ist die wichtigste/grundlegende Frage zum Grundriss in 130 Zeichen zusammengefasst?
Sind die geplanten Abständen v.a. den Fluren ausreichend bzw. zu großzügig. Passt die Preisabschätzung? Danke!
Ohne Maße kann man Abstände schlecht beurteilen.
Die Toilette im EG-Bad gehört gedreht, dann gibt es da keinen zu kleinen Abstand.
Im OG fällt mir die Wanne auf, die mir sehr schmal daherkommt.
Das Schlafzimmer ist nicht wirklich ein Raum (der Behaglichkeit)
Ohne Maße zu beurteilen, finde ich den Entwurf nicht würdig, in weiter zu betrachten: bei 210qm das Kinderbad in Kombi mit dem Gast-WC, die lange Schraube durchs ganze Haus, um die Küche zu erreichen. Dabei noch an der Chillecke entlang. Schlafzimmer hab ich schon genannt, Bad größer als Kinderzimmer...
Wo ist denn das Grundstück? Das bitte mal mit einstellen.
Die Toilette im EG-Bad gehört gedreht, dann gibt es da keinen zu kleinen Abstand.
Im OG fällt mir die Wanne auf, die mir sehr schmal daherkommt.
Das Schlafzimmer ist nicht wirklich ein Raum (der Behaglichkeit)
Ohne Maße zu beurteilen, finde ich den Entwurf nicht würdig, in weiter zu betrachten: bei 210qm das Kinderbad in Kombi mit dem Gast-WC, die lange Schraube durchs ganze Haus, um die Küche zu erreichen. Dabei noch an der Chillecke entlang. Schlafzimmer hab ich schon genannt, Bad größer als Kinderzimmer...
Wo ist denn das Grundstück? Das bitte mal mit einstellen.
H
hampshire16.03.20 20:11Lass mich raten: Der Entwurf ist inspiriert von einer Reihe von Teilaspekten, die Dich in anderen Häusern begeistert haben
Was tun?
Mach eine Liste wie oben und ergänze diese um eine weitere Liste in der Du aufführst was ihr (alle) gerne macht und wie euer tägliches Leben aussieht / aussehen soll. Damit gehst Du zu jemandem der Bock darauf hat aus Deinen funktionalen und non-funktionalen Anforderungen ein Gebäude zu entwerfen. Ob das ein Fertighaushersteller, GU oder Architekt ist ist erst mal zweitrangig - meine Wahl wäre wieder letzterer. Wie groß das Haus dann wird, wird sich zeigen - Du bist ja nicht auf 215qm festgelegt oder? Manchmal ist etwas kleiner besser - ohne notwendigerweise billiger zu sein.
Budget sieht erst mal überschlagen ganz OK aus.
- Anordnung von Schlafbereich und Ankleide in einer offenen Bauweise
- Sauna mit Platz für Relaxliegen und
- angrenzendem spa-ähnlichem Badezimmer
- Dusche im EG
- zentrale Speis ohne Tageslicht
- offene Küche zum Essbereich
- "Kapitäns"-Erker
- Gäste/Büro direkt am Eingang
- Zentraler Ofen
Was tun?
Mach eine Liste wie oben und ergänze diese um eine weitere Liste in der Du aufführst was ihr (alle) gerne macht und wie euer tägliches Leben aussieht / aussehen soll. Damit gehst Du zu jemandem der Bock darauf hat aus Deinen funktionalen und non-funktionalen Anforderungen ein Gebäude zu entwerfen. Ob das ein Fertighaushersteller, GU oder Architekt ist ist erst mal zweitrangig - meine Wahl wäre wieder letzterer. Wie groß das Haus dann wird, wird sich zeigen - Du bist ja nicht auf 215qm festgelegt oder? Manchmal ist etwas kleiner besser - ohne notwendigerweise billiger zu sein.
Budget sieht erst mal überschlagen ganz OK aus.
P
Pinky030116.03.20 20:56Ich glaube, du hast bei deiner Kostenaufstellung die Baunebenkosten vergessen, oder?
Haus 210x2500, Keller 100k = 625k
Abriss?, Baunebenkosten?
Haus 210x2500, Keller 100k = 625k
Abriss?, Baunebenkosten?
Ähnliche Themen