ᐅ Grundrissplanung Stadtvilla Doppelgarage | Keller | KFW40+ | 205m²
Erstellt am: 23.11.20 09:29
B
buffae0424B
buffae042423.11.20 09:29Hallo zusammen,
ich bin relativ neu hier angemeldet war aber in letzter Zeit sehr interessierter Leser hier im Forum. Wir wollen ein Einfamilienhaus in Bayern bauen und wollen die Erfahrungen und Meinungen zu unserer Grundrissplanung teilen. Demnächst steht die Eingabeplanung des Entwurfs an.
Bebauungsplan/Einschränkungen
Größe des Grundstücks: 1111 m²
Hang: Abfallend Richtung Osten ca. 2m, würde ich aber nicht als Hang bezeichnen.
Grundflächenzahl: 0,4
Geschossflächenzahl: 1,2
Baufenster, Baulinie und -grenze: 5m Abstand zur Straße
Randbebauung: Möglich für Garagen
Anzahl Stellplatz: keine Angaben
Geschossigkeit I, II, I+D
Dachform: Satteldach, Walmdach, Flachdach
Stilrichtung: Stadtvilla
Ausrichtung: Süden
Maximale Höhen/Begrenzungen: 10m für II-Geschossig bei
weitere Vorgaben: Walmdach Dachneigung 15° - 32°
Anforderungen der Bauherren
Stilrichtung, Dachform, Gebäudetyp: Stadtvilla in Holzständer KFW40 oder KFW40+
Keller, Geschosse: Keller + EG + OG
Anzahl der Personen, Alter, 3 ERW, 3 Kinder,
Raumbedarf im EG, OG
Büro: Familiennutzung oder Homeoffice? Teilweise HO
Schlafgäste pro Jahr: selten bis keine
offene oder geschlossene Architektur: teiloffen
konservativ oder moderne Bauweise: modern
offene Küche: offen
Anzahl Essplätze: 8 -10 Personen
Kamin: Ja
Musik/Stereowand - nein
Balkon, Dachterrasse - kein Balkon gewünscht
Garage, Carport: Doppelgarage
Nutzgarten, Treibhaus: Gartenplanung später
weitere Wünsche/Besonderheiten/Tagesablauf, gern auch Begründungen, warum dieses oder das nicht sein soll:
Hausentwurf
Von wem stammt die Planung: GU
-Planer eines Bauunternehmens: Ja
Was gefällt besonders? Warum? Geradlinigkeit der Räume im OG, Galerie und großer Flur im Treppenhaus.
Was gefällt nicht? Warum?
Preisschätzung lt Architekt/Planer: 600k
Persönliches Preislimit fürs Haus, inkl Ausstattung: 700k
favorisierte Heiztechnik: Luft-Wasser-Wärmepumpe oder Pellet
Wenn Ihr verzichten müsst, auf welche Details/Ausbauten
-könnt Ihr verzichten: Sauna im Keller nur als Vorhalt
-könnt Ihr nicht verzichten:
Warum ist der Entwurf so geworden, wie er jetzt ist? ZB
Der Entwurf wurde individuell nach unseren Wünschen gestaltet.
Was macht ihn in Euren Augen besonders gut oder schlecht? Große Küche/Wohnbereich im EG mit begehbarer Speisekammer
Was ist die wichtigste/grundlegende Frage zum Grundriss in 130 Zeichen zusammengefasst?
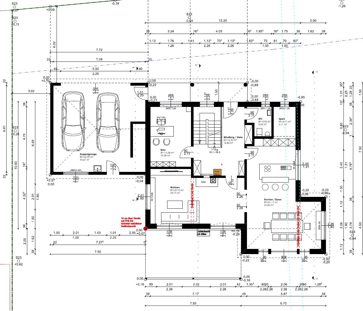
Unser Grundstück befindet sich auf dem bayerischen Land und ist mit 1111 m² dementsprechend groß. Im Nord/Osten sind wir im Randbereich des Bebauungsplan und haben hier auch keine Nachbarn. Somit sehen wir aus der Küche gut 2km in die freie Landschaft. Wir wollen hier im Forum weitere Anregungen zum Grundriss bekommen. Kritik/Verbesserungsvorschläge sind natürlich immer willkommen.







ich bin relativ neu hier angemeldet war aber in letzter Zeit sehr interessierter Leser hier im Forum. Wir wollen ein Einfamilienhaus in Bayern bauen und wollen die Erfahrungen und Meinungen zu unserer Grundrissplanung teilen. Demnächst steht die Eingabeplanung des Entwurfs an.
Bebauungsplan/Einschränkungen
Größe des Grundstücks: 1111 m²
Hang: Abfallend Richtung Osten ca. 2m, würde ich aber nicht als Hang bezeichnen.
Grundflächenzahl: 0,4
Geschossflächenzahl: 1,2
Baufenster, Baulinie und -grenze: 5m Abstand zur Straße
Randbebauung: Möglich für Garagen
Anzahl Stellplatz: keine Angaben
Geschossigkeit I, II, I+D
Dachform: Satteldach, Walmdach, Flachdach
Stilrichtung: Stadtvilla
Ausrichtung: Süden
Maximale Höhen/Begrenzungen: 10m für II-Geschossig bei
weitere Vorgaben: Walmdach Dachneigung 15° - 32°
Anforderungen der Bauherren
Stilrichtung, Dachform, Gebäudetyp: Stadtvilla in Holzständer KFW40 oder KFW40+
Keller, Geschosse: Keller + EG + OG
Anzahl der Personen, Alter, 3 ERW, 3 Kinder,
Raumbedarf im EG, OG
Büro: Familiennutzung oder Homeoffice? Teilweise HO
Schlafgäste pro Jahr: selten bis keine
offene oder geschlossene Architektur: teiloffen
konservativ oder moderne Bauweise: modern
offene Küche: offen
Anzahl Essplätze: 8 -10 Personen
Kamin: Ja
Musik/Stereowand - nein
Balkon, Dachterrasse - kein Balkon gewünscht
Garage, Carport: Doppelgarage
Nutzgarten, Treibhaus: Gartenplanung später
weitere Wünsche/Besonderheiten/Tagesablauf, gern auch Begründungen, warum dieses oder das nicht sein soll:
- Die Garage soll nicht auf die Grundstücksgrenze gebaut werden, um um das Haus gehen zu können und hier noch einen Stellplatz für PKW/Anhänger zu haben.
- Zugang zur Garage über Wohnhaus nicht gewünscht.
- Versteckte begehbare Speisekammer
- Zufahrt der Garage über Norden
Hausentwurf
Von wem stammt die Planung: GU
-Planer eines Bauunternehmens: Ja
Was gefällt besonders? Warum? Geradlinigkeit der Räume im OG, Galerie und großer Flur im Treppenhaus.
Was gefällt nicht? Warum?
Preisschätzung lt Architekt/Planer: 600k
Persönliches Preislimit fürs Haus, inkl Ausstattung: 700k
favorisierte Heiztechnik: Luft-Wasser-Wärmepumpe oder Pellet
Wenn Ihr verzichten müsst, auf welche Details/Ausbauten
-könnt Ihr verzichten: Sauna im Keller nur als Vorhalt
-könnt Ihr nicht verzichten:
Warum ist der Entwurf so geworden, wie er jetzt ist? ZB
Der Entwurf wurde individuell nach unseren Wünschen gestaltet.
Was macht ihn in Euren Augen besonders gut oder schlecht? Große Küche/Wohnbereich im EG mit begehbarer Speisekammer
Was ist die wichtigste/grundlegende Frage zum Grundriss in 130 Zeichen zusammengefasst?
Unser Grundstück befindet sich auf dem bayerischen Land und ist mit 1111 m² dementsprechend groß. Im Nord/Osten sind wir im Randbereich des Bebauungsplan und haben hier auch keine Nachbarn. Somit sehen wir aus der Küche gut 2km in die freie Landschaft. Wir wollen hier im Forum weitere Anregungen zum Grundriss bekommen. Kritik/Verbesserungsvorschläge sind natürlich immer willkommen.
Ist Dir mal aufgefallen, dass in der Küche kaum Arbeitsfläche und keine Abstellfläche vorhanden ist?
Wo steht denn der Kaffeevollautomat oder ein anderes Gerät, welches man stehen lässt? Messerblock, Essig und Öl, Salz und Pfeffer, geöffnete Flaschen, eingeschenkte Wassergläser, Medikamente oder sonst so ein Krusch, den man täglich braucht und nicht in Nebenräume oder Schränke aufbewahrt... Obst...
beim Kochen wird es ganz eng.
Ich hab so ca. 2 Meter an Arbeitsplatte mehr im 2-Personen-Haushalt und es könnte mehr sein. Auch die Unterschränke halten nicht das her, was notwendig ist. Das kann die Speis mM nicht kompensieren.
P.S. Wir haben auch 3 Hochschränke und Hauswirtschaftsraum mit Zeile, bin jetzt nicht unordentlich, sondern clean...
Wo steht denn der Kaffeevollautomat oder ein anderes Gerät, welches man stehen lässt? Messerblock, Essig und Öl, Salz und Pfeffer, geöffnete Flaschen, eingeschenkte Wassergläser, Medikamente oder sonst so ein Krusch, den man täglich braucht und nicht in Nebenräume oder Schränke aufbewahrt... Obst...
beim Kochen wird es ganz eng.
Ich hab so ca. 2 Meter an Arbeitsplatte mehr im 2-Personen-Haushalt und es könnte mehr sein. Auch die Unterschränke halten nicht das her, was notwendig ist. Das kann die Speis mM nicht kompensieren.
P.S. Wir haben auch 3 Hochschränke und Hauswirtschaftsraum mit Zeile, bin jetzt nicht unordentlich, sondern clean...
B
buffae042423.11.20 09:53Danke für die erste Rückmeldung,
die Küche wurde vom Hausplaner erstmal so angedacht. Wir waren schon beim Küchenplaner, der mit uns zusammen den Entwurf im Anhang ausgearbeitet hat. Dort sollten für uns genügend Ablageflächen vorhanden sein. Auch die Arbeitsplatte/Spüle zum Fenster im Osten war für uns wichtig.

die Küche wurde vom Hausplaner erstmal so angedacht. Wir waren schon beim Küchenplaner, der mit uns zusammen den Entwurf im Anhang ausgearbeitet hat. Dort sollten für uns genügend Ablageflächen vorhanden sein. Auch die Arbeitsplatte/Spüle zum Fenster im Osten war für uns wichtig.
buffae0424 schrieb:
Danke für die erste Rückmeldung,
die Küche wurde vom Hausplaner erstmal so angedacht. Wir waren schon beim Küchenplaner, der mit uns zusammen den Entwurf im Anhang ausgearbeitet hat. Dort sollten für uns genügend Ablageflächen vorhanden sein. Auch die Arbeitsplatte/Spüle zum Fenster im Osten war für uns wichtig.Also wenn ich ehrlich bin sehe ich da überhaupt keine Arbeitsfläche? Ich dachte, dass die Küche in meiner Mietwohnung die kleinste der Welt ist, aber selbst da habe ich noch eine "bessere" Arbeitsfläche und auch deutlich mehr. Ich sehe da echt ein großes Problem, zumal das Haus ja wirklich echt groß ist. Würde schauen, dass ihr die Küche großzügiger gestaltet.
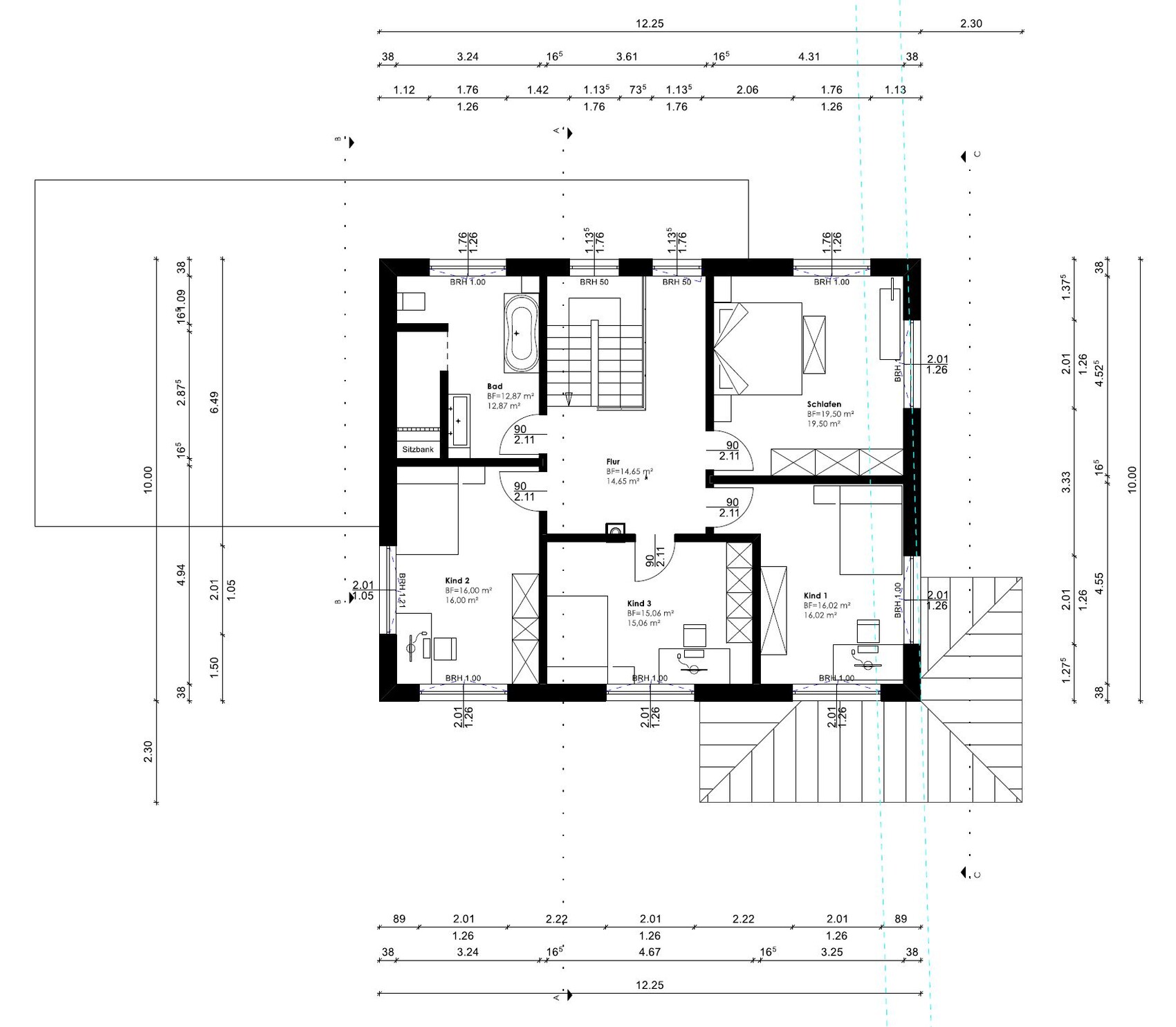
Im OG: Die 3 Kinderzimmer, sowie auch das Schlafzimmer gefallen mir sehr gut, auch größentechnisch passt das schon. Ihr könntet sogar noch das Schlafzimmer verkleinern und schauen, dass das Kind 3 genau so groß wird wie die anderen Kinderzimmer.
Das Bad finde ich nicht optimal... Das Waschbecken dir am Eingang ist nicht optimal gewählt. Bei einem 12,87m² großen Bad könnte sicherlich eine schönere Aufteilung entsehen wie ich finde. Der Raum ist eigentlich sehr sehr groß für ein Bad und trotzdem sieht es total gequetsch aus. Hier müsste man dann aber natürlich komplett umstellen. Der Bereich zwischen Türe und Waschbecken könnte sehr eng werden, außerdem hast du drum herum kaum Stellfläche - direkt neben dem Eingang zur Dusche wäre dann eventuell noch irgendwo ein Badhochschrank - finde ich nicht sonderlich passend.
Beim Rest kann ich ehrlich gesagt nicht mega viel bemängeln, ist halt ein riesiges Haus mit enorm viel Platz - die Aufteilung ist natürlich Geschmackssache. Würde aber tatsächlich schauen, dass ich bei der Küche deutlich mehr Platz gewinne, die geht finde ich total unter bei dem Grundriss.
Wer zur Hölle soll in dem dunklen Loch wohnen? Die Schwiegermutter.
Nein mal im Ernst. Großes Grundstück, Mini Einliegerwohnung mit Lichtschacht nur durch ein Lagerraum zugänglich.
Dafür oben massig leeren Raum.
Euer Budget ist für die Wünsche knapp. Ich würde etwas reduzieren und oben Leerräume streichen. Liegt für die Erdarbeiten ein Angebot vor?
Wollt ihr wirklich einen Wellnessbereich ohne Tageslicht?
Die Einliegerwohnung verdient den Namen nicht
Küche zu wenig Arbeitsplatz
viel Leerraum im Wohnzimmer - ok mit 3 Kindern gleich belegt
Der Eingang gefällt mir nicht. Sehr groß, keine zusammenhängende Garderobe - der wird immer etwas unordentlich wirken
Zeichnet in jeden Raum eure gewünschte bzw. vorhandene Möblierung ein im Maßstaab. Berücksichtigt Verkehrsfläche.
Nein mal im Ernst. Großes Grundstück, Mini Einliegerwohnung mit Lichtschacht nur durch ein Lagerraum zugänglich.
Dafür oben massig leeren Raum.
Euer Budget ist für die Wünsche knapp. Ich würde etwas reduzieren und oben Leerräume streichen. Liegt für die Erdarbeiten ein Angebot vor?
Wollt ihr wirklich einen Wellnessbereich ohne Tageslicht?
Die Einliegerwohnung verdient den Namen nicht
Küche zu wenig Arbeitsplatz
viel Leerraum im Wohnzimmer - ok mit 3 Kindern gleich belegt
Der Eingang gefällt mir nicht. Sehr groß, keine zusammenhängende Garderobe - der wird immer etwas unordentlich wirken
Zeichnet in jeden Raum eure gewünschte bzw. vorhandene Möblierung ein im Maßstaab. Berücksichtigt Verkehrsfläche.
P
pagoni202023.11.20 10:51Der Eingang zum Allraum wäre mir mir 90cm zu schmal, hat mMn etwas von Flaschenhals.
Im Vgl. zur Gesamtfläche finde auch ich die Küchenarbeitsfläche zu klein geraten.
Bei den Personen im Haus lese ich 3 Erw/3 Kinder, offenbar zählt eine Person in der Einliegerwohnung dazu? Bei 3 Kindern fehlt defintiv ein weiteres Duschbad insbes. im EG. Bei drei erwachsen werdenden Kindern führt das irgendwann zu Problemen. Die Kinderzimmer könnten den ein oder anderen qm abgeben und hätten trotzdem noch eine ausreichende Größe. Von daher würde ich im OG ein sog. Kinderbad (klein) bauen oder mMn besser ein kleines Bad-en-Suite für Euer Schlafzimmer, was mit wenig qm umsetzbar ist. Dem EG würde ich ebfs eine kleine Dusche im Gästebad gönnen, das ist mit 4qm eh groß genug. Offenbar wohnt ein Elternteil im Haus und wer weiß, wie sich das in Zukunft noch verschiebt. Vlt. wohnt irgendewann das älteste Kind unten und Elternteil mit im Haus....oder....oder...
Das ist ja kein Minihaus und deutet ja einen gewissen Anspruch an, weshalb mMn Duschen/Bäder hier unterrepräsentiert sind.
Je nach Wahl der Heizung bräuchtest Du vlt. auch nicht die aktuell gezeichnete Situation mit dem Kaminzugang im Flur, was vlt. auch wieder etwas Flexibilität bringen würde.
Das WZ weist zwar knapp 30qm aus, durch die Lage hat es aber tatsächlich vlt. gerade mal 20qm, der Rest besteht quasi als Eingangs-/Durchgangsbereich, weshalb die WZ-Möbel da etwas reingequetscht wirken. ind die Möbelmasse korrekt im Plan eingetragen?
Beim Betreten Eures Schlafzimmer im OG schaut ihr direkt gg. die 60vm tiefe Schrankwand, das ist nicht schön.
Der aktuelle Zugang zur Einliegerwohnung über den Lagerraum ist nicht glücklich; besser wäre natürlich ein Außenzugang direkt zur Einliegerwohnung, sonst ist dieser Lagerraum quasi der Vorraum zur "Wohnung" und somit nicht Fisch und nicht Fleisch, dann lieber gleich komplett in die Einliegerwohnung mitintegrieren.
Im Vgl. zur Gesamtfläche finde auch ich die Küchenarbeitsfläche zu klein geraten.
Bei den Personen im Haus lese ich 3 Erw/3 Kinder, offenbar zählt eine Person in der Einliegerwohnung dazu? Bei 3 Kindern fehlt defintiv ein weiteres Duschbad insbes. im EG. Bei drei erwachsen werdenden Kindern führt das irgendwann zu Problemen. Die Kinderzimmer könnten den ein oder anderen qm abgeben und hätten trotzdem noch eine ausreichende Größe. Von daher würde ich im OG ein sog. Kinderbad (klein) bauen oder mMn besser ein kleines Bad-en-Suite für Euer Schlafzimmer, was mit wenig qm umsetzbar ist. Dem EG würde ich ebfs eine kleine Dusche im Gästebad gönnen, das ist mit 4qm eh groß genug. Offenbar wohnt ein Elternteil im Haus und wer weiß, wie sich das in Zukunft noch verschiebt. Vlt. wohnt irgendewann das älteste Kind unten und Elternteil mit im Haus....oder....oder...
Das ist ja kein Minihaus und deutet ja einen gewissen Anspruch an, weshalb mMn Duschen/Bäder hier unterrepräsentiert sind.
Je nach Wahl der Heizung bräuchtest Du vlt. auch nicht die aktuell gezeichnete Situation mit dem Kaminzugang im Flur, was vlt. auch wieder etwas Flexibilität bringen würde.
Das WZ weist zwar knapp 30qm aus, durch die Lage hat es aber tatsächlich vlt. gerade mal 20qm, der Rest besteht quasi als Eingangs-/Durchgangsbereich, weshalb die WZ-Möbel da etwas reingequetscht wirken. ind die Möbelmasse korrekt im Plan eingetragen?
Beim Betreten Eures Schlafzimmer im OG schaut ihr direkt gg. die 60vm tiefe Schrankwand, das ist nicht schön.
Der aktuelle Zugang zur Einliegerwohnung über den Lagerraum ist nicht glücklich; besser wäre natürlich ein Außenzugang direkt zur Einliegerwohnung, sonst ist dieser Lagerraum quasi der Vorraum zur "Wohnung" und somit nicht Fisch und nicht Fleisch, dann lieber gleich komplett in die Einliegerwohnung mitintegrieren.
Ähnliche Themen