ᐅ Einfamilienhaus ohne Keller - Diskussion Grundriss
Erstellt am: 21.04.18 10:46
S
Saarländle21.04.18 10:46Hallo zusammen,
wir sind schon relativ weit fortgeschritten mit unserem Grundriss. Wollten diesen aber jetzt noch mal zur Diskussion stellen ob Euch noch Sachen auffallen, die wir einfach noch gar nicht bedacht haben und die wir in diesem Stadium noch ändern können.
Bebauungsplan/Einschränkungen
Größe des Grundstücks: 534qm
Hang: nein
Baufenster, Baulinie und -grenze: siehe Plan
Geschossigkeit: 2
Dachform: Giebel
Ausrichtung: wie im Plan
Anforderungen der Bauherren
Stilrichtung, Dachform, Gebäudetyp: einfach, offen, praktikabel
Keller, Geschosse: kein Keller 2 Vollgeschosse
Anzahl der Personen, Alter: 2 Erwachsene ~40 und 2 Kinder 3 und 6
Raumbedarf im EG, OG: Aktuell spielt sich das Leben meist im EG ab
Büro: Familiennutzung oder Homeoffice? Büro und Gästezimmer bzw. optionale
Schlafgäste pro Jahr: 10
offene oder geschlossene Architektur: offen
offene Küche, Kochinsel:
Anzahl Essplätze: 6-8
Kamin: nein
Balkon, Dachterrasse: nein
Garage, Carport: ja
Nutzgarten, Treibhaus: evtl.
weitere Wünsche/Besonderheiten/Tagesablauf, gern auch Begründungen, warum dieses oder das nicht sein soll
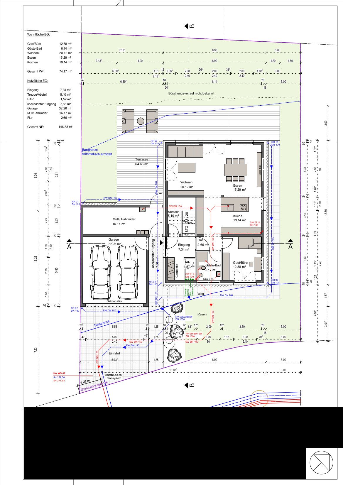
Die Idee hinter dem Entwurf war im EG einen großen Wohn Ess Küche Bereich zu haben. Gleichzeitig wollten wir aber unbedingt auch ein Gästezimmer/Büro im EG haben.
Das Bad im EG soll nicht nur als Gästebad dienen sondern gleichzeitig die Situation morgens entzerren, sodass das Bad oben und unten gleichzeitig genutzt werden kann.
Haustechnik soll so wenig wie möglich Platz im EG wegnehmen sondern möglichst unters Dach platziert werden.
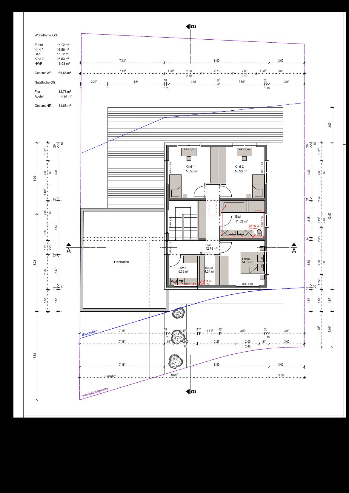
Im OG war wichtig dass die Kinderzimmer gleich groß sind. Schlafzimmer soll ohne ankleide sein.
Die Küche ist aktuell nur als Platzhalter eingezeichnet. Vermutlich wird diese als U umgesetzt.
Aktuelle offene Fragen sind:
- Positionierung und Größe der Fenster:
Hausentwurf
Von wem stammt die Planung:
-Architekt
Was gefällt besonders? Warum?
Was gefällt nicht? Warum?
favorisierte Heiztechnik: Luft-Wasser-Wärmepumpe
Wenn Ihr verzichten müsst, auf welche Details/Ausbauten
-könnt Ihr verzichten:
-könnt Ihr nicht verzichten:
Was ist die wichtigste/grundlegende Frage zum Grundriss in 130 Zeichen zusammengefasst?
wir sind schon relativ weit fortgeschritten mit unserem Grundriss. Wollten diesen aber jetzt noch mal zur Diskussion stellen ob Euch noch Sachen auffallen, die wir einfach noch gar nicht bedacht haben und die wir in diesem Stadium noch ändern können.
Bebauungsplan/Einschränkungen
Größe des Grundstücks: 534qm
Hang: nein
Baufenster, Baulinie und -grenze: siehe Plan
Geschossigkeit: 2
Dachform: Giebel
Ausrichtung: wie im Plan
Anforderungen der Bauherren
Stilrichtung, Dachform, Gebäudetyp: einfach, offen, praktikabel
Keller, Geschosse: kein Keller 2 Vollgeschosse
Anzahl der Personen, Alter: 2 Erwachsene ~40 und 2 Kinder 3 und 6
Raumbedarf im EG, OG: Aktuell spielt sich das Leben meist im EG ab
Büro: Familiennutzung oder Homeoffice? Büro und Gästezimmer bzw. optionale
Schlafgäste pro Jahr: 10
offene oder geschlossene Architektur: offen
offene Küche, Kochinsel:
Anzahl Essplätze: 6-8
Kamin: nein
Balkon, Dachterrasse: nein
Garage, Carport: ja
Nutzgarten, Treibhaus: evtl.
weitere Wünsche/Besonderheiten/Tagesablauf, gern auch Begründungen, warum dieses oder das nicht sein soll
Die Idee hinter dem Entwurf war im EG einen großen Wohn Ess Küche Bereich zu haben. Gleichzeitig wollten wir aber unbedingt auch ein Gästezimmer/Büro im EG haben.
Das Bad im EG soll nicht nur als Gästebad dienen sondern gleichzeitig die Situation morgens entzerren, sodass das Bad oben und unten gleichzeitig genutzt werden kann.
Haustechnik soll so wenig wie möglich Platz im EG wegnehmen sondern möglichst unters Dach platziert werden.
Im OG war wichtig dass die Kinderzimmer gleich groß sind. Schlafzimmer soll ohne ankleide sein.
Die Küche ist aktuell nur als Platzhalter eingezeichnet. Vermutlich wird diese als U umgesetzt.
Aktuelle offene Fragen sind:
- Positionierung und Größe der Fenster:
Hausentwurf
Von wem stammt die Planung:
-Architekt
Was gefällt besonders? Warum?
Was gefällt nicht? Warum?
favorisierte Heiztechnik: Luft-Wasser-Wärmepumpe
Wenn Ihr verzichten müsst, auf welche Details/Ausbauten
-könnt Ihr verzichten:
-könnt Ihr nicht verzichten:
Was ist die wichtigste/grundlegende Frage zum Grundriss in 130 Zeichen zusammengefasst?
S
Saarländle21.04.18 11:18Ich hätte das Haus gespiegelt.
Garage in Nord/Ost Kochen und Essen in Süd/West bei der Terrasse.
Hauseingang so zwischen Garage und Haus wirkt dunkel und eng.
Die bodentiefen Fenster in den Kinderzimmern, Gästezimmer und im Schlafzimmer würde ich überdenken. Machen die Zimmer schwer möblierbar und Schreibtische mit Kabelsalat vor den Fenstern wirkt unordentlich.
Freier Blick auf‘s Bett ist auch nicht jedermanns Sache.
Garage in Nord/Ost Kochen und Essen in Süd/West bei der Terrasse.
Hauseingang so zwischen Garage und Haus wirkt dunkel und eng.
Die bodentiefen Fenster in den Kinderzimmern, Gästezimmer und im Schlafzimmer würde ich überdenken. Machen die Zimmer schwer möblierbar und Schreibtische mit Kabelsalat vor den Fenstern wirkt unordentlich.
Freier Blick auf‘s Bett ist auch nicht jedermanns Sache.
S
Saarländle21.04.18 13:30Hallo,
das mit dem spiegeln haben wir uns am Anfang auch überlegt, haben uns dann aber dagegen entschieden. Wir wissen nicht wie der Nachbar auf der linken Seite baut. Wenn wir jetzt IDE Garage rechts gemacht hätten wären wir näher am Nachbar drin und evtl. voll im Hausschatten gewesen. Deshalb Garage nach links. Was nebenbei auch noch eine schönes Terrasseneck im Süd/West Bereich erzeugt (hoffentlich ohne Hausschatten von links ). Dadurch dann Küche und Esszimmer links.
Ja das mit den Bodentiegfen Fenstern ist echt so eine Sache: Ich find sie eigentlich cool, da einfach deutlich mehr Licht reinfällt. Meine Frau ist auch eher skeptisch wegen Kabelsalat uns so. Aktuell bin ich noch der Meinung, lieber bodentiefe Fenster rein und zur Not unten abdecken als es später zu bereuen, wenn mal der Schreibtisch rausfliegt oder anders platziert wird.
Im Schlafzimmer wird es vermutlich rausfliegen (dann Brüstungshöhe ~1m) und auch das Fenster über dem Bett soll raus. Aber dann müssen wir entscheiden an welcher Wand das Bett steht. Was haltet ihr vom Bett an der Vorderseite und Fenster dann an der rechten Seite?
Die Couch im Wohnzimmer sehe ich aktuell als L mit dem Schenkel auf der rechten Seite. So wird das ganze etwas breiter und gleichzeitig könnte die Couch dann auch etwas wie ein Raumtrenner wirken...
Schonmal Vielen Dank und Viele Grüße
das mit dem spiegeln haben wir uns am Anfang auch überlegt, haben uns dann aber dagegen entschieden. Wir wissen nicht wie der Nachbar auf der linken Seite baut. Wenn wir jetzt IDE Garage rechts gemacht hätten wären wir näher am Nachbar drin und evtl. voll im Hausschatten gewesen. Deshalb Garage nach links. Was nebenbei auch noch eine schönes Terrasseneck im Süd/West Bereich erzeugt (hoffentlich ohne Hausschatten von links ). Dadurch dann Küche und Esszimmer links.
Ja das mit den Bodentiegfen Fenstern ist echt so eine Sache: Ich find sie eigentlich cool, da einfach deutlich mehr Licht reinfällt. Meine Frau ist auch eher skeptisch wegen Kabelsalat uns so. Aktuell bin ich noch der Meinung, lieber bodentiefe Fenster rein und zur Not unten abdecken als es später zu bereuen, wenn mal der Schreibtisch rausfliegt oder anders platziert wird.
Im Schlafzimmer wird es vermutlich rausfliegen (dann Brüstungshöhe ~1m) und auch das Fenster über dem Bett soll raus. Aber dann müssen wir entscheiden an welcher Wand das Bett steht. Was haltet ihr vom Bett an der Vorderseite und Fenster dann an der rechten Seite?
Die Couch im Wohnzimmer sehe ich aktuell als L mit dem Schenkel auf der rechten Seite. So wird das ganze etwas breiter und gleichzeitig könnte die Couch dann auch etwas wie ein Raumtrenner wirken...
Schonmal Vielen Dank und Viele Grüße
Ähnliche Themen