ᐅ Detailplanung Grundriss Einfamilienhaus mit Keller und Einliegerwohnung
Erstellt am: 29.12.20 15:11
Hallo alle,
ich hätte gern mal die Schwarmintelligenz über unseren Grundriss schauen lassen wollen (ich hatte ihn schon mal hier in einer Detailfrage und in einer etwas älteren Fassung gezeigt - siehe hier, dort ging es mir aber hauptsächlich um die Trennung zwischen Garage und Haus).
Vorwarnung, da dies bereits Thema war: leider ist der Grundriss EG und OG in Stein bzw. Holz gemeißelt, da es ein Typhaus eines Fertighausherstellers ist, welcher nicht abgeändert werden darf (bzw. schon, allerdings dann nicht mehr zu dem Preis, der uns ins Budget passt). D.h., dort nehme ich gern vernichtende Kritik entgegen, aber werden kaum was damit anfangen können. Wir glauben, der Grundriss würde zu unseren Wünschen und Bedürfnissen gut passen.
Wo wir jedoch noch Spielraum haben, ist im Kellergeschoss, welches wir in Einzelvergabe gesondert bauen dürfen (müssen).
Dort sind wir in bestimmten Grenzen noch flexibel, und da hätte ich auch meine Hauptfragen:
Lageplan ist übrigens genordet, die anderen zwar leicht gedreht, aber auch dort ist im Grunde Norden oben.
Der Vollständigkeit halber habe ich auch der Fragebogen ausgefüllt.
Bebauungsplan/Einschränkungen
Größe des Grundstücks: 1018 qm
Hang: ja
Grundflächenzahl: keine Vorgaben
Geschossflächenzahl: keine Vorgaben
Baufenster, Baulinie und -grenze: so wie Lageplan
Randbebauung: nein
Anzahl Stellplatz: 2
Geschossigkeit: keine Vorgaben, nach Umgebungsbebauung
Dachform: -
Stilrichtung: -
Ausrichtung: -
Maximale Höhen/Begrenzungen: -
weitere Vorgaben: Retentionszisterne, Vollbiologische Kleinkläranlage
Anforderungen der Bauherren
Stilrichtung, Dachform, Gebäudetyp: Satteldach, eher klassisch
Keller, Geschosse: KG + EG + OG
Anzahl der Personen, Alter: 2 x Anfang 40er, 2 x Kleinkinder, ggf. dann 1/2 x Rentner in Einliegerwohnung
Raumbedarf im EG, OG: so wie geplant
Büro: Familiennutzung oder Homeoffice?: eventuell, falls Einliegerwohnung nicht wie beabsichtigt genutzt
Schlafgäste pro Jahr: 10 bis 20 (solange Einliegerwohnung als Gästewohnung bleibt)
offene oder geschlossene Architektur: offen
konservativ oder moderne Bauweise: gemischt
offene Küche, Kochinsel: offene Küche, Halbinsel
Anzahl Essplätze: 6
Kamin: nein
Musik/Stereowand: nein
Balkon, Dachterrasse: ja
Garage, Carport: Garage, in KG integriert
Nutzgarten, Treibhaus: nein
Besonderheiten: KFW 55 Standard
Hausentwurf
Von wem stammt die Planung: Architekt für KG, Typhaus Fertighaushersteller für EG und EG
Was gefällt besonders? Warum? Nutzung begrenzte Baufenster und Grundstück-Breite
Was gefällt nicht? Warum? siehe Fragen
Preisschätzung lt Architekt/Planer: nicht relevant
Persönliches Preislimit fürs Haus, inkl Ausstattung: nicht relevant
favorisierte Heiztechnik: S-W Wärmepumpe
Wenn Ihr verzichten müsst, auf welche Details/Ausbauten
-könnt Ihr verzichten: Begrünung Garagendach, evtl. Garage
-könnt Ihr nicht verzichten: Einliegerwohnung
Warum ist der Entwurf so geworden, wie er jetzt ist? ZB
Gemisch Standardentwurf + Eigen- bzw. Architektenplanung, weitestgehend wie gewünscht umgesetzt.
Vielen Dank im Voraus für eure Hilfe!






ich hätte gern mal die Schwarmintelligenz über unseren Grundriss schauen lassen wollen (ich hatte ihn schon mal hier in einer Detailfrage und in einer etwas älteren Fassung gezeigt - siehe hier, dort ging es mir aber hauptsächlich um die Trennung zwischen Garage und Haus).
Vorwarnung, da dies bereits Thema war: leider ist der Grundriss EG und OG in Stein bzw. Holz gemeißelt, da es ein Typhaus eines Fertighausherstellers ist, welcher nicht abgeändert werden darf (bzw. schon, allerdings dann nicht mehr zu dem Preis, der uns ins Budget passt). D.h., dort nehme ich gern vernichtende Kritik entgegen, aber werden kaum was damit anfangen können. Wir glauben, der Grundriss würde zu unseren Wünschen und Bedürfnissen gut passen.
Wo wir jedoch noch Spielraum haben, ist im Kellergeschoss, welches wir in Einzelvergabe gesondert bauen dürfen (müssen).
Dort sind wir in bestimmten Grenzen noch flexibel, und da hätte ich auch meine Hauptfragen:
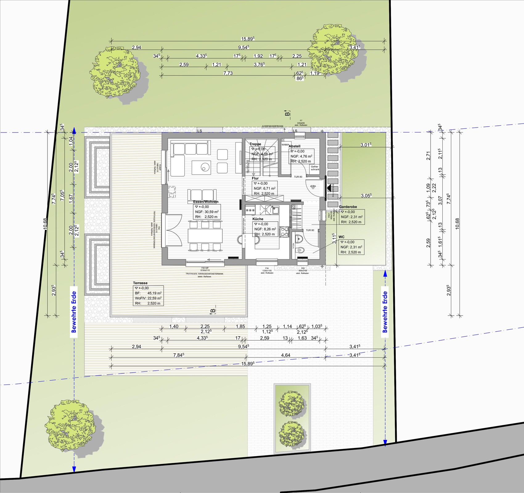
- Im Einliegerwohnung im Wohnbereich bin ich mir nicht sicher, ob ich die Küche im Süd-Osten planen soll (so wie in den Plänen angedeutet), oder doch lieber im Nord-Westen, dort wo jetzt das sofa dargestellt ist? Kann mir einiges an für und wider für beide Versionen zusammentragen...
- Gegenüber dem dargestellten Grundriss habe ich mich entschieden, die zwei Fenster auf der Südseite der Einliegerwohnung zusammenzuführen und sie als eine große, breite Hebeschiebetür zu gestalten. Jetzt bin ich etwas am Zweifeln, ob es nicht Sinn machen würde, die EG Dachterrasse mit einem Balkon von ca. 1 Meter Richtung Süden zu erweitern, so das dies als kleine “Überdachung” für die Fensterfront im KG fungiert. Ich würde nämlich gern die Hebeschiebetür möglichst schwellenlos installieren und hab etwas Sorgen bzgl. Niederschlag. Würde aber bedeuten, ich muss es mit einem Isokorb an der Fassade integrieren, was natürlich etwas preisintensiv ist.
- Die Badanordnung in der Einliegerwohnung gefällt mir auch nicht besonders, hab aber erstmal keine zündenden Ideen, wie man es besser gestalten kann. Ein Wunsch bzw. Voraussetzung wäre, dass das Bad möglichst alters- bzw. behindertengerecht ist - nicht unbedingt um irgendwelche DIN Standards zu erreichen, wohlgemerkt, sondern um es möglichst nützlich zu machen für solche Personen (bzw. wir in einigen Jahrzehnten…).
- Letztens, und dies hat mehr mit der Gartengestaltung zu tun: bin mir nicht sicher, ob wir auf der Westseite eher Lichthöfe vor dem Fenster im Wohn-Essbereich & Schlafzimmer vorsehen sollen (so wie in den Plänen dargestellt), oder vielleicht doch lieber einen Weg um das Haus führen, welcher knapp unter der Brüstungshöhe der Fenster führt (-30 cm?), und die Höhenunterschiede dann mit Treppen abfangen….
Lageplan ist übrigens genordet, die anderen zwar leicht gedreht, aber auch dort ist im Grunde Norden oben.
Der Vollständigkeit halber habe ich auch der Fragebogen ausgefüllt.
Bebauungsplan/Einschränkungen
Größe des Grundstücks: 1018 qm
Hang: ja
Grundflächenzahl: keine Vorgaben
Geschossflächenzahl: keine Vorgaben
Baufenster, Baulinie und -grenze: so wie Lageplan
Randbebauung: nein
Anzahl Stellplatz: 2
Geschossigkeit: keine Vorgaben, nach Umgebungsbebauung
Dachform: -
Stilrichtung: -
Ausrichtung: -
Maximale Höhen/Begrenzungen: -
weitere Vorgaben: Retentionszisterne, Vollbiologische Kleinkläranlage
Anforderungen der Bauherren
Stilrichtung, Dachform, Gebäudetyp: Satteldach, eher klassisch
Keller, Geschosse: KG + EG + OG
Anzahl der Personen, Alter: 2 x Anfang 40er, 2 x Kleinkinder, ggf. dann 1/2 x Rentner in Einliegerwohnung
Raumbedarf im EG, OG: so wie geplant
Büro: Familiennutzung oder Homeoffice?: eventuell, falls Einliegerwohnung nicht wie beabsichtigt genutzt
Schlafgäste pro Jahr: 10 bis 20 (solange Einliegerwohnung als Gästewohnung bleibt)
offene oder geschlossene Architektur: offen
konservativ oder moderne Bauweise: gemischt
offene Küche, Kochinsel: offene Küche, Halbinsel
Anzahl Essplätze: 6
Kamin: nein
Musik/Stereowand: nein
Balkon, Dachterrasse: ja
Garage, Carport: Garage, in KG integriert
Nutzgarten, Treibhaus: nein
Besonderheiten: KFW 55 Standard
Hausentwurf
Von wem stammt die Planung: Architekt für KG, Typhaus Fertighaushersteller für EG und EG
Was gefällt besonders? Warum? Nutzung begrenzte Baufenster und Grundstück-Breite
Was gefällt nicht? Warum? siehe Fragen
Preisschätzung lt Architekt/Planer: nicht relevant
Persönliches Preislimit fürs Haus, inkl Ausstattung: nicht relevant
favorisierte Heiztechnik: S-W Wärmepumpe
Wenn Ihr verzichten müsst, auf welche Details/Ausbauten
-könnt Ihr verzichten: Begrünung Garagendach, evtl. Garage
-könnt Ihr nicht verzichten: Einliegerwohnung
Warum ist der Entwurf so geworden, wie er jetzt ist? ZB
Gemisch Standardentwurf + Eigen- bzw. Architektenplanung, weitestgehend wie gewünscht umgesetzt.
Vielen Dank im Voraus für eure Hilfe!
Harakiri schrieb:
Wo wir jedoch noch Spielraum haben, ist im Kellergeschoss, welches wir in Einzelvergabe gesondert bauen dürfen (müssen).OKKD ist eine essentielle Schnittstelle. Ich rate davon ab, sich ausgerechnet das Genick zu einer Achillesferse zu machen - weniger poetisch ausgedrückt: Du solltest kategorisch ablehnen, selber Auftraggeber des Kellers zu werden !ad 1.: die Küche liegt wo sie geplant ist günstiger zu derjenigen des EG.
ad 2.: das kostet einen unanständigen Haufen Kohle und wird in der Einliegerwohnung nicht angemessen zur Wirkung kommen.
ad 3.: das Bad ist okay und für diese Wohnung an der Grenze zur überproportionalen Größe, insgesamt also mehr als edel genug; vergiß´ den Quatsch einer Alters-Einliegerwohnung. Deine eigene statistische restliche Lebenserwartung ist höher als diejenige dieses rückläufigen Trends. Aktien von Treppenliftherstellern sehe ich bereits ab 2040 als Penny Stocks ;-)
ad 4.: das klingt nach einer sympathischen Alternative.
https://www.instagram.com/11antgmxde/
https://www.linkedin.com/company/bauen-jetzt/
Harakiri schrieb:
ich hätte gern mal die Schwarmintelligenz über unseren Grundriss schauen lassen wollenHarakiri schrieb:
leider ist der Grundriss EG und OG in Stein bzw. Holz gemeißeltWie war jetzt die Frage? Was möchtest Du vom Forum?
@11ant: danke für die Hinweise bzw. Kommentare. Du hast sicherlich recht bzgl. Einzelvergabe, leider ist bei diesem Haushersteller immer so, dass BP oder Keller inkl. Erdarbeiten getrennt beauftragt werden müssen. Machen sie nie anders. Nun ja, wird sicherlich hier und da "lustig" werden.
@ypg: wie bereits erwähnt, wurde ich gern Feedback bzgl. KG hören, konkret zu meinen Fragen, aber gern auch generell - theoretisch können wir noch alles umplanen (bis auf das Treppenloch & innerhalb sinnvolle statische Grenzen).
@haydee: wir planen wie folgt: in den nächsten 3 bis 5 Jahren soll sie als Gästewohnung dienen, da meine Eltern viele tausende km entfernt wohnen - sie wurden ja gern die Kinder dann 3-4 mal im Jahr für längere Zeit besuchen wollen (jeweils 2-3 Wochen). Danach wollen unsere Schwiegereltern zu uns einziehen, sobald sie nicht mehr fit genug sind, um das eigene Haus zu bewirtschaften. Noch später können wir uns sehr gut vorstellen, selber dorthin zu wohnen, falls/wenn einer der Kinder das Haus bewohnen möchte - wir finden die Idee eines Mehrgenerationenhauses ganz charmant. Als Notfallplan können wir allerdings auch vermieten, sofern dies finanziell unbedingt notwendig sein sollte (was wir nicht hoffen). Behindertengerecht muss sie (ebenfalls hoffentlich) nicht sein, allerdings soll sie möglichst altersgerecht werden. Was wäre deiner Meinung nach da noch zu tun?
@ypg: wie bereits erwähnt, wurde ich gern Feedback bzgl. KG hören, konkret zu meinen Fragen, aber gern auch generell - theoretisch können wir noch alles umplanen (bis auf das Treppenloch & innerhalb sinnvolle statische Grenzen).
@haydee: wir planen wie folgt: in den nächsten 3 bis 5 Jahren soll sie als Gästewohnung dienen, da meine Eltern viele tausende km entfernt wohnen - sie wurden ja gern die Kinder dann 3-4 mal im Jahr für längere Zeit besuchen wollen (jeweils 2-3 Wochen). Danach wollen unsere Schwiegereltern zu uns einziehen, sobald sie nicht mehr fit genug sind, um das eigene Haus zu bewirtschaften. Noch später können wir uns sehr gut vorstellen, selber dorthin zu wohnen, falls/wenn einer der Kinder das Haus bewohnen möchte - wir finden die Idee eines Mehrgenerationenhauses ganz charmant. Als Notfallplan können wir allerdings auch vermieten, sofern dies finanziell unbedingt notwendig sein sollte (was wir nicht hoffen). Behindertengerecht muss sie (ebenfalls hoffentlich) nicht sein, allerdings soll sie möglichst altersgerecht werden. Was wäre deiner Meinung nach da noch zu tun?
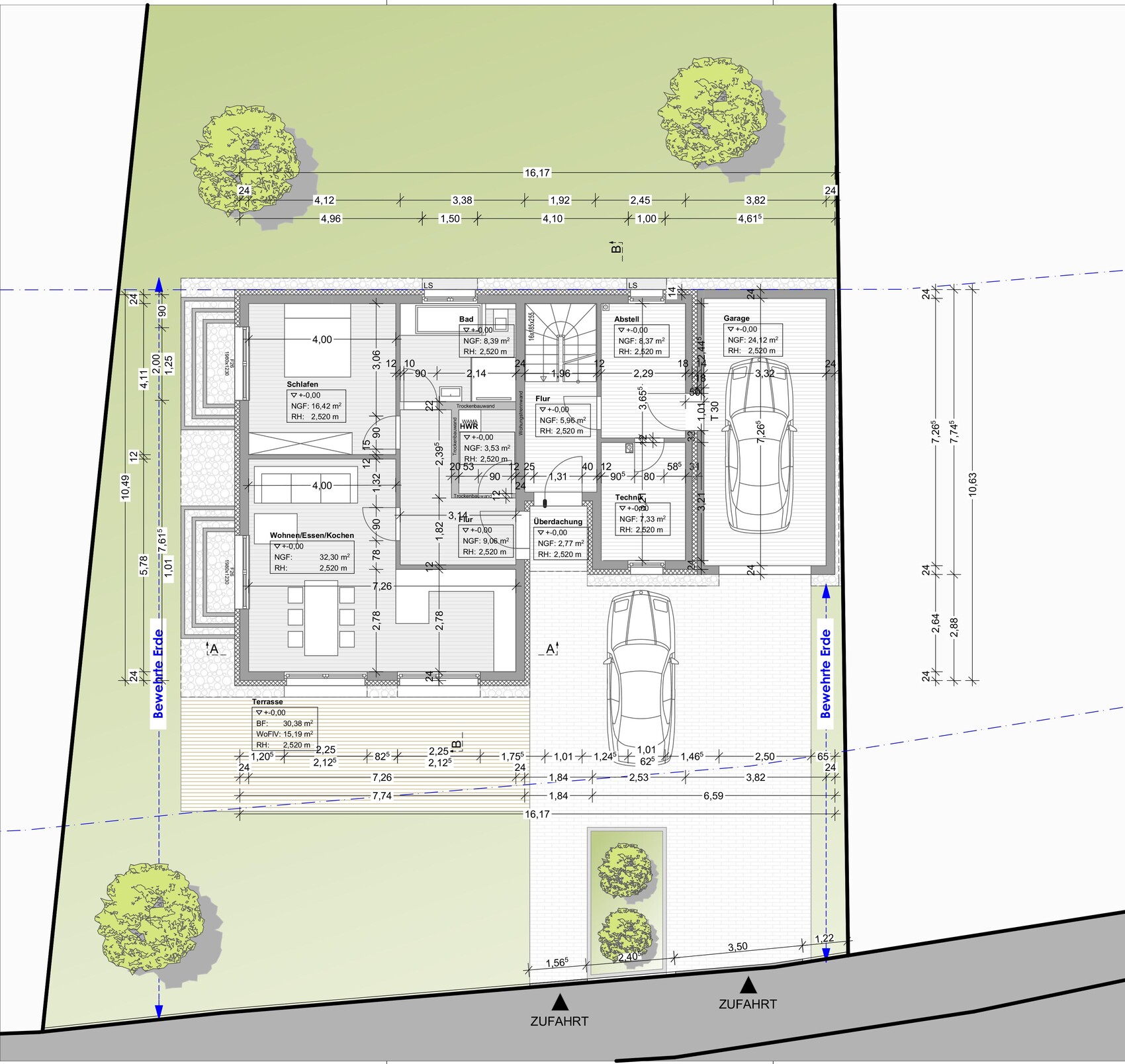
Ich fang beim oberen Teil an. Wenn man anstatt des Doppelflügelfenster im Teppenhaus Fenster in die Wand machen würde und diese weit runter zieht, bekommt ihr auch Licht ins UG.
Wer macht denn die Detailplanung bzw. Werksplanung. Einer für alles oder zwei? Irgendwie muss ich bei der Terrasse gleich an die Dachterrasse des Räubers denken der eine Stufe hatte, da man vergessen hatte dass der Fußbodenaufbau im Haus eine andere Höhe hat als draußen. Wo gehen denn deine Versorgungsleitungen in den Keller?
Wer macht denn die Detailplanung bzw. Werksplanung. Einer für alles oder zwei? Irgendwie muss ich bei der Terrasse gleich an die Dachterrasse des Räubers denken der eine Stufe hatte, da man vergessen hatte dass der Fußbodenaufbau im Haus eine andere Höhe hat als draußen. Wo gehen denn deine Versorgungsleitungen in den Keller?
Ähnliche Themen