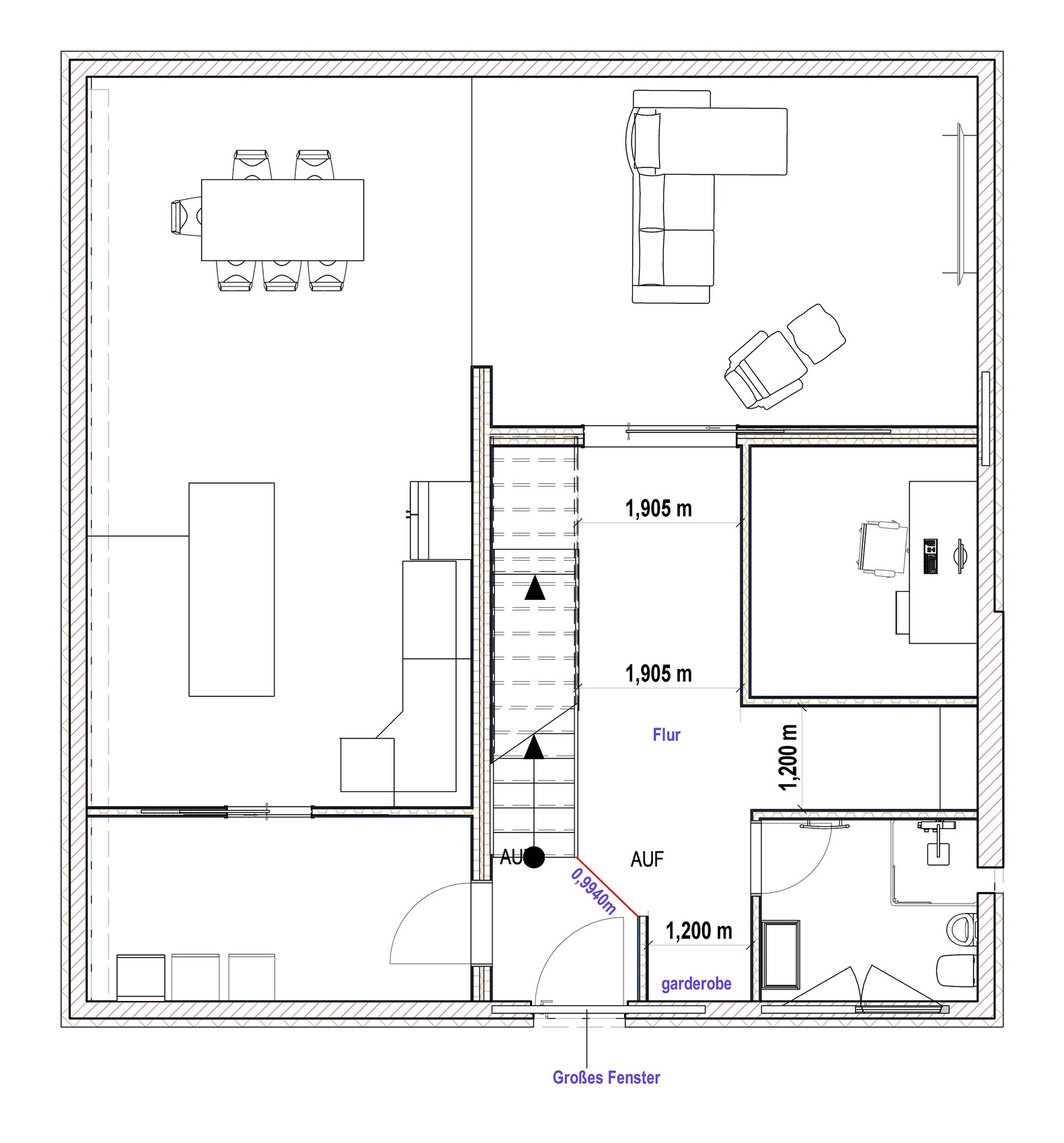
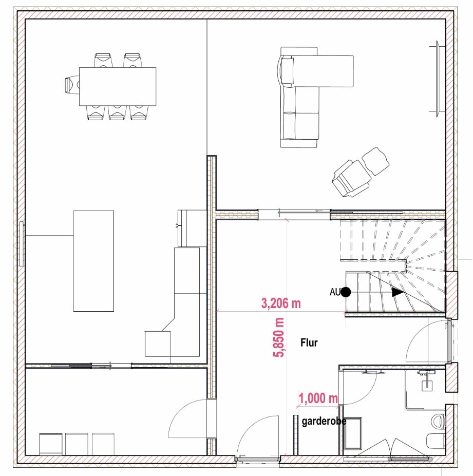
Welcher der Zwei Grundrisse ist besser?

4,80 Stern(e) 5 Votes
C

Charlie90

Zuletzt bearbeitet von einem Moderator:
S

SoL

Klar ist der Flur potenziell zu groß.
Ich würde die Variante ohne Arbeitszimmer nehmen, weil man bei der Variante mit Arbeitszimmer Fläche für einen nicht zugänglichen Raum verbraucht (keine Tür).

Wie sieht denn das OG dazu aus? Eine Planung beginnt ihr am Besten oben.
 
11ant

11ant

würde gerne mal wissen welche von den Beiden Grundrissen ihr Besser findet das.
ein Grundriss ist mit Gerader Treppe (kleine offene Galerie) und der 2 ist mit einer Halbgewendelten Treppe,
Ersteinmal "danke" für den Computerabsturz beim Betrachten der sechseinhalb Quadratmeter (!) großen Zeichnungen :-(
Das zeigt zunächst einmal, daß Du ein ungeeignetes Zeichenprogramm verwendest. Bedenke, daß nicht nur die Gigapixel-Bilder für die MitdiskutantInnen schwer zu betrachten sind, sondern auch nachher in 1:1 die Maurer nur mit Einskommadrei dpi Auflösung arbeiten werden - diese "Präzision" ist also völliger Quatsch.

Deine Grundrisse will ich im Detail noch gar nicht "kritisieren", denn den wesentlichsten Schwachpunkt hat mein Vorredner bereits angemerkt: es handelt sich jeweils um Erdgeschosse, was der ungeeignetste Ansatz ist.

Treppenformen haben im übrigen nicht nur Vor- und Nachteile im Vergleich miteinander, sondern sind in jedem Fall von zentral prägendem Einfluß auf den Gesamtgrundriss. Eine einläufige gerade Treppe ist gewissermaßen der "Stock im A...." eines Grundrisses. Mit nur wenigen weiteren Zutaten kann man damit einen Grundriss manövrierunfähig schießen, wenn man das Pferd derart von hinten aufzäumt.

Nachdem Du Dich mit dem Grundstück auseinandergesetzt hast und an die Grundrisse herangehen kannst, fängst Du am besten erst einmal mit überhaupt keinen Zeichnung an, sondern mit einer Tabelle. In diese trägst Du die Räume ein, und "qualifizierst" diese anschließend mit ihren Circa-Flächengrößen. Dann ordnest Du sie den Geschossen zu. Das "Gewicht" der Flächen der Listen "EG" und "OG" sollte sich etwa im Verhältnis 50:50 ("Stadtvilla") bzw. 65:35 ("Anderthalbgeschösser") zueinander befinden.

Hast Du diese Austarierung erreicht, legst Du mit dem Obergeschoss los, dessen Aufteilung Du zuerst entwickelst. Das Erdgeschoss folgt dann dieser Aufteilung. Dabei geht diese Regel von einem Eingang im EG aus, bei Hanggrundstücken muß man die Vorgehensweise variieren. Die Strenge des Ableitens hängt auch von den tragenden Wänden ab.

Sollte "Dein" Entwurf wesentlich auf einer Vorlage aufbauen, ist es hilfreich, in der Diskussion das Ausgangsmodell zu nennen (kein Link !), und die Variationen zu beschreiben (z.B. Dreikindfamilie bzw. zwei Homeoffices).
 
WilderSueden

WilderSueden

würde gerne mal wissen welche von den Beiden Grundrissen ihr Besser findet das.
"Ich wollte mal fragen welches Auto ihr besser findet..."
Bei welchen Anforderungen? Arbeitszimmer weglassen ist nur dann sinnvoll, wenn du eigentlich keins brauchst. Andernfalls muss das ins OG. Und wenn du 4 Tage die Woche im Home Office sitzt, willst du vielleicht auch mehr als die Besenkammer ;)
Es gibt in diesem Forum einen Fragebogen, daran könnt ihr euch erst einmal entlanghangeln und dann ggf. das neue Ergebnis präsentieren. Mit Fragebogen.
 
H

hanghaus2023

Ich würde erstmal das Grundstück sehen wollen. Plan und Fotos der Umgebung.

So wenig Fenster machen keinen Sinn.
 
Zuletzt aktualisiert 11.12.2025
Im Forum Grundrissplanung / Grundstücksplanung gibt es 2550 Themen mit insgesamt 88439 Beiträgen


Ähnliche Themen zu Welcher der Zwei Grundrisse ist besser?
Nr.ErgebnisBeiträge
1Treppe im Flur, Grundriss steht eigentlich schon :o( - Seite 320
2auf welchen dieser Grundrisse können wir weiter aufbauen? - Seite 31287
3Grundrissplanung für schmales Grundstück - Seite 216
4Grundrissplanung mit enger werdendem Grundstück - Seite 223
5Grundrissplanung Wohnzimmer und Flur zu schmal? - Seite 221
6Langes schmales Grundstück 170-190 qm 50
7Grundrissplanung: Flur im EG breit genug? - Seite 457
8Einfamilienhaus 220qm mit Keller auf 700qm Grundstück 41
9Optimierung 150m² Einfamilienhaus @ 470m² & 19m schmalem Grundstück 20
10Grundriss Haus / Grundstück 28
11Grundriss Kubus 150qm Eure Meinungen! 36
12Treppe - Sind die Treppenmaße 2.00x2.00m in Ordnung? - Seite 968
13Passende Grundrisse zu all unseren Anforderungen - Seite 466
14Kettenhaus auf 240qm Grundstück - Grundsatzfragen / Machbar? - Seite 261
15Grundriss Fails Sammelthread - Grundrisse die keiner wollte 25
16Grundstück aufschütten oder nicht? - Seite 487
17Positionierung eines Einfamilienhaus auf länglichem Nord-Süd-Grundstück 10
18Hang-Grundstück, Carport abfangen - Seite 422
19Grundriss-Grundstück Einfamilienhaus, leichte Hanglage ca. 175m² 67
20Grundstück Aktionshäuser Erfahrungen? 34

Oben