ᐅ Kettenhaus auf 240qm Grundstück - Grundsatzfragen / Machbar?
Erstellt am: 11.11.18 09:00
Ich lese schon länger im Forum mit, nun aber mein erster Beitrag. Nach mittlerweile mehrjähriger Suche im Speckgürtel von Stuttgart haben wir kurzfristig die Möglichkeit, ein relativ kleines Grundstück am Rande eines Neubaugebietes zu kaufen.
Grundstück: 12m x 20m = 240qm; Grundflächenzahl 0,4; FH Max. 9,5m; TH Max. 6,0m; SD 35°-40°; 160.000 EUR
Das ganze wäre mit einem Kettenhaus bebaubar, zur Veranschaulichung habe ich den Lageplan beigefügt.
Um das Projekt grob abschätzen zu können, hätten wir ein paar Grundsatzfragen, vielen vielen Dank vorab schon mal, das wäre uns eine sehr große Hilfe!
1. Unser Budget liegt bei 560k, ist das für ein 135qm Haus realistisch? Wirklich ganz grob überschlagen: 170k Grundstück, 50k Keller, 300k Massivhaus vom Bauträger (2.200 x 135qm), 40k Baunebenkosten. Ist das eher großzügig oder eher knapp kalkuliert? (Puffer wäre noch vorhanden)
2. Macht es preislich einen großen Unterschied, ob wir 1,5 oder 2,5-geschossig bauen
3. Ist bei der Grundflächenzahl ein 9x10m Haus + Garage/Stellplatz 30qm machbar? Soweit ich gelesen habe, darf bei Nebenanlagen die Grundflächenzahl um 50% überschritten werden. 90qm Haus < 0,4x240 + 30qm <0,5x0,4x240
Gibt es bei Kettenhäusern kostenseitig irgendetwas ganz grundsätzliches zu beachten, was wir nicht bedacht haben?
Recht herzlichen Dank vorab!

Grundstück: 12m x 20m = 240qm; Grundflächenzahl 0,4; FH Max. 9,5m; TH Max. 6,0m; SD 35°-40°; 160.000 EUR
Das ganze wäre mit einem Kettenhaus bebaubar, zur Veranschaulichung habe ich den Lageplan beigefügt.
Um das Projekt grob abschätzen zu können, hätten wir ein paar Grundsatzfragen, vielen vielen Dank vorab schon mal, das wäre uns eine sehr große Hilfe!
1. Unser Budget liegt bei 560k, ist das für ein 135qm Haus realistisch? Wirklich ganz grob überschlagen: 170k Grundstück, 50k Keller, 300k Massivhaus vom Bauträger (2.200 x 135qm), 40k Baunebenkosten. Ist das eher großzügig oder eher knapp kalkuliert? (Puffer wäre noch vorhanden)
2. Macht es preislich einen großen Unterschied, ob wir 1,5 oder 2,5-geschossig bauen
3. Ist bei der Grundflächenzahl ein 9x10m Haus + Garage/Stellplatz 30qm machbar? Soweit ich gelesen habe, darf bei Nebenanlagen die Grundflächenzahl um 50% überschritten werden. 90qm Haus < 0,4x240 + 30qm <0,5x0,4x240
Gibt es bei Kettenhäusern kostenseitig irgendetwas ganz grundsätzliches zu beachten, was wir nicht bedacht haben?
Recht herzlichen Dank vorab!
Wir bauen derzeit auch ein Kettenhaus mit ähnlichen Vorgaben (Grundstück 14m breit, SD 30-35°, Zwischenbau min. 5m). Es gibt ein paar Punkte die wir davor nicht wussten im Bezug auf die Kettenbauweise, auch wenn manche nicht schwer zu verstehen sind.
- Die Firstrichtung ist im Vergleich zu den "Standard" Häusern von GU's/Bauträgern falsch rum.
- im EG hast du analog einer Doppelhaushälfte eine dunkle Wand, solltest du eine Garage planen sogar zwei
- im OG musst du prüfen wo überall Fenster hin dürfen. Zwei Vollgeschusse erleichtern hier vieles.
- sollte der Nachbar an deiner Grenze eine Garage planen, dann musst du deinen Kellerbau mit ihm koordinieren, sonst wirds schwieriger/teurer
Zu 1.: Ich denke das Budget könnte hinkommen bei 135qm.
Lass dich aber nicht von Angebotspreisen von GU's/Bauträgern einlullen. Unabhängig der Aufmusterungen die kommen, hat uns keiner transparent eine Anpassung an die Rahmenbedingungen aufzeigen können.
Des Weiteren, wie bookstar geschrieben hat, fehlen Küche/Außenanlage/Zwischenbau (der verpflichtend ist)
Zu 2.: Ja macht es aufgrund der Höhe. In deinem Fall kann das aber durch die schwierigeren Beleutungsmöglichkeiten im OG einfacher werden ggf. mit "kleinerem" Aufpreis.
Zu 3. kann ich nichts sagen da es bei uns der Architekt geregelt/gerechnet hat. Einzig solltest du prüfen ob der Zwischenbau bei euch 3m breit sein darf um auf 9m Hausbreite zu kommen.
Nicht das es sich zu negativ anhört. Wir sind froh uns dafür entschieden zu haben. Auch wenn der Auswahlprozess für einen Baupartners länger gedauert hat und wir am Ende bei nem Architekten gelandet sind. Im Nachhinein bzw. bis jetzt war das eine sehr gute Entscheidung.
- Die Firstrichtung ist im Vergleich zu den "Standard" Häusern von GU's/Bauträgern falsch rum.
- im EG hast du analog einer Doppelhaushälfte eine dunkle Wand, solltest du eine Garage planen sogar zwei
- im OG musst du prüfen wo überall Fenster hin dürfen. Zwei Vollgeschusse erleichtern hier vieles.
- sollte der Nachbar an deiner Grenze eine Garage planen, dann musst du deinen Kellerbau mit ihm koordinieren, sonst wirds schwieriger/teurer
Zu 1.: Ich denke das Budget könnte hinkommen bei 135qm.
Lass dich aber nicht von Angebotspreisen von GU's/Bauträgern einlullen. Unabhängig der Aufmusterungen die kommen, hat uns keiner transparent eine Anpassung an die Rahmenbedingungen aufzeigen können.
Des Weiteren, wie bookstar geschrieben hat, fehlen Küche/Außenanlage/Zwischenbau (der verpflichtend ist)
Zu 2.: Ja macht es aufgrund der Höhe. In deinem Fall kann das aber durch die schwierigeren Beleutungsmöglichkeiten im OG einfacher werden ggf. mit "kleinerem" Aufpreis.
Zu 3. kann ich nichts sagen da es bei uns der Architekt geregelt/gerechnet hat. Einzig solltest du prüfen ob der Zwischenbau bei euch 3m breit sein darf um auf 9m Hausbreite zu kommen.
Nicht das es sich zu negativ anhört. Wir sind froh uns dafür entschieden zu haben. Auch wenn der Auswahlprozess für einen Baupartners länger gedauert hat und wir am Ende bei nem Architekten gelandet sind. Im Nachhinein bzw. bis jetzt war das eine sehr gute Entscheidung.
Super, vielen Dank schon mal für eure Antworten, echt klasse hier
@Slava_S : Freut mich, dass ihr die Entscheidung nicht bereut habt. Man findet hier leider sehr sehr wenig zum Thema Kettenhaus, geschweigen denn Grundrisse oder Beispiele.
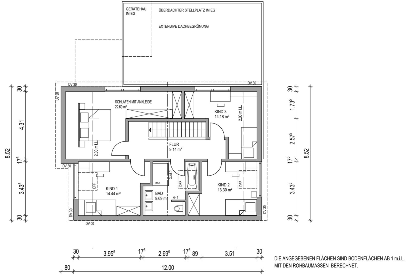
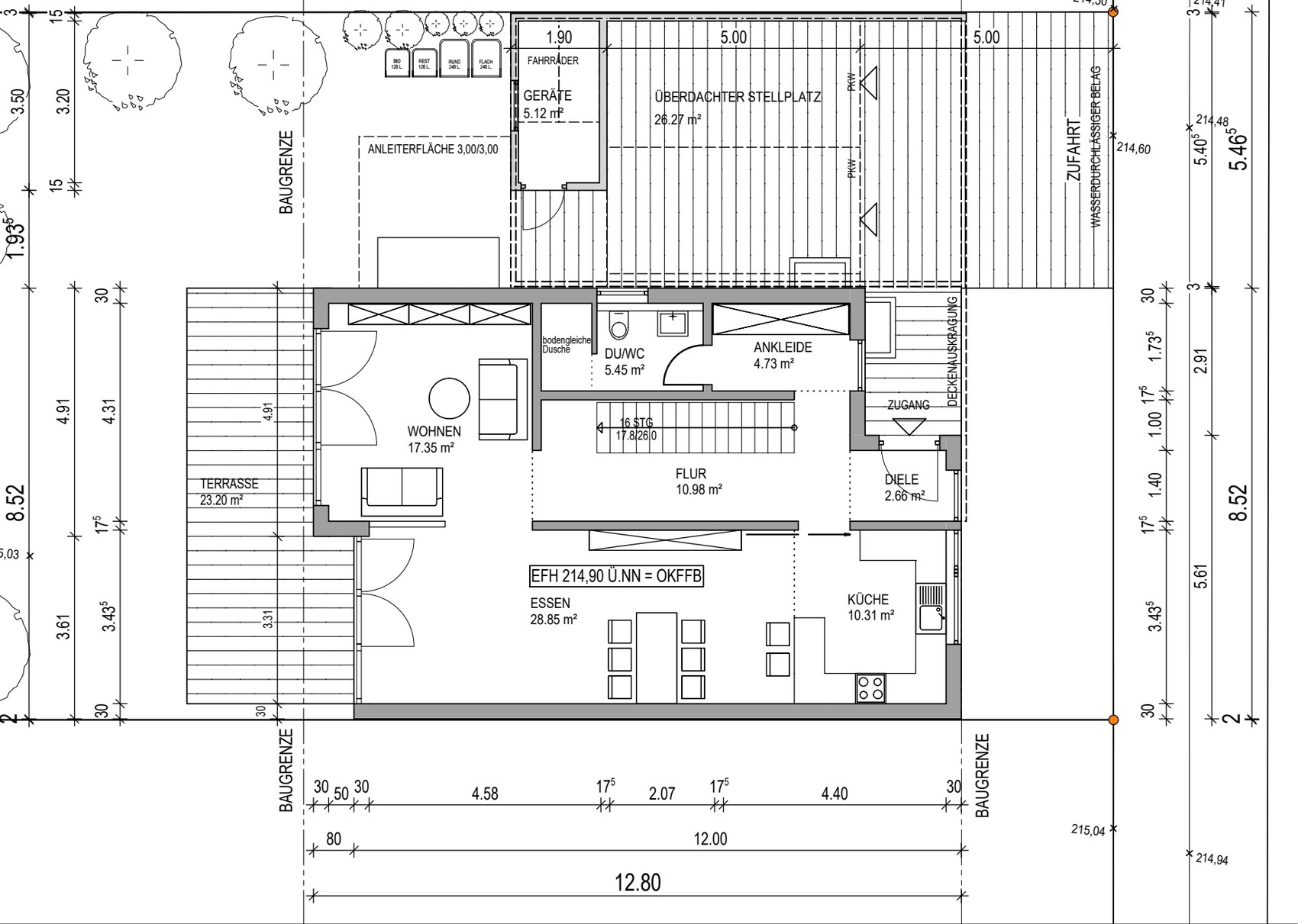
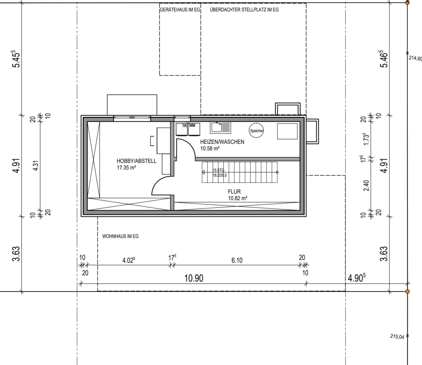
Darf ich fragen, ob du mit mal euren Grundriss oder die geplante Hausansicht zeigen kannst? Gerne auch per PN. Wir stochern gerade noch etwas im Nebel, wie das Ganze nachher aussehen könnte
"Einzig solltest du prüfen ob der Zwischenbau bei euch 3m breit sein darf um auf 9m Hausbreite zu kommen." -> Was meinst du mit "Zwischenbau"? Idee war eigentlich, 3m Garage + 9m Haus = 12 Grundstücksbreite. Habe das kurz mal skizziert und beigefügt.
Das Nachbargrundstück ist bereits bebaut und die Garage grenzt direkt an unser Grundstück. Inwiefern ist das nun ein Problem, wenn wir einen Keller unter unserem Haus haben wollen?
P.S. Die Skizze ist natürlich weder maßstabsgetreu, noch 100% korrekt

@Slava_S : Freut mich, dass ihr die Entscheidung nicht bereut habt. Man findet hier leider sehr sehr wenig zum Thema Kettenhaus, geschweigen denn Grundrisse oder Beispiele.
Darf ich fragen, ob du mit mal euren Grundriss oder die geplante Hausansicht zeigen kannst? Gerne auch per PN. Wir stochern gerade noch etwas im Nebel, wie das Ganze nachher aussehen könnte
"Einzig solltest du prüfen ob der Zwischenbau bei euch 3m breit sein darf um auf 9m Hausbreite zu kommen." -> Was meinst du mit "Zwischenbau"? Idee war eigentlich, 3m Garage + 9m Haus = 12 Grundstücksbreite. Habe das kurz mal skizziert und beigefügt.
Das Nachbargrundstück ist bereits bebaut und die Garage grenzt direkt an unser Grundstück. Inwiefern ist das nun ein Problem, wenn wir einen Keller unter unserem Haus haben wollen?
P.S. Die Skizze ist natürlich weder maßstabsgetreu, noch 100% korrekt
Mbk84 schrieb:
Das Nachbargrundstück ist bereits bebaut und die Garage grenzt direkt an unser Grundstück. Inwiefern ist das nun ein Problem, wenn wir einen Keller unter unserem Haus haben wollen?Weil du direkt neben dem Fundament der Garage ein großes Loch gräbst.
hanse987 schrieb:
Weil du direkt neben dem Fundament der Garage ein großes Loch gräbst.Ja, das ist mir klar. Heißt besonders abstützen/sichern = teurer? Oder ist damit ein Keller praktisch ausgeschlossen?
Ähnliche Themen