Vorgehen für Einfamilienhaus Neubau bei vorhandenem Grundstück

4,90 Stern(e) 11 Votes
Zuletzt aktualisiert 04.10.2025
Sie befinden sich auf der Seite 18 der Diskussion zum Thema: Vorgehen für Einfamilienhaus Neubau bei vorhandenem Grundstück
>> Zum 1. Beitrag <<

D

Dachshund90

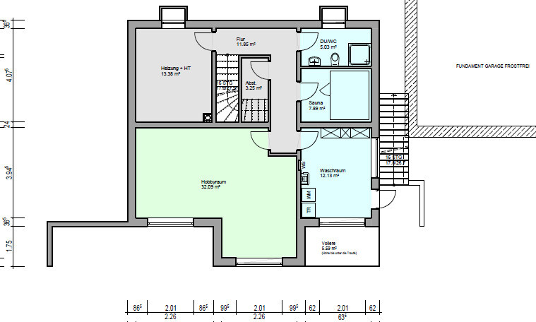
Hallo zusammen,

hier nochmal ein erster Entwurf, wir haben selbst schon noch einige Änderungswünsche, allerdings würde mich trotzdem grundsätzlich eure Meinung und eure Verbesserungsvorschläge interessieren.
Schon mal grundsätzlich, das Arbeitszimmer wird aus dem EG in den Keller wandern, der Hobbyraum dafür kleiner, der Wohnbereich im EG dafür größer

Grundsätzlich wird uns aufgrund der Anordnung Garage+Haus der Raum im Südwesten zu knapp. Terrasse nicht sehr breit und Abstand zur Grenze für uns zu gering.

Danke für eure Kommentare

Mehrstöckiges Haus am grünen Hang mit Fenstern; Nordostansicht.


Nordwestansicht eines modernen Hauses mit Garage links, Eingangstür, Fenster, Flachdach.


Moderne Einfamilienhaus-Südwestansicht mit Terrasse, Balkon und einer Person am Eingang.


Moderne zweigeschossige Villa mit Balkon, Terrasse, Treppenaufgang und Fenstern, Südostansicht
 
S

Sunshine387

Ich würde die beiden Zimmer im Wohnbereich bzw. Arbeitszimmer ebenfalls bodentief ausführen. Das lässt viel mehr Licht durch und sieht moderner aus. Und auch von außen sieht es dann deutlich besser aus als diese Mini-Fenster.
 
Zuletzt aktualisiert 04.10.2025
Im Forum Bauplanung gibt es 5061 Themen mit insgesamt 100646 Beiträgen


Ähnliche Themen zu Vorgehen für Einfamilienhaus Neubau bei vorhandenem Grundstück
Nr.ErgebnisBeiträge
1Entwurf / Verbesserung Einfamilienhaus 150-175m² mit Walmdach und Keller 39
2Erster Entwurf Einfamilienhaus 150m² mit Keller 38
3Grundriss-Entwurf: Einfamilienhaus; mit Keller; 800qm Grundstück - Seite 210
4Grundriss-Entwurf: Einfamilienhaus mit Keller; 560qm Grundstück - Seite 365
5Entwurf EFH, 2 Vollgeschosse, Satteldach, kein Keller, Doppelgarage - Seite 231
6Haus ohne Garage und Keller? Ausbau Dachboden? Fresswarze? - Seite 1285
7Grundriss Einfamilienhaus 1,5 + Keller / 1. Vorentwurf - Vorschläge? 55
8Erster Grundriss L-Form-Haus (190m²) mit Einlieger (80m²), Keller 15
9Grundrissplanung Einfamilienhaus mit Keller in Hanglage 44
10Einfamilienhaus Süd-Hang Grundriss ca. 160m²- mit Keller und Garage - Seite 234
11Grundriss für Einfamilienhaus 210 m² + Keller - Eure Meinungen 16
12Einfamilienhaus ca. 155qm + ELW40qm. Erster Entwurf. Verbesserungsvorschläge? 52
13Grundrissplanung Bungalow mit Keller - 140qm - leichter Hang - Seite 1290
14Grundriss Bungalow 160-170qm mit Keller - Seite 15175
15Grundriss Einfamilienhaus ~165m² plus Keller - Seite 7165
16Klassisches Einfamilienhaus 200qm (plus Keller) Tipps? 32
17Erste Grundrissplanung auf Karopapier: Hang, Keller + 2 Geschosse. - Seite 1080
18Grundriss-Review Einfamilienhaus mit Keller auf leichter Hanglage - Seite 235
19Grundriss Einfamilienhaus mit Keller, 2 geschossig, Doppelgarage ca. 290qm + NF - Seite 211
20Optimierung Grundriss Einfamilienhaus mit 180qm Satteldach ohne Keller 17

Oben