
Pinky0301
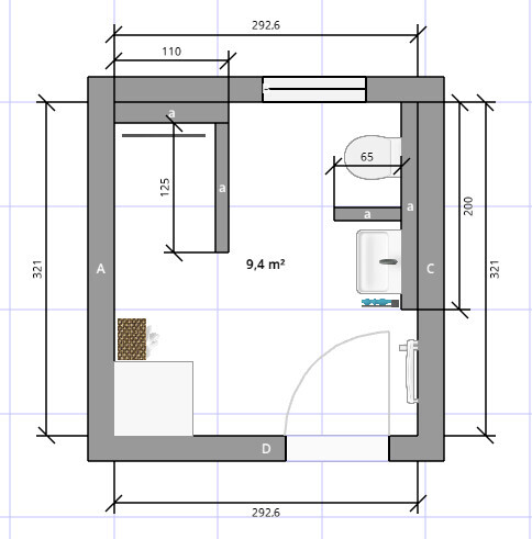
Würde auch versuchen, auf eine Duschabtrennung aus Glas zu verzichten. Wenn der Mieter sie nicht ordentlich pflegt, ist die ganz schnell versaut. Statt 100cm Breite reichen auch 90 oder 80, daneben dann eine Mauer und die ein wenig länger nach unten. Also Dusche begehbar von unten. Zwischen Mauer und Wand kann dann einfach ein Duschvorhang angebracht werden.