Neubauplanung - Einfamilienhaus 160 qm ohne Keller - Grundriss, Kosten usw..

4,60 Stern(e) 5 Votes
C

ChrisBr

Moin Forenmitglieder!

Wir sind eine 4köpfige Familie (Eltern, 2 kleine Kinder), die sich jetzt seit längerem mit dem Neubau eines Einfamilienhaus befassen. Wir bauen in NRW, PLZ Bereich 34439 , das liegt unweit von Paderborn...

Unser fest reserviertes Grundstück misst 880qm und liegt eben, keine Hanglage.
Wir sind mit einem selbst erstellten Entwurf, dem wir dem Grundstück angepasst haben zum Architekten, der die Zeichnung fast eins zu eins übernommen hat. Im ursprünglichen Wunschdenken war noch ein Kellergeschoss mit eingeplant - nach überreichen der Kostenkalkulation und weiteren "dafür und dagegen" haben wir uns entschlossen, oberirdisch etwas breiter zu werden und den Keller ad acta zu legen.

Das Haus hat nun eine Grundfläche von 9,11*10,31 sowie einen Anbau mit Windfang, Hauswirtschaftsraum und Doppelgarage.

Uns war wichtig, im EG noch einen "freien" Raum (hier Gästezimmer) zu haben, deshalb musste ohne Keller nun ein Platz für den Hauswirtschaftsraum gefunden werden - da ich gleichzeitig die Möglichkeit haben wollte, aus der Garage direkt ins Haus zu kommen - entstand noch ein Windfang.

Das Haus misst nun (incl. Anbauten) 165qm Wohnfläche (605cbm umbauter Raum im Haus, ca. 218 cbm im Anbau). Gebaut wird nach letzten Stand in Massivbauweise mit 24cm Unipor T14 und 16cm WDV (PS20 WLG035). Außenputz mit Anstrich, keine Klinker.

Wir haben unseren klaren Favoriten für die Bauausführung, holen uns legitimerweise aber noch Vergleichsangebote ein. Als grobe Richtung liegt das Haus Schlüsselfertig bei 230k, der Anbau (Windfang, Hauswirtschaftsraum, Garage) bei 50k.., dazu eigene Ausbaukosten für Küche, Bodenbeläge, Ofen, Innenausstattung und Ausbau Spitzboden (35k), das Grundstück (35k - ja, auf dem Kaff ist es noch günstig) sowie die Außenanlagen (10k) und Baunebenkosten (5k). Alles in allem stehen da erst mal 365k im Raum an denen wir noch so gut es geht mit der Muskelhypothek feilen müssen

Dies zum ersten Angebot, zum Vergleich kommen in den folgenden Tagen noch 2 Angeboten von Massivbauern und 2 von Fertighausbauern rein. Danach wird erst mal weiter sondiert.

Technik ist übrigens Gasbrennwert, Fußbodenheizung sowie im Wohnzimmer ein Scheitholzofen. An zwei Solarplatten für Warmwasser komm ich nicht mehr vorbei, meinte mein Architekt (5% des Energiebedarfs muss aus Solar kommen ..)

Erstmal soweit... die Grundrisse und Ansichten häng ich mal an. Anregungen und Meinungen sind gern gehört.

Edit: Habe nachträglich noch Fotos des Grundstücks angehängt, die später noch einmal gepostet sind.

Grundriss eines Einfamilienhauses mit Doppelgarage, Küche, Wohn- und Essbereich, Gästezimmer.


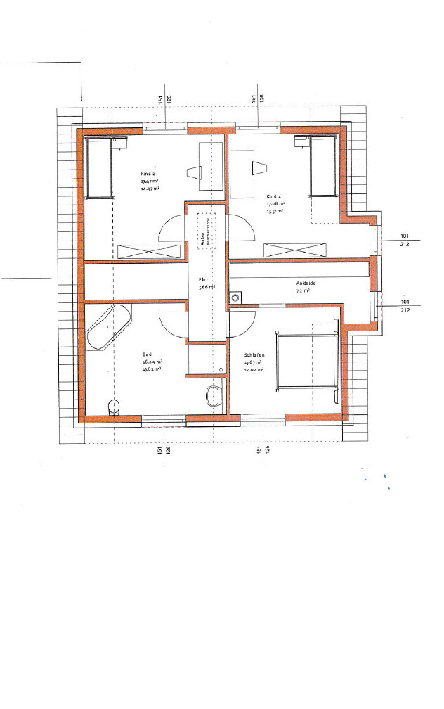
Grundriss des Obergeschosses: zwei Kinderzimmer, Bad, Schlafen, Ankleide, Flur


Skizze eines Hauses mit Garage: zweigeschossig, Satteldach, Fensterfronten.


Skizzenhafte Linienzeichnung eines Hauses mit Satteldach, Fensterfronten und Anbau


Luftaufnahme eines Geländes mit überlappenden Rechtecken als Skizze auf weißer Fläche.


Grünes Grundstück mit Einfamilienhaus, Solarzellen und Windkraftanlage im Hintergrund.


Grünes Grundstück mit Zufahrtsweg und angrenzenden Häusern


Ausschnitt eines ruhigen Vororts: Rasen, Hecken, Bäume und ein Wohnhaus am Straßenrand
 
Zuletzt bearbeitet:
D

Doc.Schnaggls

Hallo ChrisBr,

Willkommen im Forum!

Alles in Allem ein wirklich schöner Grundriss.

Ich an Eurer Stelle würde mir noch zwei Sachen überlegen:

1. Muss die Trennwand zwischen Flur und Wohnzimmer wirklich sein? Ich würde sie wahrscheinlich weglassen.

2. Badezimmer: Die Aufteilung überzeugt mich nicht wirklich - die Dusche dürfte so sehr dunkel sein (gemauerte Seitenwänden). Da würde ich noch bisschen mit den Sanitärobjekten rumspielen.

Baunebenkosten mit TEUR 5 ist deutlich zu wenig. Hier im Forum rechnet man mit einem Wert von ca. TEUR 30 - 40...

Frag da bitte bei Deinem Architekt noch mal nach.

Grüße,

Dirk
 
H

hbf12

Du solltest hier im Forum mal nach Baunebenkosten suchen und überlegen was davon in deinen Beträgen schon enthalten ist, oder dich von deinen angenommenen 5k verabschieden.

Zum Plan.

ich finde die Garderobe zu klein für 4 Personen, es sei denn in der Diele ist auch noch was vorgesehen.
Im Gäste-WC finde ich es unschön dass ich mich an der Dusche vorbeiquetschen muss um ans Klo/Waschbecken zu kommen.
Ich weiß nicht ob die Ankleide so funktioniert, ohne Maße, aber der Schrank sieht nicht so aus als ob er 60cm tief wäre.
Die Anordnung der Sachen im Bad finde ich auch nicht gelungen, ganz besonders das Waschbecken.
 
C

ChrisBr

Hallo- danke fürs Willkommen und danke für die schnellen Rückmeldungen.

Ich habe eine große Gesamtkalkulation erstellt. Alles was "offiziell" zu den Baunebenkosten gehört habe ich tlw. wohl schon an anderen Stellen untergebracht. In den 5 k enthalten sind "nur noch" Bauberufsgenossenschaft, Bauherrenhaftpflicht, Gebäudeeinmessung Kreisverwaltung, Gebühr der Baugenehmigung (67BauO), Baustrom und Bauwasser sowie Abnahme vom Schornsteinfeger für den Schornstein.

Die Trennwand zwischen Wohnzimmer und Flur war bewusst so gestaltet, damit man nicht von der Eingangstür direkt aufs Sofa schauen kann. Um den Raum "bei Bedarf" größer zu bekommen, haben wir uns für die Schiebetür zwischen Küche und Wohnen entschieden, die je nach "Aufräumzustand" der Küche auch offen gelassen werden könnte.

An den sanitären Anlagen wird wohl in der Tat wohl noch etwas gedreht.. dabei wird sich noch mal Raum für Raum vorgenommen. Auch die Küchenanordnung stimmt so nicht nicht, wie im Entwurf.

Die Treppenanlage wird eine Wangentreppe, die nach unten verkleidet ist und mittels Tür noch einen Vorrats/Stauraum bietet. Der Windfang mit Garderobe wäre wirklich nur für "Klamotten"...
 
D

Doc.Schnaggls

Hallo,

der Hinweis auf die Wand zwischen Flur und Wohnzimmer kam weniger wegen der Raumgröße, sondern vielmehr, weil ich befürchte, dass der Flur sehr, sehr dunkel werden dürfte.

Hast Du Dir die Liste zu den Baunebenkosten hier im Forum mal angeschaut und geprüft, ob Du alles berücksichtigt hast?

Grüße,

Dirk
 
V

Verena84

Hallo,
mir fallen auch ein paar Punkte auf. z.b. die Aufteilung mit der Dusch im Gäste wo würde ich noch mal überdenken. Und irgendwie ist in eurem Wohnzimmer in der Mitte ein verlorener Raum. Und auch das man im oberen Bad direkt wenn man zur Tür rein kommt auf die Toilette schaut. Wäre auch nicht so meins.

Aber sonst im großen und ganzen eine schöne Aufteilung.
 
Zuletzt aktualisiert 14.12.2025
Im Forum Grundrissplanung / Grundstücksplanung gibt es 2551 Themen mit insgesamt 88463 Beiträgen


Ähnliche Themen zu Neubauplanung - Einfamilienhaus 160 qm ohne Keller - Grundriss, Kosten usw..
Nr.ErgebnisBeiträge
1Erster Entwurf Einfamilienhaus 150m² mit Keller 38
2Planung Grundriss / Erster Entwurf für erstes Feedback 32
3Neubau Einfamilienhaus ca. 190m², Doppelgarage ohne Keller, Erstentwurf 21
4Entwurf Einfamilienhaus mit Garage/Carport - bitte um Bewertung - Seite 222
5Grundriss-Entwurf: Einfamilienhaus mit Keller; 560qm Grundstück - Seite 365
6Einfamilienhaus 160m2 mit Keller, 500m2 Grundstück 108
7Grundriss-Entwurf: Einfamilienhaus; mit Keller; 800qm Grundstück - Seite 210
8Entwurf / Verbesserung Einfamilienhaus 150-175m² mit Walmdach und Keller 39
9Einfamilienhaus 220qm mit Keller auf 700qm Grundstück 41
10Bebauung Grundstück - Keller ja oder nein? 75
11Welches Haus können wir uns leisten? Grundstück besteht - Seite 220
12Unser Grundriss-Entwurf, eure Meinungen 20
13Grundriss Einfamilienhaus, ca. 200qm ohne Keller - Einschätzung - Seite 19172
14Wohnzimmer Grundrissplanungs-Ideen? - Seite 239
15Haus ohne Garage und Keller? Ausbau Dachboden? Fresswarze? - Seite 1285
16Haus-Entwurf Einfamilienhaus - Zukünftig als Zweifamilienhaus trennbar - Seite 572
17Grundrissentwurf Einfamilienhaus mit Keller und Doppelgarage auf 540qm 26
18Besonderer Grundriss oder langweilig mit Keller? - Seite 220
19Grundriss Einfamilienhaus mit Keller, 150qm, nur eingeschossig erlaubt - Seite 8115
20Entwurf Grundriss: Planung Erdgeschoss - Seite 227

Oben