Neubau Einfamilienhaus Hanggrundstück

4,80 Stern(e) 12 Votes
Zuletzt aktualisiert 21.11.2025
Sie befinden sich auf der Seite 19 der Diskussion zum Thema: Neubau Einfamilienhaus Hanggrundstück
>> Zum 1. Beitrag <<

B

BauherrFranken

Ich hatte die Seite übers iPad angerufen, da hab ich keine Höhenprofile gefunden. Jetzt weiß ich warum. Werd’s noch mal mit dem Notebook probieren.
 
X

-XIII-

Allgemein gefragt: Was ist eigentlich so schlimm an einem Eingang im Kellerbereich ohne Außentreppe?
Schlimm ist das falsche Wort aber bei unsrem Hanghaus-Projekt haben wir uns beispielsweise gegen nen Kellereingang entschieden, weil entweder der Eingangsbereich dunkel wird oder einen erheblichen Teil der Schokoladenseite des Kellers in Beschlag nimmt, den man besser anderweitig nützen könnte. Außerdem - wie schon gesagt - ist der Eingangsbereich dann weiter vom Wohnbereich entfernt und man muss immer laufen, wenn man jemanden empfangen will.
 
B

BauherrFranken

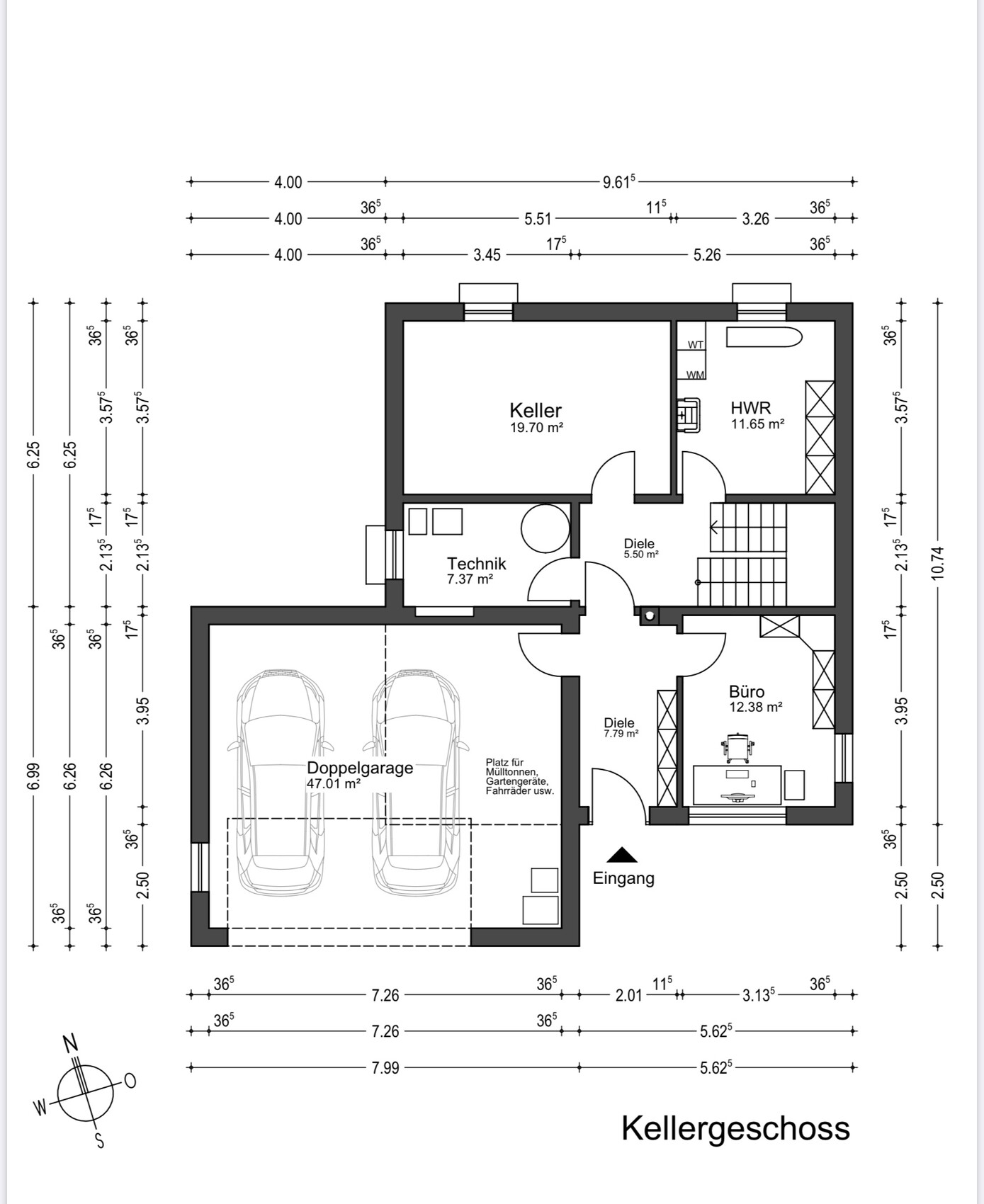
Der GU hat auf Basis einer gewünschten Nord/Süd-Ausrichtung die Pläne überarbeitet. Hier kommt es auf eine Voranfrage beim Bauamt an. Größe und Kosten wurden reduziert.

Grundriss Kellergeschoss mit Doppelgarage, Technik, Keller, Büro, HWR, Diele, Eingang.


Westansicht eines zweigeschossigen Hauses mit Satteldach, Terrasse und Kellergeschoss am Hang.


Zweigeschossiges Haus mit Garage; Süd- und Nordansicht, Baum daneben.


Ostansicht eines zweigeschossigen Hauses auf Hang mit grauem Anbau links und Baum rechts.


Grundriss Obergeschoss: Schlafzimmer, Ankleide, Bad, Flur, Kind 1, Kind 2, Kinderbad


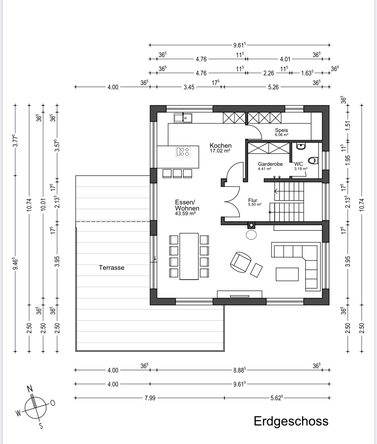
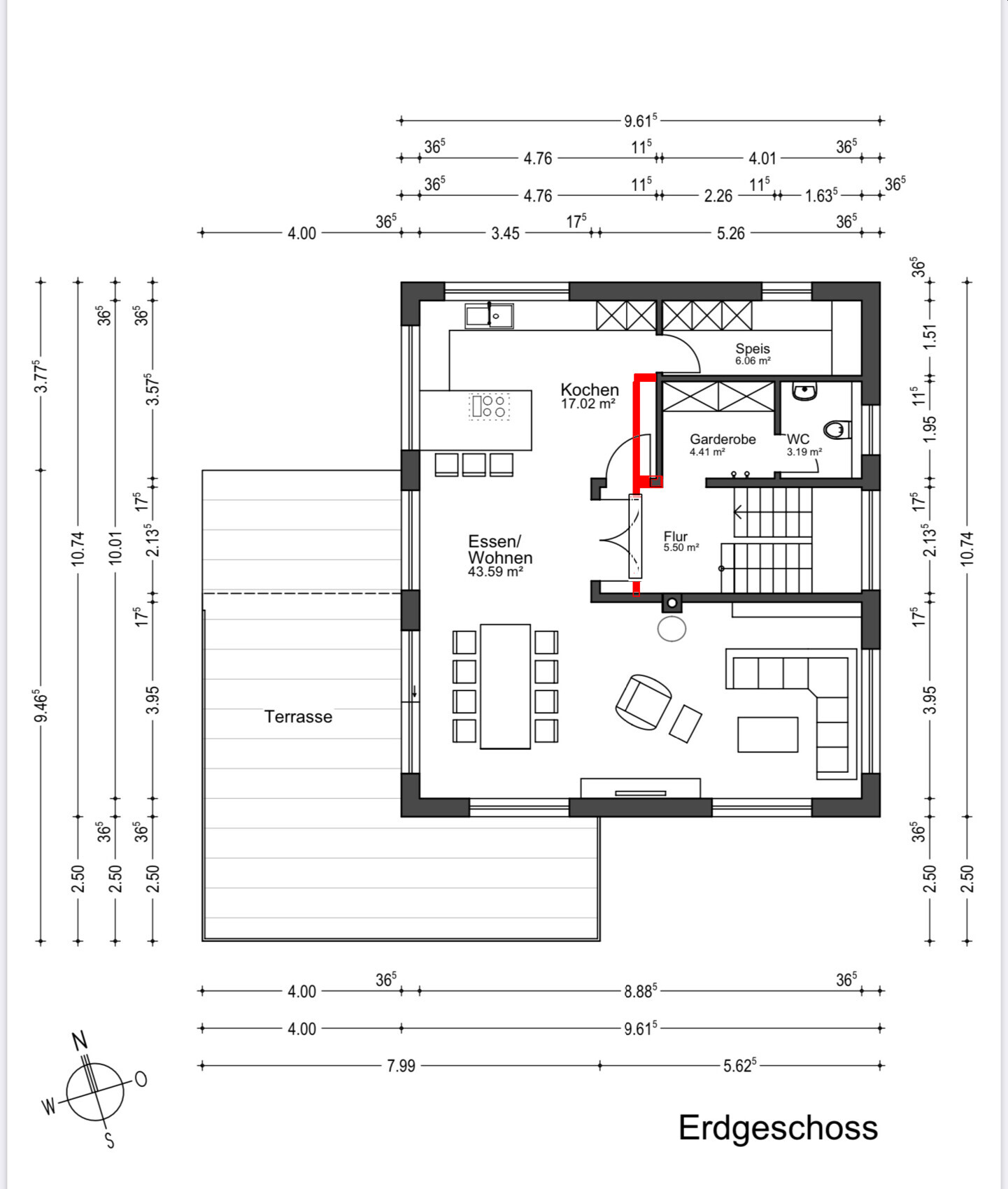
Grundriss Erdgeschoss: offener Wohn-Essbereich, Küche, Speis, Garderobe, WC, Flur, Terrasse.
 
kbt09

kbt09

Das sieht auf jeden Fall besser aus und zeigt mal wieder, dass eine gerade Treppe nicht immer gut geeignet ist.

Zur Küche/Essen .. ich würde auf den zweiten Eingang in die Küche verzichten, stattdessen die Wand noch etwas Richtung Flur durchgehend setzen und dort eine 2-flügliges Türelement einsetzen bzw. im Zweifel planunten eher nur ein Festglas oder so und nach planoben eine Schiebetür, die in der Wand läuft.

Küche dann mehr mit echter Insel planen statt der G-Form. Dann kann man evtl. sogar aus der Küche noch einen Gartenaustritt planlinks machen.


Erdgeschoss-Grundriss: Küche, Essen/Wohnen, Speis, Garderobe, WC, Flur; Terrasse
 
kaho674

kaho674

Der GU hat auf Basis einer gewünschten Nord/Süd-Ausrichtung die Pläne überarbeitet. Hier kommt es auf eine Voranfrage beim Bauamt an. Größe und Kosten wurden reduziert.
Mmh, hat er was gesagt, wie die Chancen dafür stehen?

Ich find es auch eine Verbesserung. Mir würde aber komplett die Gartenanbindung fehlen. Deswegen käme das für mich nicht in Frage. Aber Euch scheint das ja weniger wichtig zu sein - von daher find ich's mit Kerstins (@kbt09) Änderungen ganz gut.

Im OG bin ich teilweise skeptisch, was die 2m Linie betrifft. Im Bad kannst Du m.E. nicht auf dem WC Platz nehmen, ohn Dir den Hinterkopf anzuschlagen. Auch find ich die Lösung, immer erst durch Schlafzimmer und Ankleide zu müssen, um dann auf's WC zu können - extrem nervig. Außerdem find ich die Kinderzimmer so unnötig klein.
Ach so - und den Wäscheschacht tät ich rein machen.
 
Zuletzt bearbeitet:
H

haydee

OG würde das Kinderbad streichen, dafür die Kinderzimmer etwas größer.

Gerade im Bad und im Schlafzimmer könnte die 2m Linie Probleme bereiten.

Wäscheabwurfschacht einplanen
 
Zuletzt aktualisiert 21.11.2025
Im Forum Grundrissplanung / Grundstücksplanung gibt es 2535 Themen mit insgesamt 87978 Beiträgen


Ähnliche Themen zu Neubau Einfamilienhaus Hanggrundstück
Nr.ErgebnisBeiträge
1Größe vom Schlafzimmer und Kinderzimmer - Seite 238
2Kinderzimmer und Schlafzimmer - Welche Größe ist zu empfehlen? 56
3Schallschutztür Schlafzimmer / Kinderzimmer 23
4Grundrissplanung Hanghaus mit 5 Kinderzimmer - Seite 26370
5Echtholz in Neubau Essen, Wohnen, Küche und Flur 10
6Grundrissplanung Einfamilienhaus (Stadtvilla) ca.140m² (3 Kinderzimmer) 42
7Grundriss Bungalow 150qm geschlossene Küche, überdachte Terrasse 40
8Einfamilienhaus ~190qm, drei Kinderzimmer, ohne Keller - Feedback wäre mega - Seite 219
9Neubau Einfamilienhaus 160-170qm, 3 Kinderzimmer 39
10Grundriss 3 Kinderzimmer Einfamilienhaus - Potenziale? 43
11Grundriss Einfamilienhaus 155m², ohne Keller, 3 Kinderzimmer, 1 Büro 38
12Grundriss (Einfamilienhaus / 1,5 Geschosse / ca. 170m²) 10
13Grundriss, Ideen zur räumlichen Trennung innerhalb der Küche 23
14Wohnen/Essen/Küche: Wie wohnt ihr oder werdet ihr wohnen? - Seite 852
15Ankleide/Schlafzimmer Problem - Grundrissdiskussion 25
16Einteilung Grundriss Allraum Küche Wohnen Essen - Seite 558
17Holzparkett im Erdgeschoss und auch in der Küche zu empfehlen? 26
18Einfamilienhaus mit 156 m² Grundfläche (2 Kinderzimmer + Homeoffice) 21
19Bestandshaus umbauen - Mehr Platz für Küche und Bad - Ideen? 20
20Standort Küche und Wohnzimmer 55

Oben