Neubau Einfamilienhaus Hanggrundstück

4,80 Stern(e) 12 Votes
Zuletzt aktualisiert 24.11.2025
Sie befinden sich auf der Seite 17 der Diskussion zum Thema: Neubau Einfamilienhaus Hanggrundstück
>> Zum 1. Beitrag <<

M

michert

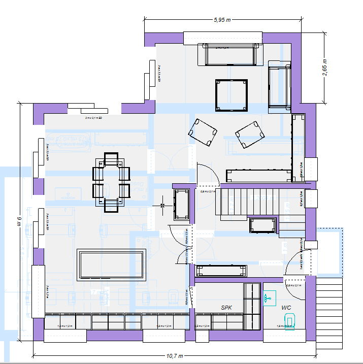
Hab mal wieder bissl gespielt ohne Anspruch auf Sinnhaftigkeit mangels Geldbeutel.
Außerdem muss der geneigte Leser etwas Fantasie mitbringen, da die teils schwierige Topographie nicht die Stärke meines Uraltprogrammes ist. Treppen wie immer keine Podeste. Der "Vorgarten" müsste noch reichlich gepflastert werden, um alle Wege zu erschließen. Aufgrund der Neigung streikt mein Programm da.

Anhang anzeigen 42575
Anhang anzeigen 42577
Anhang anzeigen 42576
Anhang anzeigen 42574
Anhang anzeigen 42573


Das ganze hinge allerdings davon ab, ob das Elternbad zu entwässern geht. Da müsste sich ein Fachmann den Kopf zerbrechen, ob der in der Decke bis in die Flurwand kommt o
Der Fachmann müsste sich nicht nur wegen des Elternbades den Kopf zerbrechen. Die Küche wird in einen Bodeneinlauf der Garage entwässert? Das Kinderbad soll wohin entwässert werden?
 
Z

Zaba12

Ich sag mal: jein.
Der Oberboden ist eigentlich kein Abfall, nach Bundesbodenschutzverordnung darf man den auch gar nicht entsorgen, sondern muss ihn einer Wiederverwendung zuführen. Mancherorts hat man Glück und stößt auf eine dicke, für den Ackerbau geeignete Oberbodenschicht, die entweder ein Landwirt oder ein benachbarter Bauherr für seinen Garten gerne übernimmt. Ganz legal.

Wenn darunter eine Lehmschicht ist, wird die zwar meistens entsorgt, sie könnte aber auch als Rohstoff für ein Ziegel- oder Klinkerwerk dienen.

Und wenn sich darunter noch eine Kiesschicht befindet, kann diese natürlich auch an anderen Bauvorhaben weiterverwendet werden.

In obigen Fällen wäre der Aushub kein Abfall, sondern ein Produkt, und wird somit nicht illegal entsorgt, sondern weitergenutzt.

Die meisten Aushubmassen - zumindest in unserer Region - sind aber qualitativ nicht geeignet bzw. zu sehr miteinander vermischt, um weiterverwendet zu werden. Wollte hier nur mal klarstellen, dass nicht alles, was ein Bagger auslöffelt, immer nur auf die Deponie muss.
Da gebe ich dir Recht die 20cm Mutterboden können natürlich seitlich gelagert werden. Beim TE ist es ja kein Neubaugebiet. Bei uns wurde bei der Erschließung durch den Tiefbauer alles vermischt und nur der Blödsinn übergelassen.
 
H

haydee

Stimmt der Winter ist nicht repräsentativ. Die Skilifte liefen fast gar nicht. Letztes Jahr war es auch nicht mehr.
Eis und Schnee ist hier normal und das Konzept Außentreppe auch.
Ja dann geht es an den Tagen durch die Garage oder Keller. Ist doch meist sowieso die Familie und enge Freunde,
Um an 20 Tagen im Jahr ein Problem mit der Außentreppe zu umgehen läuft man 340 Tage eine Innentreppe.
 
Zuletzt aktualisiert 24.11.2025
Im Forum Grundrissplanung / Grundstücksplanung gibt es 2536 Themen mit insgesamt 88011 Beiträgen


Ähnliche Themen zu Neubau Einfamilienhaus Hanggrundstück
Nr.ErgebnisBeiträge
1Einhaltung der Baugrenzen bei Außentreppe 13
2Garage direkt an Einfamilienhaus. Fundament ausreichend? 20
3Hausfinanzierung - Haus, Garage und Bodenplatte ca. 290.000 EUR 11
4Technikraum in Garage einbauen? Ist dies möglich? 35
5Beheizung Garage. Was ist die beste / günstigste Lösung? 10
6Wo stellen wir Haus und Garage hin? 10
7Kostenschätzung Einfamilienhaus mit Garage 11
8Bungalow mit 140qm und Garage im Grundriss 13
9Erstes Angebot, 157m2 mit Keller, KFW 70, Garage 14
10Grundrissentwurf eines Passivhauses 170m² mit Garage - Seite 218
11Garage: Gestaltungsmöglichkeit des Daches, Erscheinungsbild 14
12Hausausrichtung / Hauseingang und Garage - Seite 214
13Begehbare Garage (Terrasse) 11
14Planung optimale Anordnung Haus, Garage und Einfahrt 13
15Grundriss mit Garage auf Grundstück realisierbar? 29
16Entwurf Einfamilienhaus mit Garage/Carport - bitte um Bewertung 22
17Wo günstige Garage beziehen? - Seite 211
18Regenspeicher in der Garage? 11
19Einfamilienhaus mit Einliegerwohnung & Garage 14
20Garage - Bauantrag - Verwirrung - Seite 636

Oben