So nehmen wir ordentlich Fläche von der Terrasse weg...
WIr diskutieren das mal.
Ich hätte noch eine andere Idee.. weiter unten…
Der Plan wäre, dass wir die restliche Dachfläche in Richtung Süden nehmen. Ich denke mal du fragst, weil es zu wenig Fläche ist?
Nein, nur so. Sind ja doch etwas viel Fenster da oben.
Das ist eben so eine Sache und sicherlich ein kontroverses Element. An sich finden wir die Idee super mit der Glaswand zur Garderobe hin. Wir dachten uns, dass wir hier mit einem schönen Vorhang bei Bedarf gegenarbeiten können.
Vorhang?
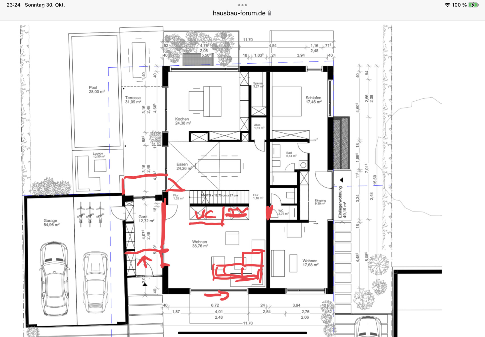
Also, auf die Garderobe schauen, wenn man abends im WZ relaxt, ist keine gute Idee.
Warum sollte man denn auf seine Winterschuhe schauen wollen? Oder den gelben Sack oder Getränkekiste, der/die dort zwischenparkt.
Oder warum sollten der Freundinnen-Besuch Deiner Frau abends beim Verabschieden Dich sehen wollen, wie Du bei Chips auf dem sofa vorm TV rumgammelst?! …
Es gibt eigentlich keine Situation, die toll ist, wenn man in den Vorraum des Hauses schaut.
Ja, diese Nuss müssen wir noch knacken, eventuell mit entsprechenden Türen im OG.
Hmm… wenn das für Euch noch eine Nuss ist, dann sollte da eine Trennwand sein. Das wäre machbar.
Ehrlich gesagt haben wir das noch nicht final entschieden. Wir überlegen derzeit, ob wir einen Interior Designer für gewisse Dinge hinzuziehen.
Hm!
Mal Hand aufs Herz: meinst Du, Innendesigner zeigen Dir auf, wie Du am besten an deinem TV sitzen wirst? Nach ihm wird es überhaupt keinen geben

Kleiner Scherz.
Aber mal ehrlich: ein Haus macht schon einen etwas anderen Tagesablauf, gerade auch im Bezug zu Komfort und Garten- also Outdooranbindung.
Aber es macht keinen anderen Menschen aus Dir.
Wenn Du gern auf dem Sofa gammelst, dann wirst Du es auch im neuen Haus genießen wollen. Deshalb mag der Innenarchitekt zwar die Farbe und den Stil des Sofas vorschlagen können, aber nicht seine Existenz in Frage stellen. Und allgemeine Lebenserfahrung, Orthopädie und Medizin würden Dir halt zum Gegenüber von Sitzmöbel und TV raten.
Mich hat jetzt eigentlich auch Deine Aussage bezüglich der gläsernen Garderobe irritiert. Ich erinnere mich, dass Ihr noch sehr jung seid und die Vorstellungskraft nicht so da ist ?!
Aber egal.
Mein Vorschlag: oben sollte eine Trennwand zwischen Treppe und Flur. Ich glaube, das würde von unten auch besser aussehen. Da gibt es mM zwei Möglichkeiten.
Außerdem würde ich das WZ wieder mit der Küche tauschen. Ihr könnt doch prima durch das Esszimmer zur Terrasse gehen, wenn Ihr dort sitzen wollt. Oder durch die kurze Garderobenseite. Ich könnte mir den Blick auf den Pool besser vom WZ aus vorstellen, die Lage Küche/Eingang ist auch flüssiger. WZ hat mehr Privatsphäre und ist weniger Verkehrsfläche. Das steht dann der Küche zu. Außerdem könnte AB auch durch die Küche besser genutzt werden wie auch die direktere Lage zur Treppe.
Wenn ich Zeit habe, dann zeichne ich das mal mit der Wand und dem Wechsel auf.