Neubau Einfamilienhaus - Begleitet uns dabei!

4,90 Stern(e) 15 Votes
Zuletzt aktualisiert 23.11.2025
Sie befinden sich auf der Seite 40 der Diskussion zum Thema: Neubau Einfamilienhaus - Begleitet uns dabei!
>> Zum 1. Beitrag <<

Y

ypg

G

gregman22

Da hätte ich mir eher einen eingeschobenen Kubus oder so etwas gewünscht, um auch im OG großzügige Räume mit einem offenem Wohngefühl zu haben. Das ist ein aufgeblasenes Flair mit seltsamer Ausrichtung.
Hi @Myrna_Loy , wärst du so nett und würdest mir deinen Vorschlag zwecks "eingeschobenem" Kubus noch einmal näher erläutern? Hast du ein Beispiel, wie das bei uns aussehen könnte? Ich kann mir da bei unserem jetzigen Bauvorhaben nicht äußerst viel drunter vorstellen. Dankesehr!
 
kati1337

kati1337

Wenn Du keine Gedankenkorrenturen möchtest, sag das bitte. Dann bestätige ich Dir lange Frühstückszeremonien in voller Südsonne morgens um 7 Uhr!
Ich wusste nicht, dass diese Option besteht? Wenn's dir nichts ausmacht, könntest du mir meinen Bingo-Hauptgewinn kommenden Sonntag bitte bestätigen? :D
 
G

gregman22

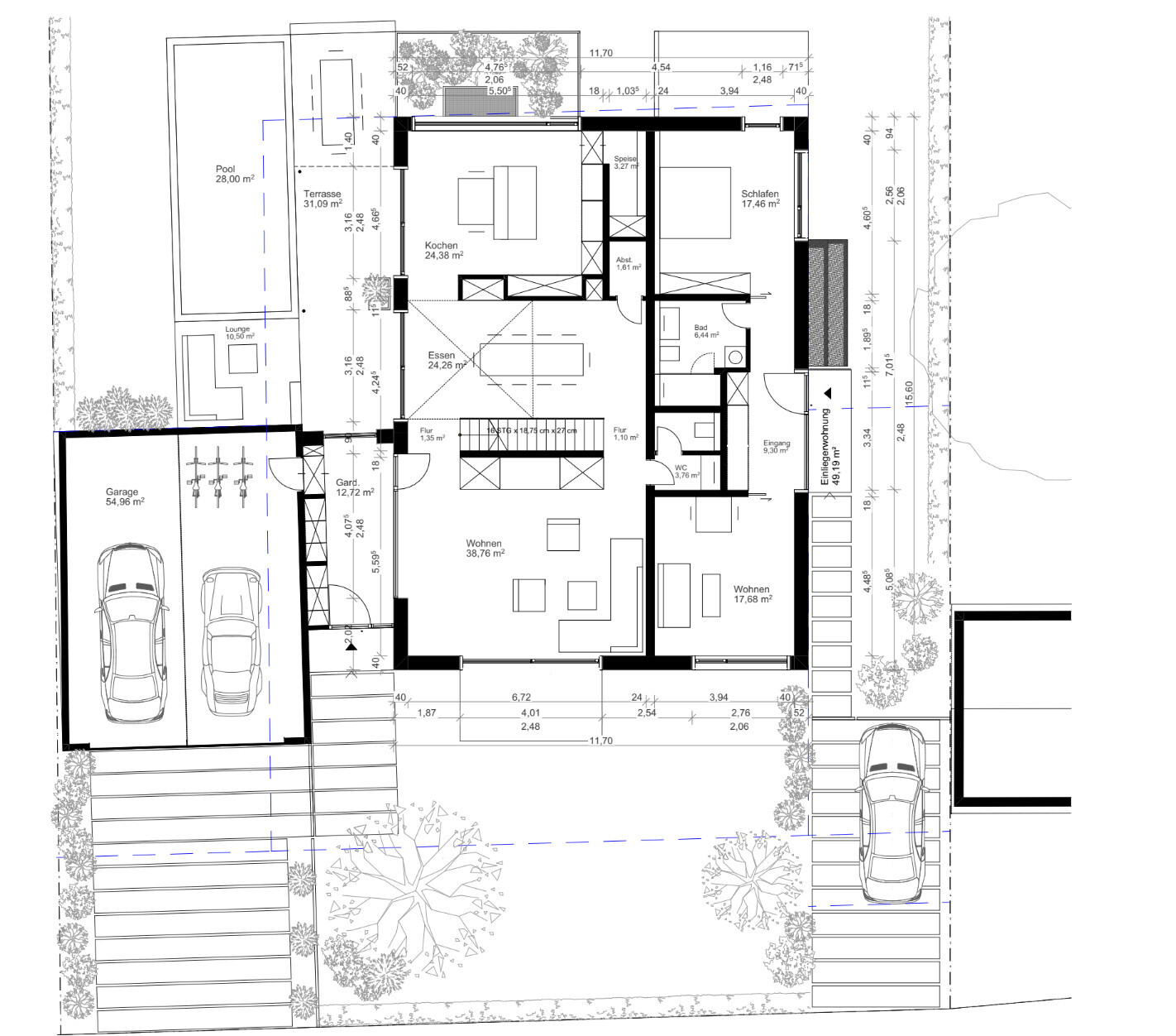
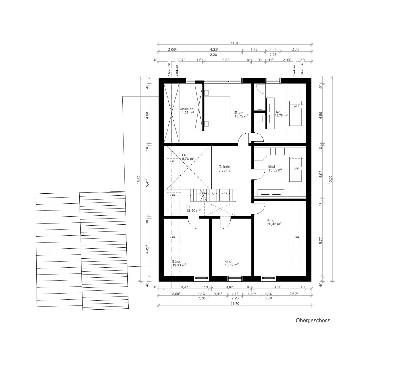
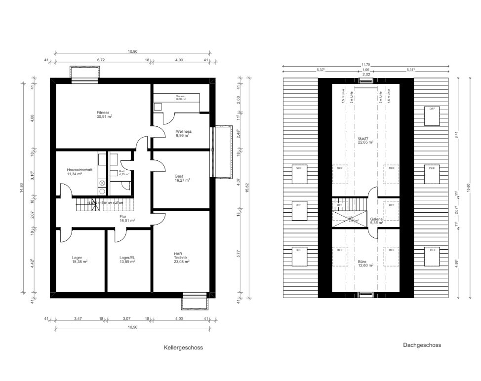
Es ist soweit. Unsere nächste große Planungsstufe V2 ist erreicht. Die neuen Planungsunterlagen hänge ich euch an.

Dies sind die maßgeblichen Änderungen:

Erdgeschoss:
  • Versetzen der Eingangstüre ins Haupthaus etwas nach oben, sodass man mit Blick zur Treppe und Galerie eintritt
  • Vergrößerung der Galerie, sodass oben ein ansehnlicher Galeriebereich entsteht (Lounge-Möbel + Regal)
  • Tausch Wohnzimmer und Küche
    • Speisekammer und Abstellraum wurden versetzt
  • Die Einliegerwohnung hat im Badezimmer einen Abstellraum / Kammer zulasten der alten Dusche erhalten
  • Neue Terrasse an Einliegerwohnung in Nordrichtung

1. Obergeschoss:
  • Haupt-Schlafzimmer
    • Neue Fensterfront
      • Kommentar: Wir müssen hier mit unserem Bauamt sprechen. Laut Bebauungsplan müssen Fensterflächen nach 1,5qm unterteilt werden. Deshalb sieht die Front etwas verschachtelt aus.
      • Manche Dach-Fenster sind verschwunden (bspw. an Ankleide)
    • Die Ankleide ist nun unter die Dachschräge gewandert -> ich denke das kann man sehr gut mit Einbauschränken lösen
    • Am Badezimmer ist eine Türe verschwunden und dadurch wurde die Dusche vergrößert
    • Galerie wurde vergrößert (s.o.)

2. Obergeschoss:
  • Der 2. DG-Raum hat eine Trennwand bekommen, sodass daraus ein geschlossenes Zimmer entsteht

Keller:
  • Die Sauna ist vom Fitnessraum in den Wellnessraum gewandert

Ich bin gespannt, was ihr sagt. Was haltet ihr von den Anpassungen?

Danke, wie immer!

Grundriss eines Hauses: Garage, Pool, Terrasse, Küche, Essen, Wohnen, Schlafzimmer, Bad, Eingang.


Moderne schwarze Wohnhausgruppe mit Satteldach, Dachfenstern, Garten und Person am Eingang


Modernes Holzhaus mit Giebeldach, großen Fenstern, Garten und Poolbereich.


Grundriss: Kellergeschoss mit Fitness, Sauna, Gästezimmer; Dachgeschoss mit Galerie und Terrasse.


Schnitt durch Haus mit Garage links, Treppenhaus, Eingang, Keller und Dachgeschoss.


Grundriss Obergeschoss: Eltern- und Kinderzimmer, Bad, Ankleide, Flur, Galerie.
 
Zuletzt aktualisiert 23.11.2025
Im Forum Bauplanung gibt es 5073 Themen mit insgesamt 100820 Beiträgen


Ähnliche Themen zu Neubau Einfamilienhaus - Begleitet uns dabei!
Nr.ErgebnisBeiträge
1Grundrissplanung: Badezimmer Dusche 47
2Grundriss, Ideen zur räumlichen Trennung innerhalb der Küche 23
3Grundrissplanung - Zweifamilienhaus / Einfamilienhaus mit Einliegerwohnung 14
4Grundriss Zugang von Küche in Speis / Abstellraum - Seite 329
5Küche und Abstellraum Etagenwohnung Grundriss optimieren 34
6Einfamilienhaus Stadtvilla ca. 180qm + Einliegerwohnung 70qm - offene Bauweise 23
7Grundriss-Tipps Einfamilienhaus mit Einliegerwohnung gewünscht 49
8Grundrissentwurf Einfamilienhaus Stadtvilla mit Einliegerwohnung KFW40+ - Seite 349
9Beratung: Neues Badezimmer, 5,9qm mit Badewanne - Seite 748
10Meinungen zum Einfamilienhaus mit Einliegerwohnung Grundrisse - Seite 254
11Einliegerwohnung für Eltern: 210 m² Einfamilienhaus und 80 m² Einliegerwohnung - Seite 16129
12Grundrissplanung für Einfamilienhaus mit Einliegerwohnung - Seite 551
13Detailplanung Grundriss Einfamilienhaus mit Keller und Einliegerwohnung - Seite 428
14Grundriss Bungalow 150qm geschlossene Küche, überdachte Terrasse - Seite 240
15Neubau Stadtvilla mit Einliegerwohnung und Doppelgarage - Seite 572
16Einfamilienhaus mit Einliegerwohnung - Mit welcher Firma bauen? - Seite 218
17Grundriss, Hausanordnung EFW 150m2, Keller + Einliegerwohnung - Feedback erwünscht 67
18Grundriss Einfamilienhaus mit optionaler Einliegerwohnung 44
19Grundriss Haus mit Einliegerwohnung - Verbesserungsvorschläge? - Seite 30221
20Meinungen zum Haus-Grundriss erwünscht 71

Oben