ᐅ Neubau Einfamilienhaus - Begleitet uns dabei!
Erstellt am: 04.08.22 16:13
G
gregman2204.08.22 16:13Liebe Community,
wir sind nun endlich dabei unserem Einfamilienhaus Traum ein Stück näher zu kommen.
Grundstück ist gekauft, Baupläne sind analysiert, Bauart entschieden usw. Wir haben den Planungsauftrag nun dem Architekten des GUs unserer Wahl erteilt und befinden uns in der Feinjustierung der Hausplanung. Ich würde euch sehr gerne auf diese Reise mitnehmen und euer wertvolles Feedback verarbeiten.
Im jetzigen Schritt liegt der Fokus auf der Hausplanung.
Zu den Rahmendaten:
Grundstück: 1062m2 ; ca. 25,5m x 41,64m
Ausrichtung: Nord-West -> Der Pfeil im Screenshot der 3D-Ansicht kommt von Süden
Gewünschte Raumaufteilungen:
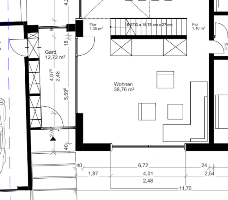
Erdgeschoss:
Anmerkung: Hierzu bin ich mit dem Architekten im Austausch. Aufgrund der Dachform (Walmdach) ist die tatsächliche Wohnfläche zu sehr geschrumpft). Deshalb wird darüber noch diskutiert um die anderen Räumlichkeiten unterzubekommen. Ich hatte das Verhältnis Brutto zu Wohnfläche unterschätzt.
Nun zu meinen ersten Fragen an euch:
Mein größter Bauschmerz ist aktuell die Raumaufteilung im Dachgeschoss. Es gibt zwei Alternativen:
- Andere Dachform, die mit höheren Kosten eine größere Wohnfläche im Dach generiert
- Wir geben das Spielzimmer im OG auf, machen daraus ein Gästezimmer und bauen ins DG nur noch die beiden Büroräume (kein Gästezimmer, kein Bad)
Ich danke euch im Voraus für die Kommentare.





wir sind nun endlich dabei unserem Einfamilienhaus Traum ein Stück näher zu kommen.
Grundstück ist gekauft, Baupläne sind analysiert, Bauart entschieden usw. Wir haben den Planungsauftrag nun dem Architekten des GUs unserer Wahl erteilt und befinden uns in der Feinjustierung der Hausplanung. Ich würde euch sehr gerne auf diese Reise mitnehmen und euer wertvolles Feedback verarbeiten.
Im jetzigen Schritt liegt der Fokus auf der Hausplanung.
Zu den Rahmendaten:
Grundstück: 1062m2 ; ca. 25,5m x 41,64m
Ausrichtung: Nord-West -> Der Pfeil im Screenshot der 3D-Ansicht kommt von Süden
Gewünschte Raumaufteilungen:
Erdgeschoss:
- Großer Wohn/Essbereich mit angeschlossener (dennoch trennbarer) Küche unten links plus Galerie mit Blick ins 1. OG
- Hauswirtschaftsraum
- WC
- Garage
- Einliegerwohnung oben rechts mit getrenntem Eingang für Schwiegereltern
- Galerie mit Blick ins EG
- 2x Kinderzimmer mit zugehörigem Bad
- 1x Spielzimmer (zuerst Kinoraum, später umfunktioniert) über Garage
- Eltern-Flügel mit Haupt-Schlafzimmer, Ankleide-Zimmer, Bad
Anmerkung: Hierzu bin ich mit dem Architekten im Austausch. Aufgrund der Dachform (Walmdach) ist die tatsächliche Wohnfläche zu sehr geschrumpft). Deshalb wird darüber noch diskutiert um die anderen Räumlichkeiten unterzubekommen. Ich hatte das Verhältnis Brutto zu Wohnfläche unterschätzt.
- 2 getrennte Büros
- 1 Gästezimmer
- 1 kleines Gästebad
- 1 Technikraum
- 1 Waschraum
- 1 Lagerraum
- Fitness-Raum groß
- Wellnessraum mit Sauna
- Luft-luftwärmepumpe oder Luft-Wasser-Wärmepumpe
- Photovoltaik mit/ ohne Speicher
- evtl. Pool (3,5/4m x 8m oder 3,5/4m x 12m) mit Wärmepumpe (und Gegenstromanlage)
- Sauna im Keller-Raum
- Klimatisierung verschiedener Räume
- Smart Home - vermutlich via KNX
- Garten: Derzeit 2 Terrassen geplant - 1x nach links etwas südlicher, 1x gen Hauptteil des Grundstücks nördlicher
Nun zu meinen ersten Fragen an euch:
- Wie wirken die Grundrisse auf euch? Sind sie schlüssig im Hinblick auf die Dynamik von Familienleben?
- Die Anordnung der Einliegerwohnung ist auf unseren Wunsch so entstanden. Wir wollten eine strikte klare räumliche Trennung mit separatem Eingang. Habt ihr dazu noch Anmerkungen?
- Haltet ihr die Nutzräume im Keller für ausreichend groß dimensioniert (Stichwort KNX, Wärmepumpe, ...)?
Mein größter Bauschmerz ist aktuell die Raumaufteilung im Dachgeschoss. Es gibt zwei Alternativen:
- Andere Dachform, die mit höheren Kosten eine größere Wohnfläche im Dach generiert
- Wir geben das Spielzimmer im OG auf, machen daraus ein Gästezimmer und bauen ins DG nur noch die beiden Büroräume (kein Gästezimmer, kein Bad)
Ich danke euch im Voraus für die Kommentare.
K
K a t j a04.08.22 16:22Auf die Schnelle finde ich Eure Wünsche recht gut umgesetzt. Was mir allerdings überhaupt nicht gefällt, ist die Aufteilung der Einliegerwohnung. Mit dem Kopf an der Garage zu schlafen und das Bad als Raumtrenner, die Chillecke quasi als Durchgangszimmer - da würde ich nicht wohnen wollen.
G
gregman2204.08.22 16:29K a t j a schrieb:
Auf die Schnelle finde ich Eure Wünsche recht gut umgesetzt. Was mir allerdings überhaupt nicht gefällt, ist die Aufteilung der Einliegerwohnung. Mit dem Kopf an der Garage zu schlafen und das Bad als Raumtrenner, die Chillecke quasi als Durchgangszimmer - da würde ich nicht wohnen wollen.Danke Katja. Tolle Anregung. Mir fehlt zur Einliegerwohnung ein wenig die Fantasie.
Es war aus Kostengründen wichtig, der Körper der Einliegerwohnung so angeordnet ist und quasi an Garage und Hauptgebäude angrenzt. Außerdem waren wir uns alle einig, dass das "Hauptleben" der Einliegerwohnung im Wohnzimmer stattfindet und es daher schöner ist, von dort die Terrasse zu betreten, anstelle Wohnzimmer und Schlafzimmer zu tauschen.
Deinen Raum-Trenner Hinweis kann ich nachvollziehen.
Was für Alternativen schweben dir vor?
Weitere Anmerkungen zum Rest?
G
gregman2204.08.22 16:37SoL schrieb:
Wie hoch ist denn Euer Budget für das Haus (rein Haus)?
900k?Ich hatte gehofft, wir bleiben unter 1,15-1,3. Allerdings scheint es, als würde der Gesamtbau schlüsselfertig in die Richtung 1,35-1,4 gehen. Hast du dazu eine Meinung?Region ist Südbayern - Umland München
N
Neubau202204.08.22 17:03gregman22 schrieb:
Ich hatte gehofft, wir bleiben unter 1,15-1,3. Allerdings scheint es, als würde der Gesamtbau schlüsselfertig in die Richtung 1,35-1,4 gehen. Hast du dazu eine Meinung?
Region ist Südbayern - Umland MünchenHängt von der Gesamtfläche ab. Bei 250 qm z.B. und den Wünschen wäre es sehr realistisch.
Meine Frage wäre aber, wenn Du soviel Geld in die Hand nimmst, wieso sparst Du an der Heizung und nimmst keine Erdwärmepumpe mit Tiefenbohrung? Kein hässliches Außengerät und definitiv effektiver. Und was ist mit Kontrollierte-Wohnraumlüftung?
Ähnliche Themen