Grundrissplanung OG mit Dachschrägen - Was verbessern?

4,60 Stern(e) 5 Votes
Zuletzt aktualisiert 07.12.2025
Sie befinden sich auf der Seite 2 der Diskussion zum Thema: Grundrissplanung OG mit Dachschrägen - Was verbessern?
>> Zum 1. Beitrag <<

Y

ypg

Grundsätzlich ist eine Etage ohne der anderen nicht wirklich diskutierbar. Schliesslich ändert sich auch das andere Geschoss, wenn man zB die Hausgröße ändert. Die ist wiederum vom Grundstück abhängig, also muss auch der Lageplan daher. Das steht ja alles in dem angepinnten Beitrag.
Infos, Infos, Infos. Auch ein "dahinter" gibt es nicht wirklich bei einer Vogelperspektive. Sicherlich mag es für Euch eindeutig sein, weil Ihr Euer Grundstück kennt, aber wir kennen es nicht.

Ansonsten gilt auch hier die Devise: "Mach mich sauber, aber nicht nass."
 
11ant

11ant

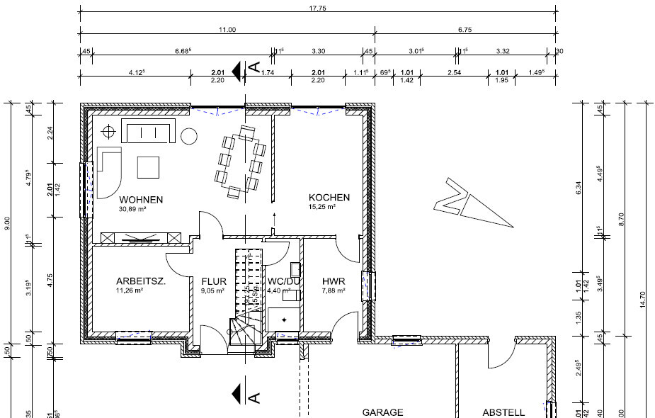
Der Ursprung liegt hier: https://www.hausbau-forum.de/threads/grundriss-efh-mit-satteldach-1-5-geschossig-verbesserungen.28219/
und hat(te) folgendes EG:


2D-Grundriss eines Hauses mit Wohnzimmer, Küche, Flur, WC, HWR und Garage


"Damals" war ich mit dem Entwurf auch schon nicht zufrieden, aber er hatte immerhin noch das Qualitätsniveau "Laienentwurf". Wenn ich das aktuelle DG sehe, hat sich das noch verschlechtert: nämlich zu einem in eine Abmessungsvorgabe "eingepaßten" Traummusterhausgrundriß. Bei Aschenputtel würde es heißen, Blut sei im Schuh, die rechte Braut säße noch daheim ;-)
 
Y

ypg

Mit einer Kürzung des Hauses um einen halben Meter mag ja das Bad etwas kleiner werden (wenn man nicht Grundlegendes ändert), aber auch die anderen Räume werden in Mitleidenschaft gezogen. So wird das obere linke Zimmer nicht grösser, eher kleiner...
*Klopp an die Stirn*
Jetzt in Ruhe sehe ich: das Bad wird nimmer kleiner, denn die Treppe bleibt, die Tür bleibt. So ist das halt.. 9 Meter in der Tiefe funktioniert oft nicht. Habe letztens eine andere Diskussion gehabt - da war das Diskussionsthema noch extremer: 8 oder 8,5 auf 10 Meter. 9 sind es geworden, macht den Bauherren aber irgendwie auch nicht glücklich ;)
 
kaho674

kaho674

Das EG kann ja nicht ganz das selbe geblieben sein. Hat ja jetzt 2 Erker.

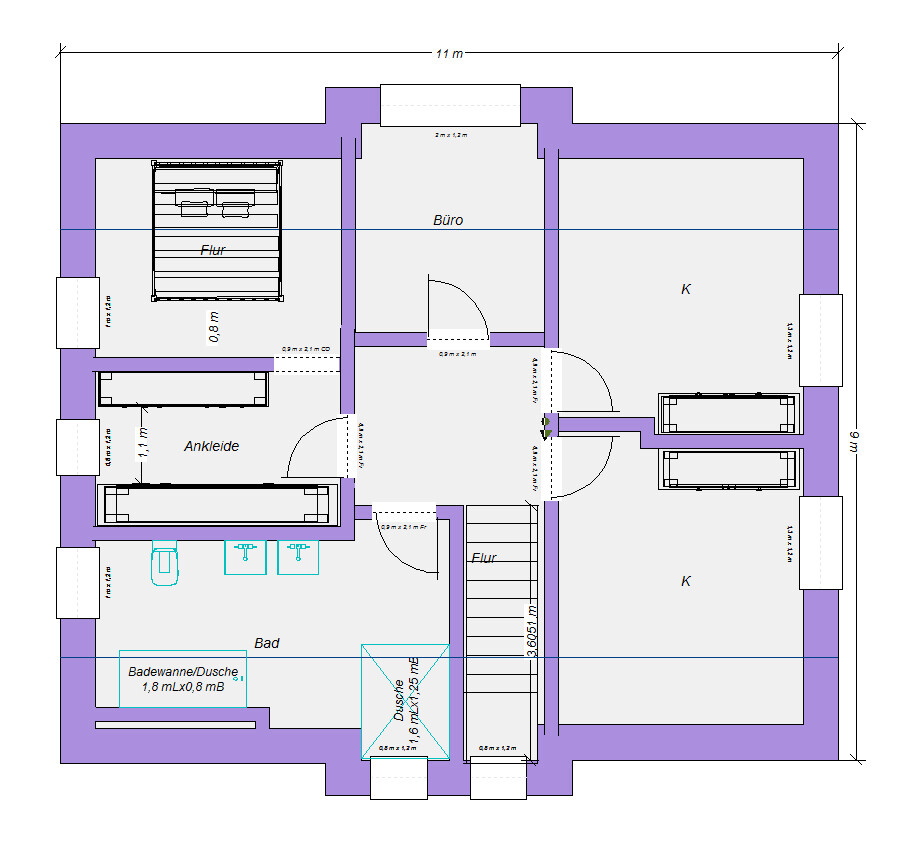
Mal ein Versuch, ohne das EG oder den Kniestock zu kennen mit beigefügter Treppe. 2m Grenze einfach mal bei ca. 1m von der Wand angenommen - anhand der Vorlage geschätzt.
Dusche vor dem Fenster - dass sowas geht, glaub ich, seitdem ich ähnliches wie das hier gesehen und für gut befunden habe.


Modernes Badezimmer mit Waschbecken, Toilette und Glasdusche.


Kleiner Knick in der Kinderwand ist für gleiche Zimmergröße und Tür- sowie Fensterposition wichtig. Ist verschmerzbar, denke ich.


2D-Grundriss eines Hauses mit Zimmern, Fluren und Treppen



Schaubild einer L-förmigen Treppe mit Deckeneinöffnung und Abmessungen


Irre find ich 47er Wände. Ist das jetzt Standard?
 
Zuletzt aktualisiert 07.12.2025
Im Forum Grundrissplanung / Grundstücksplanung gibt es 2547 Themen mit insgesamt 88303 Beiträgen


Ähnliche Themen zu Grundrissplanung OG mit Dachschrägen - Was verbessern?
Nr.ErgebnisBeiträge
1Entwurf Grundriss: Planung Erdgeschoss - Seite 227
2Grundriss-Entwurf: Einfamilienhaus mit Keller; 560qm Grundstück - Seite 365
3Entwurf Grundriss Bungalow - Eure Meinungen bitte! 14
4Ausrichtung der Räume bei Nord-Ost Grundstück - Seite 322
5Bitte schaut kritisch über unseren Grundriss-Entwurf 13
6Grundrissplanung mit enger werdendem Grundstück - Seite 223
7Einfamilienhaus 1,5-Geschosser ca. 150qm Grundrissplanung Do-It-Yourself Entwurf 23
8Entwurf Grundriss Einfamilienhaus (als Zweifamilienhaus im Alter möglich) in Hanglage - Seite 753
93. Grundriss-Entwurf Neubau Einfamilienhaus 220qm 2 Vollgeschosse Dachterrasse - Seite 561
10Entwurf Grundriss Bungalow Meinungen 22
11Planung unseres Einfamilienhaus - Was meint ihr zum Entwurf? - Seite 656
12Einfamilienhaus Entwurf - ca. 160-170qm / Innovatives Satteldach - Seite 671
13Einfamilienhaus, ~160m², Bauhausstil; Erster Entwurf nach unseren Wünschen - Seite 13420
14150qm Stadtvilla erster Entwurf - Anregungen - Seite 323
15Grundriss-Entwurf: Einfamilienhaus mit 4 Schlafzimmern und Büro, 160qm - Seite 1482
16Entwurf EFH, 2 Vollgeschosse, Satteldach, kein Keller, Doppelgarage - Seite 331
17Einfamilienhaus-Grundriss Entwurf 23
18Planung Grundriss / Erster Entwurf für erstes Feedback 32
19Unser Grundriss-Entwurf, eure Meinungen 20
20Grundriss Haus / Grundstück 28

Oben