Grundrissplanung OG mit Dachschrägen - Was verbessern?

4,60 Stern(e) 5 Votes
Zuletzt aktualisiert 06.12.2025
Sie befinden sich auf der Seite 3 der Diskussion zum Thema: Grundrissplanung OG mit Dachschrägen - Was verbessern?
>> Zum 1. Beitrag <<

P

perth

Guest
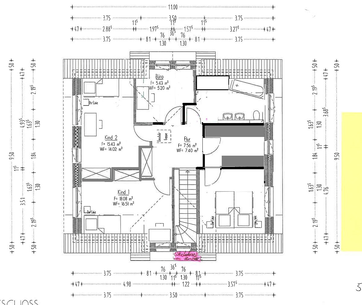
Ich bin sicherlich kein Grundrissexperte. Trotzdem möchte ich dir einen OG Vorschlag machen.

Grundrissplan eines Hauses mit Zimmern, Flur und Treppenhaus.


Schiebetür zum Elternschlafzimmer. Im Flur Stauraum für Bettwäsche/Handtücher/Staubsauger, größere Ankleide, größeres Büro.
 
Y

ypg

@perth
Duschen unter der 2-Meter-Linie funktionieren nicht.
Die Fenster kann man auch nicht so einfach unter die Schräge ziehen. Du ignorierst hier das Dach, kleinen Kniestock und Dachschräge.
 
Zuletzt aktualisiert 06.12.2025
Im Forum Grundrissplanung / Grundstücksplanung gibt es 2547 Themen mit insgesamt 88301 Beiträgen
Oben