Grundriss Einfamilienhaus OWL ca. 150qm mit Ostgarten

4,80 Stern(e) 22 Votes
Zuletzt aktualisiert 23.11.2025
Sie befinden sich auf der Seite 14 der Diskussion zum Thema: Grundriss Einfamilienhaus OWL ca. 150qm mit Ostgarten
>> Zum 1. Beitrag <<

OWLer

OWLer

Ja, natürlich. Aber bislang lassen sich ihre Vorstellungen nicht so gut mit unseren Budgetvorstellungen überein bringen.
 
Y

ypg

Bei dem Entwurf von #77 würde ich den Eingang nicht unter den Carport setzen. Aber es sollte nach Belieben das Versetzen des Einganges bzw Tausch Garderobe/ Eingang kein Problem sein.
 
OWLer

OWLer

So, es gibt endlich wieder Neuigkeiten. Erstens ist GU2 aufgrund seiner Preisvorstellungen nun raus. Ein abgespeckter Entwurf passte dann so halbwegs ins Budget, allerdings war das dann nicht mehr "unser Haus".

GU1 haben wir allerdings die hier von @kaho674 erarbeiteten Entwürfe als Handskizze zugeschickt. Das ist dabei herausgekommen:
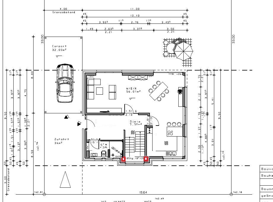
EG:

Grundriss eines Hauses: Carport, Zufahrt, Wohn-/Esszimmer, Küche, Diele, WC, Abstellraum.


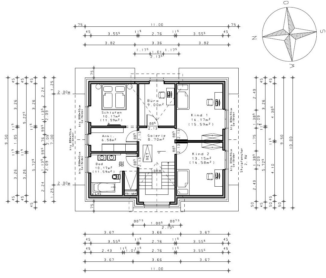
OG:

Grundriss eines Hauses mit Schlafzimmer, Büro, zwei Kinderzimmer, Bad und Treppe.



Achtung: Fenster, Außenansicht etc. lagen erst mal nicht im Fokus. Planer vom Unternehmen hatte nach Rücksprache mit dem GU nur wenig Zeit, da er parallel wohl ein großes Projekt für die Baugenehmigung fertig machen musste. Daher hat er wohl lediglich schnell den Grundriss gezeichnet und Maße und Flächen gezogen.

Das würden wir noch anpassen wollen, wenn uns von Seiten den Forums keine grundsätzliche Klopper aufgedeckt werden.
  • Wir würden auf jeden Fall die Fensterflächen in den Garten anpassen und versuchen, 3 große bodentiefe Doppelfenster (Wohnen, Essen, Giebel mit Schiebetür) ergänzen.
  • Dachüberstände würden wir noch einkürzen für eine modernere Optik.
  • Dann konnte ich wegen Flur/Treppe noch nicht mit dem GU telefonieren. Ich vermute, dass der 70cm Freiraum zwischen den beiden Treppenläufen der Symmetrie/Drittelung geschuldet ist. Die Außenansicht wäre uns durchaus auch wichtig, wenn der Erker vorne zu schmal wird, siehts auch doof aus. Ich stelle mir vor, die Außenmauern bleiben zu lassen und mit einer zusätzlichen Reihe Steinen im Inneren dann mehr Raum in den angrenzenden Räumen zu haben (Küche, Bad, K2).
  • Ankleide einen Stein in Richtung Schlafen, um somit ca. 25cm zu gewinnen. Ein Meter zwischen Bett und Wand sollte uns eigentlich reichen. Haben wir jetzt auch und gerade mit einer separaten Ankleide sollte es ja entspannter im Schlafzimmer zugehen.
  • WC im EG um 90° gedreht und dann größerer Eingangsbereich bzw. kein separater Abstellraum und Garderobe/sitzbank in den dann sehr offenen Bereich.

Grundriss eines Hauses: Carport, Zufahrt, offener Wohn-/Ess-/Küchenbereich, Diele.


Problem:
Wo wir uns allerdings überhaupt nicht sicher sind, ist die Bürogröße von 9m² im Rohbau. In der Theorie sollte es ausreichen, in der Praxis? Ich hätte mir vorgestellt, an eine Wand den Schreibtisch im rechten Winkel zum Fenster zu stellen und auf der anderen Seite die ganze Wand mit Schrank/Regal zu füllen.

Bei dem Entwurf von #77 würde ich den Eingang nicht unter den Carport setzen. Aber es sollte nach Belieben das Versetzen des Einganges bzw Tausch Garderobe/ Eingang kein Problem sein.
Ah, darauf hatte ich gar nicht mehr geantwortet. Sorry! Eingang ist in unseren gedanklichen Entwürfen eh nie unter dem Carport eingeplant gewesen. Das Carport soll nach hinten verschoben werden, dass wir am Wohnzimmer eine ruhige, Sicht- und windgeschützte Ecke haben.
 
hausnrplus25

hausnrplus25

Ist eine offene Treppe für euch Pflicht?
Sonst könntet ihr die Treppe schließen und darunter noch einmal gut 2,5-3m² Abstellraum/Garderobe
oder auch Speisekammer gewinnen (vom Flur begehbar oder von der Küche aus wenn ihr da auf einen Schrank verzichtet)
 
Zuletzt aktualisiert 23.11.2025
Im Forum Grundrissplanung / Grundstücksplanung gibt es 2536 Themen mit insgesamt 87997 Beiträgen


Ähnliche Themen zu Grundriss Einfamilienhaus OWL ca. 150qm mit Ostgarten
Nr.ErgebnisBeiträge
1Grundriss 120 m², Einfamilienhaus 1,5, Carport. Meinungen, Ideen, Vorschläge 42
2Grundrissfrage, Treppe, Fenster, Ausrichtung 12
3Fenster / Türen / Garderobe 13
4Allererster Grundriss-Entwurf des Erdgeschosses - Seite 42267
5Eingang Grundriss welche Treppenvariante - Seite 231
6Grundriss Einfamilienhaus 110m² - EG + OG - erster Entwurf Einteilung Räume - Seite 16153
7Haus-Entwurf Einfamilienhaus - Zukünftig als Zweifamilienhaus trennbar - Seite 772
8Grundriss-Entwurf für Einfamilienhaus 135 qm - Ideen und Ratschläge gesucht - Seite 529
9Grundriss EFH 230qm mit Carport quadratisches Eckgrundstück 47
10Stadtvilla mit gerader Treppe, offene moderne Bauweise, 140m² 18
11Einfamilienhaus, ~160m², Bauhausstil; Erster Entwurf nach unseren Wünschen - Seite 32420
12Entwurf Grundriss Einfamilienhaus (als Zweifamilienhaus im Alter möglich) in Hanglage - Seite 753
13Entwurf - alle Richtungen bei Neubau vom Einfamilienhaus 91
14Planung unseres Einfamilienhaus - Was meint ihr zum Entwurf? - Seite 656
15Neubau Einfamilienhaus ca.220qm, 2. Entwurf Stadtvilla - Seite 459
1610x10m Stadtvilla (ca. 155m2, 6 Zimmer), Feintuning erwünscht - Seite 11132
17Ideen zu Entwurf für Einfamilienhaus mit Keller - Seite 547
18Entwurf Grundriss Bungalow - Eure Meinungen bitte! 14
19Erster Entwurf Einfamilienhaus 150m² mit Keller 38
20Grundriss Zugang von Küche in Speis / Abstellraum - Seite 329

Oben