Grundriss Einfamilienhaus OWL ca. 150qm mit Ostgarten

4,80 Stern(e) 22 Votes
Zuletzt aktualisiert 09.01.2026
Sie befinden sich auf der Seite 6 der Diskussion zum Thema: Grundriss Einfamilienhaus OWL ca. 150qm mit Ostgarten
>> Zum 1. Beitrag <<

kaho674

kaho674

Kniestock ist mit 1,25m. Im DG wäre somit massig Platz.
Mmh, naja, was manche halt so als massig bezeichnen. Ich würde den Raum nur als Abstellplatz nutzen oder um die Modelleisenbahn aufzubauen. Als Kinderzimmer find ich's aufgrund der schmalen 2m Grenze bissl dünne.


Grundriss eines Bauplans: grauer Innenraum, 27,82 m², von breitem violettem Rahmen umgeben.

Wenn Du den erschließen willst, musst Du die Treppe natürlich jetzt planen.
 
OWLer

OWLer

Was ist wichtiger? Die Westsonne im WZ oder eine breite Öffnung des Hauses Richtung Garten. Bei mir wäre es klar letzteres, solange tagsüber genug Licht in den Räumen ist. Im Sommer findet das Leben doch zu 90% auf der Terrasse bzw. im Garten statt. Da ist es ein ganz anderes Lebensgefühl, wenn die Haupträume sich alle dorthin öffnen.
Da bin ich zu 100% bei dir! Das Wohnzimmer ist gedanklich schon aus der Westecke weg und im Nordosten = Nah an der Terrasse.
L-Form wäre dann über die Küche im Südwesten, Essen im Südosten und Wohnen im Nordosten.

Lagerräume entfallen.

Osten komplett mit Wohnräumen.

Büro soll weiterhin im EG angedacht werden. Im Worst-Case können wir das immer noch ins OG bauen. Versuchen würde ich es allerdings erst einmal.

Ich werde das mal so zusammen mit den Punkten von den vorherigen Beiträgen an den GU weitergeben.
 
11ant

11ant

Dass das Funktioniert, muss die Treppe doch relativ mittig nahe des Firsts gebaut werden, oder? Wie im o.g. Entwurf von @kaho674 würde das im Erker doch nicht gehen, oder?
Prinzipiell ist die Einschätzung richtig, bezieht sich aber im wesentlichen auf den Austritt und auf die Kopfhöhe auf der gesamten Treppe - konkret habe ich das hier nicht "nachgemessen".
 
OWLer

OWLer

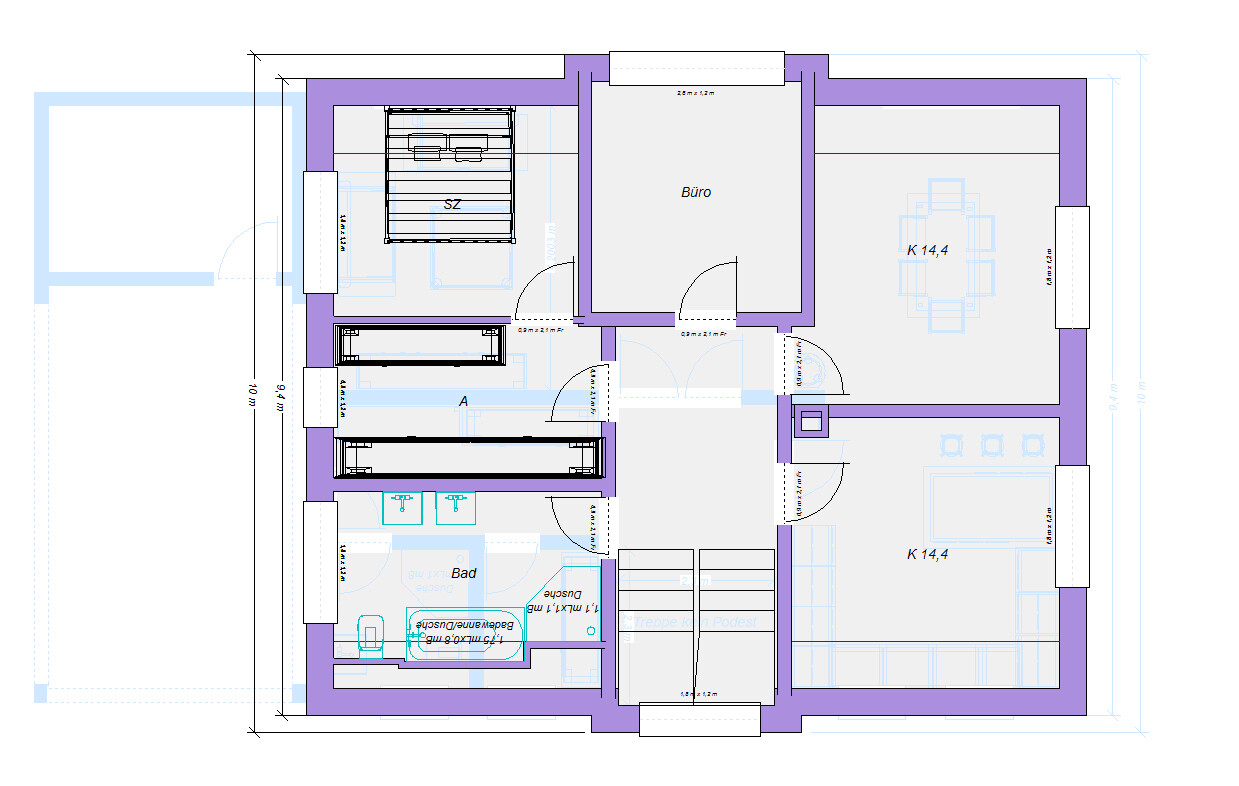
Garderobe könnte alternativ auch zu Vorrat werden, 2. Haus-Tür hab ich nur rein gemacht, weil es sich anbot - besser wär wohl ohne. Treppe ist eine Standard-1/2 gewendelte.

Kniestock mit 1,30m angenommen, Dach 45°.

Anhang anzeigen 41789
Anhang anzeigen 41788
Das mit Entfall Büro im EG und dafür Umwidmung Spielen in Büro könnte ich mir gut vorstellen. Dann den Hauseingang nur über Nord und WC länglich an der Westseite bis zur Treppe hin.

Ich habe die ganzen Anmerkungen, Anregungen und Kritiken sowohl hier aus dem Forum, als auch aus DIskussionen innerhalb der Familie an den GU weitergeleitet. Ich hoffe, er schafft es, einen neuen Entwurf bis zum nächsten Termin in der nächsten Woche vorzubereiten.

Ich habe nur Kritik und Wünsche geäußert und nur vereinzelt Vorgaben (Ostseite=Wohnräume) gemacht. Der Architekt von denen soll seine Ideen auch noch einbringen können.
 
kaho674

kaho674

Möchte gern zu #31 noch ergänzen, dass die Dachspitze so vielleicht noch verlockend aussieht, aber die gerade Treppe dort gehörig Platz wegnimmt und es am Ende tatsächlich auf magere 12 bis 15m² hinausläuft. Wenn man die Spitze erschließen wollte, dann geht das relativ schlecht über die Treppe des BU, denn da bleibt kaum was übrig vom Kuchen. Da Ihr mit Keller baut, würde ich darauf verzichten und eher dort einen Raum mit Lichtschacht bauen.

Das mit Entfall Büro im EG und dafür Umwidmung Spielen in Büro könnte ich mir gut vorstellen. Dann den Hauseingang nur über Nord und WC länglich an der Westseite bis zur Treppe hin.
Also etwa so?

Grundriss eines Hauses mit Carport, Fahrradraum, Diele, WC, Abstellraum und Wohnzimmer.


Grundriss eines Hauses mit Büro, Küche, Bad, Flur und Treppe.
 
OWLer

OWLer

Da Ihr mit Keller baut, würde ich darauf verzichten und eher dort einen Raum mit Lichtschacht bauen.
Dahin gehen momentan auch meine Überlegungen. Allerdings sind meine Erfahrungen hier aus dem Forum, dass DG-Ausbau allgemein anerkannt und akzeptiert ist, aber Wohnraum im Keller verursacht Schnappatmung.

Gerade weil wir den großen Keller haben werden, ist GU1 zurzeit in der Planung, 2 Räume davon als Wohnraum zu planen. GU2 wird mindestens (wegen Energieeinsparverordnung) die Rohre für die Fußbodenheizung verlegen und nicht anschließen. Was dann zum Wohnen besser ist, ist vermutlich Jahreszeitenabhängig. DG im Sommer kühl zu bekommen, wird vermutlich genau so schwierig, wie im Winter den (ungedämmten?) Keller warm.

Lichthof bietet sich im Süden sogar regelrecht an, da wir ja das Gefälle haben und über Süden auch eine Menge Licht einfallen würde. Zudem lässt sich mit dem 4m-Streifen zum südlichen Nachbarn hin eh nichts sinnvolles im Garten anfangen.

Gerade die Berücksichtigung von Treppen ins OG verschandelt viele Grundriss-Möglichkeiten im OG. Ich möchte das wegen des Kellers auch eigentlich gar nicht. GU1 zwängt uns eine Treppe ins DG aber förmlich auf. GU2 würde zumindest die Sparren im Dach so auslegen, dass eine Nachrüstung möglich wäre.

aus meiner Sicht genau so!

Ich bin gespannt, was uns beide GU nächste Woche erzählen. Ich werde euch auf dem Laufenden halten.
 
Zuletzt aktualisiert 09.01.2026
Im Forum Grundrissplanung / Grundstücksplanung gibt es 2565 Themen mit insgesamt 88787 Beiträgen


Ähnliche Themen zu Grundriss Einfamilienhaus OWL ca. 150qm mit Ostgarten
Nr.ErgebnisBeiträge
1Einfamilienhaus 2 Stockwerke ohne Keller -Grundriss -Kosten -Umsetzbarkeit? 24
2Häuser ohne Keller: Stauraum Hobby-Keller? - Seite 449
3Einfamilienhaus mit Satteldach, ohne Keller - Feedback erwünscht - Seite 9190
4Einfamilienhaus (2Etagen+Wohn-Keller+ausgebautes Dach) etwa 200qm -Änderungen - Seite 9162
5Grundriss 165 m² mit Keller eure Meinung - Seite 352
6Bewertung Grundriss ca. 145 qm Einfamilienhaus Keller/EG/OG - Seite 8111
7Grundriss Einfamilienhaus, ca. 200qm ohne Keller - Einschätzung - Seite 19172
8Mit oder ohne Keller Bauen - Erfahrungen - Seite 249
9Grundrissfrage, Treppe, Fenster, Ausrichtung 12
10Grundriss Einfamilienhaus mit Keller 19
11Einfamilienhaus mit kleiner Grundfläche, DG und Keller, Zustimmung Nachbar - Seite 531
12Ohne Keller gebaut & bereut? - Seite 477
13Eigenentwurf Grundriss Bungalow mit Keller 10
14Grundrissplanung Keller, EG + DG 12
15Grundriss 180qm plus Keller - 12,40mx9,04m 21
16Grundriss Einfamilienhaus, ~180m², Keller mit Satteldach - Seite 681
17Planung/Grundriss Einfamilienhaus (ca. 140 qm, Keller, EG, DG) - Seite 230
18Jetzt der finale Grundriss - 189qm ohne Keller; Stadtvilla - Seite 424
19Grundrisse für Einfamilienhaus, ca. 140m², ohne Keller 78
20Baumangel - Treppe nicht in Ordnung - Seite 212

Oben