Grundriss Einfamilienhaus OWL ca. 150qm mit Ostgarten

4,80 Stern(e) 22 Votes
Zuletzt aktualisiert 23.11.2025
Sie befinden sich auf der Seite 5 der Diskussion zum Thema: Grundriss Einfamilienhaus OWL ca. 150qm mit Ostgarten
>> Zum 1. Beitrag <<

kaho674

kaho674

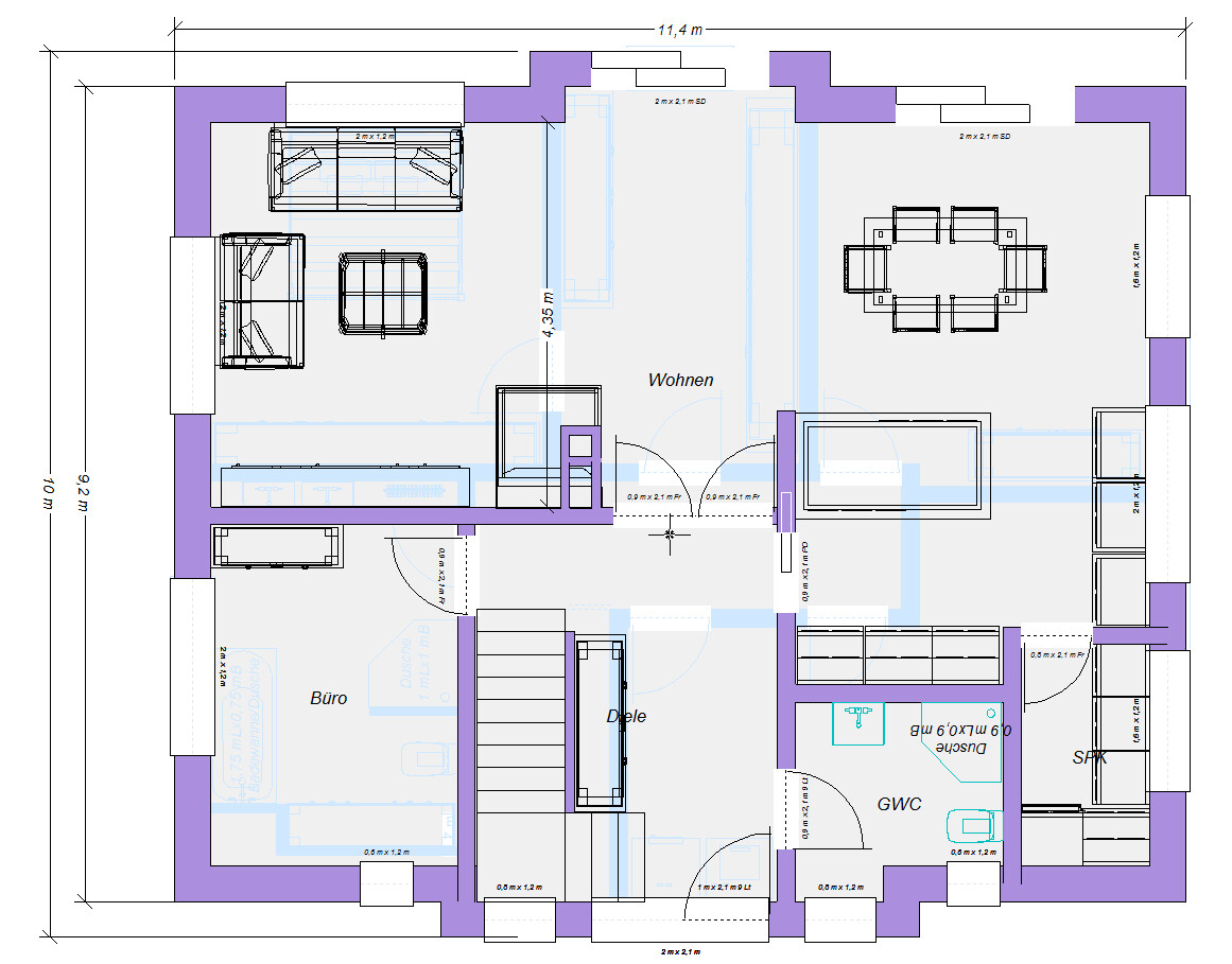
Gefällt mir auch sehr gut. Ich würde vermutlich noch versuchen, dem WZ etwas mehr Tiefe zu geben zu Lasten des jetzt sehr großen Büros.
Das ist exakt auch mein Gedanke gewesen und ich hab natürlich schon was vorbereitet:


Grundriss eines Hauses: Wohnen, Büro, Diele, GWC, Dusche, HWR.

Noch 2 Ansichten:


Zweistöckiges graues Hausmodell mit dunklem Dach, vielen Fenstern und offener Tür.


3D-Hausmodell eines grauen Hauses mit dunklem Dach auf gruenem Rasen


Ich war eben ganz stolz, weil ich den Schornstein noch wunderbar auf den Flur hatte - sowohl im EG als auch im OG. Aber dann ging er genau durch den First. So ein Dreck! Den können wir natürlich nicht zersägen. Also muss er so bleiben bzw. man verzichtet ganz darauf und kauft sich lieber ein Aquarium, Klavier oder Schnapsbar.
 
OWLer

OWLer

Immer wichtig! Auch als Ersatzwährung im Fall der Apokalypse!

Richtig cool! Danke!!!! Wir haben die ganzen Grundrisse am Wochenende noch mal im Familienkreis diskutiert. Wir sind uns nun doch einig, dass der ursprüngliche Entwurf vom GU erhebliche Mängel hat.

Besonders mit deinem Entwurf haben wir allerdings noch das Problem, dass eine der besten Ecken, was Tageslicht angeht, nun durch Speisekammer und WC belegt ist. Das ist die Süd-West-Ecke des Hauses.

Da finde ich diese Lösung deutlich besser. Allerdings ist meine Frau dagegen, das Büro Richtung Garten zu legen. Da sticht dann wieder das Argument "Schokoladenseite vom Haus". Wobei ich bei diesem Entwurf sogar dazu übergehen würde, das WC zu verbreitern und den Hauseingang komplett von der Nordseite zu machen.

Momentan überlegen wir doch tatsächlich, das Büro doch ins OG zu verlegen. Im Entwurf des GU ist das ja gelungen und das würde natürlich komplett andere Möglichkeiten im EG ergeben und die "ungünstige" Lage von Grundstück und Baufenster deutlich entspannen.

Ich überlege schon die ganze Zeit, was ich dem GU für das nächste Gespräch als Aufgabe mitgeben soll.

Fest steht:
EG muss neu.
Ein Hauseingang, gerne auch von der Nordseite.
Küche min 3,5m Breite.
Wohn-Ess-Bereich über die komplette Ostseite.

Unsicher:
Küche soll auf Süd-West-Seite
Büro OG

Wie groß sollte ein Büro mindestens sein, dass es inkl. großer Regalwände funktioniert?
Ein anderes Thema ist die Möglichkeit der Treppennachrüstung für DG-Ausbau. GU hatte bei der geraden Treppe gesagt, da können Sie einfach eine dritte Treppe als Stahltreppe draufsetzen für DG-Aufgang. Dass das Funktioniert, muss die Treppe doch relativ mittig nahe des Firsts gebaut werden, oder? Wie im o.g. Entwurf von @kaho674 würde das im Erker doch nicht gehen, oder?

Das ist alles echt anstrengend mit der Planung! Ich hatte die naive Vorstellung, dass erst der Bau mit der ständigen Aufsicht Vorort anstrengend wird. Die Angst Fehler zu machen, ist aber auch nicht ohne.....

Zum Glück hat man hier so große Hilfe!
 
kaho674

kaho674

Das sind die Entscheidungen, die Euch keiner abnehmen kann.

Was ist wichtiger? Die Westsonne im WZ oder eine breite Öffnung des Hauses Richtung Garten. Bei mir wäre es klar letzteres, solange tagsüber genug Licht in den Räumen ist. Im Sommer findet das Leben doch zu 90% auf der Terrasse bzw. im Garten statt. Da ist es ein ganz anderes Lebensgefühl, wenn die Haupträume sich alle dorthin öffnen.

Die Dachspitze auszubauen, halte ich ja für Käse. Wer baut schon tatsächlich noch ne Treppe im Nachhinein ein, um dann wie viel qm zu erschließen? 10? Welchen Kniestock plant Ihr denn nun?

Wieso jetzt die Speis mehr recht hat, am Garten anzuliegen, als das Büro, versteh ich nicht. Ich würde dringend davon abraten, die teuren Räume im Haus als Lager für Gartengeräte o.ä. anzusehen. Für sowas hat man billige Holzschuppen. Oder was ist der Grund?

Bürogröße - wenn es gut geplant ist, reichen ca. 8 bis 9m². In den Plänen realistische Möbel einplanen - dann weißt Du es.
 
OWLer

OWLer

Kniestock ist mit 1,25m. Im DG wäre somit massig Platz. Zwar nicht nach DIN, aber für Jugendliche sollte es reichen. Bei meinen Eltern hatten wir nachträglich ausgebaut und ich habe den Raum trotz 2m Höhe von 1,5m Breite doch sehr oft genutzt.

Der Vorratsraum Richtung Garten ist gedanklich schon entfallen.
 
Zuletzt aktualisiert 23.11.2025
Im Forum Grundrissplanung / Grundstücksplanung gibt es 2536 Themen mit insgesamt 87997 Beiträgen


Ähnliche Themen zu Grundriss Einfamilienhaus OWL ca. 150qm mit Ostgarten
Nr.ErgebnisBeiträge
1Stadtvilla 190m² mit Einfahrt & Garten zur Südseite 30
2Grundriss erster Entwurf - Meinungen erwünscht - Seite 221
3Entwurf Grundriss: Planung Erdgeschoss - Seite 227
4Grundriss-Entwurf Stadtvilla Feedback - Seite 213
5Planung unseres Einfamilienhaus - Was meint ihr zum Entwurf? - Seite 656
6Einfamilienhaus als Reihenmittelhaus an Hanglage - Entwurf - Seite 318
7Grundriss-Entwurf Stadtvilla mit Doppelgarage - Seite 238
8Haus-Entwurf Einfamilienhaus - Zukünftig als Zweifamilienhaus trennbar - Seite 572
9Erster Entwurf des Grundrisses für 150m2 Haus 31
10Erster Entwurf Grundriss Einfamilienhaus (ca. 200qm) - Bitte um Feedback - Seite 646
11Meinungen zu unserem Grundriss Entwurf erwünscht - Seite 670
12Bitte schaut kritisch über unseren Grundriss-Entwurf 13
13Grundrissplanung / Entwurf Einfamilienhaus Flachdach mit Doppelgarage 87
14Einfamilienhaus, ~160m², Bauhausstil; Erster Entwurf nach unseren Wünschen - Seite 3420
15Einfamilienhaus 1,5-Geschosser ca. 150qm Grundrissplanung Do-It-Yourself Entwurf 23
16Unser Grundriss-Entwurf für ein günstiges Haus 348
17150qm Stadtvilla erster Entwurf - Anregungen - Seite 323
18Entwurf Einfamilienhaus mit ca. 168m² Feedback 37
19Einfamilienhaus Entwurf mit Satteldach am Rand vom Baugebiet - Seite 540
20Neubau Einfamilienhaus ca.220qm, 2. Entwurf Stadtvilla - Seite 459

Oben