Grundriss 175qm Satteldach ohne Keller

4,80 Stern(e) 8 Votes
S

s_mhofma

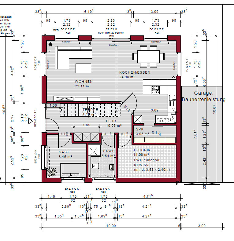
Ich muss gestehen, ich finde den Grundriss und die Lageplanung für einen Architekten sehr unkreativ und zweitklassig. Was wurde denn in 6 Runden alles schon diskutiert, um dieses Ergebnis zu erhalten?

Am meisten stören mich der Eingang gegenüber der Garage, der Zugang zum Wohnzimmer über die Küche mit schräger Wand, die finstere Küche und der sinnlose Knick im Kinderzimmer.

Hier würde mich der exakt vermaßte Lageplan und der Bebauungsplan Text hinsichtlich Baulinie sowie die maximale Größe des Baufensters interessieren.
wir waren/sind auch nicht sehr zufrieden mit dem Architekten.
Das Haus wurde bspw gedreht, wir hatten eine andere Treppe etc.
die schräge Tür zum Wohnzimmer wird noch größer, da die Speisekammer runter rutscht. Das soll dann eine Lofttür werden.
Eingänge gegenüber der Garage ist aufgrund der Gegebenheiten nicht anders möglich, ohne eine Seite des Hauses komplett ohne Fenster zu haben, oder sehe ich das falsch?
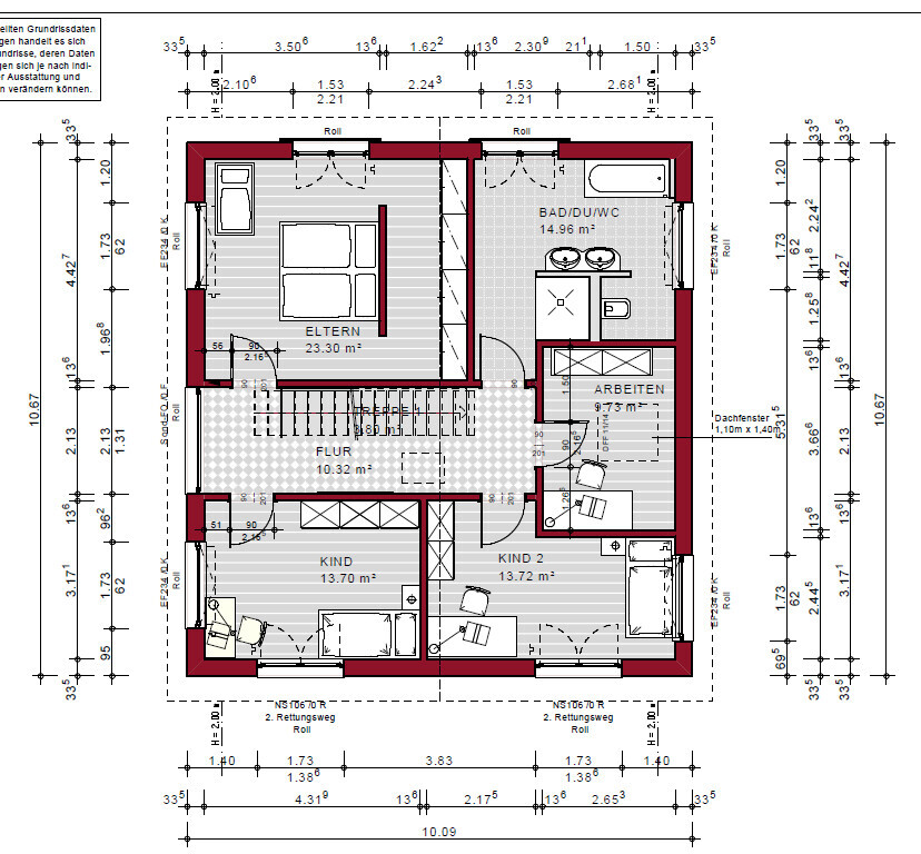
Knick im Kinderzimmer kommt durch das Arbeitszimmer.
 
kbt09

kbt09

Warum darf der Eingang nicht von der Straße aus sein? Was spricht so kategorisch dagegen?

EDIT: Und Maße des Grundstücks wären wirklich wichtig, wenn man mal mit anderen Formen probieren möchte.
 
K a t j a

K a t j a

Du brauchst mir nicht zu beschreiben, was ja jeder sehen kann.
Bei einem strengen Bebauungsplan mit Baulinie musst Du uns schon den vollen Text liefern inkl. Deiner exakten Grundstück Daten. Sonst kann man hier nix bewerten.
Für mich stellt sich das bislang als äußerst unkreativ dar. Wäre es meines, bekäme mein Haus einen ordentlichen Rücksprung. (Nein, dass ist dann nicht einfach nur nach hinten gesetzt). Dazu müsste man aber wissen, was genau im Text steht.
 
S

s_mhofma

Es gefällt uns einfach nicht den Eingang am Gehweg zu haben.
Sobald ich die genauen Maße habe, kommen sie
 
Zuletzt aktualisiert 06.10.2025
Im Forum Grundrissplanung / Grundstücksplanung gibt es 2510 Themen mit insgesamt 87172 Beiträgen


Ähnliche Themen zu Grundriss 175qm Satteldach ohne Keller
Nr.ErgebnisBeiträge
1Kostenplanung Einfamilienhaus inkl. Grundstück, Nebenkosten, Architekten - Seite 232
2Einfamilienhaus (10x8,8qm²) auf 437qm² Grundstück in München 48
3Hausbau auf schmalen Grundstück? 3-Familienhaus besteht schon - Seite 356
4Vorschläge vom Architekten enttäuschend - Wie weiter? 32
5Vorplanung mit dem Architekten - eigener Grundriss sinnvoll? - Seite 218
6Grundstückskauf an Architekten gebunden ist das Normal? - Seite 216
7Fragen/vernachlässigtes Grundstück/Wiese, Baumaßnahmen eruieren - Seite 644
8Grundstück reserviert, Baufinanzierung Plan, Architekt/Bauantrag 21
9Erst Haus planen und erst danach dann Grundstück kaufen? - Seite 1079
10Neubau Rohbau Auswahl: Unternehmen oder Architekten nehmen? - Seite 852
11Möglichkeit Vorab-Fragen an Architekten 23
12Planung eines Einfamilienhaus (KG + EG +OG) auf 480m² Grundstück - Seite 976
13Grundrissplanung - Grundstück mit Straßenzugang Südseite - Seite 212
14Wunschliste für den Architekten - Seite 332
15Mit Eigenkapital Haus kaufen oder das Grundstück? - Seite 212
16Architekten oder Fertighaus Kostenkalkulation und weitere Schritte - Seite 427
17Grundstück Hausbau am Nordhang - Bayern Lkr. Regensburg - Seite 213
18Einfamilienhaus 159qm - Gerades Grundstück - Richtig kalkuliert? - Seite 226
19Einfamilienhaus 160m2 mit Keller, 500m2 Grundstück - Seite 14108
20Einschätzung Bebaubarkeit großes Grundstück nach §34 - Seite 217

Oben