ᐅ Einfamilienhaus mit Keller in Hanglage - Meinungen (Dachform, allgemein)
Erstellt am: 12.11.20 13:42
C
chistarHallo,
sind gerade am Planen von unserem Einfamilienhaus.
Dieses besteht, auch aufgrund der Hanglage, aus EG, UG, KG.
Aufgrund des Ausblicks haben wir uns für den Wohnbereich im obersten Geschoss entschieden.
Eckdaten und Vorgaben unsererseits:
- Anzahl Geschosse: 3 (bedingt durch die Hanglage)
- Wohnfläche: ~140-150 m²
- Dachform: muss zum Haus passen (Flach bzw. Pultdach lt. Bebauungsplan nicht erlaubt)
- 2 Kinderzimmer
- Wohnbereich im oberen Geschoss
- Für Kamin vorsehen
- WC getrennt
- Terrasse im OG
- Doppelgarage
Offene Punkte:
- Finale Raumanordnung
- Fensteranordnung
- Dachform (im Anhang mal zwei Vorschläge)
- Wandaufbau
- Gestaltung Fassade
Wäre über Meinungen, Anregungen sehr dankbar!





sind gerade am Planen von unserem Einfamilienhaus.
Dieses besteht, auch aufgrund der Hanglage, aus EG, UG, KG.
Aufgrund des Ausblicks haben wir uns für den Wohnbereich im obersten Geschoss entschieden.
Eckdaten und Vorgaben unsererseits:
- Anzahl Geschosse: 3 (bedingt durch die Hanglage)
- Wohnfläche: ~140-150 m²
- Dachform: muss zum Haus passen (Flach bzw. Pultdach lt. Bebauungsplan nicht erlaubt)
- 2 Kinderzimmer
- Wohnbereich im oberen Geschoss
- Für Kamin vorsehen
- WC getrennt
- Terrasse im OG
- Doppelgarage
Offene Punkte:
- Finale Raumanordnung
- Fensteranordnung
- Dachform (im Anhang mal zwei Vorschläge)
- Wandaufbau
- Gestaltung Fassade
Wäre über Meinungen, Anregungen sehr dankbar!
Mir persönlich gefallen beide Varianten nicht. Das passt alles irgendwie nicht zusammen. Vor allem aber brauchst du einen großen Geldbeutel bei solch einer Ausführung. Da ist nichts mehr Standard und sicher sind statische Sonderlösungen von Nöten. Das die Garage nicht unterkellert ist ist zwar schön und gut da musst du trotzdem Fundamente errichten und auffüllen. Insgesamt fehlen meiner Meinung auch ein paar Quadratmeter im Grundriss um es auf 3 Etagen aufzuteilen.
Kannst du bitte den Fragebogen ausfüllen?
https://www.hausbau-forum.de/threads/grundrissplanung-unbedingt-vor-beitrag-erstellung-lesen.11714/
Warum habt ihr das Haus nicht mit Terrassen ausgestattet ähnlich @sichtbeton82 oder @Mellina
Klar Flachdach geht nicht und ihr baut kleiner, aber irgendwie sagt es mir so gar nicht zu. Auch dass das KG wirklich nur teure Abstellfäche ist. das ist der Raum mit Gartenzugang.
Wo baut ihr in Bayern?
https://www.hausbau-forum.de/threads/grundrissplanung-unbedingt-vor-beitrag-erstellung-lesen.11714/
Warum habt ihr das Haus nicht mit Terrassen ausgestattet ähnlich @sichtbeton82 oder @Mellina
Klar Flachdach geht nicht und ihr baut kleiner, aber irgendwie sagt es mir so gar nicht zu. Auch dass das KG wirklich nur teure Abstellfäche ist. das ist der Raum mit Gartenzugang.
Wo baut ihr in Bayern?
Danke für die rasche Rückmeldung,
hier die ausgefüllten Daten:
Bebauungsplan/Einschränkungen
Größe des Grundstücks 700
Hang ja
Baufenster, Baulinie und -grenze: 5m, außer Nebengebäude (Garage)
Anzahl Stellplatz 2
Geschossigkeit
Dachform kein Flach-/Pultdach
Stilrichtung keine Vorgabe
Ausrichtung keine Vorgabe
Maximale Höhen/Begrenzungen Absoluthöhe vorgegeben --> nur 1 Geschoss über Straßenniveau möglich
weitere Vorgaben Dachneigung 15-35°
Zufahrt nur von Osten erlaubt (siehe Anhang, Bild genordet)
Anforderungen der Bauherren
Stilrichtung, Dachform, Gebäudetyp modern, klassisch
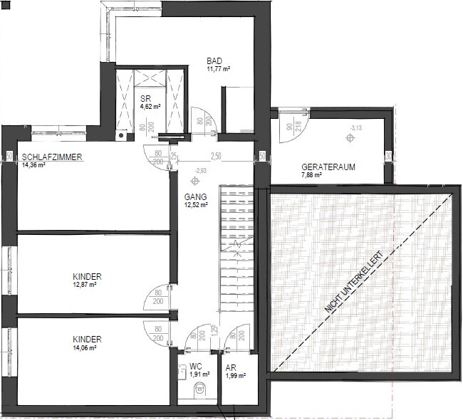
Keller, Geschosse 3
Anzahl der Personen, Alter für 4-5 Personen
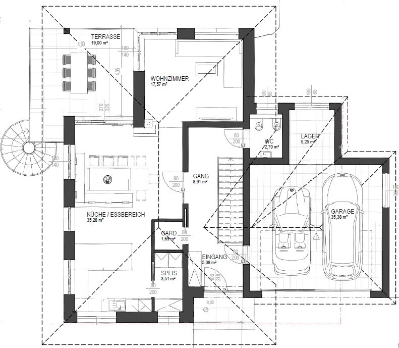
Raumbedarf im EG, OG ~150m²
Büro: Familiennutzung oder Homeoffice? nicht zwingend erforderlich
Schlafgäste pro Jahr 1-2
konservativ oder moderne Bauweise klassisch, modern
offene Küche, Kochinsel ja
Anzahl Essplätze 8
Kamin vorsehen
Balkon, Dachterrasse Terrasse im OG
Garage, Carport Garage
weitere Wünsche/Besonderheiten/Tagesablauf, gern auch Begründungen, warum dieses oder das nicht sein soll
Hausentwurf
Von wem stammt die Planung:
-Planungsbüro
favorisierte Heiztechnik: Erdwärme
Warum ist der Entwurf so geworden, wie er jetzt ist? ZB
Kompliziertes Grundstück: fällt teilweise an 3 Seiten ab, Abstände zu Nachbarn, Straße (siehe Anhang, Bild genordet)
Schöne Aussicht nur vom OG (Nachbarn)
Vorderen Teil Kellergeschoss evtl. später ausbauen

hier die ausgefüllten Daten:
Bebauungsplan/Einschränkungen
Größe des Grundstücks 700
Hang ja
Baufenster, Baulinie und -grenze: 5m, außer Nebengebäude (Garage)
Anzahl Stellplatz 2
Geschossigkeit
Dachform kein Flach-/Pultdach
Stilrichtung keine Vorgabe
Ausrichtung keine Vorgabe
Maximale Höhen/Begrenzungen Absoluthöhe vorgegeben --> nur 1 Geschoss über Straßenniveau möglich
weitere Vorgaben Dachneigung 15-35°
Zufahrt nur von Osten erlaubt (siehe Anhang, Bild genordet)
Anforderungen der Bauherren
Stilrichtung, Dachform, Gebäudetyp modern, klassisch
Keller, Geschosse 3
Anzahl der Personen, Alter für 4-5 Personen
Raumbedarf im EG, OG ~150m²
Büro: Familiennutzung oder Homeoffice? nicht zwingend erforderlich
Schlafgäste pro Jahr 1-2
konservativ oder moderne Bauweise klassisch, modern
offene Küche, Kochinsel ja
Anzahl Essplätze 8
Kamin vorsehen
Balkon, Dachterrasse Terrasse im OG
Garage, Carport Garage
weitere Wünsche/Besonderheiten/Tagesablauf, gern auch Begründungen, warum dieses oder das nicht sein soll
Hausentwurf
Von wem stammt die Planung:
-Planungsbüro
favorisierte Heiztechnik: Erdwärme
Warum ist der Entwurf so geworden, wie er jetzt ist? ZB
Kompliziertes Grundstück: fällt teilweise an 3 Seiten ab, Abstände zu Nachbarn, Straße (siehe Anhang, Bild genordet)
Schöne Aussicht nur vom OG (Nachbarn)
Vorderen Teil Kellergeschoss evtl. später ausbauen
Haben nur 1 große Terrasse eingeplant, da von Schlafräumen aus nochmals eine Terrasse vermutlich nie genützt würde und natürlich auch mit Zusatzkosten verbunden ist.
Statisch sollte es kein Problem sein, wurde bereits von einem Statiker grob drübergesehen.
Und, dass ein Haus in Hanglage mit mehr Kosten verbunden ist, wie ein Würfel in der Ebene ist uns natürlich bewusst.
Trotzdem haben wir geschaut, dass alle 3 Geschosse, sowie die tragende Wand übereinander stehen (ausgenommen der Teil im Keller)
Bauen in BGL.
Statisch sollte es kein Problem sein, wurde bereits von einem Statiker grob drübergesehen.
Und, dass ein Haus in Hanglage mit mehr Kosten verbunden ist, wie ein Würfel in der Ebene ist uns natürlich bewusst.
Trotzdem haben wir geschaut, dass alle 3 Geschosse, sowie die tragende Wand übereinander stehen (ausgenommen der Teil im Keller)
Bauen in BGL.
S
Stefan2.8412.11.20 15:48Wenn die Möglichkeit besteht, dann die Garage vergößern, bzw. verbreitern. Sieht nach 6x6m aus. Habe 2 zukünftige Nachbarn die stark unzufrieden mit 6x6m sind. Sie würden es definitiv breiter ausführen.
Ähnliche Themen