ᐅ Grundriss 175qm Satteldach ohne Keller
Erstellt am: 24.02.23 20:55
Bebauungsplan/Einschränkungen
Größe des Grundstücks: 612
Hang: Nein
Grundflächenzahl
Geschossflächenzahl
Baufenster, Baulinie und -grenze
Randbebauung: Ja. Bebauung direkt an der Straße und 3 Meter Abstand zum Nachbarn an jeder Seite, daher kein Spielraum in der Breite möglich
Anzahl Stellplatz: 2
Geschossigkeit
Dachform: Satteldach, 30 Grad Dachneidung
Stilrichtung
Ausrichtung: West/Ost
Maximale Höhen/Begrenzungen 3 Meter Abstand zum Nachbarn an jeder Seite, daher kein Spielraum in der Breite möglich
weitere Vorgaben
Anforderungen der Bauherren
Stilrichtung, Dachform, Gebäudetyp
Keller, Geschosse: Kein Keller, 2 Geschosse, Kniestock 1,80
Anzahl der Personen, Alter 2 Erwachsene, 2 Kinder
Raumbedarf im EG, OG
Büro: Familiennutzung oder Homeoffice? Homeoffice
Schlafgäste pro Jahr: Viele
offene oder geschlossene Architektur; offen
konservativ oder moderne Bauweise
offene Küche, Kochinsel: Küche mit Kochinsel und versteckter Speisekammer
Anzahl Essplätze: 8
Kamin: Nein
Musik/Stereowand
Balkon, Dachterrasse
Garage, Carport: Garage
Nutzgarten, Treibhaus
weitere Wünsche/Besonderheiten/Tagesablauf, gern auch Begründungen, warum dieses oder das nicht sein soll
Hausentwurf
Von wem stammt die Planung: Architekt
-Planer eines Bauunternehmens
-Architekt
-Do-it-Yourself
Was gefällt besonders? Warum?
Was gefällt nicht? Warum?
Preisschätzung lt Architekt/Planer:
Persönliches Preislimit fürs Haus, inkl Ausstattung:
favorisierte Heiztechnik:
Wenn Ihr verzichten müsst, auf welche Details/Ausbauten
-könnt Ihr verzichten:
-könnt Ihr nicht verzichten:
Warum ist der Entwurf so geworden, wie er jetzt ist? ZB
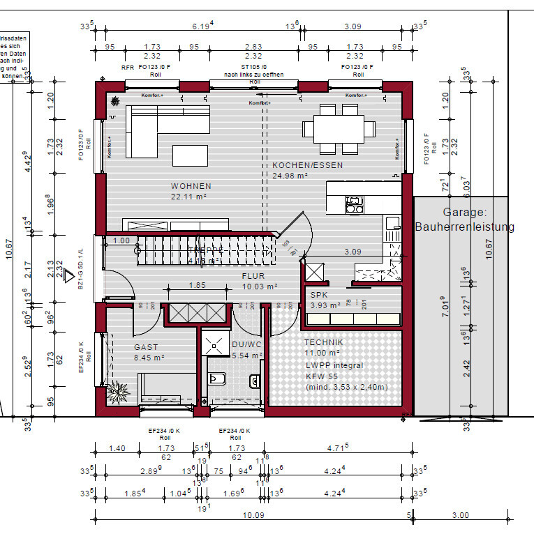
Das Haus ist direkt an der Straße. Abstand rechts und links 3 Meter, daher in der Breite keine Spielmöglichkeiten.
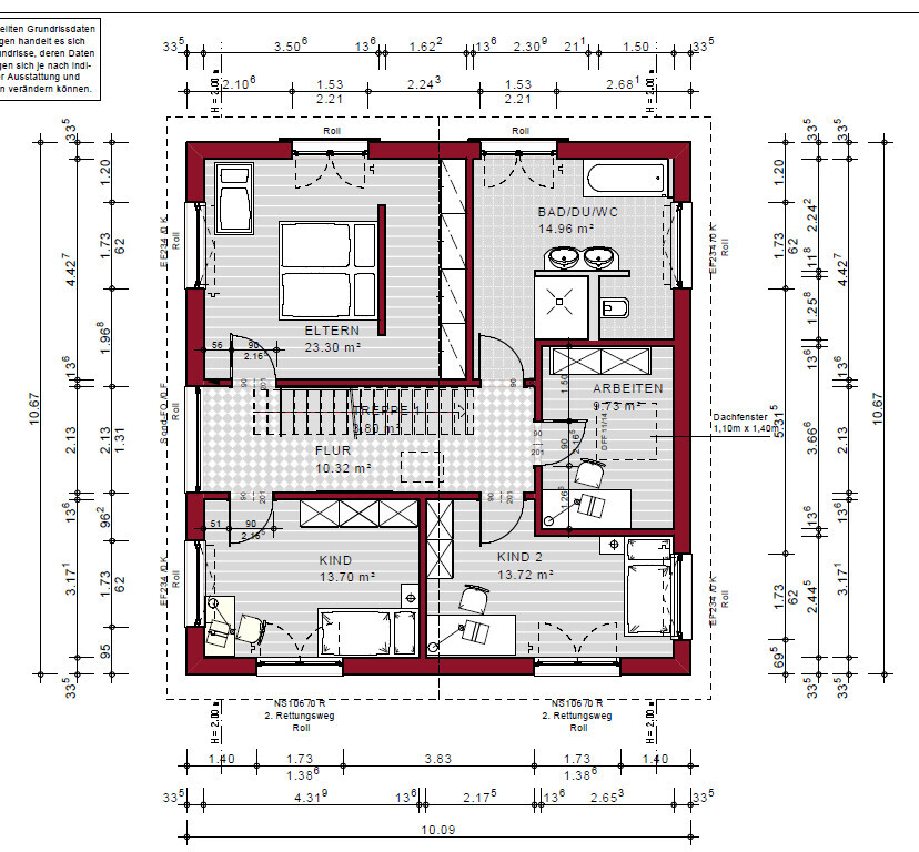
Eingang ist seitlich. Da das Haus an der Straße ist, sollten Wohnzimmmer, Essbereich und Küche zum Norden sein, also an der Gartenseite. Alle anderen Räume sind zur Straßenseite geplant. Kniestock 1,80, Dachneigung 30Grad. Schlafzimmer und Bad auch zur Gartenseite.
Speisekammer ist momentan verstekct. Wir überlegen aber, diese in den Technikraum zu integrieren. Fußbodenheizung mit Wärmepumpe. Photovoltaik auch vorhanden (Westseite)
Was ist die wichtigste/grundlegende Frage zum Grundriss in 130 Zeichen zusammengefasst?
Siehe oben







Größe des Grundstücks: 612
Hang: Nein
Grundflächenzahl
Geschossflächenzahl
Baufenster, Baulinie und -grenze
Randbebauung: Ja. Bebauung direkt an der Straße und 3 Meter Abstand zum Nachbarn an jeder Seite, daher kein Spielraum in der Breite möglich
Anzahl Stellplatz: 2
Geschossigkeit
Dachform: Satteldach, 30 Grad Dachneidung
Stilrichtung
Ausrichtung: West/Ost
Maximale Höhen/Begrenzungen 3 Meter Abstand zum Nachbarn an jeder Seite, daher kein Spielraum in der Breite möglich
weitere Vorgaben
Anforderungen der Bauherren
Stilrichtung, Dachform, Gebäudetyp
Keller, Geschosse: Kein Keller, 2 Geschosse, Kniestock 1,80
Anzahl der Personen, Alter 2 Erwachsene, 2 Kinder
Raumbedarf im EG, OG
Büro: Familiennutzung oder Homeoffice? Homeoffice
Schlafgäste pro Jahr: Viele
offene oder geschlossene Architektur; offen
konservativ oder moderne Bauweise
offene Küche, Kochinsel: Küche mit Kochinsel und versteckter Speisekammer
Anzahl Essplätze: 8
Kamin: Nein
Musik/Stereowand
Balkon, Dachterrasse
Garage, Carport: Garage
Nutzgarten, Treibhaus
weitere Wünsche/Besonderheiten/Tagesablauf, gern auch Begründungen, warum dieses oder das nicht sein soll
Hausentwurf
Von wem stammt die Planung: Architekt
-Planer eines Bauunternehmens
-Architekt
-Do-it-Yourself
Was gefällt besonders? Warum?
Was gefällt nicht? Warum?
Preisschätzung lt Architekt/Planer:
Persönliches Preislimit fürs Haus, inkl Ausstattung:
favorisierte Heiztechnik:
Wenn Ihr verzichten müsst, auf welche Details/Ausbauten
-könnt Ihr verzichten:
-könnt Ihr nicht verzichten:
Warum ist der Entwurf so geworden, wie er jetzt ist? ZB
Das Haus ist direkt an der Straße. Abstand rechts und links 3 Meter, daher in der Breite keine Spielmöglichkeiten.
Eingang ist seitlich. Da das Haus an der Straße ist, sollten Wohnzimmmer, Essbereich und Küche zum Norden sein, also an der Gartenseite. Alle anderen Räume sind zur Straßenseite geplant. Kniestock 1,80, Dachneigung 30Grad. Schlafzimmer und Bad auch zur Gartenseite.
Speisekammer ist momentan verstekct. Wir überlegen aber, diese in den Technikraum zu integrieren. Fußbodenheizung mit Wärmepumpe. Photovoltaik auch vorhanden (Westseite)
Was ist die wichtigste/grundlegende Frage zum Grundriss in 130 Zeichen zusammengefasst?
Siehe oben
Steffi33 schrieb:
Warum bekommen Gast und Gästebad keine „ordentlichen“ Fenster? So wohnt man wie in einem Kellergeschoss.. gruselig.. Das Fenster zum Gästebad ist zur Straße hin. Macht denke ich wenig Sinn ein großes Fenster dort zu haben wo jeder beim vorbeilaufen rein schauen kann.Gästezimmer ist ähnlich. Hat aber zwei Fenster
Ähnliche Themen