Hallo an alle,
Bebauungsplan/Einschränkungen: Bebauungsplan, Einschränkungen vom Architekt berücksichtigt
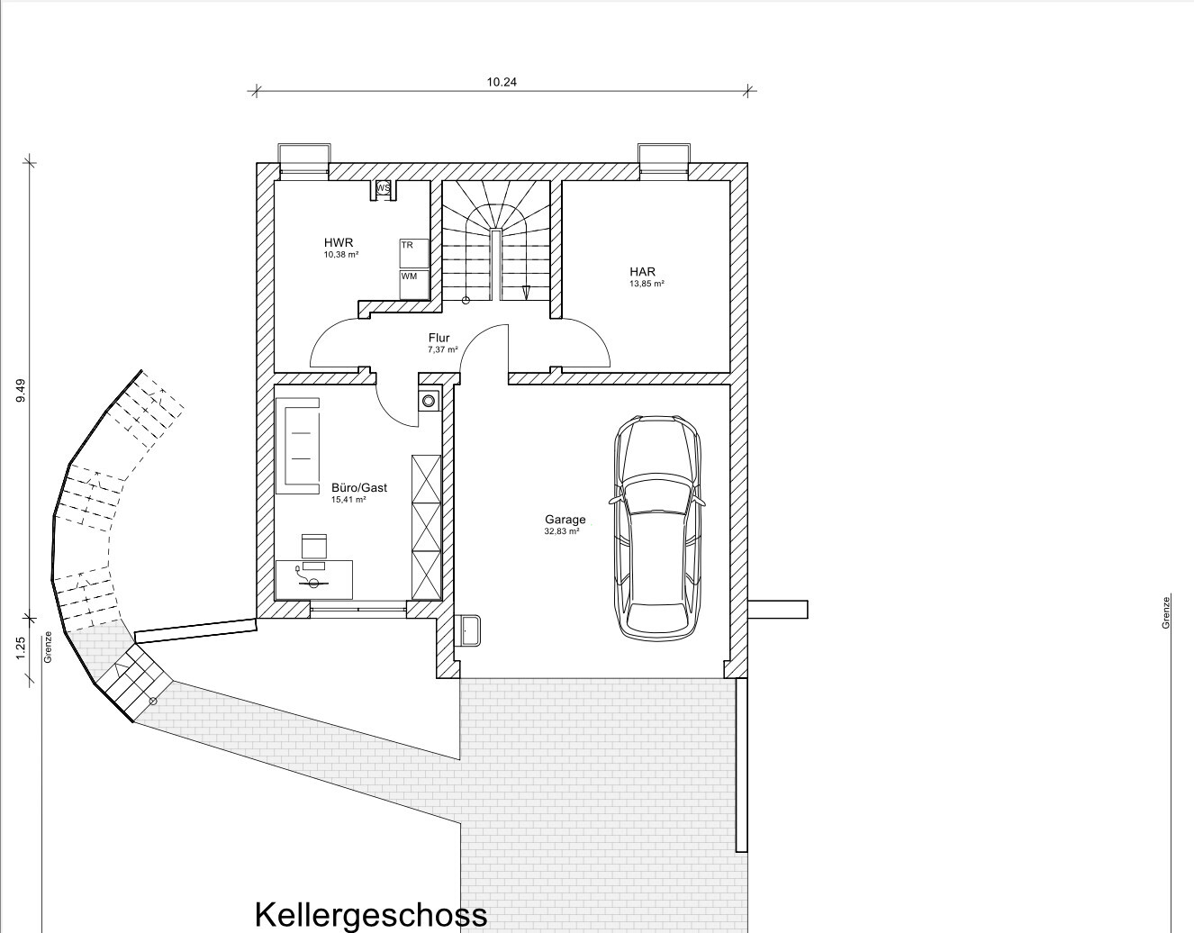
Größe des Grundstücks: 675m²
Hang: ja, diagonal durch das Grundstück verlaufend (siehe Höhenplan)
Baufenster, Baulinie und -grenze: 3 m zu allen Seiten
Randbebauung: ja, Nachbar im S/O
Anzahl Stellplatz: 2 Garage und 2 vor Garage
Geschossigkeit: 2,5
Dachform: Satteldach 36 Grad
Stilrichtung: einfach gehalten
Ausrichtung: Süd-West
Maximale Höhen/Begrenzungen: wie Nachbarbebauung, hoch genug
weitere Vorgaben: keine
Straße: Sackgasse, unser Haus liegt am Ende, somit zur einen Seite Nachbarn, zur anderen freie Sicht auf Wald, Wiese und Tal
Anforderungen der Bauherren
Stilrichtung, Dachform, Gebäudetyp: innen möglichst offen und geradlinig gestaltet, von außen schlicht
Keller, Geschosse: Keller, EG und OG
Anzahl der Personen, Alter: noch 2 (beide 28), 1-2 Kinder geplant
Raumbedarf im EG, OG: ca. 140 qm Wohnfläche
Büro: Unbedingt notwendig aufgrund 80 % Remote Work
Schlafgäste: sehr selten
offene oder geschlossene Architektur: offen
konservativ oder moderne Bauweise: konservativ (da meist auch günstiger)
offene Küche, Kochinsel: offene Küche mit Theke oder Insel (aufgrund der Platzverhältnisse und des Schnitts eher Theke)
Anzahl Essplätze: 4-6
Kamin: geplant, aber kein Muss
Musik/Stereowand: normale TV Wand
Balkon, Dachterrasse: kleine Terrasse auf der minimal rausgezogenen Garage Richtung S/W, Terrasse Richtung S/O
Garage, Carport: Doppelgarage mit einem Tor
Nutzgarten, Treibhaus: normal
weitere Wünsche/Besonderheiten/Tagesablauf, gern auch Begründungen, warum dieses oder das nicht sein soll: kleine Dusche im Gäste-WC ist uns sehr wichtig, ebenso ein kleiner Raum für das Home Office. Ich arbeite zu 80 % von Zuhause und daher ist das unabdingbar. Außerdem kleiner Abstellraum für Staubsauger usw.
Hausentwurf
Von wem stammt die Planung: Architekt
Was gefällt besonders? Der Ess- und Wohnbereich, sieht unserer Meinung nach, hell und gemütlich aus. Nicht zu groß und nicht zu klein mit tollem Ausblick.
Was gefällt nicht? Warum?: Anordnung Bad zu eng und unvorteilhaft, Flur im OG zu eng?
favorisierte Heiztechnik: Luftwärmepumpe
Wenn Ihr verzichten müsst, auf welche Details/Ausbauten
Kamin
Warum ist der Entwurf so geworden, wie er jetzt ist?
Der Entwurf war ursprünglich größer und mit mehr Details wie Eck -und Dachfenstern, wurde aber kostenoptimiert ausgearbeitet.
Von der Anordnung der Räume und vom Raumkonzept hat sich grundsätzlich aber nichts geändert.
Was ist die wichtigste/grundlegende Frage zum Grundriss in 130 Zeichen zusammengefasst?
Ich würde mir weitere Anregungen, gerade zu den Dingen, die uns nicht so gefallen, wünschen.
Grundsätzlich sind wir hiermit aber ganz zufrieden. Oder seht ihr irgendwelche "No-Gos"?
Sollten irgendwelche Angaben unvollständig oder nicht plausibel sein, prüfe ich das gerne nochmal.





Bebauungsplan/Einschränkungen: Bebauungsplan, Einschränkungen vom Architekt berücksichtigt
Größe des Grundstücks: 675m²
Hang: ja, diagonal durch das Grundstück verlaufend (siehe Höhenplan)
Baufenster, Baulinie und -grenze: 3 m zu allen Seiten
Randbebauung: ja, Nachbar im S/O
Anzahl Stellplatz: 2 Garage und 2 vor Garage
Geschossigkeit: 2,5
Dachform: Satteldach 36 Grad
Stilrichtung: einfach gehalten
Ausrichtung: Süd-West
Maximale Höhen/Begrenzungen: wie Nachbarbebauung, hoch genug
weitere Vorgaben: keine
Straße: Sackgasse, unser Haus liegt am Ende, somit zur einen Seite Nachbarn, zur anderen freie Sicht auf Wald, Wiese und Tal
Anforderungen der Bauherren
Stilrichtung, Dachform, Gebäudetyp: innen möglichst offen und geradlinig gestaltet, von außen schlicht
Keller, Geschosse: Keller, EG und OG
Anzahl der Personen, Alter: noch 2 (beide 28), 1-2 Kinder geplant
Raumbedarf im EG, OG: ca. 140 qm Wohnfläche
Büro: Unbedingt notwendig aufgrund 80 % Remote Work
Schlafgäste: sehr selten
offene oder geschlossene Architektur: offen
konservativ oder moderne Bauweise: konservativ (da meist auch günstiger)
offene Küche, Kochinsel: offene Küche mit Theke oder Insel (aufgrund der Platzverhältnisse und des Schnitts eher Theke)
Anzahl Essplätze: 4-6
Kamin: geplant, aber kein Muss
Musik/Stereowand: normale TV Wand
Balkon, Dachterrasse: kleine Terrasse auf der minimal rausgezogenen Garage Richtung S/W, Terrasse Richtung S/O
Garage, Carport: Doppelgarage mit einem Tor
Nutzgarten, Treibhaus: normal
weitere Wünsche/Besonderheiten/Tagesablauf, gern auch Begründungen, warum dieses oder das nicht sein soll: kleine Dusche im Gäste-WC ist uns sehr wichtig, ebenso ein kleiner Raum für das Home Office. Ich arbeite zu 80 % von Zuhause und daher ist das unabdingbar. Außerdem kleiner Abstellraum für Staubsauger usw.
Hausentwurf
Von wem stammt die Planung: Architekt
Was gefällt besonders? Der Ess- und Wohnbereich, sieht unserer Meinung nach, hell und gemütlich aus. Nicht zu groß und nicht zu klein mit tollem Ausblick.
Was gefällt nicht? Warum?: Anordnung Bad zu eng und unvorteilhaft, Flur im OG zu eng?
favorisierte Heiztechnik: Luftwärmepumpe
Wenn Ihr verzichten müsst, auf welche Details/Ausbauten
Kamin
Warum ist der Entwurf so geworden, wie er jetzt ist?
Der Entwurf war ursprünglich größer und mit mehr Details wie Eck -und Dachfenstern, wurde aber kostenoptimiert ausgearbeitet.
Von der Anordnung der Räume und vom Raumkonzept hat sich grundsätzlich aber nichts geändert.
Was ist die wichtigste/grundlegende Frage zum Grundriss in 130 Zeichen zusammengefasst?
Ich würde mir weitere Anregungen, gerade zu den Dingen, die uns nicht so gefallen, wünschen.
Grundsätzlich sind wir hiermit aber ganz zufrieden. Oder seht ihr irgendwelche "No-Gos"?
Sollten irgendwelche Angaben unvollständig oder nicht plausibel sein, prüfe ich das gerne nochmal.
Cooler Grundriss. Gefällt mir gut. Wirkt durch die Raumaufteilung größer als 140 m². Sind das 2 Vollgeschosse also Stadtvilla?
Ohne genaue Bemaßung und Nordpfeil (sind die Pläne genordet?) des Grundrisses wirst Du hier aber keine konkretere Einschätzung bekommen (können).
Btw: Die Ecke oben links im Hauptbad verstehe ich nicht. Was ist da geplant?
Ohne genaue Bemaßung und Nordpfeil (sind die Pläne genordet?) des Grundrisses wirst Du hier aber keine konkretere Einschätzung bekommen (können).
Btw: Die Ecke oben links im Hauptbad verstehe ich nicht. Was ist da geplant?
Danke für deine Einschätzung. Ja, beim Bad sind wir auch nicht wirklich zufrieden, das ist eine ziemliche Schwachstelle.
Da muss eine andere Anordnung her. Bei Anregungen, immer her damit 🙂
Die Ecke im Bad stellt tatsächlich ungenutzten Raum dar. Das ganze Bad ist uns aber generell etwas zu eng und verschnörkelt.
Die Pläne sind genordet. Bei den Grundrissen kann man sich quasi oben links in der Ecke N und unten rechts S denken. Werde ich nachträglich noch beschriften 🙂
Stadtvilla hätten wir gerne gebaut, lässt der Bebauungsplan allerdings nicht zu. 1,5 Geschosse, daher oben schon etwas enger durch die Schrägen.
Da muss eine andere Anordnung her. Bei Anregungen, immer her damit 🙂
Die Ecke im Bad stellt tatsächlich ungenutzten Raum dar. Das ganze Bad ist uns aber generell etwas zu eng und verschnörkelt.
Die Pläne sind genordet. Bei den Grundrissen kann man sich quasi oben links in der Ecke N und unten rechts S denken. Werde ich nachträglich noch beschriften 🙂
Stadtvilla hätten wir gerne gebaut, lässt der Bebauungsplan allerdings nicht zu. 1,5 Geschosse, daher oben schon etwas enger durch die Schrägen.
M
Myrna_Loy14.10.21 13:13Die Kinderbetten funktionieren aufgrund der Dachschrägen an den Stellen nicht. Das Bad geht sicher besser. Das Ding in der Ecke sieht aus wie ein Schacht für ???
Ansonsten ein schöner Grundriss.
Ansonsten ein schöner Grundriss.
H
hampshire14.10.21 13:19Das Haus macht auf mich einen sehr angenehmen und gut bewohnbaren Eindruck. Der lange Flur im EG könnte in der Lebenspraxis vor Allem mit kleinen Kindern zur chronischen Engstelle werden, das geht aber irgendwann vorbei. im OG würde ich auf die Eingangs-Appendizes von Schlafzimmer und Bad verzichten. Im Bad ruhig noch etwas mit der Anordnung der Einrichtung spielen. Passt der Wäscheabwurf zu einer Stossfreien Stehhöhe? Nenne die Ankleide begehbaren Kleiderschrank und das passt auch, Sich ent- und einzukleiden wird da maximal für pygmäische Schlangenmenschen bequem sein. Sei froh, dass Du ein richtiges Dach mit grossem Übergang bekommst und kein Stadtvillahütchen. Gut gefällt mir die flächenmässige Strukturierung der in einen Balkon übergehenden Terrasse und der damit einhergehende Rücksprung im Essbereich. Das gibt außen wertvollen Terrassenraum und erspart drinnen den bei quadratischen Grundrissen oft ungemütlichen Leerraum zwischen Küche und Essbereich.
P.S. Kinderbetten sind OK, wenn das Kopfkissen auf die andere Seite kommt.
P.S. Kinderbetten sind OK, wenn das Kopfkissen auf die andere Seite kommt.
H
hanghaus200014.10.21 13:24Gibt es auch einen Plan wo das Haus im Grundstück geplant ist?
Gelaende faellt nach WNW?
Wer hat das geplant? Ein Bauunternehmer?
Gelaende faellt nach WNW?
Wer hat das geplant? Ein Bauunternehmer?
Ähnliche Themen