ᐅ Neubau Einfamilienhaus ~160m² + Keller - Erster Entwurf
Erstellt am: 17.02.20 07:58
Hallo zusammen, wir haben ein Grundstück erworben und würden gerne mit dem planen fürs Bauen anfangen.
Die Pläne sind von mir selber erstellt. Wir haben noch kein Angebot, wollen aber in den nächsten Wochen zu den Häuslebauern losziehen.
Bebauungsplan/Einschränkungen
Größe des Grundstücks: 1099m²
Hang: nein
Grundflächenzahl: -
Geschossflächenzahl: -
Baufenster, Baulinie und -grenze: -
Randbebauung: -
Anzahl Stellplatz: 2
Geschossigkeit 1/2 - 2
Dachform: -
Stilrichtung: -
Ausrichtung: Süden oder Norden
Maximale Höhen/Begrenzungen: -
weitere Vorgaben: Es gibt kein Bebauungsplan. In der Nachbarschaft ist so gut wie alles an Häusern vertreten. Daher freie Bahn.
Anforderungen der Bauherren
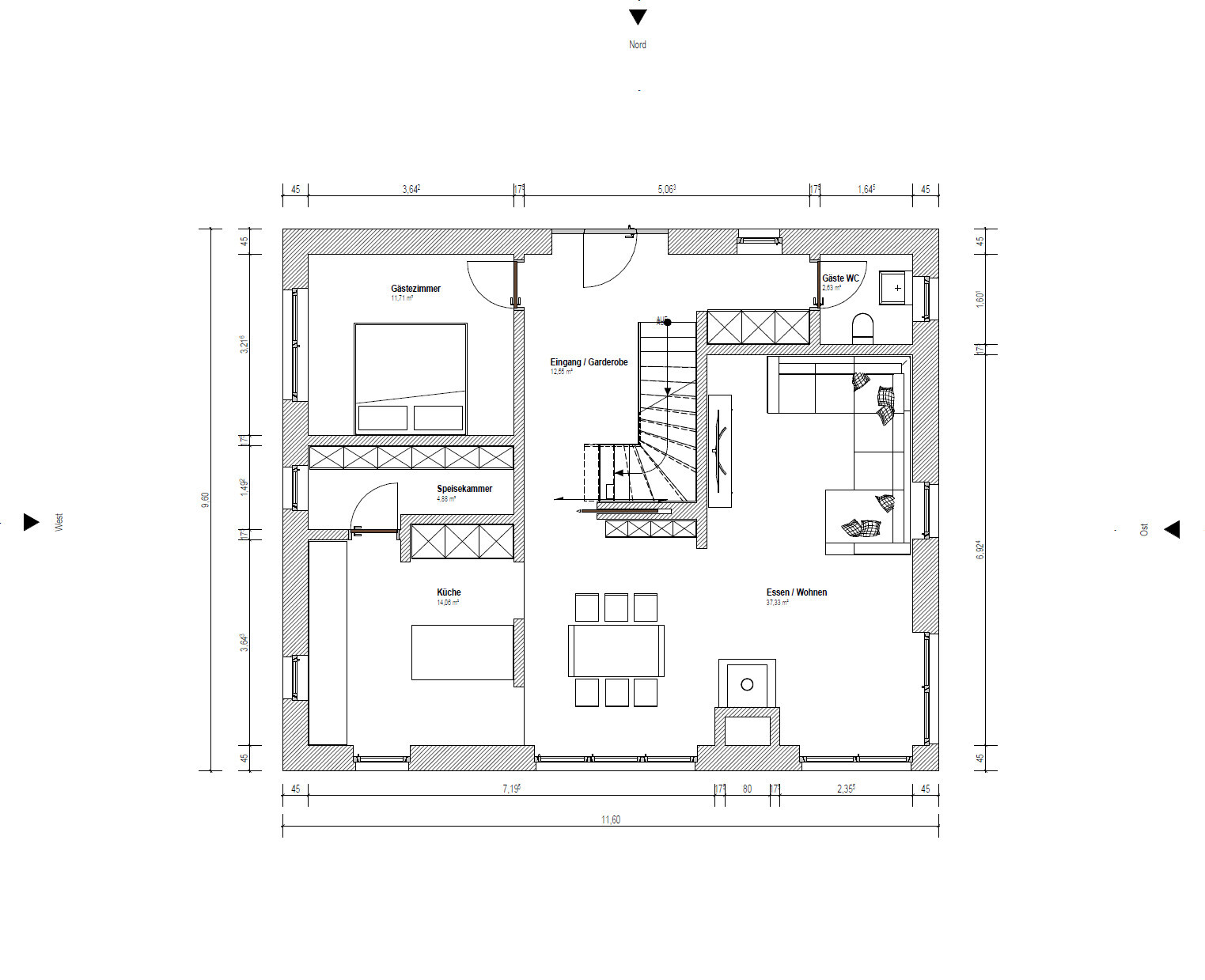
Stilrichtung, Dachform, Gebäudetyp: Einfamilienhaus mit Satteldach
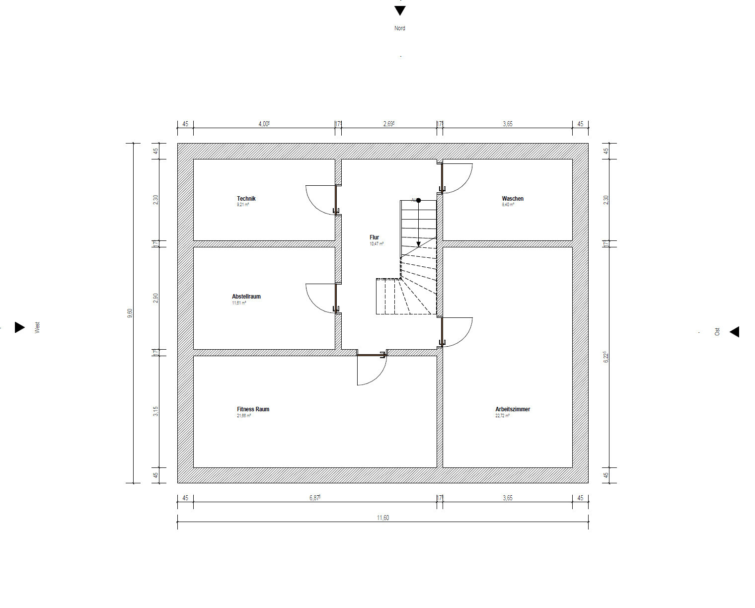
Keller, Geschosse: KG, EG, DG
Anzahl der Personen, Alter: 2x 29
Büro: Familiennutzung oder Homeoffice?: Homeoffice für Sie und Ihn
Schlafgäste pro Jahr: 10-20
offene oder geschlossene Architektur: Sowohl als auch
konservativ oder moderne Bauweise: Modern
offene Küche, Kochinsel: Offene Küche mit Glasschiebetüren zum "Abtrennen", Insel Ja
Anzahl Essplätze: 4-6
Kamin: ja
Musik/Stereowand: Sonos vorhanden
Balkon, Dachterrasse: Nein
Garage, Carport: Doppelcarport mit Schuppen
Nutzgarten, Treibhaus: Vorerst nicht
Hausentwurf
Von wem stammt die Planung: Do-it-Yourself
Was gefällt besonders? Warum?
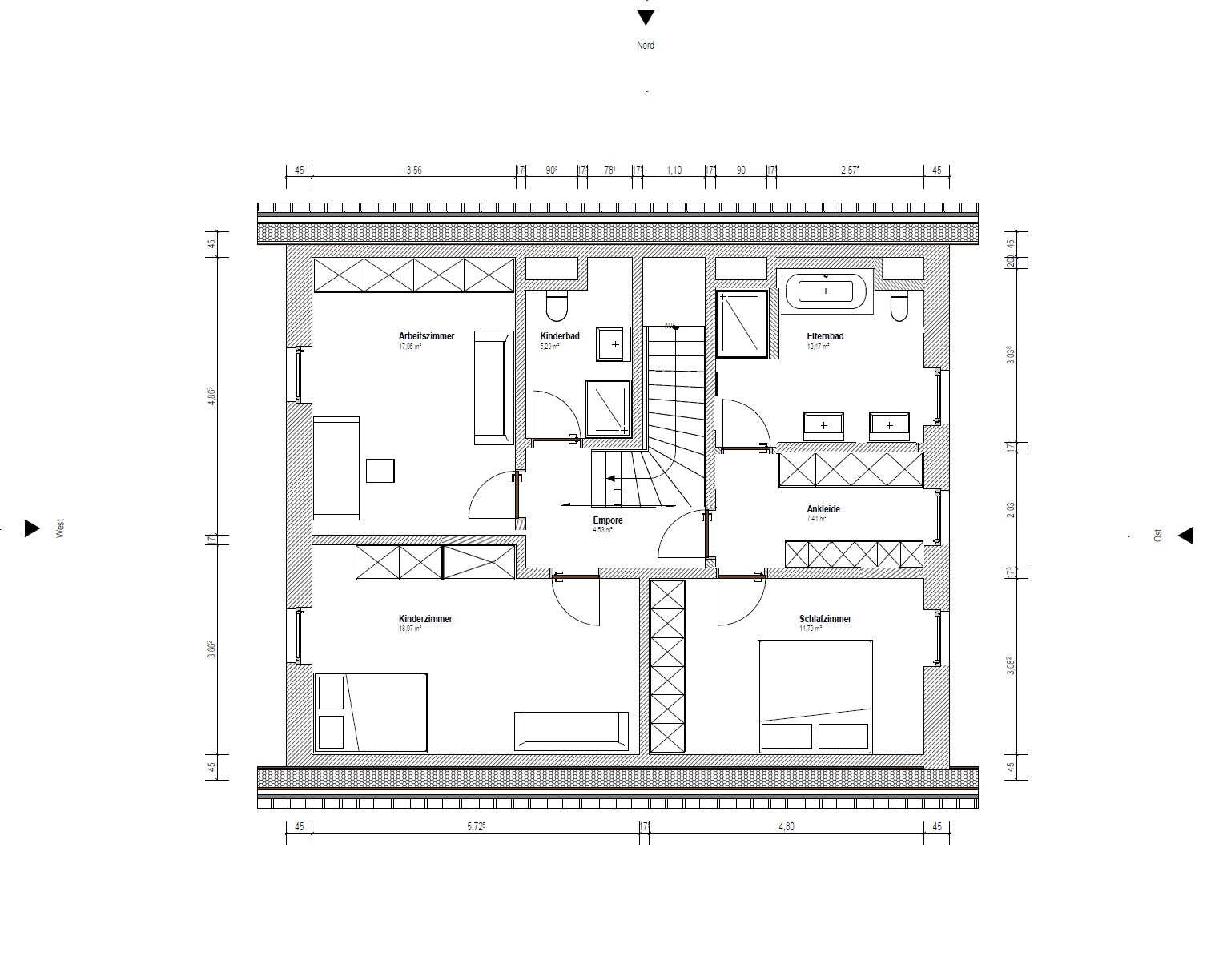
Was gefällt nicht? Warum? Die Ankleide ist nicht perfekt.
Preisschätzung lt Architekt/Planer:
Persönliches Preislimit fürs Haus, inkl Ausstattung: 500.000€
favorisierte Heiztechnik: Sole-WWP
Wenn Ihr verzichten müsst, auf welche Details/Ausbauten
-könnt Ihr verzichten: Keller, dann aber Grundmaße größer
-könnt Ihr nicht verzichten: 2x Arbeitszimmer
Warum ist der Entwurf so geworden, wie er jetzt ist? ZB
Standardentwurf vom Planer? Grundmaße sind dem Maxime 610 von Viebrockhaus entnommen, mit weiteren Einflüssen
Was ist die wichtigste/grundlegende Frage zum Grundriss in 130 Zeichen zusammengefasst?
Uns Gefällt der Grundriss so schon ganz gut. Die Ankleide oben ist noch nicht optimal. Evtl. den Eingang durch Schlafzimmer, damit ist mehr Platz in der Ankleide.
Fenster im Keller sind noch nicht eingezeichnet. Aber natürlich vorgesehen.
Hätte gerne einfach mal ein paar Meinungen dazu gehört. Da wir noch komplett unerfahren im Bereich Bauen sind.





Die Pläne sind von mir selber erstellt. Wir haben noch kein Angebot, wollen aber in den nächsten Wochen zu den Häuslebauern losziehen.
Bebauungsplan/Einschränkungen
Größe des Grundstücks: 1099m²
Hang: nein
Grundflächenzahl: -
Geschossflächenzahl: -
Baufenster, Baulinie und -grenze: -
Randbebauung: -
Anzahl Stellplatz: 2
Geschossigkeit 1/2 - 2
Dachform: -
Stilrichtung: -
Ausrichtung: Süden oder Norden
Maximale Höhen/Begrenzungen: -
weitere Vorgaben: Es gibt kein Bebauungsplan. In der Nachbarschaft ist so gut wie alles an Häusern vertreten. Daher freie Bahn.
Anforderungen der Bauherren
Stilrichtung, Dachform, Gebäudetyp: Einfamilienhaus mit Satteldach
Keller, Geschosse: KG, EG, DG
Anzahl der Personen, Alter: 2x 29
Büro: Familiennutzung oder Homeoffice?: Homeoffice für Sie und Ihn
Schlafgäste pro Jahr: 10-20
offene oder geschlossene Architektur: Sowohl als auch
konservativ oder moderne Bauweise: Modern
offene Küche, Kochinsel: Offene Küche mit Glasschiebetüren zum "Abtrennen", Insel Ja
Anzahl Essplätze: 4-6
Kamin: ja
Musik/Stereowand: Sonos vorhanden
Balkon, Dachterrasse: Nein
Garage, Carport: Doppelcarport mit Schuppen
Nutzgarten, Treibhaus: Vorerst nicht
Hausentwurf
Von wem stammt die Planung: Do-it-Yourself
Was gefällt besonders? Warum?
Was gefällt nicht? Warum? Die Ankleide ist nicht perfekt.
Preisschätzung lt Architekt/Planer:
Persönliches Preislimit fürs Haus, inkl Ausstattung: 500.000€
favorisierte Heiztechnik: Sole-WWP
Wenn Ihr verzichten müsst, auf welche Details/Ausbauten
-könnt Ihr verzichten: Keller, dann aber Grundmaße größer
-könnt Ihr nicht verzichten: 2x Arbeitszimmer
Warum ist der Entwurf so geworden, wie er jetzt ist? ZB
Standardentwurf vom Planer? Grundmaße sind dem Maxime 610 von Viebrockhaus entnommen, mit weiteren Einflüssen
Was ist die wichtigste/grundlegende Frage zum Grundriss in 130 Zeichen zusammengefasst?
Uns Gefällt der Grundriss so schon ganz gut. Die Ankleide oben ist noch nicht optimal. Evtl. den Eingang durch Schlafzimmer, damit ist mehr Platz in der Ankleide.
Fenster im Keller sind noch nicht eingezeichnet. Aber natürlich vorgesehen.
Hätte gerne einfach mal ein paar Meinungen dazu gehört. Da wir noch komplett unerfahren im Bereich Bauen sind.
Hallo LukeLuu,
für den ersten Aufschlag finde ich den Grundriss nicht so schlecht. Natürlich gibt es dennoch einige Punkte, an denen man ansetzen kann.
zum einen scheinen die eingezeichneten Möbel etwas klein. So auch der Tisch. das führt mich auch zu der größten Kröte (aus meiner Sicht): Das Wohn-Esszimmer. Ein Kamin ist ja schön und gut. Aber in dieser Lage verhindert er, dass ihr einen großen Tisch aufstellen könnt. Was, wenn ihr mal eine große Tafel braucht? Gleichzeitig ist das Wohnzimmer in eine Ecke gequetscht. Hier gibt es viele die sagen, dass die Raumtiefe mindestens 4 Meter betragen soll. Wir werden da selbst knapp drunter liegen, aber bei euch finde ich es auch von den Laufwegen arg eng. Und bei aller Enge hat man gleichzeitig rechts im Wohnzimmer eine Ecke, die überhaupt keinen Nutzen zu haben scheint? Nach den qm sind ja 33qm für den Raum ausreichend - aber mindestens fünf davon stehen einfach leer. Das wird auch keine Großzügigkeit erwecken.
ebenfalls eng: die Ankleide mit 2m Rohbaumaß. Rechne mal mit 60cm Schranktiefe - das wird sehr beklemmend sich dazwischen anzuziehen.
Wollt ihr sicher nur ein Kind? Braucht das dann zwingend ein eigenes Bad oder könnte es die Situation oben evtl. Entspannen, wenn man ein großes Familienbad macht?
Aber das schöne: So ein Grundriss ist ja ein Prozess
für den ersten Aufschlag finde ich den Grundriss nicht so schlecht. Natürlich gibt es dennoch einige Punkte, an denen man ansetzen kann.
zum einen scheinen die eingezeichneten Möbel etwas klein. So auch der Tisch. das führt mich auch zu der größten Kröte (aus meiner Sicht): Das Wohn-Esszimmer. Ein Kamin ist ja schön und gut. Aber in dieser Lage verhindert er, dass ihr einen großen Tisch aufstellen könnt. Was, wenn ihr mal eine große Tafel braucht? Gleichzeitig ist das Wohnzimmer in eine Ecke gequetscht. Hier gibt es viele die sagen, dass die Raumtiefe mindestens 4 Meter betragen soll. Wir werden da selbst knapp drunter liegen, aber bei euch finde ich es auch von den Laufwegen arg eng. Und bei aller Enge hat man gleichzeitig rechts im Wohnzimmer eine Ecke, die überhaupt keinen Nutzen zu haben scheint? Nach den qm sind ja 33qm für den Raum ausreichend - aber mindestens fünf davon stehen einfach leer. Das wird auch keine Großzügigkeit erwecken.
ebenfalls eng: die Ankleide mit 2m Rohbaumaß. Rechne mal mit 60cm Schranktiefe - das wird sehr beklemmend sich dazwischen anzuziehen.
Wollt ihr sicher nur ein Kind? Braucht das dann zwingend ein eigenes Bad oder könnte es die Situation oben evtl. Entspannen, wenn man ein großes Familienbad macht?
Aber das schöne: So ein Grundriss ist ja ein Prozess
Find ich ganz gut mit paar Macken:
1. soll das der Kamin sein im EG? Dann mal bitte den Schornstein bis ins Dach zeichnen. Das dürfte Probleme geben. Zudem setzt man die Esse möglichst nicht an die Traufseite des Daches.
2. Die Tür ins Arbeitszimmer oben würde ich noch etwas nach planoben versetzen, so dass man die Wand gerade ziehen kann.
3. abgehende Türen von der Ankleide ins Schlafzimmer und Bad mal nach vorn holen (so dass man nicht erst durch die Ankleide durch rennen muss). Das dürfte die Situation etwas entspannen. Dazu die Eingangs-Tür in den Elternbereich anders herum anschlagen lassen. Fenster in der Ankleide muss evtl. etwas schmaler. (ich hoffe, das kam rüber. )
4. Fenster im OG allesamt zu klein. Fenster im EG für die Ansichten vermutlich nicht optimal - da kann man bestimmt noch verbessern.
5. große Kellerräume würde ich mit Lichtschächten planen.
1. soll das der Kamin sein im EG? Dann mal bitte den Schornstein bis ins Dach zeichnen. Das dürfte Probleme geben. Zudem setzt man die Esse möglichst nicht an die Traufseite des Daches.
2. Die Tür ins Arbeitszimmer oben würde ich noch etwas nach planoben versetzen, so dass man die Wand gerade ziehen kann.
3. abgehende Türen von der Ankleide ins Schlafzimmer und Bad mal nach vorn holen (so dass man nicht erst durch die Ankleide durch rennen muss). Das dürfte die Situation etwas entspannen. Dazu die Eingangs-Tür in den Elternbereich anders herum anschlagen lassen. Fenster in der Ankleide muss evtl. etwas schmaler. (ich hoffe, das kam rüber. )
4. Fenster im OG allesamt zu klein. Fenster im EG für die Ansichten vermutlich nicht optimal - da kann man bestimmt noch verbessern.
5. große Kellerräume würde ich mit Lichtschächten planen.
Danke schon mal für die Antworten
Lenschke schrieb:Die Möbel sollten alle eigentlich Originalmaß haben. Der Tisch ist 170x90. Aber ja verstehe was du meinst. Evlt den Kamin in die Mitte versetzen.
zum einen scheinen die eingezeichneten Möbel etwas klein. So auch der Tisch. das führt mich auch zu der größten Kröte (aus meiner Sicht): Das Wohn-Esszimmer. Ein Kamin ist ja schön und gut. Aber in dieser Lage verhindert er, dass ihr einen großen Tisch aufstellen könnt. Was, wenn ihr mal eine große Tafel braucht?
Lenschke schrieb:Die Breite der Wohnecke ist 3,65. Das sofa hat ca. 2,50 Breite und 3,50 Länge. Habe mich da an unsere aktuellen Gegebenheiten orientiert.
Gleichzeitig ist das Wohnzimmer in eine Ecke gequetscht. Hier gibt es viele die sagen, dass die Raumtiefe mindestens 4 Meter betragen soll. Wir werden da selbst knapp drunter liegen, aber bei euch finde ich es auch von den Laufwegen arg eng.
Lenschke schrieb:Dort hatte ich einen Sessel vorgesehen. Und wenn mal ein Baby da sein sollte, könnte dann ein Laufstall oder ähnliches dort stehen.
Und bei aller Enge hat man gleichzeitig rechts im Wohnzimmer eine Ecke, die überhaupt keinen Nutzen zu haben scheint? Nach den qm sind ja 33qm für den Raum ausreichend - aber mindestens fünf davon stehen einfach leer. Das wird auch keine Großzügigkeit erwecken.
Lenschke schrieb:Ja wie gesagt, dort passt eigentlich nur ein schrank und das wars dann.
ebenfalls eng: die Ankleide mit 2m Rohbaumaß. Rechne mal mit 60cm Schranktiefe - das wird sehr beklemmend sich dazwischen anzuziehen.
Lenschke schrieb:Eigentlich nur eins, aber man weiß ja nie was kommt, daher oben zwei ähnliche Räume, sodass Arbeitszimmer dann auch ins Gäste EG wandern könnte
Wollt ihr sicher nur ein Kind? Braucht das dann zwingend ein eigenes Bad oder könnte es die Situation oben evtl. Entspannen, wenn man ein großes Familienbad macht?
kaho674 schrieb:Okay, soweit hatte ich noch nicht gedacht. Evtl. dann den Kamin in die Mitte des Raumes setzen.
Find ich ganz gut mit paar Macken:
1. soll das der Kamin sein im EG? Dann mal bitte den Schornstein bis ins Dach zeichnen. Das dürfte Probleme geben. Zudem setzt man die Esse möglichst nicht an die Traufseite des Daches.
kaho674 schrieb:Ja, verstehe.
2. Die Tür ins Arbeitszimmer oben würde ich noch etwas nach planoben versetzen, so dass man die Wand gerade ziehen kann.
kaho674 schrieb:Ja, verstehe ich auch. Aber dann wirds im Bad sehr eng. Wie baut man dann am besten die Dusche? Da dann das Fenster in den Weg kommen könnte.
3. abgehende Türen von der Ankleide ins Schlafzimmer und Bad mal nach vorn holen (so dass man nicht erst durch die Ankleide durch rennen muss). Das dürfte die Situation etwas entspannen. Dazu die Eingangs-Tür in den Elternbereich anders herum anschlagen lassen. Fenster in der Ankleide muss evtl. etwas schmaler. (ich hoffe, das kam rüber. )
kaho674 schrieb:Sind alle 1m Breit. Wie meinst du das im EG?
4. Fenster im OG allesamt zu klein. Fenster im EG für die Ansichten vermutlich nicht optimal - da kann man bestimmt noch verbessern.
kaho674 schrieb:Ja ist, wie oben schon erwähnt, nicht eingezeichnet worden, aber natürlich vorgesehen.
5. große Kellerräume würde ich mit Lichtschächten planen.
LukeLuu schrieb:
Okay, soweit hatte ich noch nicht gedacht. Evtl. dann den Kamin in die Mitte des Raumes setzen.Kamin seh ich hier noch nicht so einfach. Am besten weglassen. LukeLuu schrieb:
Ja, verstehe ich auch. Aber dann wirds im Bad sehr eng. Wie baut man dann am besten die Dusche? Da dann das Fenster in den Weg kommen könnte.Mein Standard unter der Dachschräge ist der:Kommt auch exakt hin mit den Maßen:
100Dusche + 175 Wanne + 90 WC = 365cm.
LukeLuu schrieb:
Sind alle 1m Breit. Das is nichts. Am besten verdoppeln bzw. maximieren. Kniestock & Dachschräge unbekannt - daher keine konkreten Tipps möglich.LukeLuu schrieb:
Wie meinst du das im EG?Beim Giebel von Satteldächern ist Symmetrie schon nicht schlecht. Oder wenigstens irgend eine andere ästhetische Anordnung passend zum OG.Ähnliche Themen