Hallo liebes Hausbau Forum,
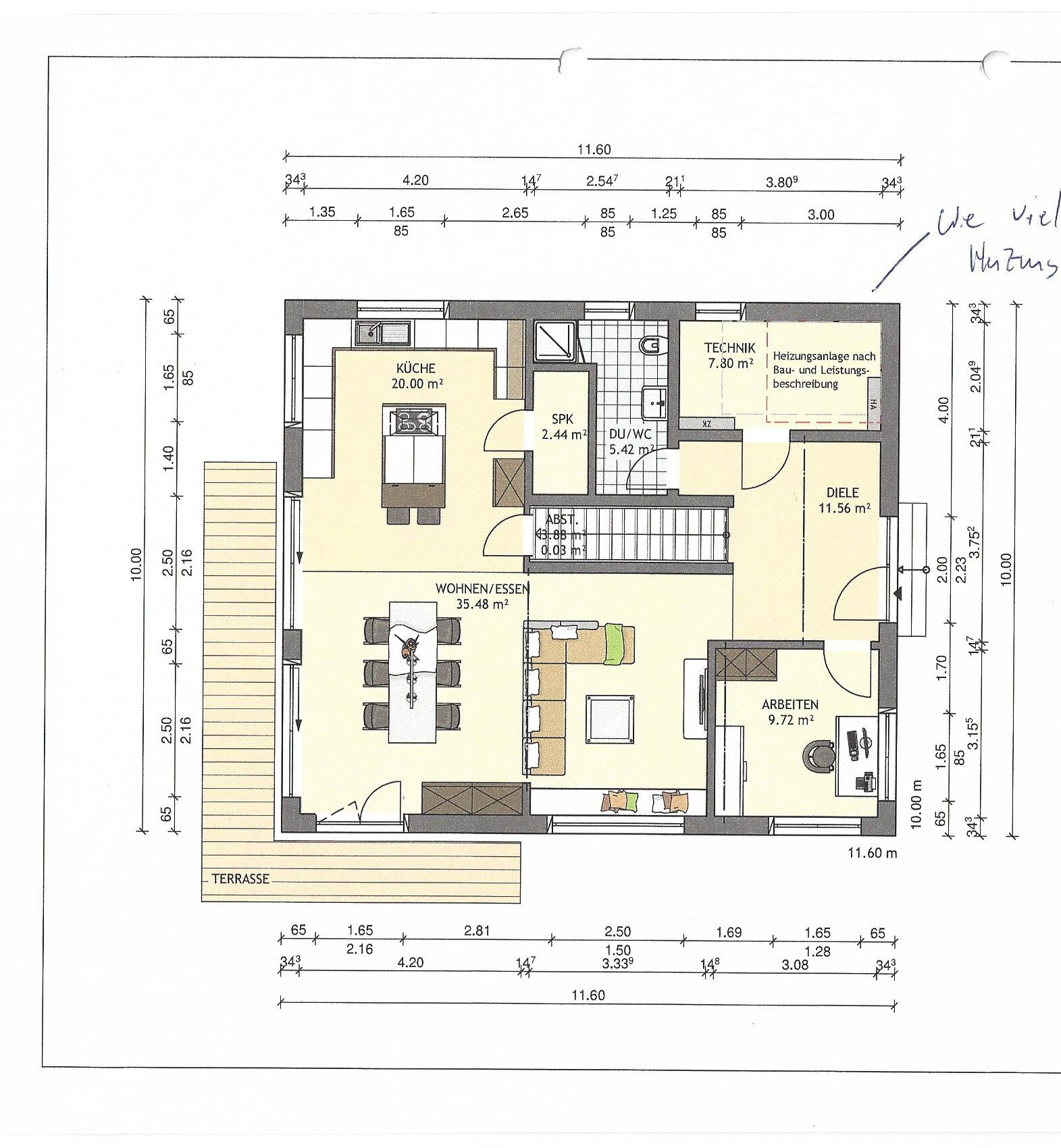
wir planen ein Einfamilienhaus auf einem Teil des elterlichen Grundstücks zu bauen. Das Grundstück muss noch abgetrennt werden und anschließend erschlossen. Im Moment dreht sich die Frage um den Grundriss. Die Küche ist Richtung Norden ausgerichtet. Das große Wohnzimmerfenster nach Süden. Der Eingangsbereich im Osten.
Schaut auch doch den Grundriss mal an und wir würden uns über ehrliches Feedback freuen! Danke euch im Voraus!
Bebauungsplan/Einschränkungen
Größe des Grundstücks:450qm (30x15)
Hang: nein
Baufenster, Baulinie und -grenze: 2,5 Meter an der langen Seite, 6 Meter an der schmalen Westseite, an der Ostseite Grenzbebauung möglich (elterliches Grundstück grenzt daran)
Randbebauung: nein
Anzahl Stellplatz:
Geschossigkeit:
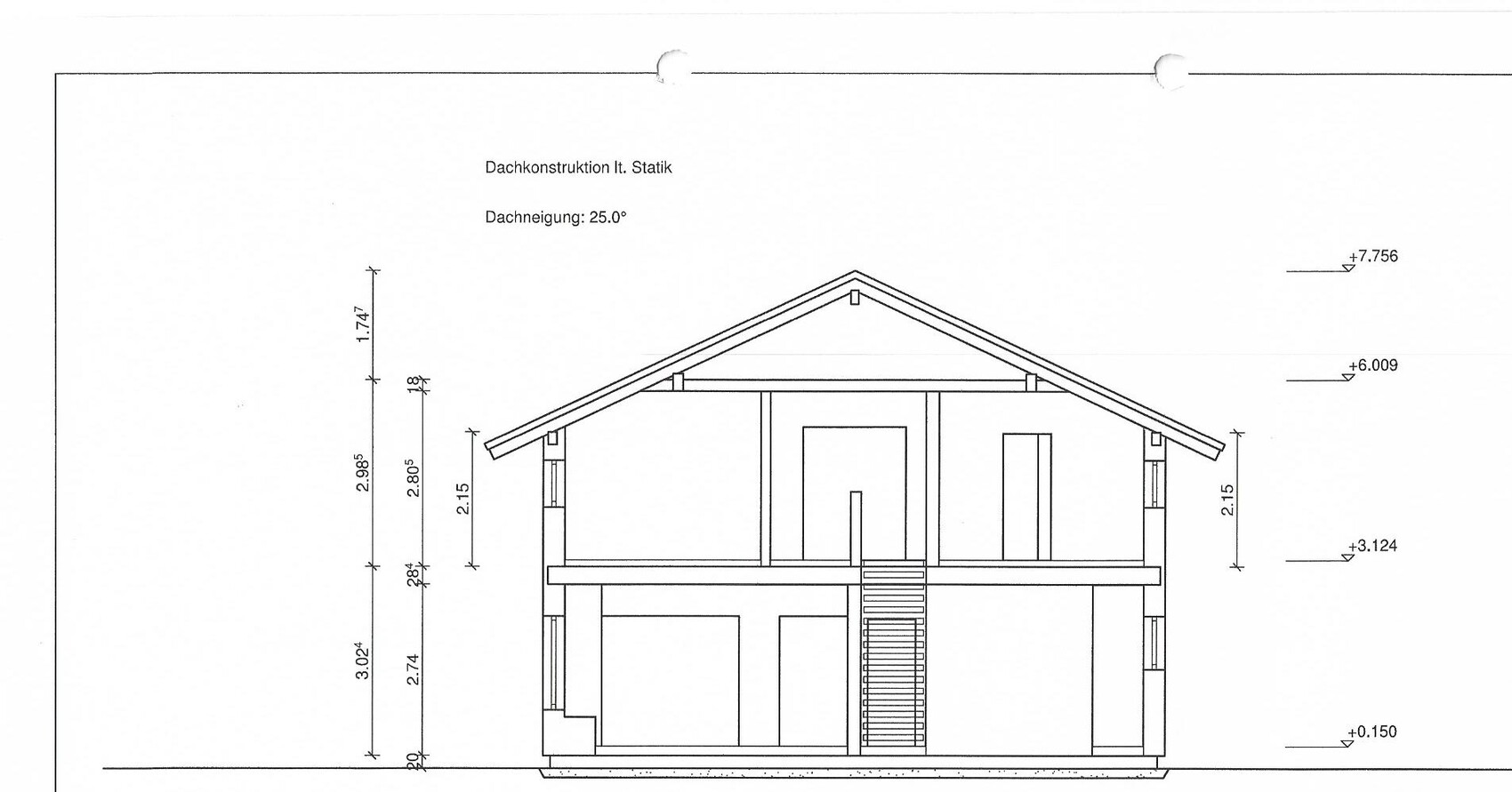
Dachform: Satteldach
Anforderungen der Bauherren
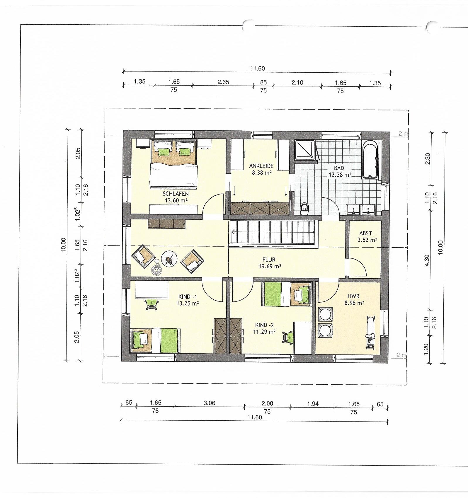
Keller, Geschosse: Keller nicht vorgesehen, 2 Geschosse geplant
Anzahl der Personen, Alter: 2 Personen á und 35 Jahre (Kinder geplant)
Büro: Homeoffice wird manchmal benötigt
Schlafgäste pro Jahr: 10
offene oder geschlossene Architektur: offen
konservativ oder moderne Bauweise: modern
offene Küche, Kochinsel
Anzahl Essplätze: 8-10
Kamin: nein
Garage, Carport: Kombination aus Garage und Carport soll realisiert werden
Hausentwurf
Von wem stammt die Planung:
-Architekt eine Fertighausanbieters mit eigenen Vorgaben aus verschiedenen Musterhäusern
Was gefällt besonders? Warum?: Offener Wohn/Essbereich und großzügige Diele
Was gefällt nicht? Warum?: Dadurch dass kein Keller vorhanden ist, muss man entsprechend Stauraum finden, dadurch ist das Hauswirtschaftsraum im OG entstanden, was Vor-und Nachteile bringt
Preisschätzung lt Architekt/Planer: 382.000 €
favorisierte Heiztechnik: momentan ist eine Erdwärmeheizung eingeplant, aber Wärmepumpe wäre auch ok. Beim Thema Lüftungsanlage sind wir uns nicht sicher
Wenn Ihr verzichten müsst, auf welche Details/Ausbauten
-könnt Ihr verzichten: evtl. ie Sitzgelegenheiten im OG im Flur bzw. den Ra cleverer nutzen
-könnt Ihr nicht verzichten: Großzügigkeit im EG und große Fenster im EG
Warum ist der Entwurf so geworden, wie er jetzt ist? ZB
Der Entwurf ist ein Gemisch aus vielen Musterhäusern, eigenen Ideen und Themen, des Architekten
Was ist die wichtigste/grundlegende Frage zum Grundriss in 130 Zeichen zusammengefasst?
Wir fragen uns, ob dieser Grundriss logistisch für den Alltag passt. Haben noch nie in einem Einfamilienhaus gewohnt. Außerdem stellt sich die Frage, ob die Räume weder zu groß, noch zu klein geplant sind. Gibt es genug Licht?



wir planen ein Einfamilienhaus auf einem Teil des elterlichen Grundstücks zu bauen. Das Grundstück muss noch abgetrennt werden und anschließend erschlossen. Im Moment dreht sich die Frage um den Grundriss. Die Küche ist Richtung Norden ausgerichtet. Das große Wohnzimmerfenster nach Süden. Der Eingangsbereich im Osten.
Schaut auch doch den Grundriss mal an und wir würden uns über ehrliches Feedback freuen! Danke euch im Voraus!
Bebauungsplan/Einschränkungen
Größe des Grundstücks:450qm (30x15)
Hang: nein
Baufenster, Baulinie und -grenze: 2,5 Meter an der langen Seite, 6 Meter an der schmalen Westseite, an der Ostseite Grenzbebauung möglich (elterliches Grundstück grenzt daran)
Randbebauung: nein
Anzahl Stellplatz:
Geschossigkeit:
Dachform: Satteldach
Anforderungen der Bauherren
Keller, Geschosse: Keller nicht vorgesehen, 2 Geschosse geplant
Anzahl der Personen, Alter: 2 Personen á und 35 Jahre (Kinder geplant)
Büro: Homeoffice wird manchmal benötigt
Schlafgäste pro Jahr: 10
offene oder geschlossene Architektur: offen
konservativ oder moderne Bauweise: modern
offene Küche, Kochinsel
Anzahl Essplätze: 8-10
Kamin: nein
Garage, Carport: Kombination aus Garage und Carport soll realisiert werden
Hausentwurf
Von wem stammt die Planung:
-Architekt eine Fertighausanbieters mit eigenen Vorgaben aus verschiedenen Musterhäusern
Was gefällt besonders? Warum?: Offener Wohn/Essbereich und großzügige Diele
Was gefällt nicht? Warum?: Dadurch dass kein Keller vorhanden ist, muss man entsprechend Stauraum finden, dadurch ist das Hauswirtschaftsraum im OG entstanden, was Vor-und Nachteile bringt
Preisschätzung lt Architekt/Planer: 382.000 €
favorisierte Heiztechnik: momentan ist eine Erdwärmeheizung eingeplant, aber Wärmepumpe wäre auch ok. Beim Thema Lüftungsanlage sind wir uns nicht sicher
Wenn Ihr verzichten müsst, auf welche Details/Ausbauten
-könnt Ihr verzichten: evtl. ie Sitzgelegenheiten im OG im Flur bzw. den Ra cleverer nutzen
-könnt Ihr nicht verzichten: Großzügigkeit im EG und große Fenster im EG
Warum ist der Entwurf so geworden, wie er jetzt ist? ZB
Der Entwurf ist ein Gemisch aus vielen Musterhäusern, eigenen Ideen und Themen, des Architekten
Was ist die wichtigste/grundlegende Frage zum Grundriss in 130 Zeichen zusammengefasst?
Wir fragen uns, ob dieser Grundriss logistisch für den Alltag passt. Haben noch nie in einem Einfamilienhaus gewohnt. Außerdem stellt sich die Frage, ob die Räume weder zu groß, noch zu klein geplant sind. Gibt es genug Licht?
Ich würde sagen, das ist baubar und hat auf den ersten Blick keine groben Schnitzer.
Die Frage ist, ob es Euch so gefällt. Bei der gängigen Aufteilung würde man nach der Diele zunächst die Küche erwarten. (WZ und Küche tauschen die Plätze) Das hätte den Vorteil, dass diese im Licht liegt und man beim Gemüseschnippeln nicht ständig die Scheinwerfer anmachen muss. Außerdem rennt man mit den Einkäufen nicht erst durchs ganze Haus. Der Kuschelbereich ist im Nord-/ Westen viel besser aufgehoben und ist auch viel gemütlicher, wenn man ihn von der Haustür nicht gleich einsehen kann. Die Speisekammer unter der Treppe müsste dann allerdings für das nötigste reichen. Dusche und Technikraum müssten neu geplant werden.
Bei dieser Hausgröße erwartet man definitiv größere Kinderzimmers. Der Hauswirtschaftsraum flöge bei mir oben raus. Waschmaschine und Co müssten mit ins EG. (Dort ist ja die Speisekammer weggefallen).
Ich persönlich mag 2 Türen im Bad überhaupt nicht. Aber das muss jeder selbst wissen.
Die Frage ist, ob es Euch so gefällt. Bei der gängigen Aufteilung würde man nach der Diele zunächst die Küche erwarten. (WZ und Küche tauschen die Plätze) Das hätte den Vorteil, dass diese im Licht liegt und man beim Gemüseschnippeln nicht ständig die Scheinwerfer anmachen muss. Außerdem rennt man mit den Einkäufen nicht erst durchs ganze Haus. Der Kuschelbereich ist im Nord-/ Westen viel besser aufgehoben und ist auch viel gemütlicher, wenn man ihn von der Haustür nicht gleich einsehen kann. Die Speisekammer unter der Treppe müsste dann allerdings für das nötigste reichen. Dusche und Technikraum müssten neu geplant werden.
Bei dieser Hausgröße erwartet man definitiv größere Kinderzimmers. Der Hauswirtschaftsraum flöge bei mir oben raus. Waschmaschine und Co müssten mit ins EG. (Dort ist ja die Speisekammer weggefallen).
Ich persönlich mag 2 Türen im Bad überhaupt nicht. Aber das muss jeder selbst wissen.
VICOMA schrieb:
an der Ostseite Grenzbebauung möglich (elterliches Grundstück grenzt daran)Das halte ich für Irrglauben: Abstandsflächen gelten auch innerhalb der Familie. Auf Abstandsflächen kann man nicht ersatzlos verzichten, man muß sie "übernehmen" (Euer Grenzabstand käme dann auf der Seite der Eltern dazu).VICOMA schrieb:
dadurch ist das Hauswirtschaftsraum im OG entstanden, was Vor-und Nachteile bringtDer Hauswirtschaftsraum im Schwerpunkt des Wäscheanfalls macht eigentlich Sinn - aber wenn Ihr das so nicht wolltet, sollte es noch´mal anders geplant werden.VICOMA schrieb:
Sitzgelegenheiten im OG im FlurDas ist m.E. kaschierte Flurflächenverschwendung.VICOMA schrieb:
Außerdem stellt sich die Frage, ob die Räume weder zu groß, noch zu klein geplant sind.Bis auf das Arbeitszimmerchen nicht gigantisch zu fett, aber doch großzügig. Wirklich schmerzhaft wäre es wohl nicht, per Saldo zwanzig Quadratmeter zu kürzen (dreißig weniger in der Wohnfläche, zehn mehr für Abstellfläche).VICOMA schrieb:
Gibt es genug Licht?Gibt es einen Nordpfeil ?https://www.instagram.com/11antgmxde/
https://www.linkedin.com/company/bauen-jetzt/
M
Mottenhausen03.10.18 17:15Südfenster = Lichteinfall? ...in vielen Fällen wird jeder Sonnenstrahl penibel verdunkelt um Überhitzung bedingt durch hohen Wärmeschutz und träge Fußbodenheizung zu vermeiden.
Nahezu alle Häuser werden nach-wie-vor in "Südausrichtung" gebaut um dann automatisierte Beschattung im 5-stelligen €-Bereich zu installieren, die tagsüber jegliche Aussicht zuverlässig behindert.
Nahezu alle Häuser werden nach-wie-vor in "Südausrichtung" gebaut um dann automatisierte Beschattung im 5-stelligen €-Bereich zu installieren, die tagsüber jegliche Aussicht zuverlässig behindert.
Mottenhausen schrieb:
Südfenster = Lichteinfall? ...in vielen Fällen wird jeder Sonnenstrahl penibel verdunkelt um Überhitzung bedingt durch hohen Wärmeschutz und träge Fußbodenheizung zu vermeiden.
Nahezu alle Häuser werden nach-wie-vor in "Südausrichtung" gebaut um dann automatisierte Beschattung im 5-stelligen €-Bereich zu installieren, die tagsüber jegliche Aussicht zuverlässig behindert.heisst also unsinn ? wie sollte es man am besten dann machen ?
Mottenhausen schrieb:
Südfenster = Lichteinfall? ...in vielen Fällen wird jeder Sonnenstrahl penibel verdunkelt um Überhitzung bedingt durch hohen Wärmeschutz und träge Fußbodenheizung zu vermeiden.
Nahezu alle Häuser werden nach-wie-vor in "Südausrichtung" gebaut um dann automatisierte Beschattung im 5-stelligen €-Bereich zu installieren, die tagsüber jegliche Aussicht zuverlässig behindert.Selten größeren Quark gelesen.Ähnliche Themen