ᐅ Grundriss Einfamilienhaus ca. 200qm Doppelgarage Keller
Erstellt am: 06.05.20 01:02
J
jonashartf06.05.20 01:02Hallo zusammen,
erst mal Respekt an das Forum - toll zu sehen, wie viele gute Beiträge hier vorhanden sind und wie "unverblümt" aber zielführend hier diskutiert wird. Das war der Grund, weshalb wir auch unser Bauvorhaben zur Diskussion stellen und uns auf Feedback zur Optimierung freuen.
Bebauungsplan/Einschränkungen
Größe des Grundstücks ca. 800qm
Hang leichte Hanglage (2,5m Gefälle von Nord nach Süd auf 40m)
Grundflächenzahl 0,4
Geschossflächenzahl 0,4?
Baufenster, Baulinie und -grenze 3m
Randbebauung Garage
Anzahl Stellplatz 2 Stellplätze
Geschossigkeit 2 Vollgeschosse (Falls wir die Abweichung vom Bebauungsplan genehmigt bekommen)
Dachform Satteldach
Stilrichtung Modernes Satteldachehaus
Ausrichtung Süd-Westausrichtung Garten
Maximale Höhen/Begrenzungen keine
weitere Vorgaben
Anforderungen der Bauherren
Stilrichtung, Dachform, Gebäudetyp: Satteldach, modern
Keller, Geschosse: 2 Vollgeschosse + Keller
Anzahl der Personen, Alter 4 Personen (2 Erwachsene 2 Kinder)
Raumbedarf im EG, OG ca. 190-210qm
Büro: Familiennutzung oder Homeoffice? Familiennutzung + Homeoffice im Keller
Schlafgäste pro Jahr 3-4x
offene oder geschlossene Architektur teils/teils (Offener und lichtdurchfluteter Wohn-Essbereich)
konservativ oder moderne Bauweise modern
offene Küche, Kochinsel Durch große Schiebetür getrennt
Anzahl Essplätze 8
Kamin ja, mit Sitzbank
Musik/Stereowand geplant Stereowand
Balkon, Dachterrasse nein
Garage, Carport Doppelgarage
Nutzgarten, Treibhaus ja
weitere Wünsche/Besonderheiten/Tagesablauf, gern auch Begründungen, warum dieses oder das nicht sein soll: Fest angebaute Terrassenüberdachung, praktischer Eingangsbereich, Effiziente Raumnutzung, Hauszugang über Doppelgarage
Hausentwurf
Von wem stammt die Planung:
-Planer eines Bauunternehmens
-Architekt
-Do-it-Yourself
Architekt - Ergebnis der Vorplanung
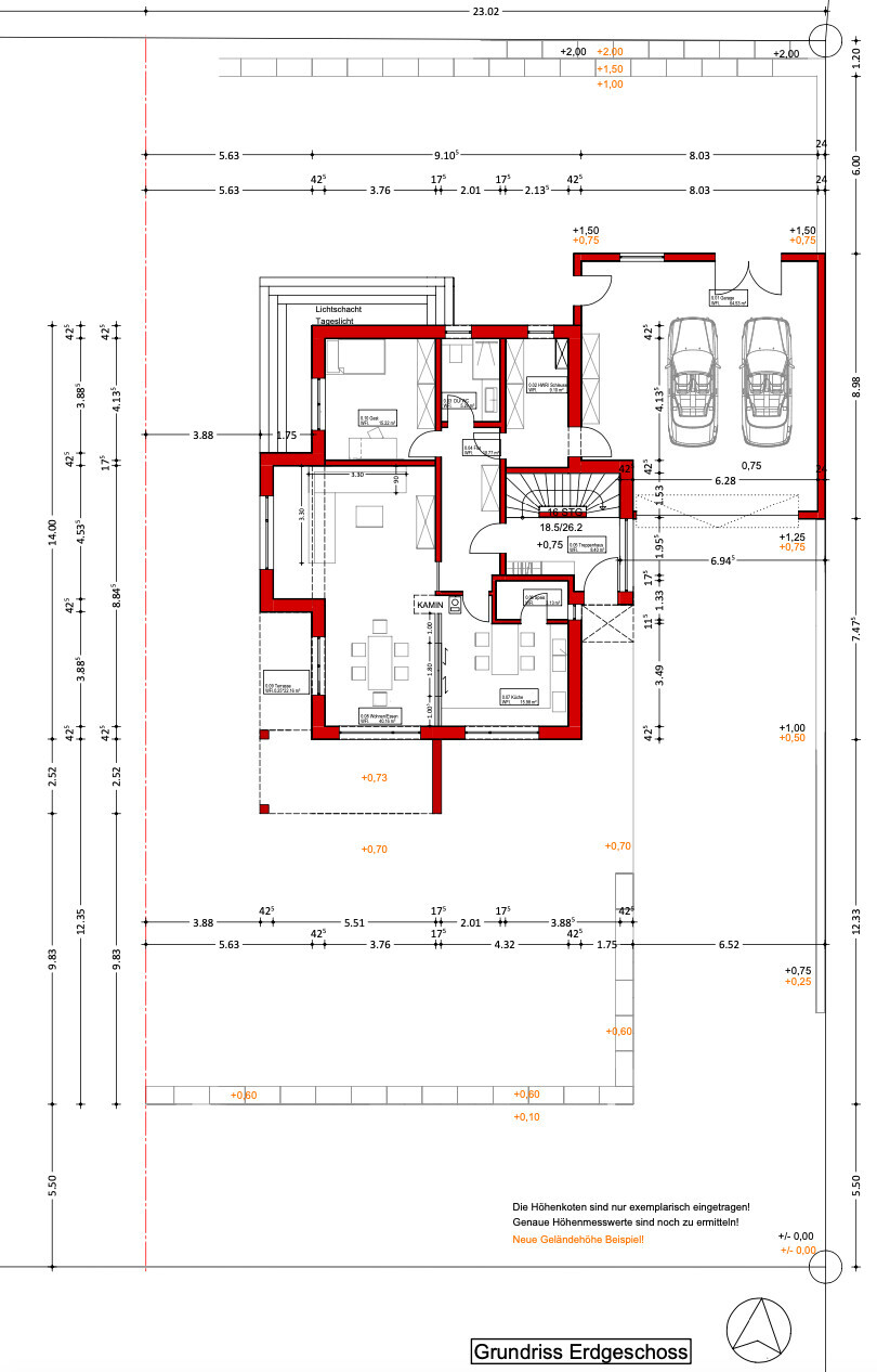
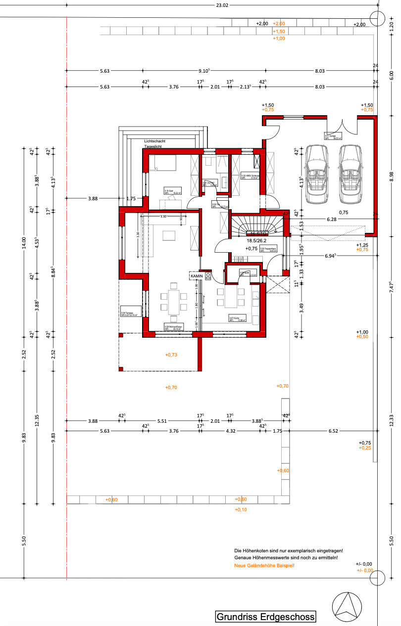
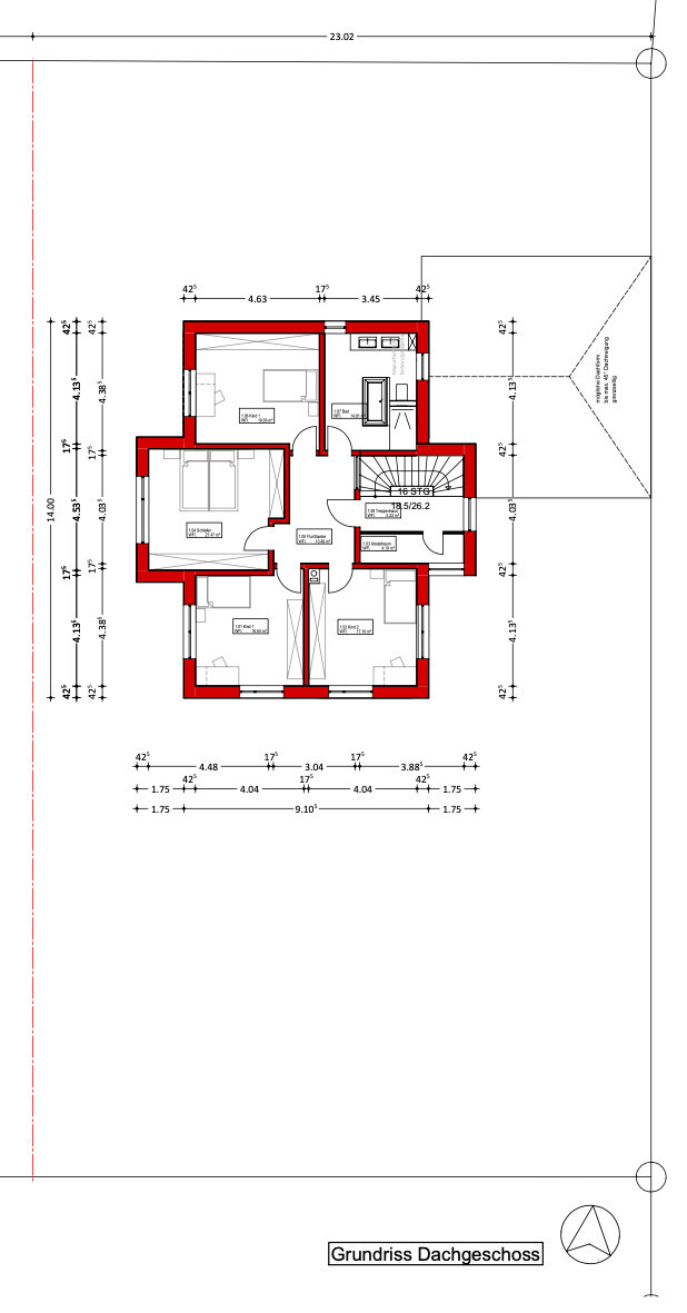
Was gefällt besonders? Warum? Anordnung der Zimmer im EG. Geräumiger Wohn-/Essbereich. Zugang Garage / Wohnhaus
Was gefällt nicht? Warum? Wegen der maximalen Grundstücksbreite ist der Hauseingang mit Garderobe sowie WC / Bad in der Nähe schwer zu realisieren
Preisschätzung lt Architekt/Planer: grobe Preisschätzung laut DIN 450.000
Persönliches Preislimit fürs Haus, inkl Ausstattung: 500.000
favorisierte Heiztechnik: Gas Brennwert (Aber noch keine Entscheidung getroffen)
Was ist die wichtigste/grundlegende Frage zum Grundriss in 130 Zeichen zusammengefasst?
Nach einigen Iterationen haben wir insbesondere beim EG ein wie wir finden gutes Konzept gefunden. Dennoch würden wir gerne alle Geschosse hier zum Feedback geben, da wir schon bei einigen anderen Themen gesehen haben, dass sehr gutes und wertvolles Feedback kommt und somit Dinge zum Vorschein kommen, an die man nicht gedacht hat. Verbesserungsideen sind deshalb sehr willkommen.



erst mal Respekt an das Forum - toll zu sehen, wie viele gute Beiträge hier vorhanden sind und wie "unverblümt" aber zielführend hier diskutiert wird. Das war der Grund, weshalb wir auch unser Bauvorhaben zur Diskussion stellen und uns auf Feedback zur Optimierung freuen.
Bebauungsplan/Einschränkungen
Größe des Grundstücks ca. 800qm
Hang leichte Hanglage (2,5m Gefälle von Nord nach Süd auf 40m)
Grundflächenzahl 0,4
Geschossflächenzahl 0,4?
Baufenster, Baulinie und -grenze 3m
Randbebauung Garage
Anzahl Stellplatz 2 Stellplätze
Geschossigkeit 2 Vollgeschosse (Falls wir die Abweichung vom Bebauungsplan genehmigt bekommen)
Dachform Satteldach
Stilrichtung Modernes Satteldachehaus
Ausrichtung Süd-Westausrichtung Garten
Maximale Höhen/Begrenzungen keine
weitere Vorgaben
Anforderungen der Bauherren
Stilrichtung, Dachform, Gebäudetyp: Satteldach, modern
Keller, Geschosse: 2 Vollgeschosse + Keller
Anzahl der Personen, Alter 4 Personen (2 Erwachsene 2 Kinder)
Raumbedarf im EG, OG ca. 190-210qm
Büro: Familiennutzung oder Homeoffice? Familiennutzung + Homeoffice im Keller
Schlafgäste pro Jahr 3-4x
offene oder geschlossene Architektur teils/teils (Offener und lichtdurchfluteter Wohn-Essbereich)
konservativ oder moderne Bauweise modern
offene Küche, Kochinsel Durch große Schiebetür getrennt
Anzahl Essplätze 8
Kamin ja, mit Sitzbank
Musik/Stereowand geplant Stereowand
Balkon, Dachterrasse nein
Garage, Carport Doppelgarage
Nutzgarten, Treibhaus ja
weitere Wünsche/Besonderheiten/Tagesablauf, gern auch Begründungen, warum dieses oder das nicht sein soll: Fest angebaute Terrassenüberdachung, praktischer Eingangsbereich, Effiziente Raumnutzung, Hauszugang über Doppelgarage
Hausentwurf
Von wem stammt die Planung:
-Planer eines Bauunternehmens
-Architekt
-Do-it-Yourself
Architekt - Ergebnis der Vorplanung
Was gefällt besonders? Warum? Anordnung der Zimmer im EG. Geräumiger Wohn-/Essbereich. Zugang Garage / Wohnhaus
Was gefällt nicht? Warum? Wegen der maximalen Grundstücksbreite ist der Hauseingang mit Garderobe sowie WC / Bad in der Nähe schwer zu realisieren
Preisschätzung lt Architekt/Planer: grobe Preisschätzung laut DIN 450.000
Persönliches Preislimit fürs Haus, inkl Ausstattung: 500.000
favorisierte Heiztechnik: Gas Brennwert (Aber noch keine Entscheidung getroffen)
Was ist die wichtigste/grundlegende Frage zum Grundriss in 130 Zeichen zusammengefasst?
Nach einigen Iterationen haben wir insbesondere beim EG ein wie wir finden gutes Konzept gefunden. Dennoch würden wir gerne alle Geschosse hier zum Feedback geben, da wir schon bei einigen anderen Themen gesehen haben, dass sehr gutes und wertvolles Feedback kommt und somit Dinge zum Vorschein kommen, an die man nicht gedacht hat. Verbesserungsideen sind deshalb sehr willkommen.
P
Pinky030106.05.20 07:32Schließe mich an bezüglich des Budgets.
Beispielrechnung:
200qm x mindestens 2000€
Keller: 100qm x 1000€
Garage: 25t€
Baunebenkosten?
Außenanlagen
Küche...
Frage mich, wie der Architekt auf 450k kommt?
Beispielrechnung:
200qm x mindestens 2000€
Keller: 100qm x 1000€
Garage: 25t€
Baunebenkosten?
Außenanlagen
Küche...
Frage mich, wie der Architekt auf 450k kommt?
J
jonashartf06.05.20 09:08Danke für das Feedback zum Budget. Deshalb rechnen wir auch ehr mit 500.000+ Euro. Dinge wie Erschließung, Dachdecken und Elektro werden wir Teilweise in Eigenleistung machen.
J
jonashartf06.05.20 09:12haydee schrieb:
Budget für Haus mit Keller, Garage und Baunebenkosten reicht nicht
Wo ist die Terrasse?i
Warum 3 Kinderzimmer?
Für was nutzt ihr den Keller?Die Terrasse ist im Süde und soll vom Wohn- / Esszimmer zugänglich sein (Siehe gestrichelte Linien vor den Räumen).
Ein 3. Kinderzimmer für mögliche weitere Familienplanungen.
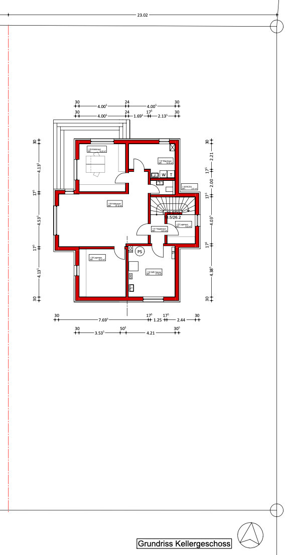
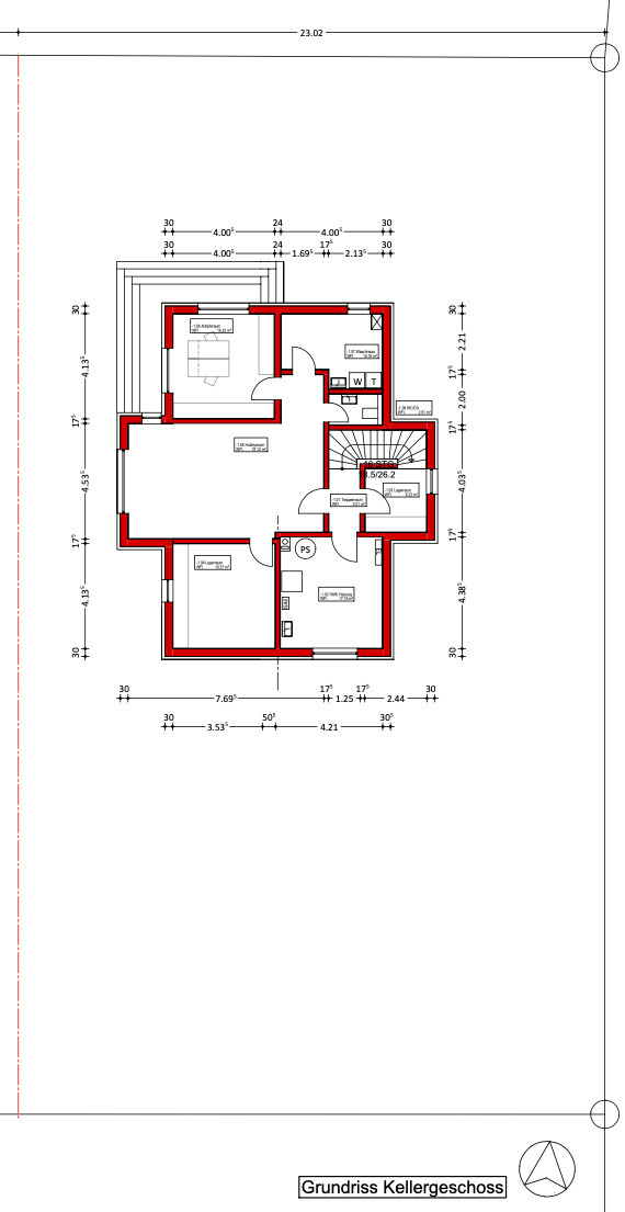
Der Keller wird genutzt für:
- Büro für Homeoffice
- Anschlussraum inkl. kleiner Werkstatt
- Lagerraum für Lebensmittel und Lagerraum für weitere Dinge wie Kindersachen, Deko, ...
- Großer Raum, den man als Hobbyraum, für Familienfeste, zum Wäsche trocken und bügeln nehmen kann
- Hauswirtschaftsraum zum Wäsche waschen
Viele Grüße
Ähnliche Themen