ᐅ Optimierungsbedarf? Einfamilienhaus mit 130 m² + Keller
Erstellt am: 11.09.19 10:16
stephi26311.09.19 10:16
Hallo,
wir werden nächste Woche unseren Bauvertrag unterzeichnen und möchte euch mal nach der Meinung fragen in Bezug auf die aktuelle Planung
Die Werkplanung steht ja noch aus
.
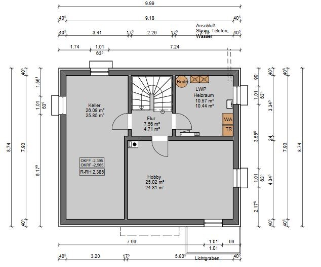
Bebauungsplan/Einschränkungen
Größe des Grundstücks 583 m²
Hang nein
Grundflächenzahl
Geschossflächenzahl
Baufenster, Baulinie und -grenze GRmax 130 m², Zufahrt über Süden
Randbebauung
Anzahl Stellplatz 2 Stk. unabhängig
Geschossigkeit E + I
Dachform Satteldach, Neigung von 33-45°, Kniestock keine Begrenzung
Stilrichtung k.A.
Ausrichtung First von Ost nach West
Maximale Höhen/Begrenzungen FH Max. 9,00 m
weitere Vorgaben
Anforderungen der Bauherren
Stilrichtung, Dachform, Gebäudetyp Kniestock 1,00 m (aktuelle Planung basiert noch auf KN von 0,75 m, aber dies wird noch mal umgeplant)
Keller, Geschosse Keller + 1,5 Geschosse
Anzahl der Personen, Alter beide Anfang/Mitte 30, 1-2 Kinder geplant; 1 Kind, Tochter 14 Jahre (jedes 2. Wochenende bei uns)
Raumbedarf im EG, OG 130 m²
Büro: Familiennutzung oder Homeoffice? Homeoffice sollte möglich sein
Schlafgäste pro Jahr jedes 2. Wochenende (Tochter meines Mannes)
offene oder geschlossene Architektur
konservativ oder moderne Bauweise modern
offene Küche, Kochinsel offene Küche, Kochinsel
Anzahl Essplätze 6
Kamin ja
Musik/Stereowand ja
Balkon, Dachterrasse nein
Garage, Carport Doppelcarport
Nutzgarten, Treibhaus nein
weitere Wünsche/Besonderheiten/Tagesablauf, gern auch Begründungen, warum dieses oder das nicht sein soll:
großer Hobbyraum, später ggf. mal als Gäste-/Kinderzimmer nutzbar, daher auch mit Marmorheizung und Fensterlichtschacht;
keine Dachflächenfenster gewünscht; Zwischen Flur und Wohnzimmer wird es eine Glasschiebetüre geben (noch nicht in Planung enthalten);
Hausentwurf
Von wem stammt die Planung:
-Planer eines Bauunternehmens ja
-Architekt
-Do-it-Yourself
Was gefällt besonders? Warum? Eingangsbereich mit Gäste-Bad; Fenster-Planung im EG
Was gefällt nicht? Warum? Treppe und Badezimmer im OG (ist allerdings auch noch nicht ausgeplant)
Preisschätzung lt Architekt/Planer: 310.000
Persönliches Preislimit fürs Haus, inkl Ausstattung: 360.000 mit Baunebenkosten (inkl. Außenanlagen)
favorisierte Heiztechnik: luftwärmepumpe
Wenn Ihr verzichten müsst, auf welche Details/Ausbauten
-könnt Ihr verzichten:
-könnt Ihr nicht verzichten:
Warum ist der Entwurf so geworden, wie er jetzt ist? ZB
es war schwierig das Erdgeschoss zu gestalten wegen der Eingangssituation, da der Eingang nicht an der Südseite sein soll, somit bleiben nicht viele Möglichkeiten das EG zu realisieren;
Was ist die wichtigste/grundlegende Frage zum Grundriss in 130 Zeichen zusammengefasst?
Kann man den Wohnbereich noch optimieren (ist Wohn- und Essbereich ausreichend groß?)? Ideen für die Badplanung im OG?



wir werden nächste Woche unseren Bauvertrag unterzeichnen und möchte euch mal nach der Meinung fragen in Bezug auf die aktuelle Planung
Die Werkplanung steht ja noch aus
Bebauungsplan/Einschränkungen
Größe des Grundstücks 583 m²
Hang nein
Grundflächenzahl
Geschossflächenzahl
Baufenster, Baulinie und -grenze GRmax 130 m², Zufahrt über Süden
Randbebauung
Anzahl Stellplatz 2 Stk. unabhängig
Geschossigkeit E + I
Dachform Satteldach, Neigung von 33-45°, Kniestock keine Begrenzung
Stilrichtung k.A.
Ausrichtung First von Ost nach West
Maximale Höhen/Begrenzungen FH Max. 9,00 m
weitere Vorgaben
Anforderungen der Bauherren
Stilrichtung, Dachform, Gebäudetyp Kniestock 1,00 m (aktuelle Planung basiert noch auf KN von 0,75 m, aber dies wird noch mal umgeplant)
Keller, Geschosse Keller + 1,5 Geschosse
Anzahl der Personen, Alter beide Anfang/Mitte 30, 1-2 Kinder geplant; 1 Kind, Tochter 14 Jahre (jedes 2. Wochenende bei uns)
Raumbedarf im EG, OG 130 m²
Büro: Familiennutzung oder Homeoffice? Homeoffice sollte möglich sein
Schlafgäste pro Jahr jedes 2. Wochenende (Tochter meines Mannes)
offene oder geschlossene Architektur
konservativ oder moderne Bauweise modern
offene Küche, Kochinsel offene Küche, Kochinsel
Anzahl Essplätze 6
Kamin ja
Musik/Stereowand ja
Balkon, Dachterrasse nein
Garage, Carport Doppelcarport
Nutzgarten, Treibhaus nein
weitere Wünsche/Besonderheiten/Tagesablauf, gern auch Begründungen, warum dieses oder das nicht sein soll:
großer Hobbyraum, später ggf. mal als Gäste-/Kinderzimmer nutzbar, daher auch mit Marmorheizung und Fensterlichtschacht;
keine Dachflächenfenster gewünscht; Zwischen Flur und Wohnzimmer wird es eine Glasschiebetüre geben (noch nicht in Planung enthalten);
Hausentwurf
Von wem stammt die Planung:
-Planer eines Bauunternehmens ja
-Architekt
-Do-it-Yourself
Was gefällt besonders? Warum? Eingangsbereich mit Gäste-Bad; Fenster-Planung im EG
Was gefällt nicht? Warum? Treppe und Badezimmer im OG (ist allerdings auch noch nicht ausgeplant)
Preisschätzung lt Architekt/Planer: 310.000
Persönliches Preislimit fürs Haus, inkl Ausstattung: 360.000 mit Baunebenkosten (inkl. Außenanlagen)
favorisierte Heiztechnik: luftwärmepumpe
Wenn Ihr verzichten müsst, auf welche Details/Ausbauten
-könnt Ihr verzichten:
-könnt Ihr nicht verzichten:
Warum ist der Entwurf so geworden, wie er jetzt ist? ZB
es war schwierig das Erdgeschoss zu gestalten wegen der Eingangssituation, da der Eingang nicht an der Südseite sein soll, somit bleiben nicht viele Möglichkeiten das EG zu realisieren;
Was ist die wichtigste/grundlegende Frage zum Grundriss in 130 Zeichen zusammengefasst?
Kann man den Wohnbereich noch optimieren (ist Wohn- und Essbereich ausreichend groß?)? Ideen für die Badplanung im OG?
kaho67411.09.19 10:46
Wo ist Süden?
Insgesamt keine Katastrophe. Ein Standardentwurf halt, was nicht schlecht sein muss. Ohne Lageplan allerdings nur ein Haus.
Bedenklich finde ich folgende Punkte:
- Möbel mal in Originalgröße einzeichnen. Wie viel Leute haben am Esstisch tatsächlich Platz? Man braucht auch hinterm Stuhl noch Fläche zum rücken.
- Wie Tief sind die Schlafzimmerschränke? Sieht aus wie 50cm - normal wäre 60cm - Eindruck kann natürlich täuschen.
- Garderobe im EG für insg. 5 Leute zu klein. Sehe auf Anhieb jetzt keine Lösung dafür.
- Kind 1 könnte an Depression leiden, weil es sich ungeliebt fühlt. Ich würde ihm Euer Schlafzimmer geben und mich selbst mehr bescheiden mit meinem Schlafplatz. Hier könnte man eventuell noch mal komplett umplanen, hängt vom neuen Kniestock, Badgröße usw. ab. Wäre ja auch etwas, was sich im Lauf der Zeit ändert - nur planen muss man es jetzt schon.
- die Tür ins WZ ist immer im Weg. Ich würde sie durch eine Doppelflügel-Schiebetür ersetzen.
- Wäscheschacht vom Bad bis in den Keller käme bei mir rein für die Hausfrau. Dafür flöge der Kamin samt Schornstein raus, da wir die Umwelt schützen müssen und CO2 in Zukunft ganz schlecht für's Image sein wird.
- Treppe mit 2m Breite recht schmal - passt zum Haus und ich würde es hier auch so bauen - aber man muss es wissen und wollen.
Insgesamt keine Katastrophe. Ein Standardentwurf halt, was nicht schlecht sein muss. Ohne Lageplan allerdings nur ein Haus.
Bedenklich finde ich folgende Punkte:
- Möbel mal in Originalgröße einzeichnen. Wie viel Leute haben am Esstisch tatsächlich Platz? Man braucht auch hinterm Stuhl noch Fläche zum rücken.
- Wie Tief sind die Schlafzimmerschränke? Sieht aus wie 50cm - normal wäre 60cm - Eindruck kann natürlich täuschen.
- Garderobe im EG für insg. 5 Leute zu klein. Sehe auf Anhieb jetzt keine Lösung dafür.
- Kind 1 könnte an Depression leiden, weil es sich ungeliebt fühlt. Ich würde ihm Euer Schlafzimmer geben und mich selbst mehr bescheiden mit meinem Schlafplatz. Hier könnte man eventuell noch mal komplett umplanen, hängt vom neuen Kniestock, Badgröße usw. ab. Wäre ja auch etwas, was sich im Lauf der Zeit ändert - nur planen muss man es jetzt schon.
- die Tür ins WZ ist immer im Weg. Ich würde sie durch eine Doppelflügel-Schiebetür ersetzen.
- Wäscheschacht vom Bad bis in den Keller käme bei mir rein für die Hausfrau. Dafür flöge der Kamin samt Schornstein raus, da wir die Umwelt schützen müssen und CO2 in Zukunft ganz schlecht für's Image sein wird.
- Treppe mit 2m Breite recht schmal - passt zum Haus und ich würde es hier auch so bauen - aber man muss es wissen und wollen.
stephi26311.09.19 10:59
vielen Dank für deine Antwort.
Die Terrasse ist im Südwesten über Eck geplant, somit ist der gesamte Wohnbereich (Küche und WZ) im Süden.
Das Elternschlafzimmer planen wir derzeit an dieser Stelle, da wir noch nicht sicher sind ob wir 1 oder 2 Kinder möchten . Aber wenn wir ein 2. Kind bekommen, dann ist ein Umzug in das kleine Zimmer geplant. Die Tiefe der Schlafzimmerschränke soll 60 cm haben, so sehen wir dies jedenfalls vor.
Wie ich geschrieben habe, wird es eine Glasschiebetüre geben zum Wohnbereich, dies ist bereits kalkuliert
Wäscheabwurf ist mir nicht so wichtig
mit der Treppe bin ich nicht so glücklich, aber bei einer geraden Treppe müsste das Haus insgesamt 1 Meter länger werden, aber dies wird dann zu teuer. :-(
Die Terrasse ist im Südwesten über Eck geplant, somit ist der gesamte Wohnbereich (Küche und WZ) im Süden.
Das Elternschlafzimmer planen wir derzeit an dieser Stelle, da wir noch nicht sicher sind ob wir 1 oder 2 Kinder möchten . Aber wenn wir ein 2. Kind bekommen, dann ist ein Umzug in das kleine Zimmer geplant. Die Tiefe der Schlafzimmerschränke soll 60 cm haben, so sehen wir dies jedenfalls vor.
Wie ich geschrieben habe, wird es eine Glasschiebetüre geben zum Wohnbereich, dies ist bereits kalkuliert
Wäscheabwurf ist mir nicht so wichtig
mit der Treppe bin ich nicht so glücklich, aber bei einer geraden Treppe müsste das Haus insgesamt 1 Meter länger werden, aber dies wird dann zu teuer. :-(
M4rvin11.09.19 12:18
ypg11.09.19 12:29
Mit einem hören Kniestock wird sich das Bad etwas entspannen. Das ist doch geplant, oder?
Ich versteh noch nicht ganz die Kinderzimmer-Planung: eins für die 14-jährige. Und wenn die Planung noch 2 vorsieht, wie soll das dann ablaufen?
Kannst Du bitte auch die Grundstücksskizze mit dem Haus einstellen?
Ich versteh noch nicht ganz die Kinderzimmer-Planung: eins für die 14-jährige. Und wenn die Planung noch 2 vorsieht, wie soll das dann ablaufen?
Kannst Du bitte auch die Grundstücksskizze mit dem Haus einstellen?
stephi26311.09.19 12:49
M4rvin schrieb:
Da wir einen ähnlichen Grundriss haben, nur ohne Keller, hier mal zum Vergleichen.
Ich finde die Fenster recht unsymmetrisch, aber ich denke mal, das ist Geschmacksache.
[ATTACH alt="AP EG.png"]38086[/ATTACH][ATTACH alt="AP OG.png"]38087[/ATTACH][ATTACH alt="F9CC9190-B2B0-4466-9480-AF7739E3355E.jpeg"]38088[/ATTACH][ATTACH alt="550E98FC-3463-46BD-ACB5-070FA8B75631.jpeg"]38090[/ATTACH]danke für deine Rückmeldung. Das Bad finde ich eine gute Lösung bei euch. Das werde ich mir mal genauer anschauen.Die Fenster sind bewusst so gewählt. Hier ist uns Funktionaltität wichtiger als Aussehen ... und gefällt unsere Vorderansicht mit den schmalen aber langen Fenstern sehr gut
Ähnliche Themen