Grundriss 1,5 geschossiges Haus mit Kapitänsgiebel auf knapp 200m²

4,80 Stern(e) 16 Votes
Zuletzt aktualisiert 08.01.2026
Sie befinden sich auf der Seite 11 der Diskussion zum Thema: Grundriss 1,5 geschossiges Haus mit Kapitänsgiebel auf knapp 200m²
>> Zum 1. Beitrag <<

B

blubbernase

@ypg Danke für die Denkanstöße.

Deinen Vorschlag und einen alternativen haben wir tatsächlich schon mal gehabt, gab sogar einen ersten skizzen Entwurf - wir hatten wir den Dachboden damals mit eingebunden (Eltern + Büro nach ganz oben, kinder im OG, EG wie von vorgeschlagen und mit HTR und dafür dann kein Keller.) Wir haben das dann nach vielen Diskussionen und visualisierungen wieder verworfen.


Deine Annahmen sind leider nicht ganz richtig. Aber ich verstehe deine grundsätzliche Argumentation. Tatsächlich hat "pinterest" sehr wenig mit unserem Weg zu tun. Die Liste an "Pinterest Wünschen" die man beim Bauen vorgeschlagen bekommt, die haben wir natürlich auch bekommen und dann auch wieder verworfen.


Und da wären wir bei dem Thema: was will man überhaupt für ein Haus? Das wie Pinterest, die meist nur inszenierte Räume zeigen (alles Werbung für schöner wohnen oder Ikea) oder für sich als individuelle Familie?!
Gut, und da kann ich einfach für uns ganz klar sagen, das wir eben nicht aus einem Ikea katalog inspiriert worden sind, sondern uns lange mit unserem jetzigen Leben auseinander gesetzt haben. Zum Beispiel gehört für uns ein Klavier ganz klar in den Wohn-Essbereich. Rückzugsorte sollten die einzelnen Zimmer sein - davon gibt es ja genug und für jeden eins. So leben und lieben wir das heute - warum sollten wir das jetzt ändern? Wir lieben unsere Büchersammlung, nicht umsonst haben wir davon hunderte. Die soll sichtbar sein

Viele der Tipps und Hinweise auf den Seiten hier hin haben wir ja berücksichtigt und auch direkt umgesetzt. https://www.hausbau-forum.de/threads/grundriss-1-5-geschossiges-haus-mit-kapitaensgiebel-auf-knapp-200m.39863/post-511902 Deine Liste hier z.b. Richtig gute hinweise.

Das unser grundlegendes Konzept für viele nicht passt, ist ja ok, es muss für uns passen. Beispiel mit der Treppe: Eine Treppe im Eingangsbereich ist für uns ein absolutes No-Go - und dennoch sind 90% aller Grundrisse so und viele mögen das ja auch. Oder dieser offener Eingangsbereich, von dem man quasi das ganze EG sehen kann - Nein danke! Bodentiefe Fenster: Haben wir keine, finden wir unpraktisch und nicht schön.
Gibt es eine Euphorie, endlich den großen Traum umzusetzen oder will man einfach nur seine Miniräume und das, was man kennt, seinen gemieteten Durchschnitt 500 km zum notwendigen Umzug mitnehmen?
Ich verstehe einfach nicht, warum sich das ausschließt. Warum sollte ich das, was mir heute freude bringt, nicht einfach optmiert umsetzen. Und natürlich ist man dafür auch euphorisch, ich bin jetzt eventuell nicht so gut im rüberbringen.

Wie gesagt, ich verstehe wo das alles herkommt - aber bis jetzt hat kein einziger punkt in diesem thread mich überzeugt, dass etwas am grundsätzlichen Layout geändert werden muss, und nicht weil "kenn ich nicht, will ich nicht" sondern weil diese Punkte bei unser schon diskutiert worden sind und wir zu einem anderen Ergebnis gekommen sind. Natürlich haben wir Teile geändert.

Das Fassadenbild gehen wir jetzt noch mal an. Ich stell es dann hier noch mal rein.
 
11ant

11ant

Das unser grundlegendes Konzept für viele nicht passt, ist ja ok,
Angesichts der Zwillingsähnlichkeit zwischen dem Eigenentwurf im Eröffnungsbeitrag und den weiteren Versionen bis zur jüngsten fällt es allerdings extrem schwer zu glauben, daß da nur ein grundlegendes Konzept dran Schuld sein soll, und liegt die Vermutung eines "abmalenden Planers" entschieden näher (nicht böse gemeint, das Gefühl ist nur einfach nicht unterdrückbar).
 
B

blubbernase

*entstaubt* *pust*

so. wir haben mittlerweile einen anderen Architekten zur Seite bekommen, jetzt gehts auch vowärts. Viel input haben wir bekommen.

Hier war die letzte Iteration die vorgestellt worden ist

wir sind noch nicht 100% durch mit dem letzten Entwurf, feinschliff fehlt, vor allem Fenstergröße und positionen sind noch nicht final, aber ich fühl mich mental bereit die entwicklung hier auch mal vorzustellen. Grundsätzlich siehts immer noch sehr ähnlich aus wie die initialen und mittleren zeichnungen, aber gefühlt besser. Vor allem ist nun viel mehr flexibilität drin.


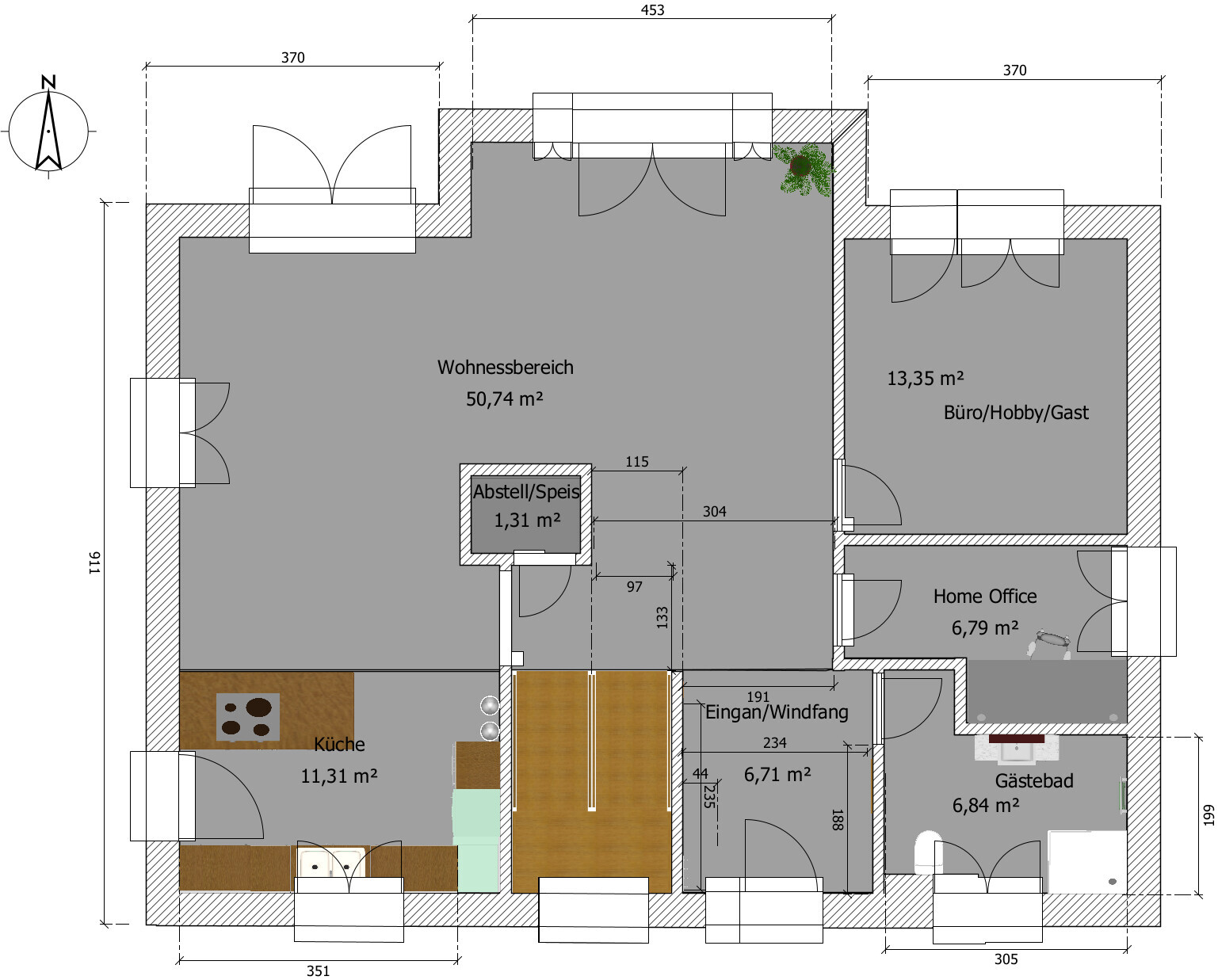
EG :
- Änderungen: Giebel ist nun breiter um 56 cm und damit auch wieder symmetrisch: Gründe größeres Wohnzimmer, Kinderzimmer im OG lässt sich flexibler einrichten
- Home Office Büro nicht mehr zur Straße raus. Dieser Kompromiss schmerzt am meisten
- Gästebad wandert nach vorne. Auch dieser Kompromiss ist nicht so prickelnd, aber ich glaube 2 Meter von der Haustür reicht um nicht durch den dreck zu laufen, wenn man ins Bad will
- keine Flur wände
- abstell/speise kammer
- da der Keller nunn voll gedämmt ist, wandert die kellertür nach unten.
- Keller bekommt einen Kellereingang um als "richtige" Dreckschleuße zu dienen (Plan fehlt noch)
- Schiebetür vor Oben im OG


nackiger Plan


Grundriss eines Hauses: Wohnbereich, Küche, Abstellraum, Eingangsbereich, Büro, Gästebad.


Es müssen nicht immer festinstallierte Wände seien, haben wir jetzt gelernt. Man könnte jetzt zB den Eingangsbereich mit deckenhohen Stahl//holz/Glas/textil elementen räumlich und akustisch trennen. Schiebetür im OG an der Treppe kann geschloßen werden, wenn es unten im WZ lauter wird. Oder man nutz ein textilelement irgendwo dazwischen. Die 2 Büroräumen ließen sich auch wieder verbinden, wenn man das irgenwann machen will...


Detaillierter 3D-Grundriss eines Hauses mit Küche, Wohnzimmer und Treppen



OG:
Auch hier hat sich was getan, nicht viel aber etwas. Wir haben durch den breiteren Giebel ein bisschen mehr Spielraum. Die Dusche im Kinderbad hat sich jetzt so angeboten, Wir wissen noch nicht, ob die wirklich kommen soll.




Grundriss eines Hauses mit mehreren Zimmern: Eltern- und Kinderzimmer, Bad, Flur und Möbel.


Alternativ, die eventuell langfristig mehr Stauraum ermöglicht

Grundriss eines Wohnhauses: Elternschlafzimmer, drei Kinderzimmer, Bad, Duschbad, Flur, Waschraum.



Wie gesagt, noch ist das nicht final, wir haben noch einen Termin wo alles finalisiert wird. Aber ich glaube wir sind endlich auf einem besseren weg.
 
M

Myrna_Loy

Tut mir leid, aber für mich sieht das Erdgeschoss aus, als ob der Planer vor Verzweiflung aufgegeben hat. Der Wohn-Essbereich ist katastrophal zu möblieren. irgendwie alles offen aber ohne flow und Verbindung. Und der Kamin mittendrin ist extrem irritierend.
Edit, der Kamin ist eine freistehende Speisekammer? Oh mann,... das Ganze sieht aus, wie wenn ein Kind mit Lego versucht, die Firman Sam Zentrale nachzubauen.
 
Zuletzt aktualisiert 08.01.2026
Im Forum Grundrissplanung / Grundstücksplanung gibt es 2565 Themen mit insgesamt 88783 Beiträgen


Ähnliche Themen zu Grundriss 1,5 geschossiges Haus mit Kapitänsgiebel auf knapp 200m²
Nr.ErgebnisBeiträge
1Erster Entwurf Einfamilienhaus 150m² mit Keller 38
2Grundriss-Entwurf: Einfamilienhaus; mit Keller; 800qm Grundstück - Seite 210
3Grundriss Entwurf Neubau Einfamilienhaus - Grundstück 610qm - Meinungen erwünscht - Seite 850
4Grundriss Einfamilienhaus ~165m² plus Keller - Seite 7165
5Unser Plan - Eure Meinung - Seite 211
6Entwurf / Verbesserung Einfamilienhaus 150-175m² mit Walmdach und Keller 39
7Grundriss-Entwurf: Einfamilienhaus mit Keller; 560qm Grundstück - Seite 365
8Entwurf EFH, 2 Vollgeschosse, Satteldach, kein Keller, Doppelgarage - Seite 231
9Grundriss Einfamilienhaus, ca. 200qm ohne Keller - Einschätzung - Seite 19172
10Entwurf Grundriss Bungalow - Eure Meinungen bitte! 14
11Grundriss Einfamilienhaus mit Keller 19
12Eigenentwurf Grundriss Bungalow mit Keller 10
13Grundrissplanung Keller, EG + DG 12
14Planung/Grundriss Einfamilienhaus (ca. 140 qm, Keller, EG, DG) - Seite 430
15Jetzt der finale Grundriss - 189qm ohne Keller; Stadtvilla - Seite 424
16Grundrissplanung für Einfamilienhaus mit Keller auf Hanggrundstück 23
17Werkplanung Einfamilienhaus 180qm Flachdach mit Keller & Doppelgarage 142
18Einfamilienhaus mit Keller und Doppelgarage 9,2x11m Grundriss-Plan optimieren 20
19Einfamilienhaus zwei Vollgeschosse, Pultdach, kein Keller 31
20160m2 Einfamilienhaus in Holzständerbauweise am Nordhang mit Keller 100

Oben