ᐅ Grundriss 1,5 geschossiges Haus mit Kapitänsgiebel auf knapp 200m²
Erstellt am: 18.07.21 18:13
blubbernase18.07.21 18:13
hi, wir sind hin und her am werkeln und wollten mal eure Meinung hören
Bebauungsplan/Einschränkungen
Größe des Grundstücks: 673 m²
Hang: 3,5 % Steigung einer Seite zur anderen
Grundflächenzahl: 0,2 (Grundflächenzahl I 134,6 m² Grundflächenzahl II: 201,9 m²)
Baufenster, Baulinie und -grenze: Siehe Bild (Die Seitenräder sind die Grundstücksgrenzen)
Randbebauung: Neubaugebiet, freistehende Häuser
Anzahl Stellplatz: 1
Geschossigkeit: Max 1 Vollgeschoss:
Dachform: Satteldach
Stilrichtung: kapitänshaus
Ausrichtung: First läuft Nord/west zu Süd-Ost
Maximale Höhen/Begrenzungen: Traufhöhe 4,5 m, Firsthhöhe 9m, bezugspunkt im Bebauungsplan knapp 1 meter über grundstückshöhe, klinker vorgeschrieben, Gauben nur 50 % der Trauflänge
Anforderungen der Bauherren
Stilrichtung, Dachform, Gebäudetyp: Satteldach
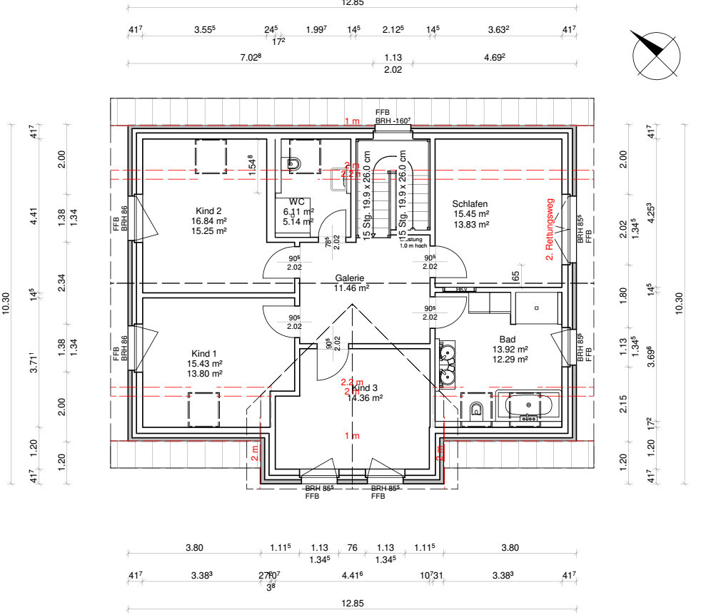
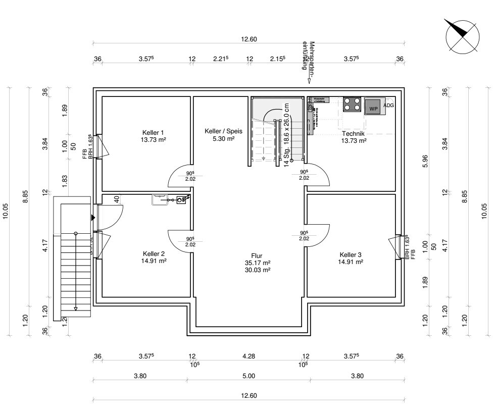
Keller, Geschosse: kalter Teilkeller, EG, OG
Anzahl der Personen, Alter: 34m, 33f, 3m,4f +1 geplant
Raumbedarf im EG: 1 Büro, 1 Büro/Gästezimmer, Wohnküche, Wohnzimmer, Bad mit Dusche, Windfang
Raumbedarf im DG: 1 Schlafzimmer, 3 Kinderzimmer, ein vollbad, einmal Klo mit Waschmaschine/trockner
Büro: 100% Homeoffice
Schlafgäste pro Jahr: 1/monat Schwiegermama
konservativ oder moderne Bauweise: praktisch?
Küche: Wohnküche, tisch soll in der Küche sein
Anzahl Essplätze: 6
Kamin: nein
Musik/Stereowand: Nein
Balkon, Dachterrasse: Nein
Garage, Carport: Garage für ein Auto und Fahrräder
Nutzgarten, Treibhaus: Vielleicht später
Hausentwurf
EG: Grundfläche 107,5 m² (inkl Treppe)
OG: Grundfläche 101,2 m² [U](inkl Treppe)
KG: ca. 70m²[/U]
Von wem stammt die Planung: Von uns selbst in Sweethome 3D
Grundsätzlich haben wir für die Außenmaße das Whiteline Aktionshaus "Kiefernallee" von Gussek Haus genommen und knapp 50 cm länger gemacht links vom Giebel (. Wir sind schon länger mit Gussek Haus dran. Hatten zuerst einen Grundriss mit 4 Giebel und nem längeren Haus, haben wir aber wegen der komplexität wieder vervorworfen. Der Grundriss ist auch im OG an dem Aktionshaus angelehnt. EG hat sich dann doch ziemlich geändert.
Was gefällt besonders? Man kommt ins Haus und ist nicht gleich im Wohnzimmer.
Preisschätzung lt Architekt/Planer: Basishaus liegt bei ca. 450 in Einzugsfertig+60
Persönliches Preislimit fürs Haus inkl Keller: 550.000 € + Nebenkosten und ausstattung
favorisierte Heiztechnik: Luft-Wasser-Wärmepumpe mit Gerät innen
Wenn Ihr verzichten müsst, auf welche Details/Ausbauten
-könnt Ihr verzichten: Eigentlich nix 😀
-könnt Ihr nicht verzichten: Hier uns da nen qm
Warum ist der Entwurf so geworden, wie er jetzt ist? ZB
Er passt so aufs Grundstück, die Terrasse ist schon Arg klein.
Was ist die wichtigste/grundlegende Frage zum Grundriss in 130 Zeichen zusammengefasst?
wird uns der lange Flur trotz ordentlicher Breite immer nerven?










Bebauungsplan/Einschränkungen
Größe des Grundstücks: 673 m²
Hang: 3,5 % Steigung einer Seite zur anderen
Grundflächenzahl: 0,2 (Grundflächenzahl I 134,6 m² Grundflächenzahl II: 201,9 m²)
Baufenster, Baulinie und -grenze: Siehe Bild (Die Seitenräder sind die Grundstücksgrenzen)
Randbebauung: Neubaugebiet, freistehende Häuser
Anzahl Stellplatz: 1
Geschossigkeit: Max 1 Vollgeschoss:
Dachform: Satteldach
Stilrichtung: kapitänshaus
Ausrichtung: First läuft Nord/west zu Süd-Ost
Maximale Höhen/Begrenzungen: Traufhöhe 4,5 m, Firsthhöhe 9m, bezugspunkt im Bebauungsplan knapp 1 meter über grundstückshöhe, klinker vorgeschrieben, Gauben nur 50 % der Trauflänge
Anforderungen der Bauherren
Stilrichtung, Dachform, Gebäudetyp: Satteldach
Keller, Geschosse: kalter Teilkeller, EG, OG
Anzahl der Personen, Alter: 34m, 33f, 3m,4f +1 geplant
Raumbedarf im EG: 1 Büro, 1 Büro/Gästezimmer, Wohnküche, Wohnzimmer, Bad mit Dusche, Windfang
Raumbedarf im DG: 1 Schlafzimmer, 3 Kinderzimmer, ein vollbad, einmal Klo mit Waschmaschine/trockner
Büro: 100% Homeoffice
Schlafgäste pro Jahr: 1/monat Schwiegermama
konservativ oder moderne Bauweise: praktisch?
Küche: Wohnküche, tisch soll in der Küche sein
Anzahl Essplätze: 6
Kamin: nein
Musik/Stereowand: Nein
Balkon, Dachterrasse: Nein
Garage, Carport: Garage für ein Auto und Fahrräder
Nutzgarten, Treibhaus: Vielleicht später
Hausentwurf
EG: Grundfläche 107,5 m² (inkl Treppe)
OG: Grundfläche 101,2 m² [U](inkl Treppe)
KG: ca. 70m²[/U]
Von wem stammt die Planung: Von uns selbst in Sweethome 3D
Grundsätzlich haben wir für die Außenmaße das Whiteline Aktionshaus "Kiefernallee" von Gussek Haus genommen und knapp 50 cm länger gemacht links vom Giebel (. Wir sind schon länger mit Gussek Haus dran. Hatten zuerst einen Grundriss mit 4 Giebel und nem längeren Haus, haben wir aber wegen der komplexität wieder vervorworfen. Der Grundriss ist auch im OG an dem Aktionshaus angelehnt. EG hat sich dann doch ziemlich geändert.
Was gefällt besonders? Man kommt ins Haus und ist nicht gleich im Wohnzimmer.
Preisschätzung lt Architekt/Planer: Basishaus liegt bei ca. 450 in Einzugsfertig+60
Persönliches Preislimit fürs Haus inkl Keller: 550.000 € + Nebenkosten und ausstattung
favorisierte Heiztechnik: Luft-Wasser-Wärmepumpe mit Gerät innen
Wenn Ihr verzichten müsst, auf welche Details/Ausbauten
-könnt Ihr verzichten: Eigentlich nix 😀
-könnt Ihr nicht verzichten: Hier uns da nen qm
Warum ist der Entwurf so geworden, wie er jetzt ist? ZB
Er passt so aufs Grundstück, die Terrasse ist schon Arg klein.
Was ist die wichtigste/grundlegende Frage zum Grundriss in 130 Zeichen zusammengefasst?
wird uns der lange Flur trotz ordentlicher Breite immer nerven?
hanghaus200019.07.21 08:29
Das Grundstück kommt mir bekannt vor. Kannst mal Deinen passenden Beitrag verlinken?
driver5519.07.21 09:33
Puh,….
46 qm Flur mit Treppe im EG/OG+ 8 qm Windfang? 😳
(oder sind die 12 qm Treppen enthalten? Dann wären es 42 inkl. Wohnfläche) Rest ist wie in einem (schlecht geschnittenen) 150 qm Haus.
Außer teuer, aufgrund gefühlten 48 Ecken, sehe ich keine „Highlights“.
(270 qm vs. 550k€ max)
Hier muss erstmal „aufgeräumt“, bzw. das Ziel definiert werden.
46 qm Flur mit Treppe im EG/OG+ 8 qm Windfang? 😳
(oder sind die 12 qm Treppen enthalten? Dann wären es 42 inkl. Wohnfläche) Rest ist wie in einem (schlecht geschnittenen) 150 qm Haus.
Außer teuer, aufgrund gefühlten 48 Ecken, sehe ich keine „Highlights“.
(270 qm vs. 550k€ max)
Hier muss erstmal „aufgeräumt“, bzw. das Ziel definiert werden.
ypg19.07.21 10:21
ypg19.07.21 10:51
Ich finde das Haus auch etwas zu „wirr“. Viele Ecken und Kanten. Ein ähnlicher Grundriss wurde hier schon diskutiert…
Mir persönlich ist es zu verschlossen. Zu langer Gang in die Lebensräume.
Die Speis mit knapp 60 cm Tiefe entspricht einem Küchenhochschrank - die Benutzung ist fraglich.
Bäder im OG sind aufgrund der Schräge wohl auch disqualifiziert?
Mir persönlich ist es zu verschlossen. Zu langer Gang in die Lebensräume.
Die Speis mit knapp 60 cm Tiefe entspricht einem Küchenhochschrank - die Benutzung ist fraglich.
Bäder im OG sind aufgrund der Schräge wohl auch disqualifiziert?
K1300S19.07.21 11:01
Was sollen denn das für farbige Klötze im Windfang sein?
Das OG geht, wie ich finde. Das EG ist mir viel zu verwinkelt. Geht doch mal zum Architekten, und zwar OHNE dieses Gekritzel.
Das OG geht, wie ich finde. Das EG ist mir viel zu verwinkelt. Geht doch mal zum Architekten, und zwar OHNE dieses Gekritzel.
Ähnliche Themen