Grundriss 1,5 geschossiges Haus mit Kapitänsgiebel auf knapp 200m²

4,80 Stern(e) 16 Votes
Zuletzt aktualisiert 28.11.2025
Sie befinden sich auf der Seite 15 der Diskussion zum Thema: Grundriss 1,5 geschossiges Haus mit Kapitänsgiebel auf knapp 200m²
>> Zum 1. Beitrag <<

K a t j a

K a t j a

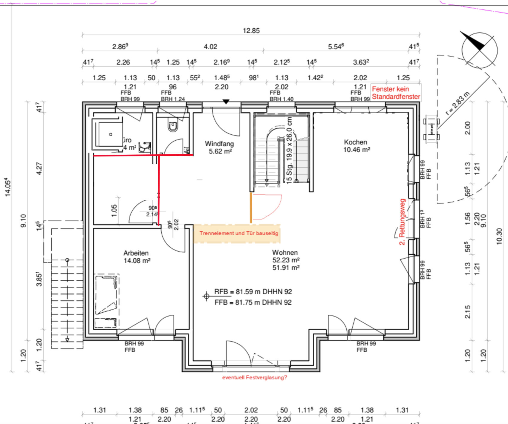
Auch wenn ich den Grundriss ebenso... speziell finde: Das Bad ist über dem Flur, kann über das Gäste-WC laufen. Das OG ist gespiegelt, wenn ich die Treppe richtig deute.
Wie jetzt? Ich seh das Bad direkt über dem Allraum. Das dürfte hübsch plätschern im WZ.
Ab davon haben die Kinder die Nordzimmer und Bad + Schlafzimmer die helle Schokoladen-Südseite - das ist zumindest merkwürdig.
Zu aller erst würde ich aber mal mit dem Statiker sprechen. Der setzt im WZ vermutlich noch irgendwo ne Säule rein und dann ist das Gejammer groß.
 
B

Bertram100

Deine Windfangidee ist ein perpetuummobile um den Dreck auch möglichst weit ins Haus zu tragen: ein Windfang funktioniert am besten "quer" vor dem Flur. Reinkommen, grosse Fußmatte, links oder rechts der Tür Wandplatz für Schuhe, Garderobe, Sitzhocker. Schuhe aus, durch die Tür zur Diele. Mit Platz für den Hund zum Pfoten abtrocknen reicht es wenn der Windfang 160 tief ist und eher "breit/quer" neben der Haustür. Ein Kaminschlot ist die Autobahn für Wind und Dreck. Eigentlich ein Windbeschleuniger statt ein Windfang.

Ansonsten kann ich nur sagen dass ihr fröhlich viel Fläche und Geld verjubelt für wenig Nutzen. Die Ecke neben dem Klavier, das Hauptbad oben hat ausreichend Fläche die man nicht so gut nutzen kann.

Ich bin grosser Fan von recht kleinen Häusern weil dort viel Erfahrung und Flow für Effizienz drinsteckt. Alte, kleine oder auch moderne kleine Häuser zeigen wie man man praktisch wohnen kann ohne Komfortverzicht. größer planen geht dann immer noch. Jedenfalls habt ihr an den neuralgischen Punkten den Flow von "Reihenmittelhaus klein" (Küche, Bad, Flur/Windfang, Büro) und dort wo es kaum beiträgt zur Verbesserung des Komforts und des Bewegungsstromes den Flair von Luxus (mittigen Platz Allraum, grosses Bad, Außenansicht). Nur wird man den kaum wahrnehmen weil man ja nicht z.B. in der toten Fläche mitten im Bad steht und geniesst. Ist halt banale Verkehrsfläche.

Ich trauere ein bisschen dem Geld hinterher dass hier leider auf Kosten der Wohnqualität zum Fenster rausfliegen wird. Unabhängig vom Wiederverkaufswert. Den würde ich wohl nicht so einfach risikieren.
 
K a t j a

K a t j a

Wir haben als referenz immer den flur bei meiner Schwiegermutter im kopf, der eine 170cm bruttobreite hat , wo links und rechts auch noch Garderobe/Kommode ist. Das kam uns bis heute nie zu eng vor, und wir werden wahrscheinlich bei 220 cm liegen.
Hier solltest Du auch die Anordnung der Haustür beachten. So mittig, wie sie jetzt ist, lässt sie kaum Schränke oder Sitzgelegenheiten links oder rechts zu.
 
M

Myrna_Loy

Ich versteh nicht, wie man so einen Grundriss praktikabel finden kann, aber so wie daran festgehalten wird, muss es sich wohl für die Bauherren stimmig anfühlen.
Ich würde das Bad im EG mit dem Büro aber wirklich entwinkeln. Und dann seitlich dem Büro ein Fenster spendieren.

Grundriss eines Gebaeudes mit Wohnen, Arbeiten, Kuche, Windfang, Treppe, Rettungsweg.
 
M

Myrna_Loy

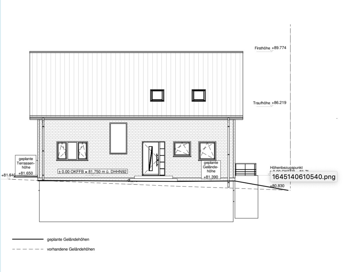
Man könnte dann auch das eine Fenster auf der Eingangsseite entfernen - die ich persönlich zum Weglaufen unnötig schlecht gestaltet finde.

Außenansicht eines zweigeschossigen Hauses mit Ziegelmauer, Satteldach, Fenstern und Eingang.
 
Zuletzt aktualisiert 28.11.2025
Im Forum Grundrissplanung / Grundstücksplanung gibt es 2539 Themen mit insgesamt 88074 Beiträgen
Oben