Eine weitere Walmdach Stadtvilla (240qm)

4,60 Stern(e) 5 Votes
Zuletzt aktualisiert 20.11.2025
Sie befinden sich auf der Seite 17 der Diskussion zum Thema: Eine weitere Walmdach Stadtvilla (240qm)
>> Zum 1. Beitrag <<

11ant

11ant

Nein. Walmdach. Neigung so mittel Nicht zu steil und nicht zu flach. Was nimmt man da? 22°-25°?
Das dürfte annähernd passen. Unter 22° DN wird die Auswahl an Eindeckungsmaterialien schmaler. Wenn das Dach nicht erst aus größeren Entfernungen überhaupt sichtbar sein soll, würde ich die Perspektive nicht unterschätzen: auf zwei Vollgeschossen (Typ Stadtvilla) sehen 28° Walm etwa gleich flach aus wie 22° Sattel. Ich würde also eher 25 bis 28° DN anpeilen (und auf der Garage ggf. 2 bis 3 Grad flacher).
 
kaho674

kaho674

planoben ist Norden:


Grundriss eines Wohnraums mit Flur, Bad, Dusche, Küche, Schlafzimmer und Esstisch.

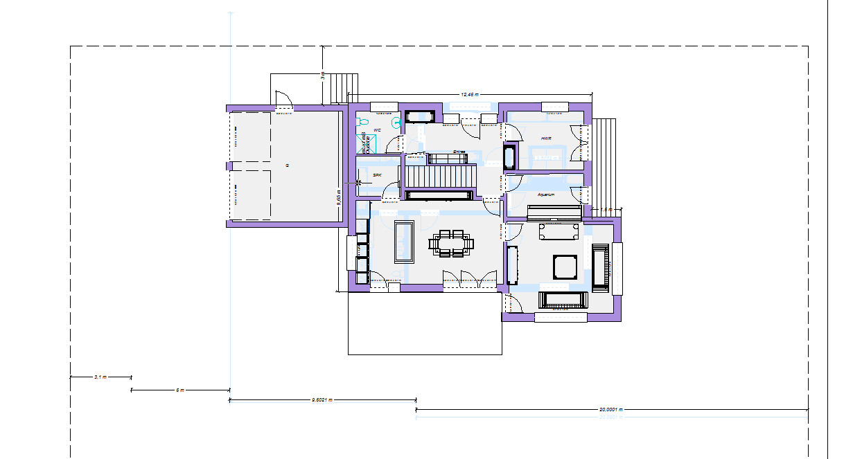
Grundriss eines Hauses: Garage links, zentrale Wohnfläche mit Essbereich, Küche, WC, HWR, Aquarium.

Architektur-Grundriss eines Hauses: Innenraum mit Wohnzimmer, Essbereich, Küche, Treppe, Zimmer.

Großes zweistöckiges Haus auf grünem Hügel, graue Fassade, dunkles Dach, viele Fenster.

Modernes zweistöckiges Haus mit Garage, Glasfronten und Terrasse auf grünem Hügel.

Zweistöckiges weißes Haus mit dunklem Dach und Anbau, auf grünem Hügel; Fenster mit Holzrahmen


Einfahrt Auto dürfte dann um die 14% Steigung haben - das muss es schaffen. Für den Winter sollte man sich schon mal was ausdenken.

Dennoch denke ich, dass die Erdarbeiten bei dieser Positionierung am günstigsten wären.
 
T

Traumhaus2020

Das dürfte annähernd passen. Unter 22° DN wird die Auswahl an Eindeckungsmaterialien schmaler. Wenn das Dach nicht erst aus größeren Entfernungen überhaupt sichtbar sein soll, würde ich die Perspektive nicht unterschätzen: auf zwei Vollgeschossen (Typ Stadtvilla) sehen 28° Walm etwa gleich flach aus wie 22° Sattel. Ich würde also eher 25 bis 28° DN anpeilen (und auf der Garage ggf. 2 bis 3 Grad flacher).
Danke! Genau solche Hinweise finde ich sehr hilfreich.

@kaho674 Dir macht planen und entwerfen genauso viel Spaß wie mir
Die 3D Visualisierung sieht sehr cool aus. Besonders da du die Steigung mit "eingebaut" hast, kann ich mir das alles viel besser vorstellen.
Zum Grundriss:
Irgendwie finde ich Oben und Unten nicht so stimmig... Da springt der Funke nicht über...

Die Außentreppe auf der Ostseite finde ich richtig klasse. Wobei ich diese (leider) für eine bessere Belichtung der Kellerräume, durch eine Abböschung ersetzen würde.
Zur Einfahrt:
Mit Garageneinfahrtsteigungen habe ich mich auch schon beschäftigt... Laut Internet sind 15% Steigung das Maximum was man machen sollte. Mir fällt es nur sehr schwer, mir das richtig vorzustellen. Habe mal 15% Steigung auf ein Blatt aufgemalt und das finde ich jetzt nicht so steil...
 
Y

Yosan

Ich kann grad irgendwie nicht zitieren...zu der Steigung: nimm dir mal ein langes Brett o.ä. und stell damit mal wirklich die Steigung irgendwo in deiner Wohnung nach...da sieht man eher wie steil das dann ist. Oder denk mal nach, ob dir spontan irgendein Straßenabschnitt einfällt, wo z.B. 12% Steigung als Schild steht und fahr ggf. mal da hoch
 
Zuletzt aktualisiert 20.11.2025
Im Forum Grundrissplanung / Grundstücksplanung gibt es 2535 Themen mit insgesamt 87978 Beiträgen


Ähnliche Themen zu Eine weitere Walmdach Stadtvilla (240qm)
Nr.ErgebnisBeiträge
1Steigung Garageneinfahrt zu steil? 10
2Planung der Auffahrt für großes Hanggrundstück - 25% Steigung 43
3Steigung bei Hofeinfahrt? 16
4Bauen am Hang mit ungefähr 30 Prozent Steigung 41
5Steigung Hofeinfahrt / Höhenunterschied 20
6Auffahrt erstellen mit 25% Steigung? - Seite 223
7Planung optimale Anordnung Haus, Garage und Einfahrt 13
8Aufbau der Einfahrt mit Schotter, Split und Pflaster? 18
9100m² Einfahrt pflastern 49
10Stadtvilla 190m² mit Einfahrt & Garten zur Südseite - Seite 530
11Belag für die Einfahrt? 17
12Länge / Gefälle Einfahrt Garage / Carport 10
13Einfahrt neu pflastern, Entwässerung, Kosten? 17
14Kleines Grundstück, kleine Einfahrt - Benötigter Platz zum Wenden 43
15Einfahrt Steine von Kann in Hellgrau - Seite 216
16Grundstücks Einfahrt Ideen, Erfahrungen? 11

Oben