Bewertung Grundriss ca. 145 qm Einfamilienhaus Keller/EG/OG

4,70 Stern(e) 12 Votes
Zuletzt aktualisiert 24.12.2025
Sie befinden sich auf der Seite 4 der Diskussion zum Thema: Bewertung Grundriss ca. 145 qm Einfamilienhaus Keller/EG/OG
>> Zum 1. Beitrag <<

W

Würfel*

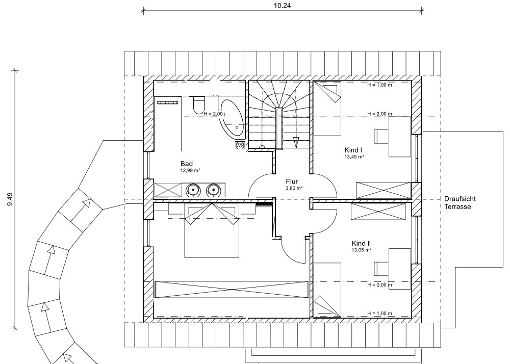
Wo ist denn jetzt die freie schöne Aussicht? Doch nicht nach Südost, wo der einzige Nachbar dicht draufsitzt? Nach deiner Beschreibung und der Grundstückszeichnung mit Nordpfeil dachte ich jetzt, dass die Straße fast im Westen liegt und du nach Nord-Westen ins Tal blickst und nach Nordosten zumindest frei nach Richtung Wald und Wiese? Dann verstehe ich aber nicht, warum die Terrasse da (in der Abstandsfläche?) zum Nachbarn hin "klebt"?

Grundriss finde ich recht gelungen. Bad muss man mal überlegen. Wenn du ein Dachflächenfenster übers WC packst, kann es so wie in meinem Vorschlag funktionieren (mit Bank in der Dusche). So eine kleine Ankleide unter der Schräge hatte ich auch mal. Das war ganz schön mühsam und nervig. Ich würde einen großen Kleiderschrank an die 2 Meterlinie stellen - oder gleich einen Einbauschrank mit Schiebetüren. Da kommst Du bequem dran und hast endlose Schrankmeter und im Bett Luft zum atmen.

Bei Kind 2 würde ich das Fenster runterschieben oder verschmälern, damit der Schrank nicht davor steht!


Grundriss eines Obergeschosses mit Badezimmer, Flur, zwei Kinderzimmern und Terrasse.
 
Hangman

Hangman

Den Grundriss selbst finde ich auch i.O. Bad und Schlafzimmer/Ankleide kann man unter Berücksichtigung der Dachschrägen sicher verbessern, Kinderzimmer ebenso - aber dafür muß man nichts grundlegend über den Haufen werfen. Im OG auf jeden Fall den Flur von den Blinddärmen des Bad/Schlafzimmer befreien. Bei den Fenstern könnte man mutiger sein und von der Schießscharten-Symmetrie abweichen um sie Wohnbedarf und Landschaft/Aussicht besser anzupassen.

Womit ich weniger klarkomme ist Zuwegung und Ausrichtung. Ich würde in jedem Fall versuchen den Westhang als Schokoladenseite freizuhalten: tolle Sonnenuntergänge, Aussicht und Privatsphäre! Könnte man das Haus bzw EG/OG spiegeln um die Zuwegung auf die andere Grundstücksseite zu bekommen? Vielleicht kann man die Firstrichtung dazu auch etwas drehen sofern es die Höhen erforden (was mir ohne Lageplan mit Höhen etwas schwerfällt).
 
A

Arango18

Wo ist denn jetzt die freie schöne Aussicht? Doch nicht nach Südost, wo der einzige Nachbar dicht draufsitzt? Nach deiner Beschreibung und der Grundstückszeichnung mit Nordpfeil dachte ich jetzt, dass die Straße fast im Westen liegt und du nach Nord-Westen ins Tal blickst und nach Nordosten zumindest frei nach Richtung Wald und Wiese? Dann verstehe ich aber nicht, warum die Terrasse da (in der Abstandsfläche?) zum Nachbarn hin "klebt"?

Grundriss finde ich recht gelungen. Bad muss man mal überlegen. Wenn du ein Dachflächenfenster übers WC packst, kann es so wie in meinem Vorschlag funktionieren (mit Bank in der Dusche). So eine kleine Ankleide unter der Schräge hatte ich auch mal. Das war ganz schön mühsam und nervig. Ich würde einen großen Kleiderschrank an die 2 Meterlinie stellen - oder gleich einen Einbauschrank mit Schiebetüren. Da kommst Du bequem dran und hast endlose Schrankmeter und im Bett Luft zum atmen.

Bei Kind 2 würde ich das Fenster runterschieben oder verschmälern, damit der Schrank nicht davor steht!
Genau so wie du es schreibst, ist es auch.
Das war auch der maßgebende Punkt, weshalb wir die Garage etwas rausziehen wollten um dort eine kleine Terrasse zu haben, von der man den Ausblick genießen kann.

Die Terrasse neben dem Haus zum Nachbarn in S/O Ausrichtung ist letztlich auf der Seite, weil da halt morgens und mittags die Sonne scheint. Terrasse Richtung Norden, also auf der anderen Hausseite wäre vom Ausblick und Privatsphäre optimaler, allerdings hat man dort dann nie die Sonne.

Um vom Wohnraum ins Tal blicken zu können, überlegen wir, die Fenster etwas anders anzuordnen. Da war vorher mal ein Eckfenster geplant, welches genau der Richtung entspricht, allerdings sind Dinge solcher Art aus Kostengründen konsequent entfallen.

Finde deinen Vorschlag zum Bad klasse, so in etwas hatte ich das auch schonmal angedacht.

Der Vorschlag zum Schlafzimmer ist ebenfalls super, allerdings lässt meine Partnerin sich das „Ankleidezimmer“ nicht ausreden. Aus meiner Sicht macht es auch keinen Sinn, aber nun gut, es sei ihr gegönnt, letztlich sollen sich ja beide einbringen und ihre Vorstellungen umsetzen können :)

Anbei noch der Blick von der oberen Grundstückskante (Osten) Richtung Westen.

Sonnenuntergang über einer Häuserzeile am grünen Feld, Wald im Hintergrund.
 
Zuletzt bearbeitet:
A

Arango18

Ach so, und die Terrasse auf der S/O Seite ist nicht bis vorne auf Höhe der Garage durchgezogen, da der Architekt meinte, dass bei der Gestaltung der Außenanlagen dann die Kosten für das Auffangen des Hangs nicht so hoch sind und man das dann entsprechend einfacher gestalten kann
 
Zuletzt aktualisiert 24.12.2025
Im Forum Grundrissplanung / Grundstücksplanung gibt es 2555 Themen mit insgesamt 88581 Beiträgen


Ähnliche Themen zu Bewertung Grundriss ca. 145 qm Einfamilienhaus Keller/EG/OG
Nr.ErgebnisBeiträge
1Grundriss Einfamilienhaus mit Doppelgarage und Terrasse - Seite 219
2Einfamilienhaus-Grundriss 170 qm für 4 Personen mit Garage 20
3Meinungen zu Grundriss "Haus am Hang" erbeten - Seite 231
4Grundriss Bungalow Meinungen 31
5Grundriss: Ein Leben im Traum- oder Albtraumhaus? 20
6Grundriss im Villenstil - Seite 221
7Grundriss unseres Bungalows - Seite 282
8Grundriss mit Garage auf Grundstück realisierbar? - Seite 329
9Bungalow mit 140qm und Garage im Grundriss 13
10Bungalow 135qm: Grundriss + Fenster - Seite 7104
11Grundriss Schlafzimmer, Ankleide und Bad en Suite 36
12Fenster Brüstungshöhe 130 im Schlafzimmer / Arbeitszimmer? - Seite 1593
13Erster Grundriss-Versuch für Kettenhaus auf kleinem Grundstück - Seite 494
14Grundriss Stadtvilla mit Walmdach ca. 170 qm - Seite 561
15Grundriss-Entwurf Erfahrungen - Kritik? - Seite 14166
16Grundriss für Generationenhaus auf anspruchsvollem Grundstück 16
17Grundriss altersgerechtes Wohnen (Neubau) in alter Hofanlage - Seite 234
18Anregungen zum Grundriss Einfamilienhaus ca. 175 qm, Satteldachhaus 167
19Grundriss Einfamilienhaus ~165m² plus Keller - Seite 8165
20Grundriss-Hilfe für Bungalow benötigt - Seite 233

Oben