ᐅ Planung Einfamilienhaus ca. 190m² mit Satteldach, Keller, Doppelgarage
Erstellt am: 06.10.20 16:50
B
Bruchpilot27B
Bruchpilot2706.10.20 16:50Guten Tag zusammen,
ich möchte euch unser Projekt anhand des Fragebogens vorstellen. Wir wollen nächstes Jahr im Sommer mit dem Bau in Bayern starten und sind aktuell zu dritt. Würden uns über viele Meinungen, Hinweise, Kritik und Anregungen von euch freuen. Vielen Dank vorab
Bebauungsplan/Einschränkungen
Größe des Grundstücks ca. 1300m² (vorhanden)
Hang nein
Grundflächenzahl 0,4
Geschossflächenzahl 0,7
Anzahl Stellplatz 2
Geschossigkeit II=I+D
Dachform Satteldach 38°-47°
Stilrichtung klassisch?
Maximale Höhen/Begrenzungen
Firsthöhe 9m
Kniestock 0,5m
Dachaufbauten 1/3 der Dachfläche
Garage auch mit SD
Anforderungen der Bauherren
Keller, Geschosse Keller + 1,5 Geschosse
Anzahl der Personen 4
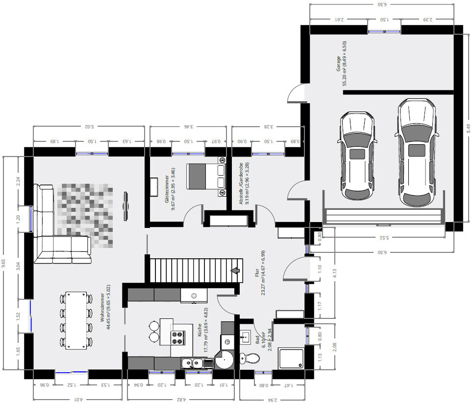
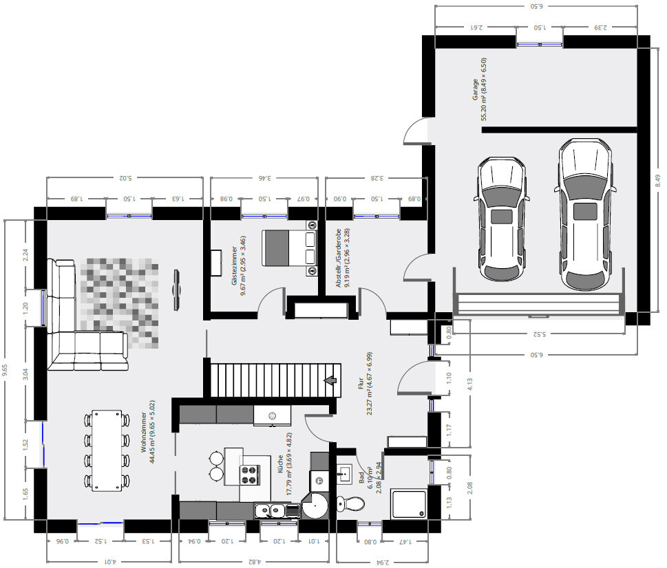
Raumbedarf im EG, OG siehe Plan, wir haben von „innen nach außen“ geplant
Büro Homeoffice 1-2 Tage/Wo + Freizeit
Schlafgäste ca. 1 mal pro Monat
offene oder geschlossene Architektur ?
offene Küche mit Schiebetür wenn Schließen erforderlich
Anzahl Essplätze 8-12
Kamin nein
Doppelgarage mit Abstellraum für Fahrräder, Motorrad
Hausentwurf
Von wem stammt die Planung: -Do-it-Yourself
Was gefällt besonders? Warum?
-Ausrichtung der Räume; großer Wohn-/Essbereich; großer Eingangsbereich ohne Schleuse; Abstell-/Garderobenraum als Multifunktionsraum im EG
Was gefällt nicht? Warum?
- Kniestock 0,5m mit den entsprechenden Dachschrägen. Wir haben versucht das zu berücksichtigen.
Preisschätzung lt Architekt/Planer: 500-550k ohne Nebenkosten, ohne Berücksichtigung EL
Persönliches Preislimit fürs Haus, inkl Ausstattung: 550k
favorisierte Heiztechnik: wahrscheinlich Fußbodenheizung mit Luft-Wasser-Wärmepumpe + Photovoltaikanlage + kl. Batteriespeicher, müssen uns damit aber noch intensiver auseinandersetzen
Wenn Ihr verzichten müsst, auf welche Details/Ausbauten
-könnt Ihr verzichten: Überlegung Carport statt Garage steht im Raum (Preisfrage); Überlegung Keller streichen dafür Haus etwas größer inkl. Dachbodenausbau (Technik+Wäsche) + Garage etwas größer (Werkstatt)
-könnt Ihr nicht verzichten:
Warum ist der Entwurf so geworden, wie er jetzt ist? ZB
-wir haben uns überlegt wo wir da Haus auf dem Grundstück wollen und wo den Garten, dazu passend dann Garage und Ausrichtung der Räume ausgelegt
-wir haben dann von innen nach außen geplant und irgendwann das Haus auf 13x10m begrenzt (Budget)
-Fenster haben wir uns noch nicht im Detail angeschaut, nur soweit das in jeden Raum Licht kommt
Was ist die wichtigste/grundlegende Frage zum Grundriss in 130 Zeichen zusammengefasst?
-Wir hätten gerne eure Meinungen und Anregungen zu dem Plan, dies ist unser erster Hausbau
-Wirken die Räume im OG aufgrund dem niedrigen Kniestock beengt oder passt das?
-Macht es Sinn bei dem Haus auch bei Fertighausanbietern anzufragen oder ist es zu individuell?
-Wie Bewertet ihr die Kostenabschätzung?
-Wo könnten wir uns sinnvoll verkleinern?
Grundstück mit Baufenster und Haus -> Siehe Bilder
-Auf allen Bildern Oben=Norden
-der Dachfürst ist entlang der West-Ost-Achse
-nach Norden ist ein freies Feld
-Nach Süden ist der Straßenzugang und das restl. Baugebiet
-Nach Westen noch 3 freie Grundstücke
-Nach Osten ist ein Feldweg und dann ein unbebautes Grundstück




ich möchte euch unser Projekt anhand des Fragebogens vorstellen. Wir wollen nächstes Jahr im Sommer mit dem Bau in Bayern starten und sind aktuell zu dritt. Würden uns über viele Meinungen, Hinweise, Kritik und Anregungen von euch freuen. Vielen Dank vorab
Bebauungsplan/Einschränkungen
Größe des Grundstücks ca. 1300m² (vorhanden)
Hang nein
Grundflächenzahl 0,4
Geschossflächenzahl 0,7
Anzahl Stellplatz 2
Geschossigkeit II=I+D
Dachform Satteldach 38°-47°
Stilrichtung klassisch?
Maximale Höhen/Begrenzungen
Firsthöhe 9m
Kniestock 0,5m
Dachaufbauten 1/3 der Dachfläche
Garage auch mit SD
Anforderungen der Bauherren
Keller, Geschosse Keller + 1,5 Geschosse
Anzahl der Personen 4
Raumbedarf im EG, OG siehe Plan, wir haben von „innen nach außen“ geplant
Büro Homeoffice 1-2 Tage/Wo + Freizeit
Schlafgäste ca. 1 mal pro Monat
offene oder geschlossene Architektur ?
offene Küche mit Schiebetür wenn Schließen erforderlich
Anzahl Essplätze 8-12
Kamin nein
Doppelgarage mit Abstellraum für Fahrräder, Motorrad
Hausentwurf
Von wem stammt die Planung: -Do-it-Yourself
Was gefällt besonders? Warum?
-Ausrichtung der Räume; großer Wohn-/Essbereich; großer Eingangsbereich ohne Schleuse; Abstell-/Garderobenraum als Multifunktionsraum im EG
Was gefällt nicht? Warum?
- Kniestock 0,5m mit den entsprechenden Dachschrägen. Wir haben versucht das zu berücksichtigen.
Preisschätzung lt Architekt/Planer: 500-550k ohne Nebenkosten, ohne Berücksichtigung EL
Persönliches Preislimit fürs Haus, inkl Ausstattung: 550k
favorisierte Heiztechnik: wahrscheinlich Fußbodenheizung mit Luft-Wasser-Wärmepumpe + Photovoltaikanlage + kl. Batteriespeicher, müssen uns damit aber noch intensiver auseinandersetzen
Wenn Ihr verzichten müsst, auf welche Details/Ausbauten
-könnt Ihr verzichten: Überlegung Carport statt Garage steht im Raum (Preisfrage); Überlegung Keller streichen dafür Haus etwas größer inkl. Dachbodenausbau (Technik+Wäsche) + Garage etwas größer (Werkstatt)
-könnt Ihr nicht verzichten:
Warum ist der Entwurf so geworden, wie er jetzt ist? ZB
-wir haben uns überlegt wo wir da Haus auf dem Grundstück wollen und wo den Garten, dazu passend dann Garage und Ausrichtung der Räume ausgelegt
-wir haben dann von innen nach außen geplant und irgendwann das Haus auf 13x10m begrenzt (Budget)
-Fenster haben wir uns noch nicht im Detail angeschaut, nur soweit das in jeden Raum Licht kommt
Was ist die wichtigste/grundlegende Frage zum Grundriss in 130 Zeichen zusammengefasst?
-Wir hätten gerne eure Meinungen und Anregungen zu dem Plan, dies ist unser erster Hausbau
-Wirken die Räume im OG aufgrund dem niedrigen Kniestock beengt oder passt das?
-Macht es Sinn bei dem Haus auch bei Fertighausanbietern anzufragen oder ist es zu individuell?
-Wie Bewertet ihr die Kostenabschätzung?
-Wo könnten wir uns sinnvoll verkleinern?
Grundstück mit Baufenster und Haus -> Siehe Bilder
-Auf allen Bildern Oben=Norden
-der Dachfürst ist entlang der West-Ost-Achse
-nach Norden ist ein freies Feld
-Nach Süden ist der Straßenzugang und das restl. Baugebiet
-Nach Westen noch 3 freie Grundstücke
-Nach Osten ist ein Feldweg und dann ein unbebautes Grundstück
Für was wollt ihr den Keller + das Dach auf der Garage?
Wieviel Eigenleistung wollt ihr erbringen?
unbedingt die 2m Linie im DG einzeichnen.
Die gewünschte oder vorhandene Möblierung im Maßstab einzeichnen
ich würde das Haus soweit wie möglich in den Norden schieben.
Wird allerdings die Anschlusskosten nach oben treiben.
EG Flur, Bad sind relativ groß, Garderobe ebenfalls. Platz im dort die Haustechnik unterzubringen währe schon vorhanden. Der Bereich gehört noch optimiert. Der qm schlägt mit grob 2000 Euro zu buche.
Küche gefällt mir gar nicht. Da können andere mehr dazu schreiben
terrasse gehört etwas mehr zur Küche
Holzständer GU‘s können natürlich das Haus bauen. Das Kataloghaus wird selten
Wieviel Eigenleistung wollt ihr erbringen?
unbedingt die 2m Linie im DG einzeichnen.
Die gewünschte oder vorhandene Möblierung im Maßstab einzeichnen
ich würde das Haus soweit wie möglich in den Norden schieben.
Wird allerdings die Anschlusskosten nach oben treiben.
EG Flur, Bad sind relativ groß, Garderobe ebenfalls. Platz im dort die Haustechnik unterzubringen währe schon vorhanden. Der Bereich gehört noch optimiert. Der qm schlägt mit grob 2000 Euro zu buche.
Küche gefällt mir gar nicht. Da können andere mehr dazu schreiben
terrasse gehört etwas mehr zur Küche
Holzständer GU‘s können natürlich das Haus bauen. Das Kataloghaus wird selten
B
Bruchpilot2706.10.20 19:43Danke für deine Hinweise.
Dach auf Garage ist leider gem. Bebauungsplan wie das Hausdach auszuführen, heißt auch Satteldach. Wir würden auch lieber ein Flachdach drauf machen...
2m Linie und mehr Möbel in korrektem Maßstab wird gemacht. Die die jetzt drin sind haben großteils den richtigen Maßstab, aber ich checke das nochmal.
Haus mehr nach Norden: Bedenken wir nochmal. Hatten wir anfangs so. Haben dann den Tipp bekommen, das unser Grundstück so groß ist, dass es auch mittig Sinn macht. So können wir z.B. später mal auf der Nordseite einen Pool bauen (möglichst weg von der Straße) und haben dort trotzdem den ganzen Tag Sonne. Das habe ich mal mit einer Seite zum Sonnenverlauf grob kalkuliert. Wir dürfen übrigens nur im weißen Feld bauen.
Stimmt der EG-Ost-Bereich ist recht groß. Aufgrund des niedrigen Kniestocks haben wir die Grundfläche so gewählt, dass wir im OG die Räume entsprechend groß machen können. Unten ist es jetzt etwas viel.
Küche warte ich dann die Tipps ab.
Dach auf Garage ist leider gem. Bebauungsplan wie das Hausdach auszuführen, heißt auch Satteldach. Wir würden auch lieber ein Flachdach drauf machen...
2m Linie und mehr Möbel in korrektem Maßstab wird gemacht. Die die jetzt drin sind haben großteils den richtigen Maßstab, aber ich checke das nochmal.
Haus mehr nach Norden: Bedenken wir nochmal. Hatten wir anfangs so. Haben dann den Tipp bekommen, das unser Grundstück so groß ist, dass es auch mittig Sinn macht. So können wir z.B. später mal auf der Nordseite einen Pool bauen (möglichst weg von der Straße) und haben dort trotzdem den ganzen Tag Sonne. Das habe ich mal mit einer Seite zum Sonnenverlauf grob kalkuliert. Wir dürfen übrigens nur im weißen Feld bauen.
Stimmt der EG-Ost-Bereich ist recht groß. Aufgrund des niedrigen Kniestocks haben wir die Grundfläche so gewählt, dass wir im OG die Räume entsprechend groß machen können. Unten ist es jetzt etwas viel.
Küche warte ich dann die Tipps ab.
0,5 Kniestock passt nicht mit dem OG überein. Da funktioniert keine eingezeichnete Möblierung: Toilette unter 2 Meter, der Einbauschrank hat eine Höhe von 2 Meter? ! Das Ehebett ist nicht begehbar...
Küche ist ja auch die Hälfte nicht nutzbar, kaum begehbar. Spüle steht hinter dem Tresenteil, das ist alles Enge auf höchstem Niveau: aus 17qm sind 6 qm effektive Küche übrig. Der Flur ist megagross... ohne Mehrwert. Die Unterbringungsmöbel werden verteilt,
Küche ist ja auch die Hälfte nicht nutzbar, kaum begehbar. Spüle steht hinter dem Tresenteil, das ist alles Enge auf höchstem Niveau: aus 17qm sind 6 qm effektive Küche übrig. Der Flur ist megagross... ohne Mehrwert. Die Unterbringungsmöbel werden verteilt,
Bruchpilot27 schrieb:Ich seh da in der Individualität eher etwas, was man gerade ziehen sollte: ja, der Weg zu einem Typenhaus, ob massiv oder HSB lohnt mMeinung nach.
Macht es Sinn bei dem Haus auch bei Fertighausanbietern anzufragen oder ist es zu individuell?
die Küche funktioniert so nicht. Wenn mit Side By Side Kühlschrank müsste die Wandzeile planoben ca 505cm lang sein, die Wand planrechts etwas nach planrechts verschieben, soll die Wandzeile einigermaßen symmetrisch sein (mit Abstellnische).
Parallel zur Wandzeile eine Insel ca 370x100cm groß, mit Spüle und Kochfeld.
Parallel zur Wandzeile eine Insel ca 370x100cm groß, mit Spüle und Kochfeld.
Ähnliche Themen