Hallo 🙂
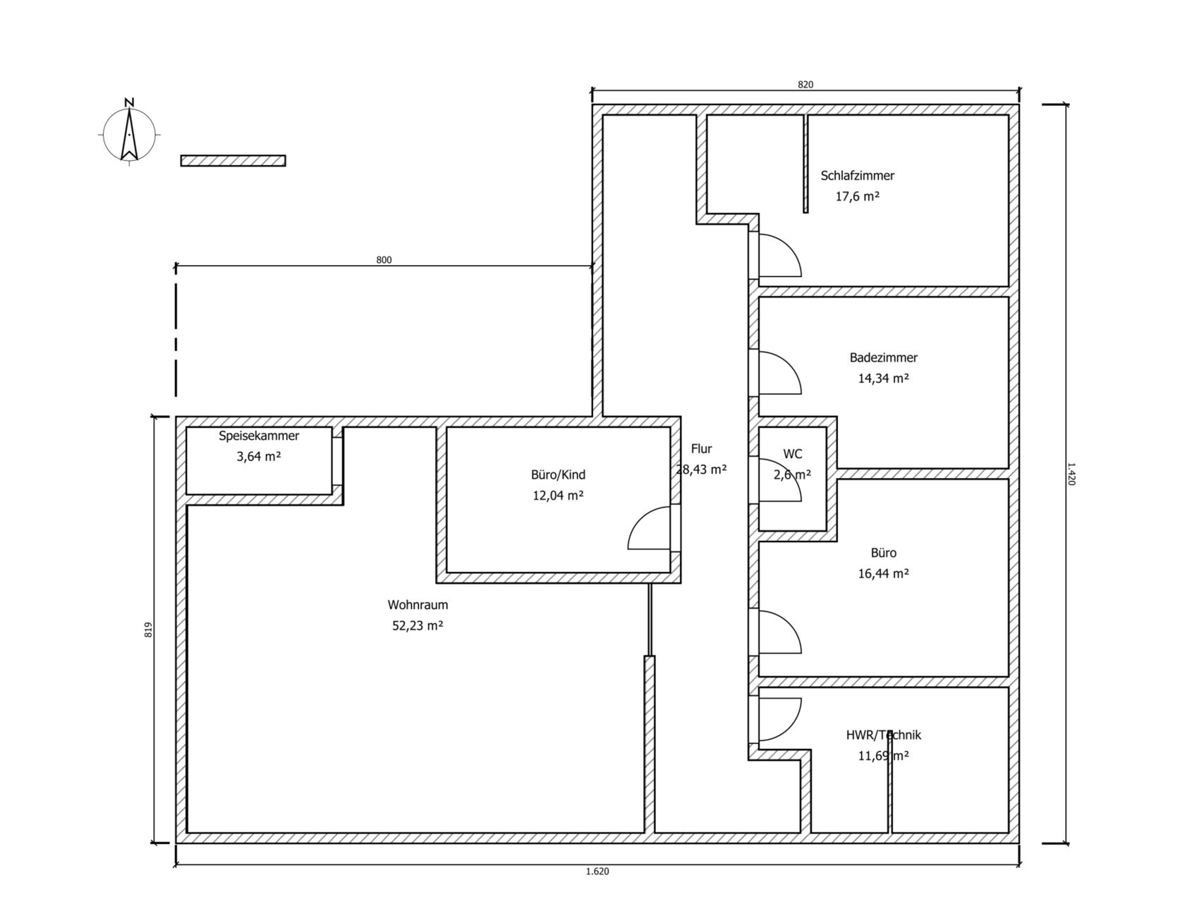
Nach gefühlten Hunderten zerknüllten Entwürfen im Papierkorb haben wir jetzt endlich einen Grundriss, der uns gefällt und auch größentechnisch passt. Anfangs hatten wir viel zu groß geplant und waren teilweise bei über 250 m² Wohnfläche... upps... Jetzt sind wir bei schönen 150m² angekommen 🙂
Reduziert haben wir vor allem die Anzahl der Zimmer, geplant haben wir mit 2 Büros und 2 zukünftigen Kinderzimmern, sind jetzt aber nur noch bei 2 Büros, wovon auf jeden Fall eines als Kinderzimmer umgewandelt werden kann. Das macht mehr sinn, da wir sowieso frühestens in 5 Jahren übers Kinder bekommen nachdenken wollen. Auch hatten wir erst einen kleinen Wellnessbereich mit Sauna, Liegen und Whirlpool eingeplant, der nun nicht im Haus, sondern im Garten als separates Gebäude seinen Platz finden wird.
Ganz allgemein hatte ich bereits hier https://www.hausbau-forum.de/threads/vereinigung-zweier-Grundstücke-baufenster-neu-legen.42280/ über unsere Grundstücke geschrieben. Die Anfrage zur Zusammenlegung läuft gerade noch, daher habe ich noch keinen konkreten Plan wo das Haus genau stehen wird. Wunsch ist aber am liebsten mittig auf der aktuellen Grenze oder alternativ auf dem hinteren Bauplatz mit Grenzbebauung zum Grundstück davor.
Zum Bebauungsplan kann ich erfreulicherweise sagen, dass wir sehr viele Freiheiten haben werden. Wir können eine Bauvoranfrage stellen, dann wird geprüft ob es so in Ordnung ist. Das letzte Haus, welches vor 4 Jahren hier im Ort gebaut wurde hatte 2 Vollgeschosse, eine andere Dachneigung und vermutlich die eine oder andere Ausnahme ohne Probleme genehmigt bekommen. Außerdem freut sich die Gemeinde ganz allgemein, dass wir eine Baulücke schließen wollen 😉
Bebauungsplan/Einschränkungen
Größe des Grundstücks ca. 1500m²
Hang nein
Grundflächenzahl & Geschossflächenzahl ... sehr verwirrend 🤨
Baufenster, Baulinie und -grenze
Randbebauung
Anzahl Stellplatz
Geschossigkeit 1
Dachform SD, WD
Stilrichtung
Ausrichtung First parallel zur Straße
Maximale Höhen/Begrenzungen
weitere Vorgaben Kniestock 0-50 cm
Anforderungen der Bauherren
Stilrichtung, Dachform, Gebäudetyp
Winkelbungalow mit Satteldach, modern mit japanischen Elementen
Holzbauweise durch Zimmerei vor Ort mit der Möglichkeit viel Eigenleistung einzubringen.
Keller, Geschosse
kein Keller, 1 Geschoss
Anzahl der Personen, Alter
25 (w) und 28 (m) +2 Katzen
Kinder erstmal nicht geplant, frühestens in 5 Jahren
Raumbedarf im EG, OG
Büro: Familiennutzung oder Homeoffice?
Getrennte Büros für Home Office
Schlafgäste pro Jahr
sehr wenig
offene oder geschlossene Architektur
offener Wohnbereich
konservativ oder moderne Bauweise
modern
offene Küche, Kochinsel
Kochinsel mit Blick in den Garten, Speisekammer als Raum hinter der Küche
Anzahl Essplätze 4-6
Kamin nein
Musik/Stereowand nein
Balkon, Dachterrasse nein
Garage, Carport vermutlich Carport, aber noch nicht sicher
Nutzgarten, Treibhaus
Gemüsegarten mit großem Gewächshaus wird auf jeden Fall seinen Platz auf dem Grundstück finden
weitere Wünsche/Besonderheiten/Tagesablauf, gern auch Begründungen, warum dieses oder das nicht sein soll
- Galerie im Dach, die zum Wohnbereich offen ist wäre ein großer Traum von mir, aber nur wenn es finanziell drin ist. Ansonsten ist der Teil des Daches nur Lagerfläche bzw. zum spätere Ausbau gedacht.
- Smart Home mit KNX in Eigenleistung (gesamte Elektrik wird Eigenleistung sein in Zusammenarbeit mit einem Elektriker, der alles prüft und abnimmt)
- Kontrollierte-Wohnraumlüftung und separate Split-Klimaanlage
- Photovoltaikanlage auf dem Dach Richtung Süden und Osten
- Garten muss Katzensicher eingezäunt werden, da unsere Kater keine Freigänger sein sollen (Aktuell reine Wohnungskatzen)
- Sichtdachstuhl im offenen Wohnbereich
Hausentwurf
Von wem stammt die Planung:
-Do-it-Yourself
Was gefällt besonders? Warum?
Der offene Wohnbereich mit der Möglichkeit sowohl die Süd- als auch die Nordterrasse nutzen zu können.
Kleine "Leseecke" am Ende des Flurs mit großem Sitzfenster (-> Sollte es eine Galerie geben wird hier die Treppe nach oben führen und die Leseecke dort oben sein)
Was gefällt nicht? Warum?
Evtl. ist der Flur zu lang...
Preisschätzung lt Architekt/Planer: noch keine, Architektentermin ist nächste Woche.
Persönliches Preislimit fürs Haus, inkl Ausstattung: wir hoffen unter 500.000€ zu sein
favorisierte Heiztechnik: Luft-Wasser-Wärmepumpe mit Fußbodenheizung
Wenn Ihr verzichten müsst, auf welche Details/Ausbauten
-könnt Ihr verzichten:
- Galerie wäre schön, aber nicht zwingend nötig
- Wellnessbereich im Garten kann auch erst später mal gebaut werden
- Leseecke
-könnt Ihr nicht verzichten:
- Klimaanlage
- KNX
- getrennte Büros
- Katzensicherer Garten
Warum ist der Entwurf so geworden, wie er jetzt ist? ZB
Standardentwurf vom Planer?
Entsprechende/Welche Wünsche wurden vom Architekten umgesetzt?
Ein Gemisch aus vielen Beispielen aus div. Magazinen...
Was macht ihn in Euren Augen besonders gut oder schlecht?
Unser Entwurf hat sich aus sehr vielen Skizzen, Grundrissen und Fotos aus dem Internet Schritt für Schritt entwickelt.
Die Inneneinrichtung ist in den 3D Bildern nur als Platzhalter gedacht, die konkrete Innenarchitekur ist noch in Planung.
Mit der Größe und Raumaufteilung hat sich bei diesem Entwurf endlich ein zufriedenes Gefühl eingestellt 🙂
Was ist die wichtigste/grundlegende Frage zum Grundriss in 130 Zeichen zusammengefasst?
Ist unser Projekt eurer Einschätzung nach für maximal 500.000€ möglich und ist es sinnvoll erst kleiner zu planen und dann aufzustocken durch einen Dachausbau?
Ich bin sehr Dankbar über eure Meinung, Ideen und Verbesserungsvorschläge! 🙂









Nach gefühlten Hunderten zerknüllten Entwürfen im Papierkorb haben wir jetzt endlich einen Grundriss, der uns gefällt und auch größentechnisch passt. Anfangs hatten wir viel zu groß geplant und waren teilweise bei über 250 m² Wohnfläche... upps... Jetzt sind wir bei schönen 150m² angekommen 🙂
Reduziert haben wir vor allem die Anzahl der Zimmer, geplant haben wir mit 2 Büros und 2 zukünftigen Kinderzimmern, sind jetzt aber nur noch bei 2 Büros, wovon auf jeden Fall eines als Kinderzimmer umgewandelt werden kann. Das macht mehr sinn, da wir sowieso frühestens in 5 Jahren übers Kinder bekommen nachdenken wollen. Auch hatten wir erst einen kleinen Wellnessbereich mit Sauna, Liegen und Whirlpool eingeplant, der nun nicht im Haus, sondern im Garten als separates Gebäude seinen Platz finden wird.
Ganz allgemein hatte ich bereits hier https://www.hausbau-forum.de/threads/vereinigung-zweier-Grundstücke-baufenster-neu-legen.42280/ über unsere Grundstücke geschrieben. Die Anfrage zur Zusammenlegung läuft gerade noch, daher habe ich noch keinen konkreten Plan wo das Haus genau stehen wird. Wunsch ist aber am liebsten mittig auf der aktuellen Grenze oder alternativ auf dem hinteren Bauplatz mit Grenzbebauung zum Grundstück davor.
Zum Bebauungsplan kann ich erfreulicherweise sagen, dass wir sehr viele Freiheiten haben werden. Wir können eine Bauvoranfrage stellen, dann wird geprüft ob es so in Ordnung ist. Das letzte Haus, welches vor 4 Jahren hier im Ort gebaut wurde hatte 2 Vollgeschosse, eine andere Dachneigung und vermutlich die eine oder andere Ausnahme ohne Probleme genehmigt bekommen. Außerdem freut sich die Gemeinde ganz allgemein, dass wir eine Baulücke schließen wollen 😉
Bebauungsplan/Einschränkungen
Größe des Grundstücks ca. 1500m²
Hang nein
Grundflächenzahl & Geschossflächenzahl ... sehr verwirrend 🤨
Baufenster, Baulinie und -grenze
Randbebauung
Anzahl Stellplatz
Geschossigkeit 1
Dachform SD, WD
Stilrichtung
Ausrichtung First parallel zur Straße
Maximale Höhen/Begrenzungen
weitere Vorgaben Kniestock 0-50 cm
Anforderungen der Bauherren
Stilrichtung, Dachform, Gebäudetyp
Winkelbungalow mit Satteldach, modern mit japanischen Elementen
Holzbauweise durch Zimmerei vor Ort mit der Möglichkeit viel Eigenleistung einzubringen.
Keller, Geschosse
kein Keller, 1 Geschoss
Anzahl der Personen, Alter
25 (w) und 28 (m) +2 Katzen
Kinder erstmal nicht geplant, frühestens in 5 Jahren
Raumbedarf im EG, OG
Büro: Familiennutzung oder Homeoffice?
Getrennte Büros für Home Office
Schlafgäste pro Jahr
sehr wenig
offene oder geschlossene Architektur
offener Wohnbereich
konservativ oder moderne Bauweise
modern
offene Küche, Kochinsel
Kochinsel mit Blick in den Garten, Speisekammer als Raum hinter der Küche
Anzahl Essplätze 4-6
Kamin nein
Musik/Stereowand nein
Balkon, Dachterrasse nein
Garage, Carport vermutlich Carport, aber noch nicht sicher
Nutzgarten, Treibhaus
Gemüsegarten mit großem Gewächshaus wird auf jeden Fall seinen Platz auf dem Grundstück finden
weitere Wünsche/Besonderheiten/Tagesablauf, gern auch Begründungen, warum dieses oder das nicht sein soll
- Galerie im Dach, die zum Wohnbereich offen ist wäre ein großer Traum von mir, aber nur wenn es finanziell drin ist. Ansonsten ist der Teil des Daches nur Lagerfläche bzw. zum spätere Ausbau gedacht.
- Smart Home mit KNX in Eigenleistung (gesamte Elektrik wird Eigenleistung sein in Zusammenarbeit mit einem Elektriker, der alles prüft und abnimmt)
- Kontrollierte-Wohnraumlüftung und separate Split-Klimaanlage
- Photovoltaikanlage auf dem Dach Richtung Süden und Osten
- Garten muss Katzensicher eingezäunt werden, da unsere Kater keine Freigänger sein sollen (Aktuell reine Wohnungskatzen)
- Sichtdachstuhl im offenen Wohnbereich
Hausentwurf
Von wem stammt die Planung:
-Do-it-Yourself
Was gefällt besonders? Warum?
Der offene Wohnbereich mit der Möglichkeit sowohl die Süd- als auch die Nordterrasse nutzen zu können.
Kleine "Leseecke" am Ende des Flurs mit großem Sitzfenster (-> Sollte es eine Galerie geben wird hier die Treppe nach oben führen und die Leseecke dort oben sein)
Was gefällt nicht? Warum?
Evtl. ist der Flur zu lang...
Preisschätzung lt Architekt/Planer: noch keine, Architektentermin ist nächste Woche.
Persönliches Preislimit fürs Haus, inkl Ausstattung: wir hoffen unter 500.000€ zu sein
favorisierte Heiztechnik: Luft-Wasser-Wärmepumpe mit Fußbodenheizung
Wenn Ihr verzichten müsst, auf welche Details/Ausbauten
-könnt Ihr verzichten:
- Galerie wäre schön, aber nicht zwingend nötig
- Wellnessbereich im Garten kann auch erst später mal gebaut werden
- Leseecke
-könnt Ihr nicht verzichten:
- Klimaanlage
- KNX
- getrennte Büros
- Katzensicherer Garten
Warum ist der Entwurf so geworden, wie er jetzt ist? ZB
Standardentwurf vom Planer?
Entsprechende/Welche Wünsche wurden vom Architekten umgesetzt?
Ein Gemisch aus vielen Beispielen aus div. Magazinen...
Was macht ihn in Euren Augen besonders gut oder schlecht?
Unser Entwurf hat sich aus sehr vielen Skizzen, Grundrissen und Fotos aus dem Internet Schritt für Schritt entwickelt.
Die Inneneinrichtung ist in den 3D Bildern nur als Platzhalter gedacht, die konkrete Innenarchitekur ist noch in Planung.
Mit der Größe und Raumaufteilung hat sich bei diesem Entwurf endlich ein zufriedenes Gefühl eingestellt 🙂
Was ist die wichtigste/grundlegende Frage zum Grundriss in 130 Zeichen zusammengefasst?
Ist unser Projekt eurer Einschätzung nach für maximal 500.000€ möglich und ist es sinnvoll erst kleiner zu planen und dann aufzustocken durch einen Dachausbau?
Ich bin sehr Dankbar über eure Meinung, Ideen und Verbesserungsvorschläge! 🙂
Ich bin wie immer direkt. Wie müssen erst die anderen, zerknüllten ausgesehen haben? 😳
Flurgröße mit 28 qm, aber vor allem die Dimension/Gestaltung mit kompletter Hauslänge, muss mMn nicht weiter diskutiert werden.
Von den ca. 155 qm bleiben 115 qm über (ohne Flur/Hauswirtschaftsraum)
1. Grundriss mit/auf Grundstück planen
2. Grundriss immer mit kompletter Bemaßung, allen Öffnungen und Einrichtung. (Da reicht dann auch locker ein 2D, wie Bild 1)
3. Bitte von vorne…
(Eingang schmal, Garderobe?, innenliegendes WC, Hauswirtschaftsraum/Technik bekommt einen Sonnenplatz…)
Flurgröße mit 28 qm, aber vor allem die Dimension/Gestaltung mit kompletter Hauslänge, muss mMn nicht weiter diskutiert werden.
Von den ca. 155 qm bleiben 115 qm über (ohne Flur/Hauswirtschaftsraum)
1. Grundriss mit/auf Grundstück planen
2. Grundriss immer mit kompletter Bemaßung, allen Öffnungen und Einrichtung. (Da reicht dann auch locker ein 2D, wie Bild 1)
3. Bitte von vorne…
(Eingang schmal, Garderobe?, innenliegendes WC, Hauswirtschaftsraum/Technik bekommt einen Sonnenplatz…)
Ich hab kein Problem mit einer direkten Antwort 😀
Die Entwürfe waren alle sehr unterschiedlich, ich glaube da war jeder irgendwo an einem Punkt besser und an einem anderen schlechter.
Der lange Flur gefällt mir auch nicht so gut, wir hatten geplant die Außensauna im Garten dahinter zu platzieren und dann die Tür am Ende des Flurs als Tür dorthin zu nutzen.
Technik/Hauswirtschaftsraum bekommt die Seite ganz bewusst, weil da die Straße ist. Eingezeichnet sieht es grob so aus:

Als Garderobe ist die Nische an Hauswirtschaftsraum/Technik eingeplant 🙂
Was würdest du denn bezüglich der Hauslänge/Dimensionierung anders machen? Die Raumgrößen an sich finde ich eigentlich recht gut 😉
Die Entwürfe waren alle sehr unterschiedlich, ich glaube da war jeder irgendwo an einem Punkt besser und an einem anderen schlechter.
Der lange Flur gefällt mir auch nicht so gut, wir hatten geplant die Außensauna im Garten dahinter zu platzieren und dann die Tür am Ende des Flurs als Tür dorthin zu nutzen.
Technik/Hauswirtschaftsraum bekommt die Seite ganz bewusst, weil da die Straße ist. Eingezeichnet sieht es grob so aus:
Als Garderobe ist die Nische an Hauswirtschaftsraum/Technik eingeplant 🙂
Was würdest du denn bezüglich der Hauslänge/Dimensionierung anders machen? Die Raumgrößen an sich finde ich eigentlich recht gut 😉
D
Dingeling05.02.22 08:35Warum habt ihr denn den Winkel in den Norden gelegt ohne vernünftigen Zugang? Die Hausausrichtung und einzelne Zimmeranordnung macht wenig Sinn in meinen Augen.
Das Büro/evtl. zukünftige Kinderzimmer, welches von Wohnzimmer, Küche und Flur und evlt. Nordterrasse umgeben ist, ist vermutlich der lautesten Platz im Haus.
Neuplanung wäre vermutlich die beste Idee..
Das Büro/evtl. zukünftige Kinderzimmer, welches von Wohnzimmer, Küche und Flur und evlt. Nordterrasse umgeben ist, ist vermutlich der lautesten Platz im Haus.
Neuplanung wäre vermutlich die beste Idee..
Ramona13 schrieb:
Was würdest du denn bezüglich der Hauslänge/Dimensionierung anders machen?Das war nur auf den fürchterlichen Flur bezogen.Bevor hier aber „Luftschlösser“ designed und diskutiert werden, sollten die Baufenster geklärt werden. (Bei Deinem Grundstücktshema ist ja noch nichts geklärt…)
Ähnliche Themen