ᐅ Grundriss Einfamilienhaus (ca. 170 qm) mit Garage - Hanglage
Erstellt am: 13.04.18 18:48
M
Marco0581M
Marco058113.04.18 18:48Hallo liebes Forum,
was sagen die Profis zu folgendem Grundriss (insbesondere zu den unten beschriebenen Fragen)? Sticht Euch irgendwas ins Auge, was man gar nicht machen sollte?
Vielen Dank im Voraus
Bebauungsplan/Einschränkungen
Größe des Grundstücks: 800 qm
Hang: ja
Grundflächenzahl
Geschossflächenzahl
Baufenster, Baulinie und –grenze
Randbebauung: siehe Anhang
Anzahl Stellplatz: Garage für 2
Geschossigkeit: 2 (EG und OG ohne Keller)
Dachform: Flachdach mit Hinterlüftung
Stilrichtung
Ausrichtung: siehe Anhang
Maximale Höhen/Begrenzungen
weitere Vorgaben: keine
Anforderungen der Bauherren
Stilrichtung, Dachform, Gebäudetyp
Keller, Geschosse: Kein Keller, 2
Anzahl der Personen, Alter: 2 (36+34)
Raumbedarf im EG, OG: EG 90; OG 80
Büro: Familiennutzung (Büro + Gäste-Zimmer)
Schlafgäste pro Jahr: 10
offene oder geschlossene Architektur: offen
konservative oder moderne Bauweise: modern
offene Küche, Kochinsel: offen
Anzahl Essplätze: 6-8
Kamin: ja
Musik/Stereowand: nein
Balkon, Dachterrasse: Balkon
Garage, Carport: Garage
Nutzgarten, Treibhaus: nein
Weiteres: Sauna
Hausentwurf
Von wem stammt die Planung: DIY + Architekt
Was gefällt besonders? Warum?: Offener Wohnbereich mit Kamin/Saunaintegration
Was gefällt nicht? Warum?: EG ist zu konservativ; Räume in Reihe
Preisschätzung lt. Planer: 300TE
Persönliches Preislimit fürs Haus, inkl. Ausstattung: 360TE
Favorisierte Heiztechnik: Gas-Brennwerttherme mit Solarthermie
Wenn Ihr verzichten müsst, auf welche Details/ausbauten
- Könnt Ihr verzichten: Kamin
- Könnt Ihr nicht verzichten:
Was ist die wichtigste/grundlegende Frage zum Grundriss in 130 Zeichen zusammengefasst?
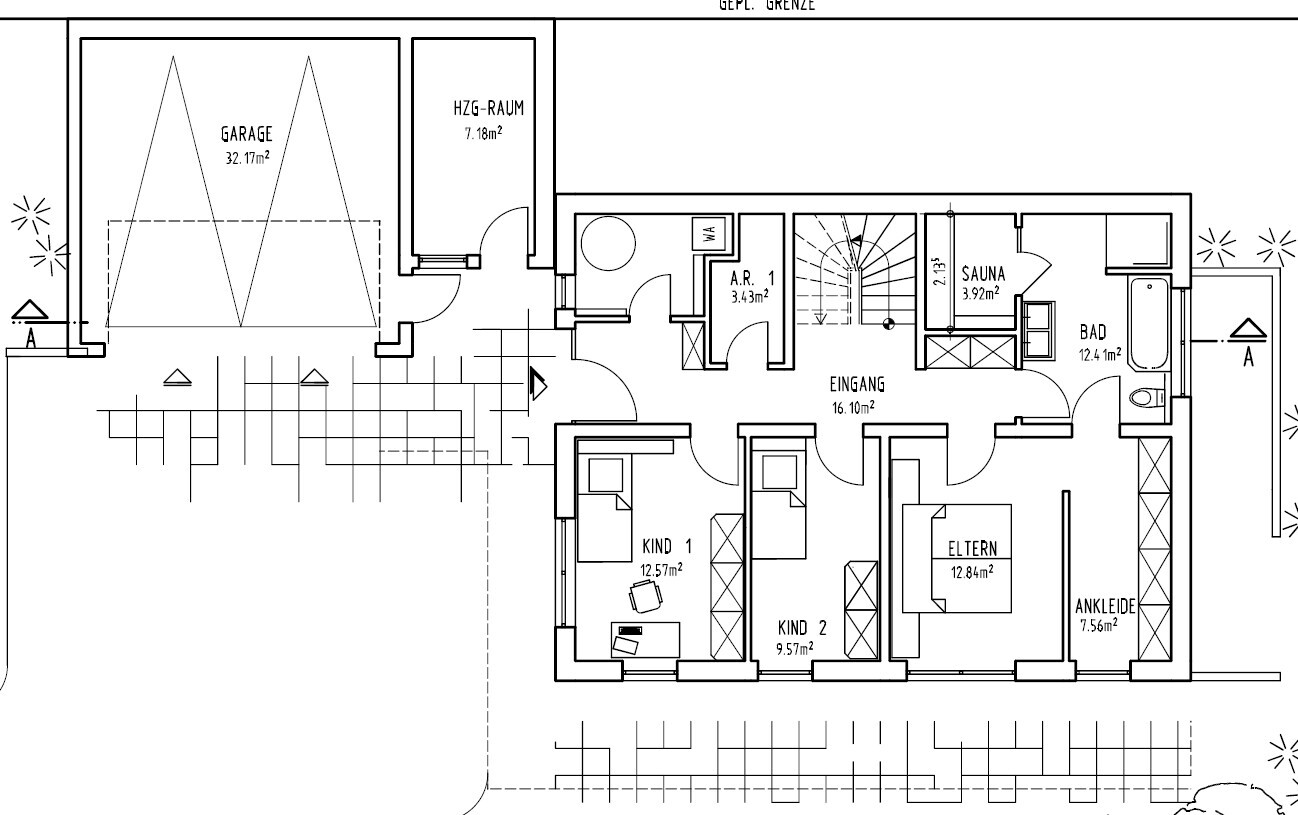
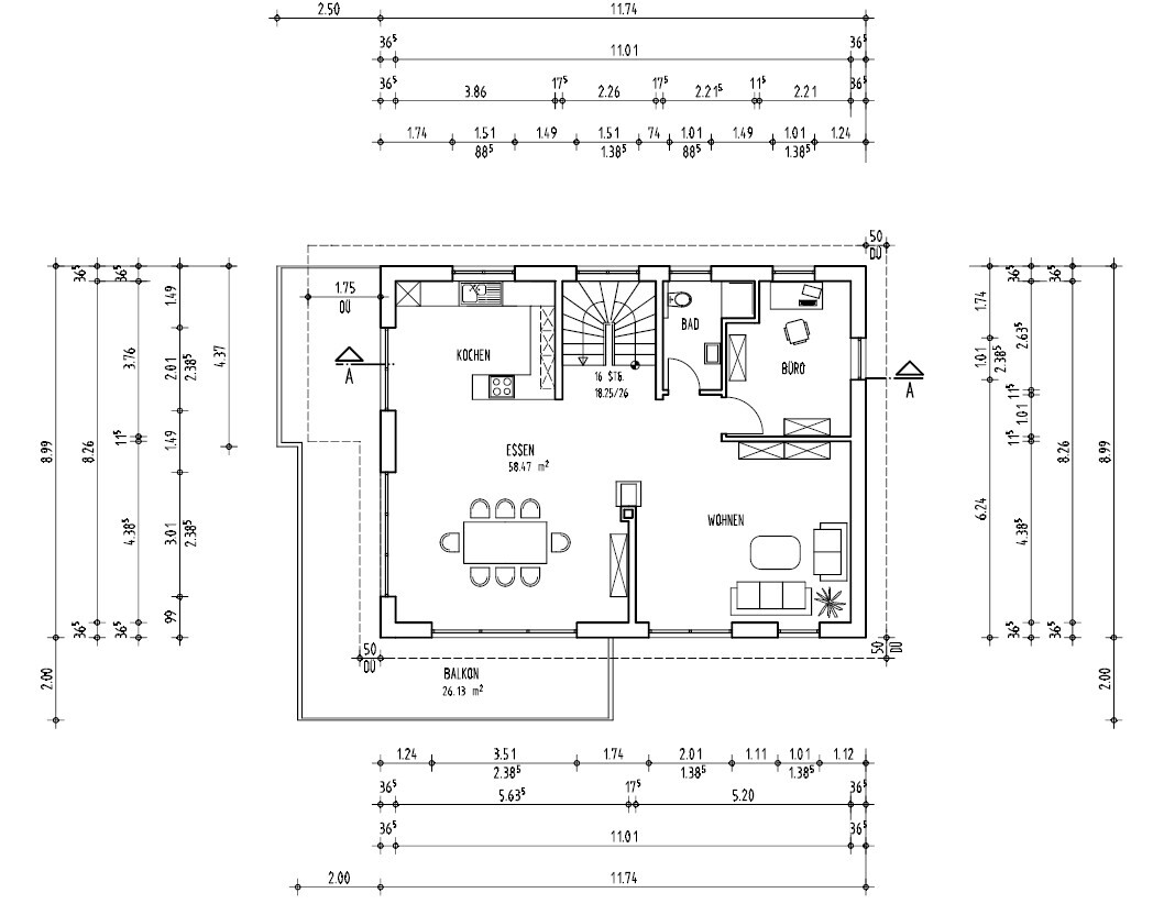
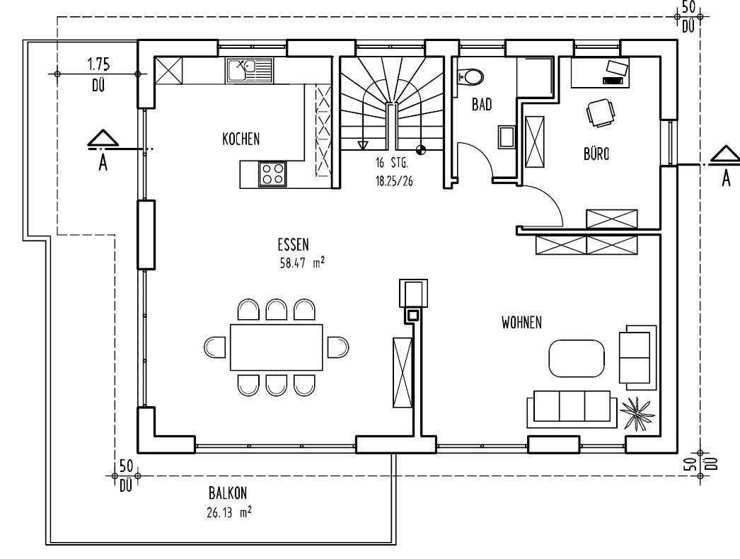
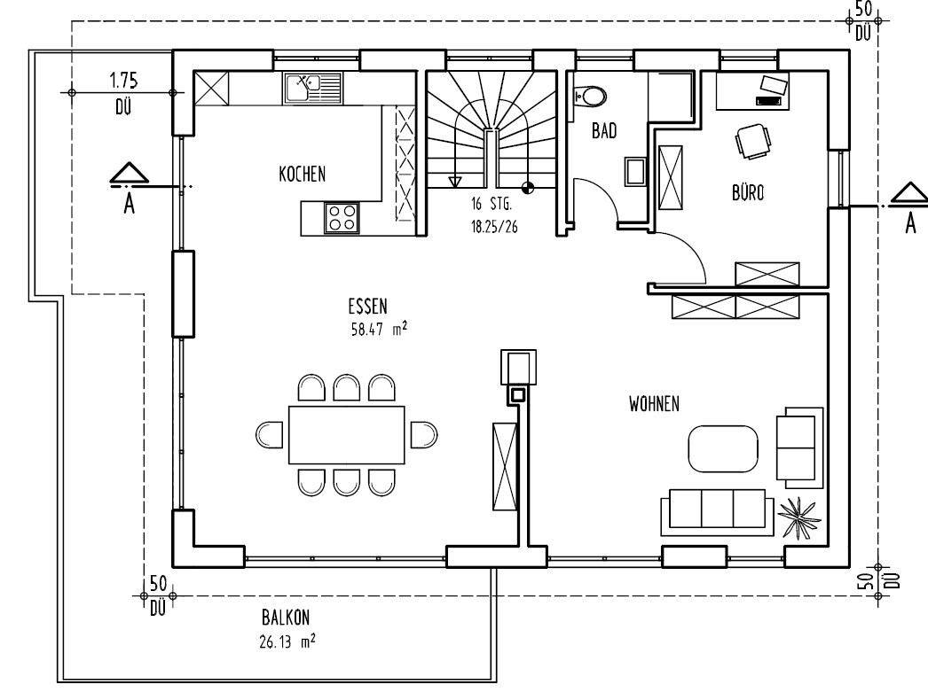
Durch die Hanglage des Grundstücks ist es nicht wirklich möglich, eine Terrasse mit Aussicht zu bauen. Daher ist der Wohnbereich in das OG gewandert und für den Sommer dachten wir uns, sitzen wir einfach auf dem Balkon. So wie der Balkon eingezeichnet ist, denken wir aber der ist zu klein. Macht es vielleicht Sinn, die Decke der Garage für den Balkon zu nutzen? (ein grober 3D Entwurf dazu im Anhang)
Der ursprüngliche Entwurf sah vor, den Heizungs-/Technikraum in der Garage unterzubringen. Aufgrund der Themen Grenzbebauung und zusätzlicher Dämmung für diesen Raum ist er in das EG gewandert. Dafür musste ein Badezimmer nach oben in das OG wandern. Im OG musste dafür ein Abstellraum weichen. Wir befürchten, dass wir dann insgesamt zu wenig Abstellfläche haben. Seht Ihr das auch so?
Anmerkung: Da wir no h in der Planung sind, habe ich nicht alle Ansichten auf aktuellem Stand. Ganz am Anfang hatten wir ein versetztes OG zum EG. Außerdem war die Garage nicht direkt am Grundstück platziert. Habe die Ansichten trotzdem angehangen, um die Ausrichtung zu zeigen. Das Satelittenfoto zeigt auch noch den alten Stand.








was sagen die Profis zu folgendem Grundriss (insbesondere zu den unten beschriebenen Fragen)? Sticht Euch irgendwas ins Auge, was man gar nicht machen sollte?
Vielen Dank im Voraus
Bebauungsplan/Einschränkungen
Größe des Grundstücks: 800 qm
Hang: ja
Grundflächenzahl
Geschossflächenzahl
Baufenster, Baulinie und –grenze
Randbebauung: siehe Anhang
Anzahl Stellplatz: Garage für 2
Geschossigkeit: 2 (EG und OG ohne Keller)
Dachform: Flachdach mit Hinterlüftung
Stilrichtung
Ausrichtung: siehe Anhang
Maximale Höhen/Begrenzungen
weitere Vorgaben: keine
Anforderungen der Bauherren
Stilrichtung, Dachform, Gebäudetyp
Keller, Geschosse: Kein Keller, 2
Anzahl der Personen, Alter: 2 (36+34)
Raumbedarf im EG, OG: EG 90; OG 80
Büro: Familiennutzung (Büro + Gäste-Zimmer)
Schlafgäste pro Jahr: 10
offene oder geschlossene Architektur: offen
konservative oder moderne Bauweise: modern
offene Küche, Kochinsel: offen
Anzahl Essplätze: 6-8
Kamin: ja
Musik/Stereowand: nein
Balkon, Dachterrasse: Balkon
Garage, Carport: Garage
Nutzgarten, Treibhaus: nein
Weiteres: Sauna
Hausentwurf
Von wem stammt die Planung: DIY + Architekt
Was gefällt besonders? Warum?: Offener Wohnbereich mit Kamin/Saunaintegration
Was gefällt nicht? Warum?: EG ist zu konservativ; Räume in Reihe
Preisschätzung lt. Planer: 300TE
Persönliches Preislimit fürs Haus, inkl. Ausstattung: 360TE
Favorisierte Heiztechnik: Gas-Brennwerttherme mit Solarthermie
Wenn Ihr verzichten müsst, auf welche Details/ausbauten
- Könnt Ihr verzichten: Kamin
- Könnt Ihr nicht verzichten:
Was ist die wichtigste/grundlegende Frage zum Grundriss in 130 Zeichen zusammengefasst?
Durch die Hanglage des Grundstücks ist es nicht wirklich möglich, eine Terrasse mit Aussicht zu bauen. Daher ist der Wohnbereich in das OG gewandert und für den Sommer dachten wir uns, sitzen wir einfach auf dem Balkon. So wie der Balkon eingezeichnet ist, denken wir aber der ist zu klein. Macht es vielleicht Sinn, die Decke der Garage für den Balkon zu nutzen? (ein grober 3D Entwurf dazu im Anhang)
Der ursprüngliche Entwurf sah vor, den Heizungs-/Technikraum in der Garage unterzubringen. Aufgrund der Themen Grenzbebauung und zusätzlicher Dämmung für diesen Raum ist er in das EG gewandert. Dafür musste ein Badezimmer nach oben in das OG wandern. Im OG musste dafür ein Abstellraum weichen. Wir befürchten, dass wir dann insgesamt zu wenig Abstellfläche haben. Seht Ihr das auch so?
Anmerkung: Da wir no h in der Planung sind, habe ich nicht alle Ansichten auf aktuellem Stand. Ganz am Anfang hatten wir ein versetztes OG zum EG. Außerdem war die Garage nicht direkt am Grundstück platziert. Habe die Ansichten trotzdem angehangen, um die Ausrichtung zu zeigen. Das Satelittenfoto zeigt auch noch den alten Stand.
M
Marco058113.04.18 20:54Also für 3 Personen. 2 Erwachsene und 1 Kind. Das Zimmer "Kind 2" ist das Hobbyzimmer meiner Frau. Zwischen den Zimmern "Kind 1" und "Kind 2" soll eine Trockenbauwand, sodass das Kinderzimmer bei Bedarf vergrößert werden kann.
Abstellraum fehlt definitiv.
Der Flur im EG ist zu groß. Langer Schlauch. Das ganze Erdgeschoss wirkt beengt.
Ankleide braucht viel Platz für relativ wenig Stauraum. Integriert ihr den Schrank im Schlafzimmer habt ihr ca. 50, 75 cm Platz ohne Einbusen und das Kind 1 oder Kind 2 wäre größer.
Würde die 2. Türe aus dem Bad nehmen.
Hattet ihr euch schon mal Gedanken gemacht den Hauseingang an eine andere Stelle zu setzen?
Der Flur im EG ist zu groß. Langer Schlauch. Das ganze Erdgeschoss wirkt beengt.
Ankleide braucht viel Platz für relativ wenig Stauraum. Integriert ihr den Schrank im Schlafzimmer habt ihr ca. 50, 75 cm Platz ohne Einbusen und das Kind 1 oder Kind 2 wäre größer.
Würde die 2. Türe aus dem Bad nehmen.
Hattet ihr euch schon mal Gedanken gemacht den Hauseingang an eine andere Stelle zu setzen?
M
Marco058113.04.18 21:33Problem ist, dass die Wand zwischen Kind2 und Eltern eine tragende ist und die Wand im OG darüber stehen muss. Aber hast Recht, dass die Ankleide vielleicht zu viel des Guten ist.
Ggf. könnte man den Flur dann direkt nach der Treppe enden lassen und einen separaten Bereich schaffen...entweder durch eine Tür abtrennen oder nur eine Zarge o.Ä. einbauen, so dass die Schlauchwirkung verschwindet. Die 2. Tür im Bad könnte dann verschwinden.
Wegen Abstellraum...könnte man den vielleicht oben zwischen Wohn und Esszimmer einbauen? So nur einen Meter breit für Staubsauger etc?
Und über die Haustür ehrlich gesagt noch keine Gedanken gemacht. Meinst Du mehr nach unten bzw. wenn man davor steht mehr nach rechts verschieben?
Ggf. könnte man den Flur dann direkt nach der Treppe enden lassen und einen separaten Bereich schaffen...entweder durch eine Tür abtrennen oder nur eine Zarge o.Ä. einbauen, so dass die Schlauchwirkung verschwindet. Die 2. Tür im Bad könnte dann verschwinden.
Wegen Abstellraum...könnte man den vielleicht oben zwischen Wohn und Esszimmer einbauen? So nur einen Meter breit für Staubsauger etc?
Und über die Haustür ehrlich gesagt noch keine Gedanken gemacht. Meinst Du mehr nach unten bzw. wenn man davor steht mehr nach rechts verschieben?
Ihr habt 16 qm Flur in dem man sich nur beengt bewegen kann.
Der muss weg.
Weiß bloß noch nicht wie.
Irgendwie muss Treppe und Eingang näher zusammen.
Würde dort keinen Abstellraum einplanen ich. Da verliert doch das OG seine Wirkung.
Nur das OG betrachtet würde ich die Treppe Richtung Süd West verschieben, dahinter einen Abstellraum von der Küche zugänglich.
Würde das EG komplett über den Haufen werfen.
Sind in den 300000 Euro auch die Kosten für Erdarbeiten, Stützmauern und für die lange Zufahrt dabei? Wenn ja wie viel Eigenleistung wollt ihr erbringen?
Unsere ersten Pläne war das Haus auch rechteckig, dann wurde es quadratisch
Unsere Wohnräume sind unten und die Schlafräume oben.
Der muss weg.
Weiß bloß noch nicht wie.
Irgendwie muss Treppe und Eingang näher zusammen.
Würde dort keinen Abstellraum einplanen ich. Da verliert doch das OG seine Wirkung.
Nur das OG betrachtet würde ich die Treppe Richtung Süd West verschieben, dahinter einen Abstellraum von der Küche zugänglich.
Würde das EG komplett über den Haufen werfen.
Sind in den 300000 Euro auch die Kosten für Erdarbeiten, Stützmauern und für die lange Zufahrt dabei? Wenn ja wie viel Eigenleistung wollt ihr erbringen?
Unsere ersten Pläne war das Haus auch rechteckig, dann wurde es quadratisch
Unsere Wohnräume sind unten und die Schlafräume oben.
Ähnliche Themen