
face26
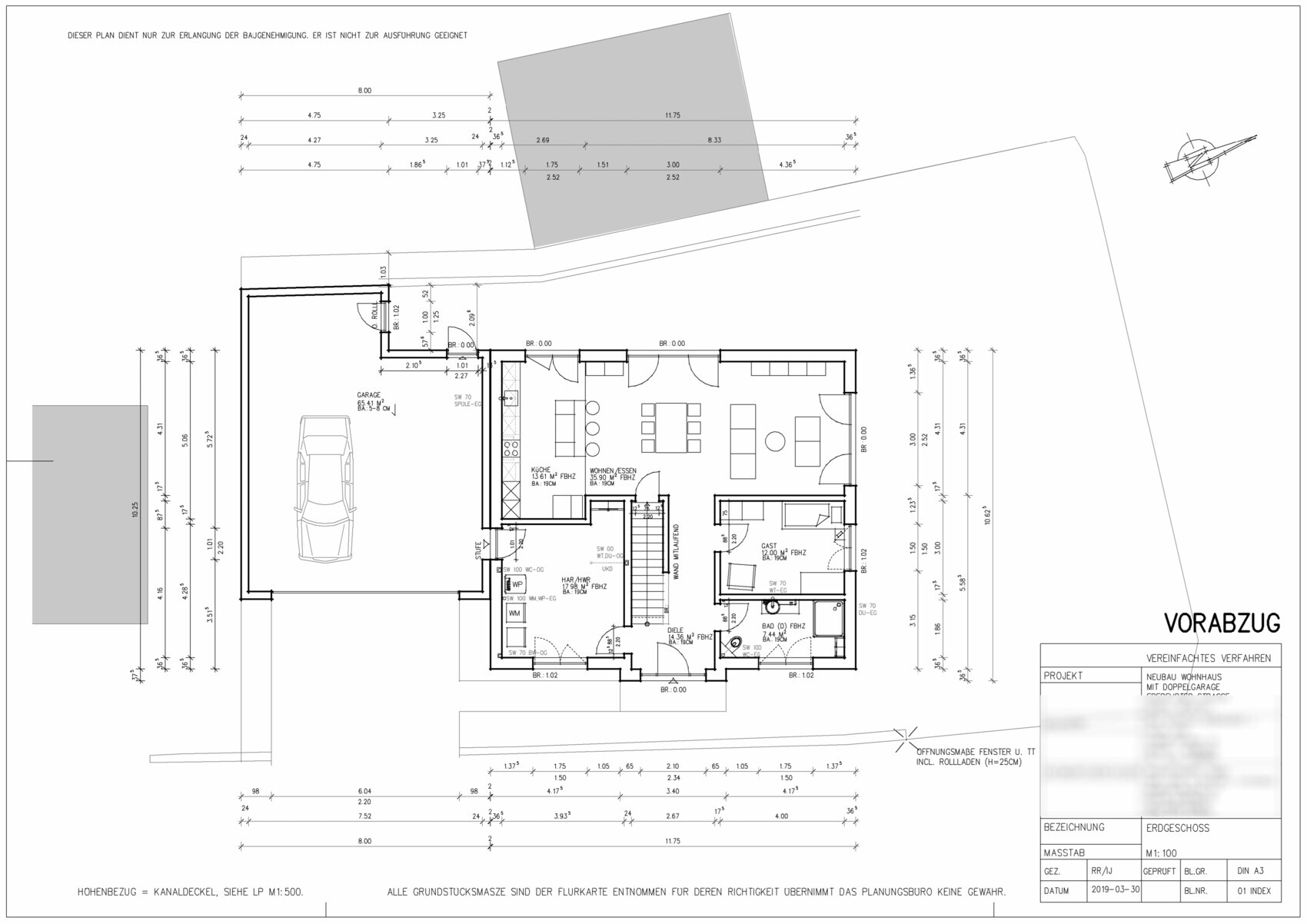
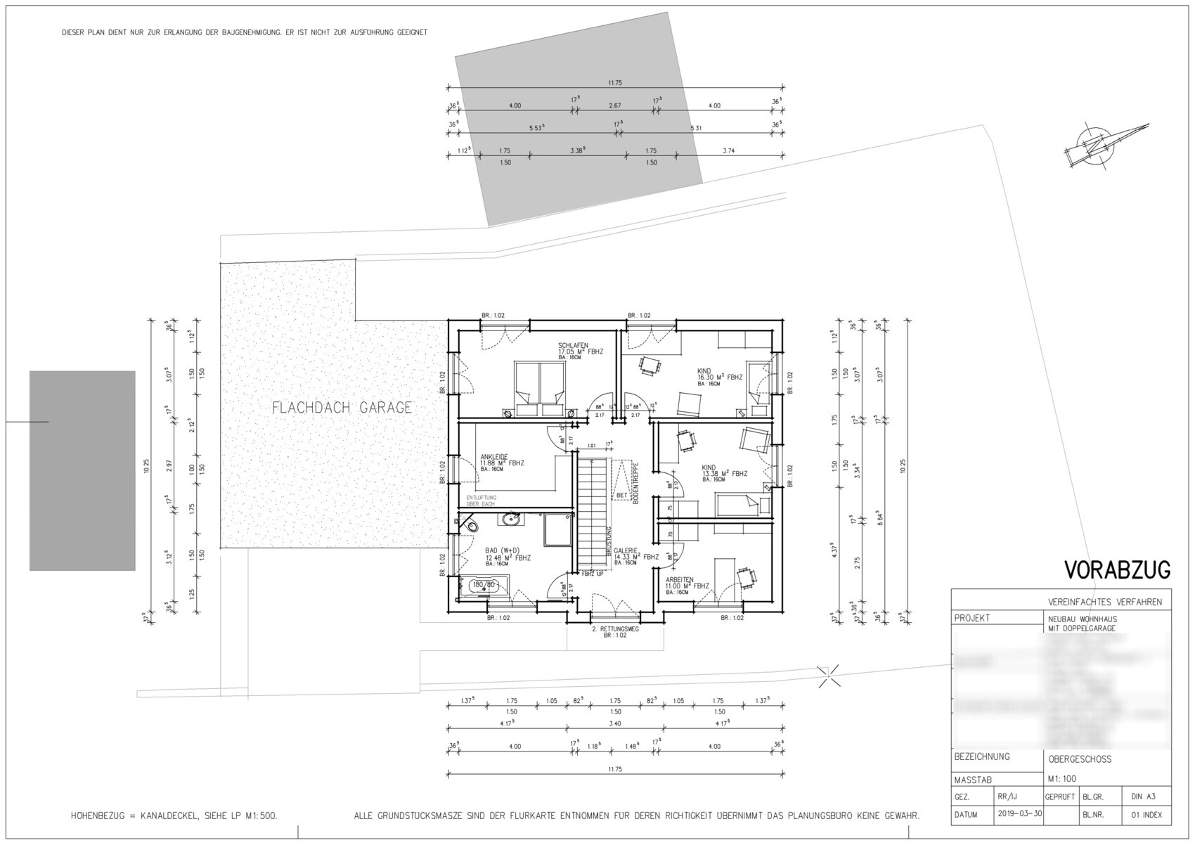
Der Grundriss beginnt mit der Ausrichtung. Nicht nur des Hauses sondern auch der Garage.Egal wie ich das Haus auf dem Grundstück drehe ... wenn ich den Garten zum planlinken Haus setze hab ich dort auch überwiegend Schatten, weil das Haus 2,5 Geschosse hoch ist (plus Keller, der über 1m über aktuellem Gelände steht) und daher haben wir das Haus so ausgerichtet. Es ging mir auch nicht um die Ausrichtung an sich, sondern eher um Verbesserungen zum Grundriss allgemein - Ideenfindung quasi.
Ich würde es mal mit der Garage planrechts versuchen.
Wenn ich das auf dem Sonnenstandsbild richtig interpretiere (nicht so ganz einfach mit den Bäumen) hättest von Mittag ab dann Sonne, da ist wäre die doch an dem Haus vorbei oder?