Hausentwurf mit SweetHome3D - Danke für euer Feedback

4,00 Stern(e) 4 Votes
Zuletzt aktualisiert 07.10.2025
Sie befinden sich auf der Seite 8 der Diskussion zum Thema: Hausentwurf mit SweetHome3D - Danke für euer Feedback
>> Zum 1. Beitrag <<

Y

ypg

Den "Herrn Lehrer" habe ich mir mit meiner Begriffsdifferenzierung konservativ ./. traditionell eingefangen, und im Klassenbuch nicht getadelt.

Die Vorwürfe vollziehe ich zum Großteil nicht nach: der Fragenkatalog ist im Ursprungsbeitrag recht weitgehend abgehandelt. Maße stehen nicht überall dran, aber man erkennt die Breite von 8,75 m zwischen den Außenwänden, 14,34 m Gesamtlänge sowie 62,5 cm Planungsraster. Die Treppe ist 90 cm breit, die Seitenschiffe jeweils Drei Meter zwölf. Grundtyp Hallenhaus, alles nachvollziehbar.

Bad bis Küche sind an einem Strang, und den Anschlussraum zentral dazwischen anzuordnen, scheint mir klug gedacht.
Sorry, aber von mir wird hier ein grossartiges Mitdenken verlangt, das kann ich gar nicht gewährleisten ... und es wird ja letztendlich auch unterstellt.
Man muss auch nicht davon ausgehen, dass jeder vor einem 21Zoll-Monitor sitzt und nichts anderes tut, als sich SweetHome-Entwürfe anzuschauen.

Wenn man dann zu Maßen und einer Zusammenfassung aufgefordert wird, damit der User sich nicht seine Infos aus einer Mehrzahl an Beiträgen rauskopieren muss... ist man als Fragesteller gefordert. Oje... ich böseböse, dass ich eine Nachfrage hatte!

P.s. und wofür hier getadelt wird, spielt keine Rolle, sofern Sender/Empfänger scheinbar nicht die gleiche Sprache sprechen.
 
11ant

11ant

Man muss auch nicht davon ausgehen, dass jeder vor einem 21Zoll-Monitor sitzt und nichts anderes tut, als sich SweetHome-Entwürfe anzuschauen.
Ich seh´s auf siebzehn und auf fünfzehn Zoll gut. Schauen "mit Augen auf" kann man trainieren. Dass die Treppenbreite schwarz auf braun dasteht, ist schwieriger als die Größe (oder daß die Maße nicht alle brav an Maßlinien aufgereiht sind). Ob jemand flüssig erzählt oder einen Fragebogen in vorgegebener Reihenfolge abhandelt, finde ich Geschmackssache - auch als Leser von beidem.
 
Nordlys

Nordlys

Nun ..... Ich nahm das gefühlt so wahr. Er stellt vor, erklärt auch ein wenig, für zwei, kein Gästezimmer, eine Wohnebene, Kosten nicht egal.......Reaktionen gefühlt, was haste da für den Mist gezeichnet. Das man da erst mal auf stur schaltet und sich sagt, hört man mir überhaupt zu, verstehe ich. Es ist speziell, ja, aber kann für Zwei, die offenbar beide künstlerisch tätig sind und beide einen gewissen Eigensinn haben, im grossen und ganzen schon passen....und es wurde ja vom Henry zugehört und was verändert. Einiges aber wird eben da gesetzt sein.

Ich kann mich noch erinnern, wie unser Grundriss kommentiert wurde FLur eng, wenig Garderobenplatz, dunkel. Stimmt. Ist Kompromiss. Wohnzimmer fehlt Zonierung. Esstisch und TV kollidieren. Hm? Im Plan ist weder Esstisch noch TV. Der Tisch ist in der Küche, TV im Gästezimmer, und im WZ die Stereoanlage, die gute alte mit den Canton fonum Boxen... Was für ne Zonierung fehlt? Karsten
 
Y

ypg

Bad bis Küche sind an einem Strang, und den Anschlussraum zentral dazwischen anzuordnen, scheint mir klug gedacht.
Wo denn? Wo wird der Abfluss sparsam geteilt?
Und die Toilette im OG wandert auch willkürlich hin und her... da hat es noch nicht einmal der Kniestock von 25 cm ausgereicht, dass die jemand benutzen kann, geschweige denn von einem Handwerker nach DIN installiert wird.

Aber es geht nicht darum, dass man keine Fehler machen darf.

Es geht mir nur darum, dass in diesem Thread Kritik an diejenigen geäußert wird, die sich hier einbringen und nicht nur sagen: alles nice, hast gut gemacht

Und deshalb bin ich raus.

P.s. Bei mir sind es oft 4 "
 
kbt09

kbt09

Also, ich bastele natürlich, finde die Anforderungen aber nicht so einfach, kann die Anforderungen aber recht gut verstehen.

Und ja, unser Standard-Fragenthread ist nicht ausgefüllt, aber, ich finde, es sind so viele Infos gegeben, die wirklich ausreichen. Vor allem auch mal ein aussagekräftiger Lageplan mit Nordpfeil usw. Man kann halt nicht alles nach Standard "abarbeiten" .. daher, locker bleiben.
 
kbt09

kbt09

@He.Di ... habe es ja angekündigt, ein wenig gebastelt. Und die Sauna ins EG gebracht, die Technik dafür ins OG.

Unsortiert hier einfach mal meine Gedanken als Stichpunkte:
  • Sauna mit Außenausgang, hoffentlich ausreichendem Ruheplatz am Fenster mit Blick ins Grüne.
  • Bad im EG beherbergt auch Waschmaschine/Trockner als Säule, vom Bad ist auch Ausgang nach draußen möglich. Wäsche im Sommer draußen aufhängen und in diesem Bereich fällt letztendlich fast alle Wäsche an
  • Schlafen, Anziehen, Baden, Duschen, Saunen alles in einer Art Privattrakt
  • Zwischen den beiden Schlafräumen kann man die Wand weglassen und hat ein großes Schlafzimmer, selbst den Bereich Ankleide/Privatflur könnte man noch etwas anders gliedern.
  • Im Flur noch eine Abstellmöglichkeit im wandbündigen Schrank für Staubsauger und Putzzeug
  • Unter der Treppe Regal für Wohnbereich
  • Klavier mit im Wohnbereich
  • Küche jetzt ca. 350 cm breit mit einer Vorstellung davon, wie ich mir die Kücheneinreichtung vorstellen könnte. Man könnte sogar in die Wand rechts wandbündig noch Stauraum unter der Treppe integrieren, Getränkevorrat und ähnliches
  • OG ... Zum problemlosen Anliefern der Haustechnik eine Doppelfenstertür im Atelier. Zugang Technik auch vom Atelier
  • Dann ein Gästebad im OG, Gäste können das auch als WC nutzen, müssen sie halt die Treppe hochgehen. Finde ich zumutbar. Dafür hätte man auf der Galerie Platz für ein Gästebett. Evtl. will man da auch noch einen Raum abtrennen, der dann als Lese-/Gästeraum genutzt werden kann.
Dach ohne Kniestock mit 45°.
Das ist nicht alles 100%ig ausgefeilt und orientiert sich ziemlich am Ausgangsplan, den ich ja in vielen Punkten nachvollziehbar finde.
Treppe soll nur unterhalb verkleidet werden, lässt sich immer schlecht darstellen (oder meine Kenntnisse reichen nicht ).


Grundriss eines Hauses: Küche/Essen, Wohnen, Bad mit Sauna, Schlafräume, Ankleide, Flur, Eingang

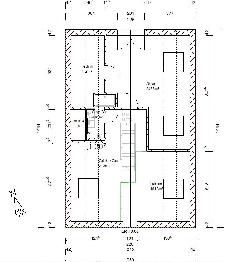
Grundriss eines Dachgeschosses mit Atelier, Galerie/Gast, Technikraum und Luftraum.


Isometrischer Hausgrundriss: Küche mit Esstisch, Wohnzimmer mit rotem Sofa, zwei Schlafzimmer.


Weißes Haus mit Satteldach auf grünem Rasen; Glas-Schiebetüren zeigen Wohnzimmer mit Sofa und Pflanze.
 
Zuletzt aktualisiert 07.10.2025
Im Forum Bauplanung gibt es 5061 Themen mit insgesamt 100646 Beiträgen


Ähnliche Themen zu Hausentwurf mit SweetHome3D - Danke für euer Feedback
Nr.ErgebnisBeiträge
1Treppe im Flur, Grundriss steht eigentlich schon :o( - Seite 320
2Standard-Grundriss für Stadtvilla mit 130qm - Seite 425
3Fliesen oder Vinyl in Küche und Flur 19
4Esstisch in einer kleinen Küche 49
5Einfamilienhaus mit Splitlevelstufe für Wohnbereich 25
6Wohin mit der Treppe? Dachausbau Walmdachbungalow - Seite 219
7Hauseingang mit Flur oder ohne - Seite 215
8 2 Vollgeschosse, Durchgang Garage, Hauswirtschaftsraum unter Treppe 25
9Grundrissfrage, Garage, Treppe 33
10Stadtvilla mit gerader Treppe, offene moderne Bauweise, 140m² 18
11Treppe im Wohnzimmer als Hype - Pro & Contra? - Seite 426
12Grundrissplanung: Flur im EG breit genug? - Seite 457
13Grundriss Einfamilienhaus 1 Vollgeschoss Technik und Tageslicht - Seite 3194
14Einfamilienhaus 172qm mit Garage und Sauna - Seite 654
15Wohnen/Essen/Küche: Wie wohnt ihr oder werdet ihr wohnen? - Seite 852
16Einteilung Grundriss Allraum Küche Wohnen Essen - Seite 358
17Standort Küche und Wohnzimmer 55
18Flur und Wohn-/Essbereich selben Bodenbelag? - Seite 350
19Wohnbereich Grundriss einplanen - Seite 462
20Planung Wohnraum & Küche eines Doppelhaushälfte in Nürnberg 13

Oben