Hauptbadezimmer (10qm) mit offener Dusche, Ideen?

4,40 Stern(e) 5 Votes
Zuletzt aktualisiert 04.10.2025
Sie befinden sich auf der Seite 3 der Diskussion zum Thema: Hauptbadezimmer (10qm) mit offener Dusche, Ideen?
>> Zum 1. Beitrag <<

Jochen104

Jochen104

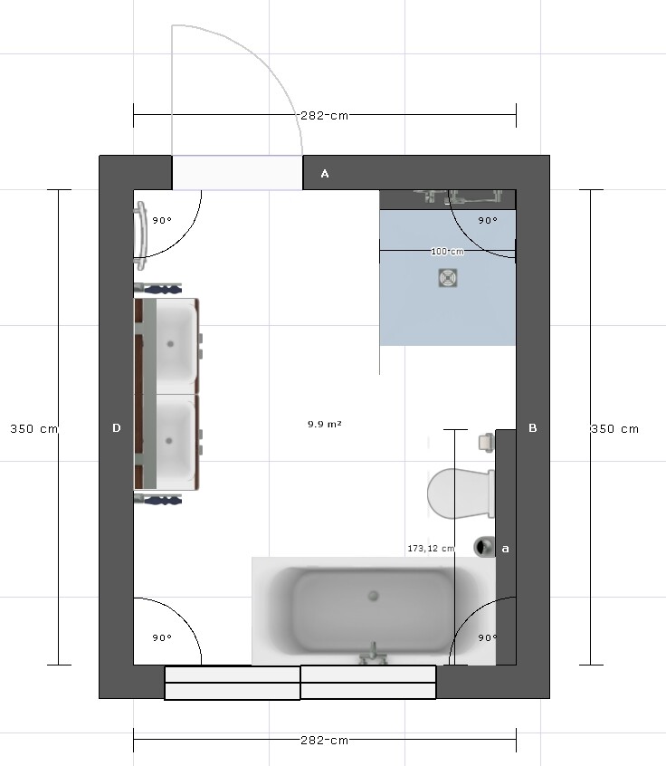
Der Anstoß dafür ist von Jochen104, ich habe nur die Duscharmatur gedreht.
Ja, die Armatur würde ich auch auf jeden Fall an der Stirnseite platzieren (bei Villeroy & Boch hab ich das nur auf die schnelle nicht gefunden). Wenn du eine 1m breite Dusche machst, wird der Eingang sogar noch größer. Ggf. kannst du dann sogar eine 1,50m Duschwand hinsetzten.

Bezüglich der Größe der Eckbadewanne kann ich dir leider auch nicht weiterhelfen. Hast du mal Onkel Google gefragt?
 
G

Gatho

@Gatho
Warum willst Du unbedingt eine offene Dusche?
"Einfach" in die Dusche zu gehen ohne eine Türe zu öffnen, oder eine große Schwelle zu überwinden ist einfach angenehm. Die gleichmäßige Temperaturverteilung ist dabei ein positiver Nebeneffekt.

Bezüglich der Größe der Eckbadewanne kann ich dir leider auch nicht weiterhelfen. Hast du mal Onkel Google gefragt?
Da wir über einen Bauträger & Generalunternehmer bauen gehen solche Sonderwünsche durch einige Hände, welche alle bezahlt werden müssen:
Badausstellung -> Sanitär Installateur -> Bauträger -> Generalunternehmer... Du kannst Dir vorstellen was dann eine solche Eckbade kosten wird. Daher sind wir dann gestern auf den Entschluss gekommen, doch keine Eckbadewanne auszuwählen (obwohl wir eigentlich schon immer gerne eine hätten).

Auch bei der Aufstellung der Toilette auf die linke Seite sind wir uns nicht sicher ob das bzgl. der Anschlüsse so ohne weiteres möglich wäre. Deshalb anbei ein neuer Entwurf.

Bei der Dusche sind wir uns auch noch unsicher. Im Preis enthalten ist eine 90x90 Superplan Duschtasse. Eine geflieste Dusche mit Rinne würde sich bei dieser Variante eigentlich anbieten, man liest jedoch viel über mittel-/langfristige Dichtigkeitsprobleme.

Alles nicht so einfach. :/

Grundriss eines Badezimmers: Dusche rechts, Badewanne unten, Doppelwaschtisch links, WC rechts.


Moderne Badezimmeransicht: zwei Waschbecken, Glasdusche mit Sitzbank, WC, Badewanne, beige Fliesen.
 
Jochen104

Jochen104

Vermutlich wirst du dich mit der Variante ärgern, dass andauernd das Toilettenpapier von der Dusche nassgespritzt wird.
Oder das du, wenn du in der Badewanne liegst, die Klobürste direkt neben dir hast bzw. du direkt auf die Toilette schaust.

Du brauchst für eine offene Dusche mMn mindestens 1,50m, besser noch 1,60m Platz in eine Richtung.

Zum Mehrpreis der Badewanne kann ich nichts sagen. Vielleicht kannst du mal mit dem ausführenden Unternehmen direkt sprechen?
Ich würde jederzeit wieder das Geld für eine geflieste Dusche ausgeben. Wir sind damit absolut zufrieden. Vom Fachmann gemacht, sollte es keine Probleme geben.
Im Bad verbringst du jede Menge Zeit. Da sollte es wegen 500 Euro mehr eigentlich keine solchen Kompromisse geben.
 
G

Gatho

Das Toilettenpapier & Klobürszr sind auf der Zeichnung unglücklich - das lässt der Konfigurator nicht anders zu.

Es ist gerade echt nicht einfach, eben auch weil wir uns jetzt so kurzfristig entscheiden müssen. Mir fällt da unterm Strich keine ideale Lösung ein. Leider wissen wir auch nicht ob das WC auf die andere Seite kann, oder nicht.
Klar, an 500€ soll es nicht scheitern, aber die Aufpreise des GU sind echt gesalzen.
 
Zuletzt aktualisiert 04.10.2025
Im Forum Sanitär / Bad / WC gibt es 1365 Themen mit insgesamt 14346 Beiträgen


Ähnliche Themen zu Hauptbadezimmer (10qm) mit offener Dusche, Ideen?
Nr.ErgebnisBeiträge
1Villeroy & Boch Combipool Invisible - Seite 226
2Individuelle Badplanung trotz Bauträger (und Geld sparen...) 14
3Villeroy & Boch O-Novo incl. WC-Sitz Erfahrungen 13
4Welches Wand WC: Villeroy & Boch, Geberit, Duravit??? 39
5Bauträger oder Generalunternehmer! Sicherheit? 30
6Grundriss Bad mit Dusche 11
7Walk-in Dusche, bitte um Ratschläge 27
8Duschwanne oder geflieste Dusche? - Seite 224
9Fliesen gebrochen Gewährleistung? Neubauwohnung vom Bauträger - Seite 213
10Erstes Gespräch mit Bauträger - erste Zahlen... 64
11Wie sucht ihr nach passendem Bauträger? - Seite 230
12Grundstücke in Köln nur über Bauträger? - Seite 654
13Bauträger oder freier Architekt 26
14Herangehensweise Erstkontakt Bauträger & Fertigbauanbieter 24
15Zusätzliche Baukosten bei Hausbau mit Bauträger 88
16Was kann man von "schlüsselfertig" erwarten? - Seite 220
17Bad Bilderthread - Zeigt her eure Badbilder! - Seite 10117
18Planung des Bades 19
19Badgestaltung 24
20Budget Aufmusterung Erfahrungen - Seite 213

Oben