Hauptbadezimmer (10qm) mit offener Dusche, Ideen?

4,40 Stern(e) 5 Votes
Zuletzt aktualisiert 23.11.2025
Sie befinden sich auf der Seite 12 der Diskussion zum Thema: Hauptbadezimmer (10qm) mit offener Dusche, Ideen?
>> Zum 1. Beitrag <<

G

Gatho

Genau, Badewanne, Fußgestell, Armatur, Überlaufgarnitur.

Interesse geweckt? Zu dem Knallerpreis kann ich Dir auch eine organisieren.
 
Uwe82

Uwe82

@ypg: Ganz im Gegenteil, es ist die einzige Möglichkeit den richtigen Preis zu finden. Es bringt gar nichts bei Reuter zu schauen, was einem gefällt, denn da verrennt man sich .
 
B

Bauexperte

Genau, Badewanne, Fußgestell, Armatur, Überlaufgarnitur.
Das ist schon eine Hausnummer! Andererseits wäre es zu kurz gegriffen, deinen Anbieter jetzt zu verteufeln; es wird an seiner Mischkalkulation oder Einkaufsverhandlung im Großhandel liegen. Oder ...

... es "kann" auch sein - bitte nicht falsch verstehen, daß sein Einstiegsangebot an Dich so niedrig war, daß er es nachvertraglich und im Laufe der Bauzeit an wirtschaftlich gesunde Zahlen angleichen muß

Grüße, Bauexperte
 
Y

ypg

@ypg: Ganz im Gegenteil, es ist die einzige Möglichkeit den richtigen Preis zu finden. Es bringt gar nichts bei Reuter zu schauen, was einem gefällt, denn da verrennt man sich .
Nun habe ich den ganzen Thread abgeklappert, weil ich für Dich zählen wollte, wie oft unser Gatho sinngemäss geschrieben hat, dass er es sinnlos findet, überhaupt nachzufragen, weil es mir einfach darum ging, dass er überhaupt mal nachfragen soll.
Nun hat Gatho aber schon am Wochenende geschrieben, dass er Sanitär teilweise herausnimmt. Das sehe ich jetzt erst

@Gatho
wird es denn jetzt eine Eckwanne, damit Du mit Deinem Bad glücklich wirst oder wird es die Rechteckige, für die das Bad eigentlich nicht den Platz hat?
 
G

Gatho

Hi!

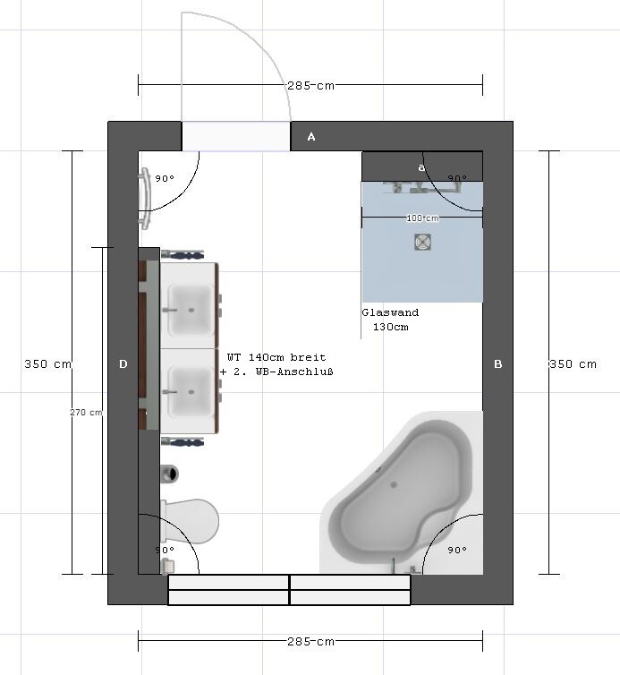
Sorry wegen der etwas späteren Rückmeldung. Wir waren in der Badausstellung, mussten mit dem Bauträger sprechen etc.. Das hat sich dann etwas hingezogen. Wir haben uns nun auf die angehangene Variante geeinigt.

Von der Eckbadewanne für die wir uns entschieden haben habe ich die Zeichnung mal angegangen. Ich denke damit kommen wir gut klar. Wenn das Bad dann mal irgendwann fertig ist, werde ich auch Fotos nachreichen.

VIELEN Dank für die tolle Hilfe hier!
Beste Grüße
Gatho

Badezimmer-Grundriss: Doppelwaschtisch links, Toilette links, Badewanne rechts, Glaswand 130 cm.


Modernes Badezimmer mit zwei Waschbecken, Glasdusche und Spiegel.


Modernes Badezimmer mit Eckbadewanne, Doppelwaschbecken und Fenster mit Gartenblick.


Modernes Badezimmer mit Doppelwaschbecken, Badewanne, Toilette, Spiegel und Fenster mit Gartenblick.
 

Anhänge

Zuletzt aktualisiert 23.11.2025
Im Forum Sanitär / Bad / WC gibt es 1379 Themen mit insgesamt 14423 Beiträgen


Ähnliche Themen zu Hauptbadezimmer (10qm) mit offener Dusche, Ideen?
Nr.ErgebnisBeiträge
1Badewanne vs Dusche 11
2Ebenerdiger Pool anstatt Badewanne? 19
3Anschluss Badewanne an Dusche 21
4Welche Höhe Badewanne? - Seite 217
5Eingemauerte Badewanne - Armatur 11
6Reichen 85cm Abstand vom Waschbeckenrand bis zur Badewanne? 12
7Badewanne Körperkontur, 2 Personen, Massagedüsen, gibt es sowas? 10
8Badewanne .... und nun? 21
9Badewanne vor Fenster - Brüstungshöhe? 14
10Position der Badewanne unter Dachschräge 22
11Badewanne unter Dachfenster unterbringen sinnvoll? 13
12Eingelassene Badewanne Pro Contra 28
13Renovierung-Tipps für sehr kleines Bad mit Dusche statt Badewanne - Seite 336
14Fußbodenheizung Abstand, fehlende Stelle und Badewanne 26
15Planung Badezimmer, Dusche ohne Badewanne 14
16Badewanne im Schlafzimmer - was haltet ihr davon? - Seite 235
17Ablaufventil Badewanne - schließt nicht 10
18Fußbodenheizung unter Badewanne und Dusche 13
19Badewanne falsch ausgerichtet - Mangel? 15
20Beratung: Neues Badezimmer, 5,9qm mit Badewanne 48

Oben