Grundrissoptimierung Einfamilienhaus ca. 150qm - auf kleinem Grundstück

5,00 Stern(e) 6 Votes
Zuletzt aktualisiert 20.11.2025
Sie befinden sich auf der Seite 17 der Diskussion zum Thema: Grundrissoptimierung Einfamilienhaus ca. 150qm - auf kleinem Grundstück
>> Zum 1. Beitrag <<

S

Scout

Die Küche ist mit 16 m2 ohne Essbereich unnötig groß finde ich. In der Mitte ist ein 2x 2,5 m großer freier Bereich. Wenn ihr da nicht ständig zu viert am Werkeln seit fände ich eine Hochschrankfront planoben, Spüle planlinks oder im Eck und eine Insel planunten sinnvoller, letzere um einen Meter nach oben gerückt.

Der Zugang von der Diele evt. entfallen lassen oder halt nur einen SideBySide planrechts stellen.
 
Yaso2.0

Yaso2.0

Die Küche ist mit 16 m2 ohne Essbereich unnötig groß finde ich.
Ich mag zwar ne große Küche haben, aber ohne separaten Essplatz find ich die auch unnötig zu groß.

Jetzt läufts aufs selbe wie bei @Shiny86 hinaus.. Wir gehen zurück auf Los..

Es wird kein separates Arbeitszimmer geben.

Sollte es (wider erwarten) mit einem zweiten Kind klappen, hat sich das Thema Home Office ja eh erledigt bis dahin kann also auch das 2. Zimmer im OG als Arbeitsplatz eingerichtet werden..

Heute treffe ich mich erneut mit der Architektin, Krisenbesprechung
 
Yaso2.0

Yaso2.0

Die neuen Zeichnungen sind da!

Ich finde sie super gut! Freue mich aber, falls dem einen oder anderen noch etwas unstimmiges auffällt.

Ansonsten gehts zusätzlich um die Fenster. Da würde ich gerne Meinungen zu hören, ob man dort was optimieren kann.

Auf jedenfall soll aus dem Küchenfenster ein Lichtbandfenster werden.

Die Überlegung zusätzlich, die Westfenster im Schlaf-und Kinderzimmer auch auf 1m zu bringen.

Das Fenster im Kinderzimmer im Osten sollte ebenfalls auf 1m.

Da es mehrere Fenster im Zimmer gibt, dürfte es nicht zu dunkel werden, oder was meint ihr?

Grundriss eines Einfamilienhaus-EG mit Carport, Räume nummeriert und Maße sichtbar, Maßstab 1:100.


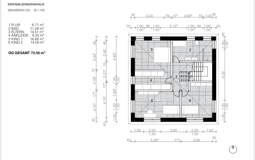
OG-Grundriss eines Einfamilienhauses: Flur, Bad, Elternzimmer, Ankleide, 2 Kinderzimmer, Treppe


Zweigeschossiges Einfamilienhaus aus Bruchstein, vier Fassaden: Nord, West, Süd und Ost.
 
N

Nice-Nofret

Warum willst Du im Hauptarbeitsraum des Hauses, sprich: der Küche - nur ein Lichtband statt soviel Tageslicht wie möglich?

Was soll in dem grossen Elternschlafzimmer sonst noch stattfinden? Das Bett würde ich entweder an die Außenwand planoben oder planlinks setzten und links und rechts die Fenster hinter den Nachtkästen planen oder den Durchgang aus der Ankleide an das Fußende des Bettes setzen.

So richtig rund ist die Planung allerdings insgesamt noch nicht.
 
Y

ypg

Mal ganz ehrlich: nachdem ich #82 am Morgen und abends dann #90 gesehen habe, habe ich nur gedacht: „die Frau zeichnet nachts besoffen“. Eine Ankleide in eine Ecke zu legen, alles einfach nur mal grob verschieben, alle Hochachtung zum Fachpersonal
Anscheinend ohne Nachzudenken verschiebt sie die Raumgrößen. Macht sie das nach Euren Vorgaben, oder denkt sie auch mal selbst, zb Kinderzimmer mit a10 und 15 qm.... ohne Worte.
Die Treppe verstehe ich immer noch nicht: warum ist der Antritt so megalang, dass man ihn vier Stufen überbauen muss. Geht das überhaupt? Ich würde den anderen Schenkel doch so groß wie möglich machen, damit darunter noch ein Abstellraum kann?!
Grundsätzlich solltest Du für den Garderobenschrank mind. 60cm in der Tiefe einplanen. Die Insel ist ein Witz: 1,20, wenn man spitz schätzt.

Aber es wird ja insgesamt besser.
Allerdings: im Schlafzimmer das Kopfende direkt im Eingang zu haben und die Dusche an zwei Fenstern entlang zu begehen müssen, das würde ich sofort ändern, Bad Einrichtung nicht erst später.
Rechne damit, dass Du ein schönes Schlafzimmer eingerichtet wohl nur bekommst, wenn Du flexibel mit der Fensteranordnung bist. Zur Not würde ich auf Symmetrie Bad/Schlafzimmer verzichten.
 
Zuletzt aktualisiert 20.11.2025
Im Forum Grundrissplanung / Grundstücksplanung gibt es 2535 Themen mit insgesamt 87978 Beiträgen


Ähnliche Themen zu Grundrissoptimierung Einfamilienhaus ca. 150qm - auf kleinem Grundstück
Nr.ErgebnisBeiträge
1Grundrissplanung Hanghaus mit 5 Kinderzimmer - Seite 26370
2OG Stadtville optimieren. Fenster Bodentief - Seite 13104
3Größe vom Schlafzimmer und Kinderzimmer - Seite 338
4Kinderzimmer und Schlafzimmer - Welche Größe ist zu empfehlen? - Seite 256
5Erster Grundrissentwurf Doppelhaushälfte 90m² Grundfläche - Seite 215
6Grundrissfrage, Treppe, Fenster, Ausrichtung 12
7 Küchenplanung mit tiefen Fenster - Seite 643
8Grundrissplanung Einfamilienhaus (Stadtvilla) ca.140m² (3 Kinderzimmer) 42
9Grundriss Bungalow 150qm geschlossene Küche, überdachte Terrasse 40
10Neubau Einfamilienhaus 160-170qm, 3 Kinderzimmer 39
11Grundriss Stadtvilla / Anordnung Fenster, Feedback erwünscht - Seite 216
12Grundrissfrage: Tausch gerader Treppe durch L-Treppe 31
13Umbau Kinderzimmer - Fenster in zwei Fenster aufteilen? 20
14Schallschutztür Schlafzimmer / Kinderzimmer 23
15Fenster Brüstungshöhe 130 im Schlafzimmer / Arbeitszimmer? - Seite 493
16Pfiffige Schlafzimmer Idee mit Ankleide gesucht 19
17Grundriss Schlafzimmer, Ankleide und Bad en Suite - Seite 336
18Grundriss Schlafzimmer mit Bad und Ankleide 62
19Grundriss Einfamilienhaus geplant, Fenster gefallen uns - Seite 343
20Aufmusterung Elektro, Q2, Badfliesen, Drempel, bodentiefe Fenster 23

Oben