Grundrissoptimierung Einfamilienhaus ca. 150qm - auf kleinem Grundstück

5,00 Stern(e) 6 Votes
Zuletzt aktualisiert 22.12.2025
Sie befinden sich auf der Seite 6 der Diskussion zum Thema: Grundrissoptimierung Einfamilienhaus ca. 150qm - auf kleinem Grundstück
>> Zum 1. Beitrag <<

Yaso2.0

Yaso2.0

und in deinem ersten Entwurf ist die Küche nicht komplett offen? Was ist der Unterschied?
Das verstehe ich nicht ganz- deine Küche im ersten Beitrag ist doch offen. Oder möchtest du den Küchenmixer nur in der Speis betreiben wollen?
Da hat der Planer die Trennwand vergessen. Hatte ihm gesagt, dass die Küche halboffen werden soll und Schiebetüren in der Wand verlaufen sollen, damit im WZ Ruhe ist, wenn ich da die ganzen Maschinen laufen habe
 
Yaso2.0

Yaso2.0

Upps...hatte ich übersehen...ich dachte die 39 m² sind reiner Wohnbereich ohne Küche. Wo geht denn da der ganze Platz verloren?
Ok wir haben etwas mehr Grundfläche (3m²) aber dafür 44 m² an Wohnen (mit Küche) und noch ein Büro von 11 m² im EG ( + 4 m² Bad + 8m² Technik + 12 m² Flur)
Ich glaube der Flur ist sehr verschwenderisch beim ersten Beitrag...Hauswirtschaftsraum könnte vielleicht auch etwas kleiner sein.
Ich habe auch schon Grundrisse in der Größenordnung mit Büro im EG gesehen...
Also wenn dir da gerade die Grundrissbezeichnungen/Namen einfallen, gerne her damit! Ich habe schon überall gesucht, auch hier im Forum hab ich dank der „Alle Bilder dieser Kategorie“ Funktion alle Grundrisse hier gesichtet.

Ich find ja ebenfalls, dass der Flur total viel Fläche einnimmt..

Die meisten Grundrisse, wo dann das Büro im EG möglich ist, waren mit einer geraden Treppe geplant und die möchten wir nur sehr sehr ungern oder das Haus hatte große Ausmaße..

Wie gesagt, wenn jemandem ein Grundrisstipp einfällt, gerne her damit!
 
C

chrisw81

Upps...hatte ich übersehen...ich dachte die 39 m² sind reiner Wohnbereich ohne Küche. Wo geht denn da der ganze Platz verloren?
Ok wir haben etwas mehr Grundfläche (3m²) aber dafür 44 m² an Wohnen (mit Küche) und noch ein Büro von 11 m² im EG ( + 4 m² Bad + 8m² Technik + 12 m² Flur)
Ich glaube der Flur ist sehr verschwenderisch beim ersten Beitrag...Hauswirtschaftsraum könnte vielleicht auch etwas kleiner sein.
Die meisten Grundrisse, wo dann das Büro im EG möglich ist, waren mit einer geraden Treppe geplant und die möchten wir nur sehr sehr ungern oder das Haus hatte große Ausmaße..

Wie gesagt, wenn jemandem ein Grundrisstipp einfällt, gerne her damit!
Stimmt, gerade Treppe sieht man oft. Finde ich aber auch schön.

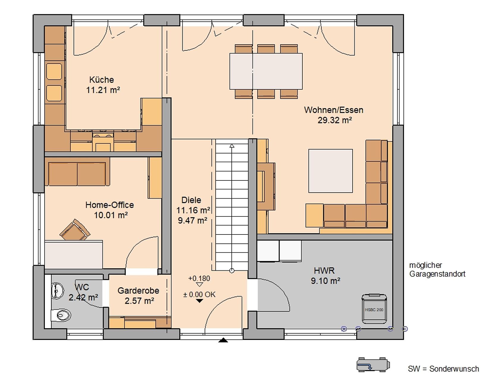
Hier mal zwei Grundrisse...eventuell etwas größer als eure Variante, vielleicht kann man hier und da noch ein bisschen sparen. Aber wenn man ein Büro im EG will braucht man nun etwas Platz oder man macht andere Räume sehr klein..

Grundriss eines Hauses mit Wohn-/Essbereich, Küche, Diele, Home-Office, Dusche und HWR.

Grundriss EG: Küche, Wohnen/Essen, Home-Office, Diele, WC, Garderobe, HWR, Treppenhaus
 
face26

face26

...also ist in dem Grundriss das vielleicht gewünschte Büro nicht drin aber man weiß noch nicht ob man es braucht, weil nur einer glaubt man braucht es und...

...die Trennwand zur Küche wurde vergessen, die im Ursprungsentwurf auch gar nicht reinpasst weil sonst entweder Küche oder Esszimmer nicht mehr funktionieren.

...ich sehe schon...das könnte wirklich der nächste shiny86alike-Thread werden.

Edit: Der eingezeichnete Esstisch misst grob geschätzt 1,70 x 0,7 sofern das Raster 0,25cm je Kästchen sind.

Würde mir da alle Maße nochmal genauer anschauen...
 
Zuletzt bearbeitet:
Yaso2.0

Yaso2.0

Also gut, ich trau mich mal, mein selbst gemaltes Werk zu präsentieren.. so hatten mein Menne und ich uns das vorgestellt, wenn ein Büro mit rein müsste.. bitte nicht lachen

Leider bekomme ich das nicht in ein Programm, mein Laptop ist seit Monaten hinüber und aufm Handy vertippe ich mich ständig

so ein Ding auf knapp 150qm war die Vorstellung..

Anfangs wollte ich 2 Kästchen 1 m, aber das war dann zu groß.. so ist es also nur eine Vorstellung, ohne Maße..

Zwei Grundriss-Skizzen auf kariertem Papier, links Büro/Wohnzimmer, rechts Küche/Flur.
 
Zuletzt aktualisiert 22.12.2025
Im Forum Grundrissplanung / Grundstücksplanung gibt es 2554 Themen mit insgesamt 88554 Beiträgen


Ähnliche Themen zu Grundrissoptimierung Einfamilienhaus ca. 150qm - auf kleinem Grundstück
Nr.ErgebnisBeiträge
1auf welchen dieser Grundrisse können wir weiter aufbauen? - Seite 31287
2Wohin mit der Treppe? Dachausbau Walmdachbungalow - Seite 219
3Probleme bei der aufteilung Küche, Essen , Wohnen - Seite 216
4Grundrissfrage, Treppe, Fenster, Ausrichtung 12
5 2 Vollgeschosse, Durchgang Garage, Hauswirtschaftsraum unter Treppe 25
6Esstisch in einer kleinen Küche - Seite 249
7Einteilung Grundriss Allraum Küche Wohnen Essen - Seite 358
8Grobe Schnitzer im Grundriss? Küche zu klein? 39
9Stadtvilla mit gerader Treppe, offene moderne Bauweise, 140m² 18
10Grundriss Fails Sammelthread - Grundrisse die keiner wollte 25
11Eine kleine Trennwand in der Wohnküche? 12
12REH - Grundrissplanung - Küche zu klein 30
13Schrank unter der Treppe oder kleiner Abstellraum - Seite 211
14Grundriss-Änderung Einfamilienhaus 150 m² aufgrund von Treppe 36
15Grundriss EG Wohnen / Küche - Trennwand 19
16Treppe - Sind die Treppenmaße 2.00x2.00m in Ordnung? - Seite 968
17Welcher der Zwei Grundrisse ist besser? 20
18Massivhaus-Einfamilienhaus 142 m² Wohnfläche, Fragen zu Grundrissen/Baukosten - Seite 327
19Geschlossene oder offene Küche ? 11
20Grundriss, Ideen zur räumlichen Trennung innerhalb der Küche 23

Oben