Grundrissoptimierung Einfamilienhaus ca. 150qm - auf kleinem Grundstück

5,00 Stern(e) 6 Votes
Zuletzt aktualisiert 21.11.2025
Sie befinden sich auf der Seite 15 der Diskussion zum Thema: Grundrissoptimierung Einfamilienhaus ca. 150qm - auf kleinem Grundstück
>> Zum 1. Beitrag <<

S

Shiny86

Den abstellraum würde ich im OG wegnehmen zugunsten eines größeren Bades.

Ansonsten erkenne ich mich im Thread wieder. Ihr wollt zu viel auf zu wenig qm dafür. Irgendwas leidet immer.
Wir haben deswegen das Büro gestrichen und haben im Schlafzimmer einen laptoptisch zukünftig. Ansonsten kann ich auch vom esszimmertisch aus arbeiten. Ein größerer Wohnraum und vernünftige Garderobe waren mir wichtiger.

Google sonst mal nach Grundrissen mit Büro. Mein Mann hatte mir doch noch ganz gute gezeigt. Würde aber nur gehen, wenn man die Küche verkleinert. Kommt dann auf die Küchenform an. Wenn man eine Küchenzeile mit kücheninsel davor plant braucht man ja eine nicht so tiefe Küche.
 
Zuletzt bearbeitet:
E

Elokine

das Büro ist wirklich nicht schön so. du könntest zur Haustür rein links einen Garderobenbereich machen und das Gäste-WC dahinter in die Ecke. Dann ist der Büroeingang nicht so verwinkelt und es entsteht sogar noch eine schöne Nische für einen Aktenschrank.

2D-Grundriss eines Büros mit Gäste-WC, klare Wände und offenes Arbeitsbereichlayout
 
S

Shiny86

In der Theorie gut, aber ich glaub das kommt nicht hin mit den Maßen. Wieviel Meter hat man denn von Haustür bis Treppe?
Treppe weiter nach planoben verschieben geht nicht, da das Wohnzimmer dann wieder zu klein wird.
 
E

Elokine

ja, das Büro kann im EG einfach nur mini werden... egal wo platziert. Macht es doch ins OG, da wäre ausreichend Platz.
 
Yaso2.0

Yaso2.0

Tausch doch Hauswirtschaftsraum mit Büro. Dann ist das Büro nicht verwinkelt und ein Hauswirtschaftsraum ist ja eh nur ein nutzraum und kann mMn verwinkelt sein.
Dann ist das Büro glaube ich zu klein zum möblieren..

Den abstellraum würde ich im OG wegnehmen zugunsten eines größeren Bades.

Ansonsten erkenne ich mich im Thread wieder. Ihr wollt zu viel auf zu wenig qm dafür. Irgendwas leidet immer.
Wir haben deswegen das Büro gestrichen und haben im Schlafzimmer einen laptoptisch zukünftig. Ansonsten kann ich auch vom esszimmertisch aus arbeiten. Ein größerer Wohnraum und vernünftige Garderobe waren mir wichtiger.

Google sonst mal nach Grundrissen mit Büro. Mein Mann hatte mir doch noch ganz gute gezeigt. Würde aber nur gehen, wenn man die Küche verkleinert. Kommt dann auf die Küchenform an. Wenn man eine Küchenzeile mit kücheninsel davor plant braucht man ja eine nicht so tiefe Küche.
Ich habe deinen Thread von Anfang an verfolgt und sehe mich genau dort, wo du auch warst..

Hast du für den Laptoptisch dein Schlafzimmer umgeplant?

Ich wollte gerne das Arbeitszimmer/Arbeitsbereich im EG, da ich während der "Home-Schooling" Zeit auch die Aufgaben mit meiner kleinen gemacht habe und dann zwischendurch immer mal wieder in die Küche gegangen bin. z. B. nach dem Essen sehen, irgendwas fürs Kind, oder mal eben nen Kaffee.. Aber offensichtlich muss ich das Haus entweder größer machen oder wie du schon schreibst, irgendeinen Kompromiss finden.

Aber z. B. fand ich deine gestrige Idee mit dem Tisch in der Nische der Treppe auch nicht schlecht.
Ich hatte ihr das gestern mitgeteilt, dass ich auch sowas machen würde, wenn das Büro im EG nicht passt. Sie schrieb mir, dass ich den heute noch bekomme
 
Yaso2.0

Yaso2.0

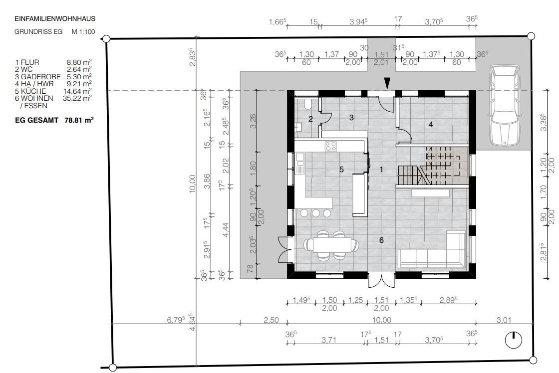
Und da sind sie schon..

Grundriss EG eines Einfamilienhauses: Räume wie Küche, Wohnen/Essen, Bad, Flur, Treppe und Garage.

Finde ich deutlich besser!

Lediglich im OG würde ich das Bad mit der Ankleide tauschen und das Fenster in der Mitte der Kinderzimmer wegmachen, damit das Verhältnis der ZImmgergrößen etwas harmonischer wird..

Grundriss OG eines Einfamilienhauses mit Flur, Ankleide, Eltern, Bad, Kind 1, Kind 2, Büro.
 
Zuletzt aktualisiert 21.11.2025
Im Forum Grundrissplanung / Grundstücksplanung gibt es 2535 Themen mit insgesamt 87978 Beiträgen


Ähnliche Themen zu Grundrissoptimierung Einfamilienhaus ca. 150qm - auf kleinem Grundstück
Nr.ErgebnisBeiträge
1Ankleide/Schlafzimmer Problem - Grundrissdiskussion 25
2REH - Grundrissplanung - Küche zu klein - Seite 430
3Grundriss Einfamilienhaus ohne Keller/Schlafzimmer und Bad im EG - Seite 427
4Erstes Konzept, Grundriss Einfamilienhaus / Meinungen - Seite 222
5Wohnen/Essen/Küche: Wie wohnt ihr oder werdet ihr wohnen? - Seite 852
6Wohin mit der Treppe? Dachausbau Walmdachbungalow - Seite 219
7Probleme bei der aufteilung Küche, Essen , Wohnen - Seite 216
8Grundrissfrage, Treppe, Fenster, Ausrichtung 12
9 2 Vollgeschosse, Durchgang Garage, Hauswirtschaftsraum unter Treppe 25
10Esstisch in einer kleinen Küche - Seite 449
11Einteilung Grundriss Allraum Küche Wohnen Essen - Seite 558
12Grobe Schnitzer im Grundriss? Küche zu klein? - Seite 639
13Stadtvilla mit gerader Treppe, offene moderne Bauweise, 140m² 18
14Grundriss Bungalow 150qm geschlossene Küche, überdachte Terrasse 40
15Standort Küche und Wohnzimmer 55
16Schrank unter der Treppe oder kleiner Abstellraum - Seite 211
17Grundriss-Änderung Einfamilienhaus 150 m² aufgrund von Treppe 36
18Grundriss EG Wohnen / Küche - Trennwand 19
19Treppe Grundriss Planung, Auftritt und Unterzug - Seite 221
20Treppe im Wohnzimmer als Hype - Pro & Contra? - Seite 426

Oben