Grundrissoptimierung Einfamilienhaus ca. 150qm - auf kleinem Grundstück

5,00 Stern(e) 6 Votes
Zuletzt aktualisiert 22.12.2025
Sie befinden sich auf der Seite 10 der Diskussion zum Thema: Grundrissoptimierung Einfamilienhaus ca. 150qm - auf kleinem Grundstück
>> Zum 1. Beitrag <<

A

Alessandro

ja is sicher aufwendiger.
Hui, da freut sich der Statiker. Da steht nicht viel übereinander, oder?

Mag präsente Treppen auch. Finde den Weg in die Küche etwas schwierig. Entweder durch Technikraum oder durch WZ.

Dann würde ich eher vom Technikraum einen kleinen Flur abzwacken.
ja, ist statisch sicher nicht optimal. Müsste man sich anschaun lassen.
Ich dachte dass links die Garage anschließt und man hier die Einkäufe schnell in die Küche tragen kann. Ebenso durch den Flur.
Die ELWS gibts leider nicht :p
 
Y

ypg

10 Seiten gelesen, 10 Zitate gemerkt für Antworten
*) meine Schachtelsätze geben nur ein symbolisches Bild der heillosen Vestrickungen
... Deiner Seele? Oder Deiner Psyche?
damit im WZ Ruhe ist, wenn ich da die ganzen Maschinen laufen habe
Puuh, warum muss denn im WZ Ruhe herrschen, wenn das Tageswerk am Laufen ist? Die Zeiten von Herrn Pascha sollte es schon lange nicht mehr geben.
möchte meine Einkäufe z. B. gerne direkt über die Diele in die Küche transportieren. Nah am Eingang.
Dann mach da ne Tür hin.
Im EG ist mir die Küche am wichtigsten.
Auch, dass sie in unmittelbarer Nähe zur Terrasse steht.
Wozu nahe Terrasse, wenn dort keine Tür ist?
Ich werde dazu mal in ein Küchenstudio gehen müssen und die verschiedenen Kücheninseln bzw. Varianten erstmal ansehen.
Du solltest Dir verschiedene Musterhäuser anschauen - eine Stadtvilla bzw. ein Zweigeschosser ist kein Hexenwerk.
Meine Freundin hat eine Kochinsel, sie sagt, wenn sie etwas anbrät, spritz es über die Fläche auf den Boden.
Es kommt eben doch auf Cm an! Bei 90 cm passiert da nichts nachteiliges.
Waschen und Trocknen nicht im Büro, weil wir nie feste Zeiten zum waschen haben, wir machen das immer dann, wenns anfällt.
Was hat denn das eine mit dem anderen zu tun?
Was haben feste Zeiten mit Büronutzung zu tun?
Aber ok, waschen im Büro halte ich auch als Schnapsidee, allerdings kommt mir von Dir viel Widerspruch, ohne berechtigten Einwand.
Deshalb ist es auch eher unpraktisch, dass Kochfeld auf die Insel zu setzen. Zudem benötigst du dann auch einer teurere Dunstabzugslösung.
Nö. Warum teuer? Muss nicht sein.
Praktischer ist es, die Spüle auf der Insel zu haben, die benutzt man viel öfter.
Spülen gehört für viele eher zu den Tätigkeiten, die man ungern präsentiert. Und eine Insel präsentiert sich in den Wohn- und Essraum. Ich für meine Dinge finde eine zentrale Spüle nicht zu den Wünschenswertesten... Vor allem, wenn es zu den Spülen von Essensresten geht
Du meinst für eine Kochinsel sind 80 cm zu wenig?
So ist es.

Ich finde die meisten Räume recht groß.Und so wirklich wurde auch nicht geplant, sondern so, wie es sich ergibt bzw der Laie vorgezeichnet hat.
Ich hoffe, dass ihr jetzt bei der Bauzeichnerin nicht den gleichen Fehler macht und der Fachfrau vorarbeitet.
Deinen Antworten zu urteilen, steckt die Unzufriedenheit ganz woanders. Vielleicht seid Ihr noch nicht soweit mit einem eigenen Haus? Vielleicht steckt ihr mental noch in einer Art Findungsphase?
 
Yaso2.0

Yaso2.0

Puuh, warum muss denn im WZ Ruhe herrschen, wenn das Tageswerk am Laufen ist? Die Zeiten von Herrn Pascha sollte es schon lange nicht mehr geben.
Hä, was bitte hat das mit Pascha zu tun? Es gibt Tage, da backe ich um 20 Uhr etwas für den nächsten Tag und meine kleine schaut nen Film mit Papa, da muss ja der Fernseher nicht ewig lauter gestellt werden, nur weil die Mutti ihrem Backwahn verfallen i

Dann mach da ne Tür hin.
Hab ich vor.

Wozu nahe Terrasse, wenn dort keine Tür ist?
Die Tür kommt direkt an den Essbereich, der ist ja dann nur ein paar Meter von der Küche entfernt.

Wenn mir dadurch nicht all zu viel Stellplatz verloren geht, kommt die Tür in die Küche.
Was hat denn das eine mit dem anderen zu tun?
Weil ich auch morgens um 8 die Waschmaschine anschmeiße und 5 min später am arbeiten bin z. B.

Es gibt für alles einen Grund, sonst würde man es ja nicht so wollen.. Ich überdenke gerne hier eingebrachte Ideen, aber Büro und Waschen in einem Raum gehört eben nicht dazu
 
Yaso2.0

Yaso2.0

Ich finde die meisten Räume recht groß.Und so wirklich wurde auch nicht geplant, sondern so, wie es sich ergibt bzw der Laie vorgezeichnet hat.
Ich hoffe, dass ihr jetzt bei der Bauzeichnerin nicht den gleichen Fehler macht und der Fachfrau vorarbeitet.
Deinen Antworten zu urteilen, steckt die Unzufriedenheit ganz woanders. Vielleicht seid Ihr noch nicht soweit mit einem eigenen Haus? Vielleicht steckt ihr mental noch in einer Art Findungsphase?
Die Zeichnung kommt ja vom GU und da hat der Zeichner wahrscheinlich wieder einen fertigen Grundriss aus dem Portfolio genommen und leicht abgeändert.

Und auch @11ant hatte recht, erst gar nicht über einen Grundriss zu diskutieren, bei dem doch wieder Dinge fehlen, die da sein sollten.

Ein Unzufriedenheit haben wir nicht, lediglich totale Unsicherheit

ich habe mich heute mit einer Architektin getroffen, die mir empfohlen wurde von einer sehr guten Freundin (nicht die vorher genannte Architektin/Zeichnerin). Wir haben über unsere Vorstellungen und Raumwünsche gesprochen und ich habe das Gefühl, sie hat uns sofort verstanden. Wie du schon schriebst, haben wir auch nicht vorgearbeitet, sondern nur geredet, nichts gezeigt..

Ich hoffe das beste..
 
Yaso2.0

Yaso2.0

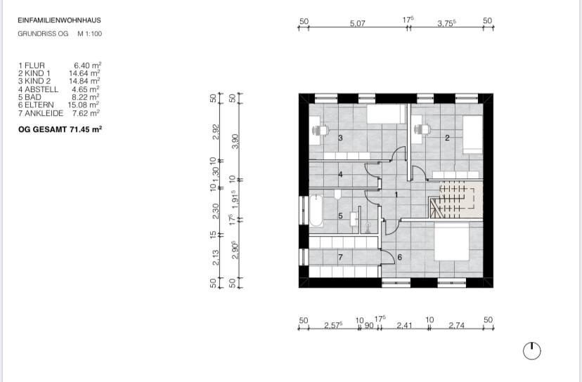
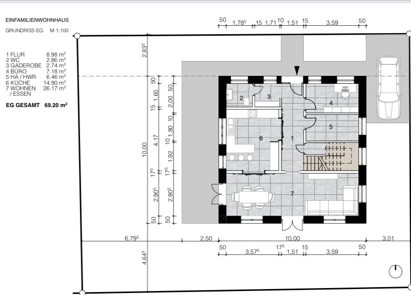
So, es sind neue Zeichnungen da.

Die Vorgabe war, max. 150qm, aktuell geplant hat die Architektin ca. 140qm.

Das EG gefällt mir gut, lediglich ist das WZ ist gefühlt zu schmal..

Im OG weiß ich nicht, ob die Raumanordnung optimal ist und die Fenster wirken auch nicht ganz richtig?!

Das sind die ersten Zeichnungen + Außenansichten, über das Dach etc. haben wir noch nicht gesprochen.

Grundriss EG eines Einfamilienhauses: Flur, Küche, Wohnen/Essen, Büro, WC, Treppe, Parkplatz


OG-Grundriss eines Einfamilienhauses: Flur, Bad, Elternzimmer, Kinderzimmer, Ankleide, Abstellraum


Einfamilienhaus mit Ziegelsteinfassade; Nord-, Süd-, West- und Ostansicht mit Fenstern und Türen
 
Zuletzt aktualisiert 22.12.2025
Im Forum Grundrissplanung / Grundstücksplanung gibt es 2554 Themen mit insgesamt 88553 Beiträgen


Ähnliche Themen zu Grundrissoptimierung Einfamilienhaus ca. 150qm - auf kleinem Grundstück
Nr.ErgebnisBeiträge
1Grundriss Halboffene Küche mit großem Essbereich - Detailfragen - Seite 212
2Wie findet ihr diesen Grundriss? - Seite 211
3Grundriss die IV! :-) 18
4Meinungen zum Grundriss EG 10
5Eure Meinung zum Grundriss für das EG 28
6Hilfe beim Grundriss des Hauses, Verbesserungsvorschläge? 28
7Eure Meinungen zu unserem Grundriss und Angebot - Seite 322
8Grundriss Einfamilienhaus. Bitte um Feedback bzw Ideen :-) - Seite 325
9Grundriss Stadtvilla eines Massivhausanbieters - Bitte Feedback 28
10Meinungen f. Grundriss Einfamilienhaus ca. 160qm - Seite 429
11Feedback zu Grundriss Einfamilienhaus erwünscht 18
12Anregung - Kritik Grundriss Einfamilienhaus 320qm 29
13Wie findet ihr unseren Grundriss??? 21
14Gestaltung Grundriss. Was sind eure Meinungen / Vorschläge? 15
15Meinungen zu Grundriss Einfamilienhaus, ca. 160qm, Friesenhaus - Seite 225
16Grundriss mit Stift auf Papier - Kritik erwünscht - Seite 340
17Unser Grundriss-Eure Meinung 32
18Grundriss - Eure Meinungen, Ideen und Vorschläge 31
19Grundriss Stadtvilla 11.00x11.00m - Seite 219
20Unser Grundriss steht zur Diskussion - Seite 539

Oben