Grundrissoptimierung Einfamilienhaus ca. 150qm - auf kleinem Grundstück

5,00 Stern(e) 6 Votes
Zuletzt aktualisiert 19.11.2025
Sie befinden sich auf der Seite 29 der Diskussion zum Thema: Grundrissoptimierung Einfamilienhaus ca. 150qm - auf kleinem Grundstück
>> Zum 1. Beitrag <<

Yaso2.0

Yaso2.0

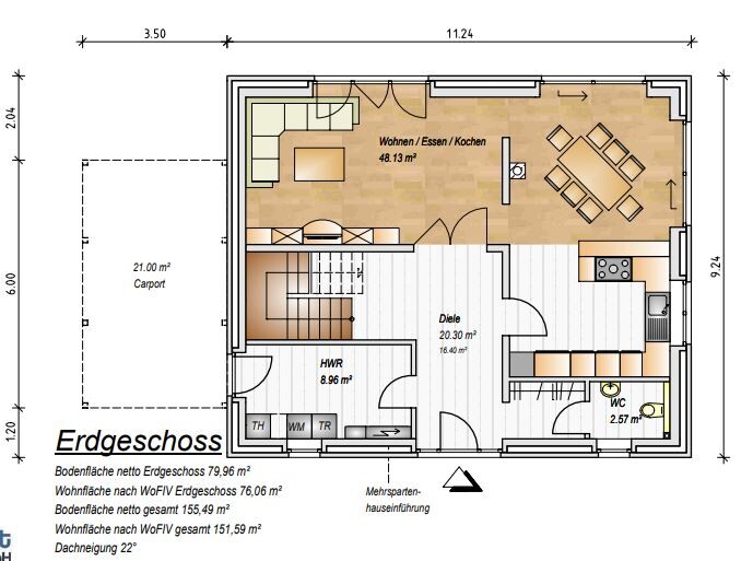
Die erste Zeichnung die ich zur Diskussion stellte war ja vom GU, auch dort hatte ich im Gespräch erwähnt, dass es kein Quadrat sein muss. Gestern schickte er mir unaufgefordert noch einen zusätzlichen Grundriss zu. Nett von denen..

Grundriss Erdgeschoss: Wohnen/Essen/Kochen, Diele, HWR, WC, Treppen, Carport.


Grundriss des Obergeschosses: Schlafzimmer/Ankleide, Gästezimmer, Kind, Galerie und Bad.
 
A

Alessandro

würde bei mir sofort im Papierkorb landen
Wenn du Kosten sparen willst, dann verzichte auf die Tür vom Carport in den Hauswirtschaftsraum.
Dein Haus ist nicht groß, da bist du schnell vom Auto im Haus.
Außerdem würde ich die Mehrsparteneinführung nicht an der Hausfront machen, sondern auf Carportseite.
Egal ob du einen Hausanschlusskasten oder eine Säule machst. Es ist im Front-/Eingangsbereich einfach hässlich.
 
Y

ypg

Ich weiß leider nicht, welchen fehlenden Garderobenschrank du meinst? Eingezeichnet ist dort ja einer.
Grundsätzlich solltest Du für den Garderobenschrank mind. 60cm in der Tiefe einplanen. Die Insel ist ein Witz: 1,20, wenn man spitz schätzt.
DAS habe ich dazu geschrieben. Ist schon etwas her
oder mein Gegenüber hört nicht richtig zu.
oder...
Die Planerin ist noch sehr jung und hat, wie bereits erwähnt, bei der freistehenden Einfamilienhaus Planung nicht viel Erfahrung.
Ich dachte es wäre doch toll, eine junge engagierte Frau zu unterstützen, damit sich ihr Erfahrungsbereich so auch erweitert. Schon nach den ersten Grundrisszeichnungen sagte ich ihr, dass das Haus kein Quadrat sein muss und sie auch ein rechteck planen kann. Und trotzdem kamen alle Entwürfe immer im Format 10 x 10..
Das hast Du schon erwähnt. Aber einen Dienstleister ständig in Schutz zu nehmen für etwas, was knapp 300000€ kostet, ist der falsche Weg. Wenn man sich den ersten Entwurf zum letzten anschaut, ist da eigentlich kaum etwas passiert. Bis auf die Grundfläche um wenige Cm zu vergrößern oder beim immer gleichen Raster die nicht tragenden Wände mal etwas zu verschieben, das bekommt man mit Bleistift auf Kopien auch noch selbst hin.
Letztendlich musst DU wissen, ob es das ist, was Ihr bauen wollt. Mir ist es als Dienstleistung absolut nicht genügend.
 
Yaso2.0

Yaso2.0

DAS habe ich dazu geschrieben. Ist schon etwas her

oder...

Das hast Du schon erwähnt. Aber einen Dienstleister ständig in Schutz zu nehmen für etwas, was knapp 300000€ kostet, ist der falsche Weg. Wenn man sich den ersten Entwurf zum letzten anschaut, ist da eigentlich kaum etwas passiert. Bis auf die Grundfläche um wenige Cm zu vergrößern oder beim immer gleichen Raster die nicht tragenden Wände mal etwas zu verschieben, das bekommt man mit Bleistift auf Kopien auch noch selbst hin.
Letztendlich musst DU wissen, ob es das ist, was Ihr bauen wollt. Mir ist es als Dienstleistung absolut nicht genügend.
Ich habe deinen Beitrag dazu nicht absichtlich übersehen

Ich möchte sie ja gar nicht in Schutz nehmen, versuche nur etwas die Hintergründe zu erläutern.
 
Yaso2.0

Yaso2.0

Ich habe jetzt mal versucht ein Rechteck Haus zu zeichnen, ich weiß nicht mal mehr welches, aber irgendein Fertighaus diente als Grundlage. hab dann bissl die Zimmer anders gemacht.

Für unsere Verhältnisse mal etwas anderes

Außenmaße sollten dann 10,60 x 9,40 sein.

An dem gerrennten Wohn/Essbereich hab ich gefallen gefunden

Handgezeichnete Haus-Grundriss-Skizze mit Wohnzimmer, Essbereich, Küche, Kinderzimmer, Bad, Bett.
 
Zuletzt aktualisiert 19.11.2025
Im Forum Grundrissplanung / Grundstücksplanung gibt es 2536 Themen mit insgesamt 87978 Beiträgen
Oben