Grundriss verbessern Einfamilienhaus 1 1/2 geschossig

4,00 Stern(e) 4 Votes
B

bindig


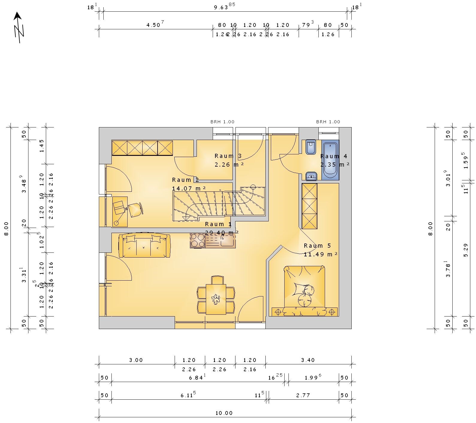
2D-Grundriss eines Hauses: Wohnzimmer, Küche, Essbereich, Bad und Treppe

2D-Grundrissplan eines Hauses mit drei Räumen, Treppe und Küchenbereich

Technischer Grundriss mit zentraler Treppe, Außenmauer und Maßangaben

Lageplan eines Wohngebiets mit Grundstücksgrenzen, Gebäudeskizzen und Straßenverlauf.


Danke für alle Vorschläge!

------------------

Bebauungsplan/Einschränkungen

Baulücke in älterem Baugebiet, kein Bebauungsplan, aber §34
Grundstück ist an drei Seiten von Straßen umgeben
Größe des Grundstücks = 610 m²
Hang = ca. 0,50 m Südhang
Grundflächenzahl = nicht explizit festgelegt
Geschossflächenzahl = nicht explizit festgelegt
Baufenster, Baulinie und -grenze = nicht explizit festgelegt (Landesbauordnung: 2,50 Abstand)
Randbebauung = im Nordosten ein Schuppen des Nachbarn
Anzahl Stellplatz = 4 (Landesbauordnung fordert: 2 pro Wohneinheit)
Geschossigkeit = 1 1/2 (vermutlich gefordert wegen §34)
Dachform = Satteldach (vermutlich gefordert wegen §34)
Stilrichtung = ähnlich zur Umgebung (§34)
Ausrichtung = unklar, Bestand ist vielfältig
Maximale Höhen/Begrenzungen = unklar, Bestand scheint meist ca.7,50m Firsthöhe zu haben
weitere Vorgaben = keine bekannt
die nähere Umgebung ist ohne Bäume

Anforderungen der Bauherren

Stilrichtung, Dachform, Gebäudetyp = egal, hauptsache erlaubt
Keller, Geschosse = kein Keller (wegen Budget), gewünschte Geschosse wären 2, erlaubt scheinen nur 1 1/2
Anzahl der Personen, Alter = vorläufig WE1 (EG): 2 Erw. (Mieter oder Ferienmieter) + WE2 (DG): 2 Erw. 1 K. (2J)
in ca. 10 Jahren nach Umbau zum Einfamilienhaus: 2 Erw.
Raumbedarf im EG, OG = gering, aktueller Raumbedarf nicht dauerhaft, WE2 (DG) gewünscht ca. 10 m² Abstellfläche in Keller/Dachboden
Büro: Familiennutzung oder Homeoffice? = kein Büroraum aber Verwaltungs- /Reinigungs- /Gemeinschafts-Raum
Schlafgäste pro Jahr = keine
offene oder geschlossene Architektur = offen
konservativ oder moderne Bauweise = egal, hauptsache erlaubt
offene Küche, Kochinsel = offene Küche ja, Kochinsel nur falls es der Platz erlaubt (also nein)
Anzahl Essplätze = vorläufig WE1 (EG): 4 + WE2 (DG): 4
Kamin = nein
Musik/Stereowand = nein
Balkon, Dachterrasse = nein (wegen Budget)
Garage, Carport = nein (wegen Budget)
Nutzgarten, Treibhaus = nein
weitere Wünsche/Besonderheiten/Tagesablauf, gern auch Begründungen, warum dieses oder das nicht sein soll
= Einfamilienhaus geteilt in zwei kleine Wohneinheiten die einige Jahre vermietet werden sollen, eine davon an Verwandtschaft,
- um einen sonst nötigen separaten Hauswirtschaftsraum im EG einzusparen soll Haustechnik /Heizung /Kontrollierte-Wohnraumlüftung verteilt in Gemeinschafts-Raum und im Spitzboden untergebracht werden,
- die eigentlich "normal" scheinende Dachgaube im Süden entfällt hauptsächlich aus Budget-Gründen,
- das Dach ist so steil (45°) um möglichst viel Platz zu gewinnen,
- die Ausrichtung des Hauses soll viel freie Sicht ermöglichen, außerdem sollen Solarmodule möglich sein,
- der Standort ist sehr sonnig deshalb sind allzu viele Südfenster gar nicht gewünscht

Hausentwurf

Von wem stammt die Planung = Do-it-Yourself
Was gefällt besonders? Warum? = Haus lässt sich einfach in Einfamilienhaus umbauen
Was gefällt nicht? Warum? = Raumausnutzung im EG nicht optimal, keine Möglichkeit später sinnvoll einen Balkon fürs DG nachzurüsten
Preisschätzung lt Architekt/Planer = unbekannt ("das kann man für 400000 richtig schön machen")
Persönliches Preislimit fürs Haus, inkl Ausstattung = 200000 (zweihunderttausend) ohne Küchen, ohne Möbel
favorisierte Heiztechnik = Fernwärme (wird von der Gemeinde so gefordert, ist aber OK)

Wenn Ihr verzichten müsst, auf welche Details/Ausbauten
-könnt Ihr verzichten = alles "was man heute so hat aber vor 20 Jahren noch nicht", Küchen, Glaseinsätze in den Haustüren, separate Ankleidebereiche, Rollläden im Norden/Westen/Osten, Dachflächenfenster
-ungern verzichten: Fußbodenheizung (weil sie sich nur schwer nachrüsten lässt)
-könnt Ihr nicht verzichten = Verwaltungs-/Reinigungs-/Gemeinschafts-Raum, etwas Abstellfläche irgendwo, Aufteilung in zwei vermietete Wohneinheiten

Warum ist der Entwurf so geworden, wie er jetzt ist? = Ein Gemisch aus vielen Beispielen aus div. Magazinen/Internet, Vereinfachung/Verkleinerung in Richtung des sehr geringen Budgets


-------


die hellblau durchgefärbten Rechtecke auf dem Lageplan sollen übrigens PKW-Stellplätze sein
 
Zuletzt bearbeitet von einem Moderator:
Y

ypg

hm, wie stellst Du Dir das mit der Treppe vor? Die schwebt offen in dem Gemeinschaftsraum, soll das sein?
Für eine Ferienwohnung mag man ja vieles tolerieren, aber für eine 3-köpfige Familie finde ich das OG nicht lebenswert.
Ich sehe überhaupt keine Möglichkeit, einen Haushalt zu führen. Waschmaschine? Platz für Feger und co? Und das müsste auch für die Ferienwohnung vorgehalten werden.

Warum lässt Du nicht ein 08/15-Haus bauen, wo man direkt am Eingang die Treppe zur zweiten Wohneinheit nach oben Abteilen kann und verschließt dann ein Zimmer, welches dann von außen begehbar wäre.


Gruß, Yvonne
 
11ant

11ant

Von wem stammt die Planung = Do-it-Yourself
Das ist angesichts der Originalität wohl auch kaum zu übersehen.

Was gefällt besonders? Warum? = Haus lässt sich einfach in Einfamilienhaus umbauen
Könntest Du das mal simulieren, das würde mich sehr interessieren.

Ich hatte mit Fünfzehn auch eine kurze Phase solchen düsentriebischen Tüftelns an Minimalmaßgrundrissen, auch unter Zuhilfenahme komplexer Verschachtelungen.

Das war sehr interessant - aber wohl auch gut, daß es dann nicht gebaut wurde.

favorisierte Heiztechnik = Fernwärme (wird von der Gemeinde so gefordert, ist aber OK)
Kennt die Energieeinsparverordnung 2016 sowas überhaupt noch ?
 
E

Evolith

Mal was anderes: Du schreibst von geringem Budget. Was für ein Budget steht euch denn zur Verfügung? Nur so können wir euch in Sachen Dimensionen ordentlich helfen.

Ansonsten: 1 1/2 Geschosser --> Dachschrägen? Da werdet ihr beim Duschen nicht viel Spaß haben bei dem kleinen Bad. Und immer aus der Badewanne steigen magst auf dauer auch nicht. Für ein kleineres Kind übrigens auch nicht ganz ungefährlich.
Dann fehlen in den Schlafzimmern die Fenster. Denke aber die hast du angedacht, nur nicht eingezeichnet.
Dann fehlt auch noch ein Technikraum. Ihr habt keinen Keller, also plant mal mindestens 8 qm für die Fernwärmekompaktstation und den sonstigen Krempel ein.

Warum baut ihr euch nicht einen 100qm Bungalow? Da könnt ihr viel besser für euch wohnen und die Räume schieben. In einigen Jahren lässt sich da recht entspannt anbauen.
 
Zuletzt aktualisiert 11.12.2025
Im Forum Grundrissplanung / Grundstücksplanung gibt es 2550 Themen mit insgesamt 88436 Beiträgen


Ähnliche Themen zu Grundriss verbessern Einfamilienhaus 1 1/2 geschossig
Nr.ErgebnisBeiträge
1Einfamilienhaus mit Keller in Hanglage - Meinungen (Dachform, allgemein) 26
2Grober Bauplanentwurf Einfamilienhaus inkl. Doppelgarage und Einl 26
3Planung Einfamilienhaus - ca. 170m2 ohne Keller 13
4Grundriss-Entwurf: Einfamilienhaus; mit Keller; 800qm Grundstück 10
5Grundrisse für Einfamilienhaus, ca. 140m², ohne Keller 78
6Klassisches Einfamilienhaus Satteldach ~130qm 18
7Meinungen zur Grundrissplanung (Iso Ansichten, Grundrisse, Bebauungsplan) 43
8Neubau Einfamilienhaus ca. 150 m2 mit Kellergarage 18
9Bewertung Grundriss ca. 145 qm Einfamilienhaus Keller/EG/OG 111
10Grundriss Einfamilienhaus 175 m2 - Verbesserungsvorschläge? 25
11Grundriss Einfamilienhaus in Hanglage 57
12Budget für Bau eines Einfamilienhaus mit WU-Beton Keller 27
13Baukosten in BW für Einfamilienhaus mit 200m2 Keller und Doppelgarage 38
14Hausplan von Architekt 2 Geschosse mit Keller 18
15Einfamilienhaus mit >180qm / Keller / Garage 68
16Grundrissentwurf Einfamilienhaus mit Keller und Doppelgarage auf 540qm 26
17Grundriss Einfamilienhaus ca. 200qm Doppelgarage Keller - Seite 432
18Erste Grundrissplanung auf Karopapier: Hang, Keller + 2 Geschosse. 80
19Bungalow mit Keller für Einfamilienhaus mit 60m2 Büro sinnvoll? - Seite 423
20Grundrissplanung Einfamilienhaus mit Keller in Hanglage 44

Oben