Planung Einfamilienhaus - ca. 170m2 ohne Keller

4,60 Stern(e) 5 Votes
V

VICOMA

Hallo liebes Hausbau Forum,

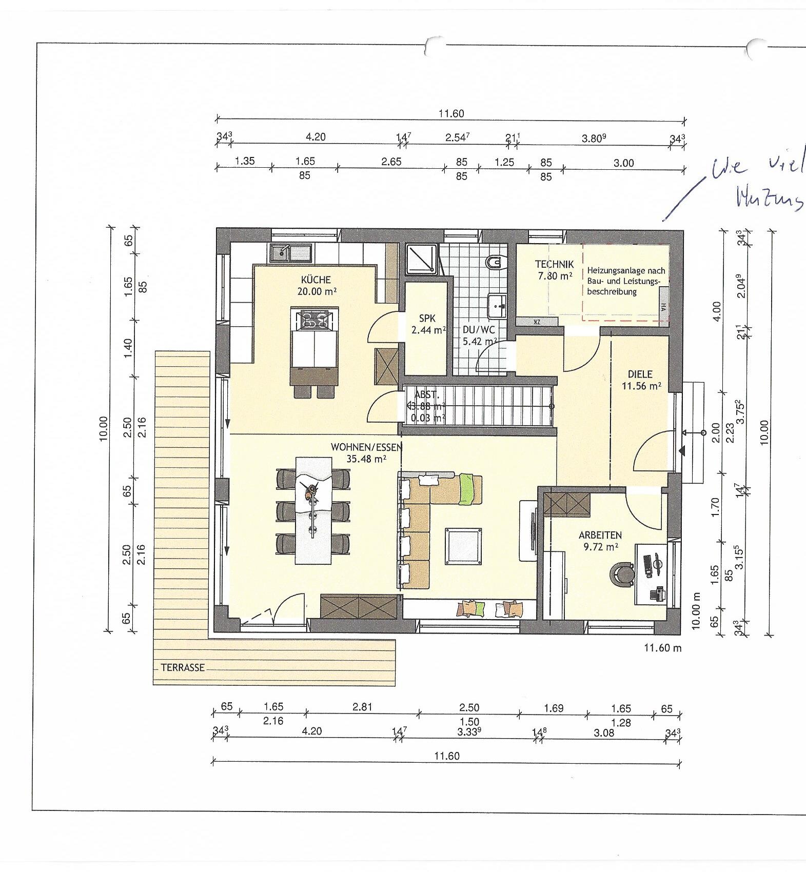
wir planen ein Einfamilienhaus auf einem Teil des elterlichen Grundstücks zu bauen. Das Grundstück muss noch abgetrennt werden und anschließend erschlossen. Im Moment dreht sich die Frage um den Grundriss. Die Küche ist Richtung Norden ausgerichtet. Das große Wohnzimmerfenster nach Süden. Der Eingangsbereich im Osten.

Schaut auch doch den Grundriss mal an und wir würden uns über ehrliches Feedback freuen! Danke euch im Voraus!

Bebauungsplan/Einschränkungen
Größe des Grundstücks:450qm (30x15)
Hang: nein
Baufenster, Baulinie und -grenze: 2,5 Meter an der langen Seite, 6 Meter an der schmalen Westseite, an der Ostseite Grenzbebauung möglich (elterliches Grundstück grenzt daran)
Randbebauung: nein
Anzahl Stellplatz:
Geschossigkeit:
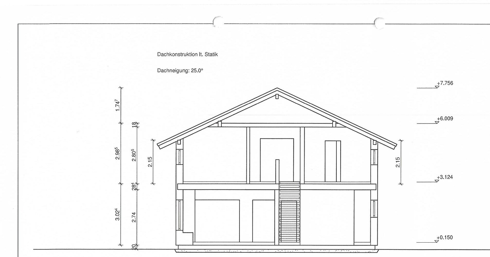
Dachform: Satteldach

Anforderungen der Bauherren
Keller, Geschosse: Keller nicht vorgesehen, 2 Geschosse geplant
Anzahl der Personen, Alter: 2 Personen á und 35 Jahre (Kinder geplant)
Büro: Homeoffice wird manchmal benötigt
Schlafgäste pro Jahr: 10
offene oder geschlossene Architektur: offen
konservativ oder moderne Bauweise: modern
offene Küche, Kochinsel
Anzahl Essplätze: 8-10
Kamin: nein
Garage, Carport: Kombination aus Garage und Carport soll realisiert werden

Hausentwurf
Von wem stammt die Planung:
-Architekt eine Fertighausanbieters mit eigenen Vorgaben aus verschiedenen Musterhäusern
Was gefällt besonders? Warum?: Offener Wohn/Essbereich und großzügige Diele
Was gefällt nicht? Warum?: Dadurch dass kein Keller vorhanden ist, muss man entsprechend Stauraum finden, dadurch ist das Hauswirtschaftsraum im OG entstanden, was Vor-und Nachteile bringt
Preisschätzung lt Architekt/Planer: 382.000 €
favorisierte Heiztechnik: momentan ist eine Erdwärmeheizung eingeplant, aber Wärmepumpe wäre auch ok. Beim Thema Lüftungsanlage sind wir uns nicht sicher

Wenn Ihr verzichten müsst, auf welche Details/Ausbauten
-könnt Ihr verzichten: evtl. ie Sitzgelegenheiten im OG im Flur bzw. den Ra cleverer nutzen
-könnt Ihr nicht verzichten: Großzügigkeit im EG und große Fenster im EG

Warum ist der Entwurf so geworden, wie er jetzt ist? ZB
Der Entwurf ist ein Gemisch aus vielen Musterhäusern, eigenen Ideen und Themen, des Architekten

Was ist die wichtigste/grundlegende Frage zum Grundriss in 130 Zeichen zusammengefasst?
Wir fragen uns, ob dieser Grundriss logistisch für den Alltag passt. Haben noch nie in einem Einfamilienhaus gewohnt. Außerdem stellt sich die Frage, ob die Räume weder zu groß, noch zu klein geplant sind. Gibt es genug Licht?

Grundrissplan eines Hauses mit Küche, Wohnen/Essen, Arbeiten, Diele und Technik.


Grundriss eines oberen Stockwerks mit Schlafzimmer, Bad, Flur und Kinderzimmer.


Architekturzeichnung eines Hauses mit Satteldach, Dachkonstruktion und Maßangaben.
 
kaho674

kaho674

Ich würde sagen, das ist baubar und hat auf den ersten Blick keine groben Schnitzer.

Die Frage ist, ob es Euch so gefällt. Bei der gängigen Aufteilung würde man nach der Diele zunächst die Küche erwarten. (WZ und Küche tauschen die Plätze) Das hätte den Vorteil, dass diese im Licht liegt und man beim Gemüseschnippeln nicht ständig die Scheinwerfer anmachen muss. Außerdem rennt man mit den Einkäufen nicht erst durchs ganze Haus. Der Kuschelbereich ist im Nord-/ Westen viel besser aufgehoben und ist auch viel gemütlicher, wenn man ihn von der Haustür nicht gleich einsehen kann. Die Speisekammer unter der Treppe müsste dann allerdings für das nötigste reichen. Dusche und Technikraum müssten neu geplant werden.

Bei dieser Hausgröße erwartet man definitiv größere Kinderzimmers. Der Hauswirtschaftsraum flöge bei mir oben raus. Waschmaschine und Co müssten mit ins EG. (Dort ist ja die Speisekammer weggefallen).
Ich persönlich mag 2 Türen im Bad überhaupt nicht. Aber das muss jeder selbst wissen.
 
11ant

11ant

an der Ostseite Grenzbebauung möglich (elterliches Grundstück grenzt daran)
Das halte ich für Irrglauben: Abstandsflächen gelten auch innerhalb der Familie. Auf Abstandsflächen kann man nicht ersatzlos verzichten, man muß sie "übernehmen" (Euer Grenzabstand käme dann auf der Seite der Eltern dazu).

dadurch ist das Hauswirtschaftsraum im OG entstanden, was Vor-und Nachteile bringt
Der Hauswirtschaftsraum im Schwerpunkt des Wäscheanfalls macht eigentlich Sinn - aber wenn Ihr das so nicht wolltet, sollte es noch´mal anders geplant werden.

Sitzgelegenheiten im OG im Flur
Das ist m.E. kaschierte Flurflächenverschwendung.

Außerdem stellt sich die Frage, ob die Räume weder zu groß, noch zu klein geplant sind.
Bis auf das Arbeitszimmerchen nicht gigantisch zu fett, aber doch großzügig. Wirklich schmerzhaft wäre es wohl nicht, per Saldo zwanzig Quadratmeter zu kürzen (dreißig weniger in der Wohnfläche, zehn mehr für Abstellfläche).

Gibt es genug Licht?
Gibt es einen Nordpfeil ?
 
M

Mottenhausen

Südfenster = Lichteinfall? ...in vielen Fällen wird jeder Sonnenstrahl penibel verdunkelt um Überhitzung bedingt durch hohen Wärmeschutz und träge Fußbodenheizung zu vermeiden.

Nahezu alle Häuser werden nach-wie-vor in "Südausrichtung" gebaut um dann automatisierte Beschattung im 5-stelligen €-Bereich zu installieren, die tagsüber jegliche Aussicht zuverlässig behindert.
 
T

tumaa

Südfenster = Lichteinfall? ...in vielen Fällen wird jeder Sonnenstrahl penibel verdunkelt um Überhitzung bedingt durch hohen Wärmeschutz und träge Fußbodenheizung zu vermeiden.

Nahezu alle Häuser werden nach-wie-vor in "Südausrichtung" gebaut um dann automatisierte Beschattung im 5-stelligen €-Bereich zu installieren, die tagsüber jegliche Aussicht zuverlässig behindert.
heisst also unsinn ? wie sollte es man am besten dann machen ?
 
kaho674

kaho674

Südfenster = Lichteinfall? ...in vielen Fällen wird jeder Sonnenstrahl penibel verdunkelt um Überhitzung bedingt durch hohen Wärmeschutz und träge Fußbodenheizung zu vermeiden.

Nahezu alle Häuser werden nach-wie-vor in "Südausrichtung" gebaut um dann automatisierte Beschattung im 5-stelligen €-Bereich zu installieren, die tagsüber jegliche Aussicht zuverlässig behindert.
Selten größeren Quark gelesen.
 
Zuletzt aktualisiert 06.12.2025
Im Forum Grundrissplanung / Grundstücksplanung gibt es 2547 Themen mit insgesamt 88287 Beiträgen


Ähnliche Themen zu Planung Einfamilienhaus - ca. 170m2 ohne Keller
Nr.ErgebnisBeiträge
1Hausplan von Architekt 2 Geschosse mit Keller 18
2Grundriss-Entwurf: Einfamilienhaus; mit Keller; 800qm Grundstück 10
3Bebauung Grundstück - Keller ja oder nein? 75
4Grundriss & Positionierung Einfamilienhaus ca. 150qm 2 Vollgeschosse Satteldach 34
5Erster Grundriss Einfamilienhaus - Eure Ideen auch zum Grundstück - Seite 533
6Süd Hang Grundstück 700qm Einfamilienhaus ca. 150qm, Ideen Input? 41
7Einfamilienhaus mit >180qm / Keller / Garage 68
8Haus, Garage / Carport auf dem Grundstück platzieren - Seite 493
9Grundriss-Entwurf für Haus am Hang in zweiter Reihe 20
10Grundriss Doppelhaushälfte mit Gästezimmer 53
11Grundriss Einfamilienhaus ca. 200qm Doppelgarage Keller - Seite 432
12Bauen ohne Keller - Carport, Garage? - Seite 318
13Grundriss Stadtvilla 180m², Keller, 3 Kinder - Eure Meinungen dazu? - Seite 751
14Erste Grundrissplanung auf Karopapier: Hang, Keller + 2 Geschosse. 80
15Einfamilienhaus,Zwei Varianten Grundriss vom Architekt 39
16Grundriss Einfamilienhaus ca. 190qm mit Keller auf Millimeterpapier 78
17Grundriss Einfamilienhaus ohne Keller, 3 Kinderzimmer und Büro 18
18Grundriss EFH165 qm erster Entwurf - Architekt unzufrieden - Seite 374
19Grundriss-Entwurf: Einfamilienhaus mit Keller; 560qm Grundstück - Seite 865
20Unser Grundriss-Entwurf, eure Meinungen 20

Oben