Grundriss Haus mit Einliegerwohnung - Verbesserungsvorschläge?

4,80 Stern(e) 8 Votes
Zuletzt aktualisiert 04.10.2025
Sie befinden sich auf der Seite 9 der Diskussion zum Thema: Grundriss Haus mit Einliegerwohnung - Verbesserungsvorschläge?
>> Zum 1. Beitrag <<

K a t j a

K a t j a

??? - gemeint waren die Eltern von Claudia-Maren.
Hä?
Es geht doch darum, dass 3 Kinder im Grundschulalter sicher in der Garderobe ein Chaos verursachen würden, dem Oma und Opa nervlich nicht gewachsen wären. Aber mit 17 und 13 Jahren schaffen es die beiden größeren Kiddis bestimmt schon, Ihre Jacke ordentlich aufzuhängen und den Ranzen in den Schrank zu werfen.
 
Y

ypg

Das es hierbei um die eigene Familie handelt, stört der gemeinsame Flur den Eltern nicht. Es ist halt nicht ideal, aber wir müssen hier kompromissbereit sein.
aha, den Eltern stört es nicht, aber Euch… ihr würdet aber den Kompromiss eingehen. Aber eigentlich nicht…?!
Dafür müsste wohl 1 oder 2 Kinderz. ins DG
Nein. Das Haus bleibt auch annähernd gleich groß, weil sich der Raumbedarf nicht ändert.
Der Student hat vor nachdem Studium erstmal im Ort zu bleiben (hat auch einen Arbeitsplatz in Sicht).
Es ist aber mühselig darüber zu spekulieren, was in 10-15 Jahren sein wird.
Es interessiert nicht, was in 10-15 Jahren ist. Stimmt. Aber man muss als Planer doch wissen, ob der Student im Hotel Mama bleiben wird (aus welchen Gründen auch immer), oder ihm auch nahegelegt werden kann, sich was eigenes zu suchen. Sorry, aber der Knackpunkt ist doch hier ein Raum, der für eine Seniorenwohnung irgendwie zu viel ist und auch nicht zu Euch gehört.
 
S

Sunshine387

Ehrlicherweise sind das alles relative viele wenns. Ich würde an euerer Stelle entweder eine schöne Einliegerwohnung für die Senioren und mehr Platz für eure Wohnung einplanen als jetzt vorschnell jemanden zu berücksichtigen, der nach dem Studium vielleicht ganz woanders wohnen will. Und falls dem doch so ist bringe ich mal eine Idee ein die ganz einfach ist. Im 1. OG die Wohnung der Senioren und das 1 Zimmer Apartment des Studenten unterbringen, aber so dass man die Wohnung auch gut zu einer 4-Zimmer Wohnung aufteilt und unten dann für euch die großzügige Wohnung. Ist zwar nicht Barrierefrei, aber ich kenne viele die auch im hohen Alter noch ins 1. Og kommen (sei es auch mit Treppenlift). Wenn das möglich ist, dann würde ich das als geeignete Variante planen. Denn dann hat man im Prinzip ein klassisches 2 Familienwohnhaus mit den identischen Grundrissen auf beiden Etagen, bloß ob die Möglichkeit einen Bereich zu separieren. Und so ein Haus mit zwei 4 Zimmerwohnungen lässt sich auch wieder gut verkaufen und ist nicht so gut wie unverkäuflich, wie eure Idee. Das ist leider so.
 
K a t j a

K a t j a

Im Grunde will die TE 2 Häuser zum Preis von einem. Das ist imho der Knackpunkt, an dem das Projekt gerade scheitert.
Ehrlicherweise sind das alles relative viele wenns. Ich würde an euerer Stelle entweder eine schöne Einliegerwohnung für die Senioren und mehr Platz für eure Wohnung einplanen als jetzt vorschnell jemanden zu berücksichtigen, der nach dem Studium vielleicht ganz woanders wohnen will. Und falls dem doch so ist bringe ich mal eine Idee ein die ganz einfach ist. Im 1. OG die Wohnung der Senioren und das 1 Zimmer Apartment des Studenten unterbringen, aber so dass man die Wohnung auch gut zu einer 4-Zimmer Wohnung aufteilt und unten dann für euch die großzügige Wohnung. Ist zwar nicht Barrierefrei, aber ich kenne viele die auch im hohen Alter noch ins 1. Og kommen (sei es auch mit Treppenlift). Wenn das möglich ist, dann würde ich das als geeignete Variante planen. Denn dann hat man im Prinzip ein klassisches 2 Familienwohnhaus mit den identischen Grundrissen auf beiden Etagen, bloß ob die Möglichkeit einen Bereich zu separieren.
Na dann mach Mal nen genehmigungsfähigen Vorschlag mit 4 Schlafzimmern, Wohnen, Kochen, Essen, HAR, Treppenhaus, Bad und Gäste-WC + 2 Stellplätze und Terrasse auf diesem Grundstück in einer Etage. Ich bin gespannt.
Soll nicht heißen, dass es nicht geht. Ich find es nur schwierig.
 
S

Sunshine387

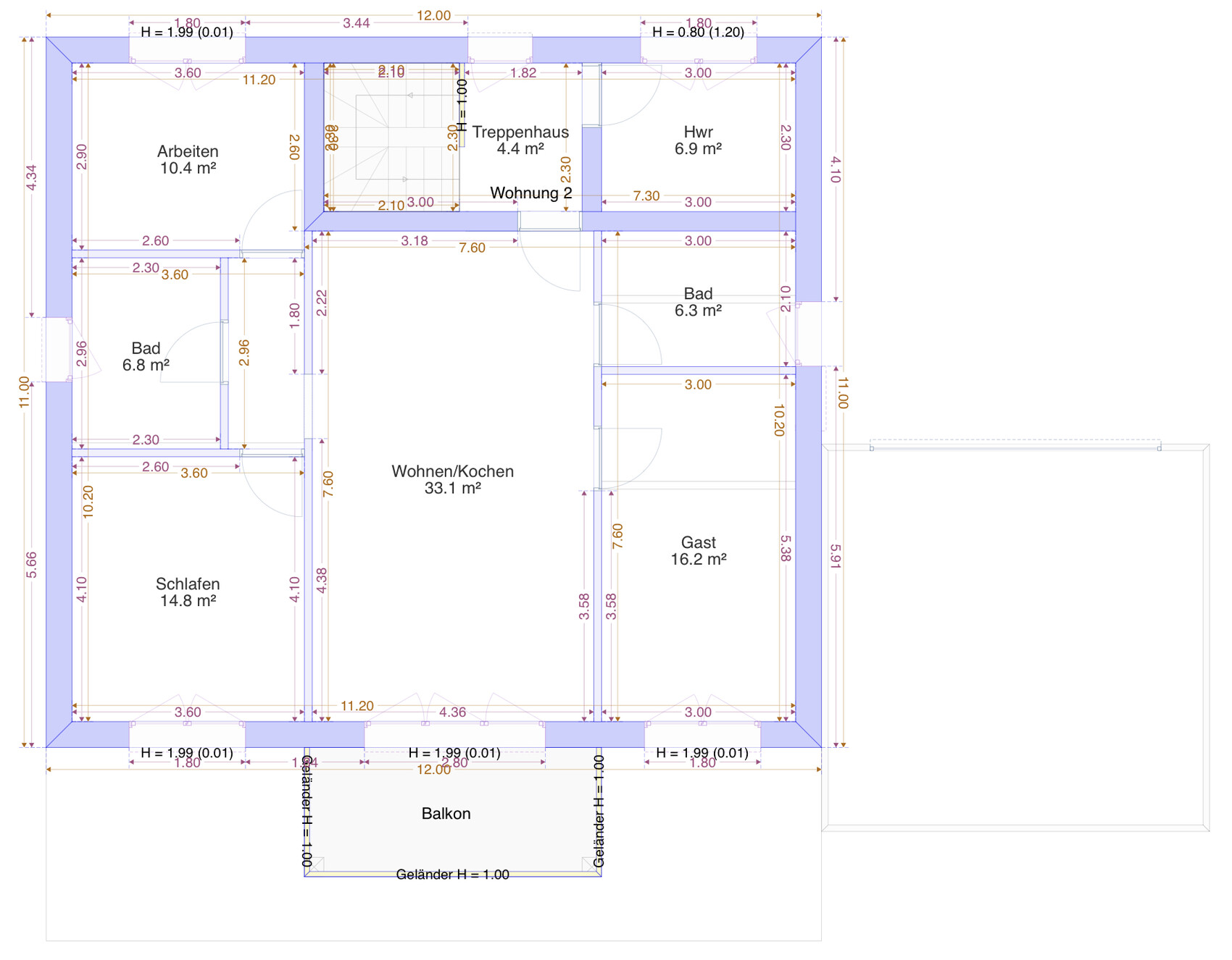
Es ist natürlich wirklich schwierig, das gebe ich zu. Hier mein Vorschlag. Ja es fehlt unten ein Zimmer, aber man könnte die Küche opfern dort noch ein Zimmer machen. Dann hat man zwar auch nur 33 m2 Wohnen/Kochen wie oben aber das reicht vielleicht auch gerade so. Oder zwei Kinder teilen sich ein Zimmer oder der älteste zieht oben ins Studentenapartment und der Student kriegt ein Tiny House im Garten. Ist doch auch cool? Ist natürlich nicht ernst gemeint. Vielleicht habt ihr jetzt noch mal so einen neuen guten Gedankenansatz.

Moderne Zweistöck-Fassade: Weißes Obergeschoss über dunkler Backsteinbasis, große Fensterfronten.


Modernes zweistöckiges Haus mit dunkler Ziegelbasis, weißem Obergeschoss und Garage links.


Moderne zweigeschossige Villa mit Holzdeck, Balkon und großen Glasfronten.


Grundriss eines Hauses mit Schlafzimmer, Wohnen/Kochen, Bad, Kinderzimmer, Küche, Terrasse, Garage


Grundriss eines Apartments: Wohnen/Kochen, Schlafen, Bad, Gast, Balkon, Treppenhaus.
 
Zuletzt aktualisiert 04.10.2025
Im Forum Grundrissplanung / Grundstücksplanung gibt es 2509 Themen mit insgesamt 87148 Beiträgen


Ähnliche Themen zu Grundriss Haus mit Einliegerwohnung - Verbesserungsvorschläge?
Nr.ErgebnisBeiträge
1Wohnung renoviert - unangenehmer Geruch?! 12
2Wohnung verkaufen Kredit auf Haus übernehmen machbar? 16
3Wohnung verkaufen und Haus bauen? Was meint ihr? 14
4Kauf Wohnung, anschließend Kauf/Tausch Haus - Tipps - Seite 323
5Wäschetrocknen in neuer Wohnung verboten?! 10
6Nur Probleme mit neuen Mieter der alten Wohnung wg. weißeln! 21
7Zu hohe Luftfeuchtigkeit in der Wohnung. 60-70% im Winter 33
8Umbau bestehende EG Wohnung - zus. Büro - Seite 549
9Wohnung zu GbR Übertragen ohne Weiteres möglich? 33
10Finanzierung durch Beleihung einer Wohnung der Oma 12
11Finanzierungsplanung mit vermieteter Wohnung - Seite 217
12Wohnung über Kredit kaufen und vermieten - Seite 737
13Wie Objekt (Haus/Wohnung/Grundstück) deutschlandweit finden? - Seite 432
14Wohnung geerbt, wann verkaufen? - Seite 235
15Grundrissänderung - Tragende Wände in Wohnung. Was tun? 14
16Frage zu Renovierung (Unterputz) einer Wohnung im Wohnblock. - Seite 327
17Vermietete Wohnung als Eigenkapitalersatz - Seite 211
18Umbau einer Wohnung im Elternhaus - Kredit, ohne Eigentümer zu sein? 11
19Wohnung für die Eltern kaufen? - Seite 225
20Baukosten und Finanzierung für Wohnung oder Haus - Seite 4132

Oben