
K a t j a
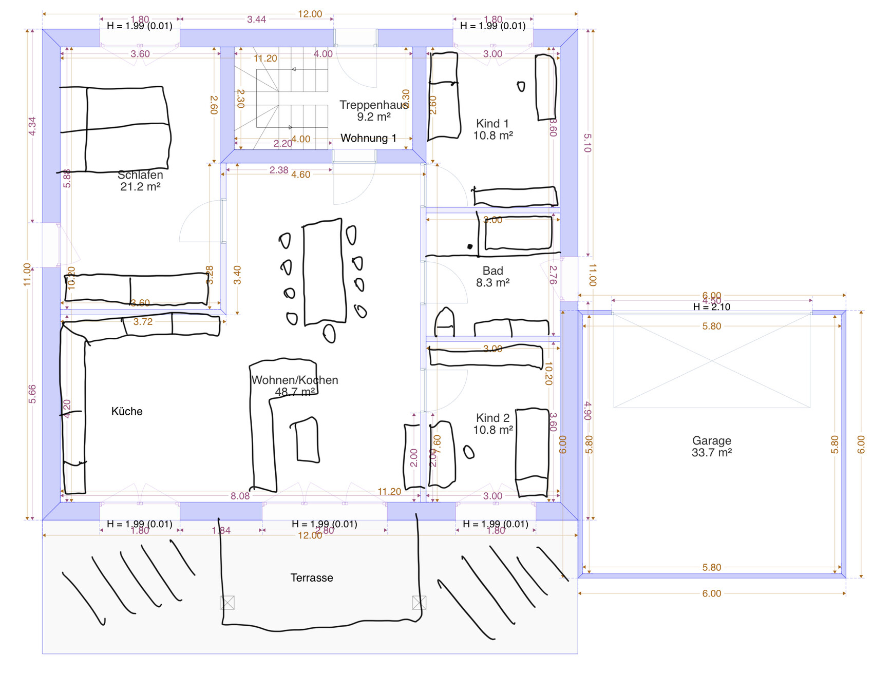
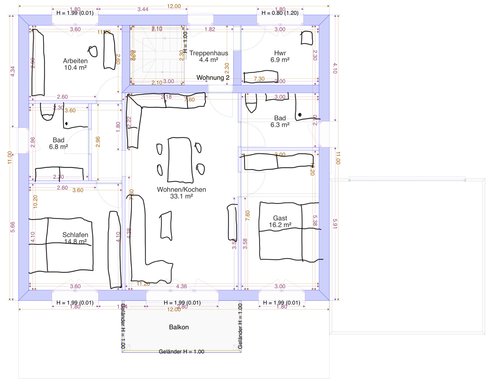
Ich fürchte, dieser Vorschlag verwirrt mehr, als das er hilft. Weder erfüllt er die Anforderungen, noch lässt er sich möblieren und mit der Genehmigung der Terrassen sieht es imho auch düster aus.
Aber grundsätzlich wäre es zu überlegen, ob ein 2- Familienhaus in irgend einer Form eine Option ist, auch in Hinsicht auf eine spätere Verwendung.
Aber grundsätzlich wäre es zu überlegen, ob ein 2- Familienhaus in irgend einer Form eine Option ist, auch in Hinsicht auf eine spätere Verwendung.