Grundriss-Entwurf: Einfamilienhaus mit Keller; 560qm Grundstück

4,80 Stern(e) 12 Votes
Zuletzt aktualisiert 21.12.2025
Sie befinden sich auf der Seite 10 der Diskussion zum Thema: Grundriss-Entwurf: Einfamilienhaus mit Keller; 560qm Grundstück
>> Zum 1. Beitrag <<

K a t j a

K a t j a

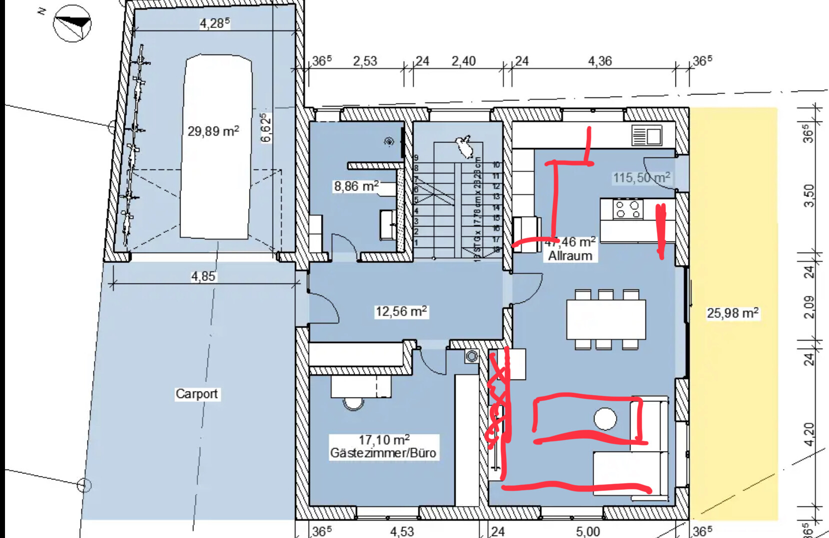
Ich finde den Entwurf nicht schlecht aber er passt doch gar nicht zu Euren Wünschen oder? Ihr plant eventuell das 3. Kind und wollt viel Platz im Essbereich für einen großen Tisch. Beides sehe ich hier nicht. Wie wichtig sind diese Aspekte wirklich? Zwei Kinder in einem Zimmer halte ich persönlich zwar für unproblematisch - aber Ihr auch?

Ab davon sind 18 Stufen bei der Treppe ziemlich viel. Welche Geschosshöhe war noch gleich geplant?
 
11ant

11ant

Zwei Kinder in einem Zimmer halte ich persönlich zwar für unproblematisch - aber Ihr auch?
Aktuell lese ich von "2 Kinder (Kleinkind), evtl. 3 Kind" also ersteinmal zweien, die beide noch klein sind. Die Bestandskinder werden also vermutlich noch ein gemeinsames Schlafzimmer mögen, und wann das Eventualkind kommt ist noch unbekannt. Ich halte im übrigen wenig von "Kinderzimmern" (und insbesondere Überlegungen á la gleichgeliebte Kinder = gleichgroße Zimmer für Quatsch). Meinen Ratnehmern gebe ich stets die Anregung, die Verwendungen "Kind", "Gast" und "Büro" (sowie evtl. "Kinderschlaf" und "Kinderspiel" separat) einer Gruppe von Räumen zuzuordnen, die ein fluides Familienwohnen mitmachen. Die "paar Mark" für LAN-Dosen auch im Zimmer mit der Erstverwendung "Gast" machen den Kohl nicht fett.
Ich finde den Entwurf nicht schlecht aber er passt doch gar nicht zu Euren Wünschen oder?
Einen Abgleich von Werk des Planers und ihm gegebenen Pflichtenheft habe ich noch nicht vorgenommen, sind Dir da bereits Ignoranzen aufgefallen ?
 
J

JKHandler

Mir würde im EG ein AB fehlen.
AB = Abstellraum?

Treppe zum Osten, nicht zur Straße.
Das war auch unser erster Gedanke, bzw. sahen wir vorteilhafter für die Räume und Lichteinfall (bis auf das Bad im EG). Nachteil den wir hier sehen: Wohnzimmer zur Straßenseite, dort hätten wir idealerweise lieber die Küche untergebracht. Wir haben einiges probiert, aber Treppe im Osten + Küche an der Straßenseite haben wir nicht wirklich abgebildet bekommen. Hast Du eventuell noch eine Idee?

Und eine (etwas) moderne(re) Fensteranordnung würde ich empfehlen.
Was genau meinst Du mit "moderne(re) Fensteranordnung"?

Oder Ihr kringelt in beiden Plänen diese Punkte ein, natürlich mit in seinem und Eurem Plan identischen Kringelnummern, und schreibt dazu Erläuterungen (als "Dreizeiler"). Die besprecht Ihr dann unbedingt von Angesicht zu Angesicht - nicht wie @klabauter8614 im Ping-Pong !
Danke für die Hinweise!

Ich finde den Entwurf nicht schlecht aber er passt doch gar nicht zu Euren Wünschen oder? Ihr plant eventuell das 3. Kind und wollt viel Platz im Essbereich für einen großen Tisch. Beides sehe ich hier nicht. Wie wichtig sind diese Aspekte wirklich? Zwei Kinder in einem Zimmer halte ich persönlich zwar für unproblematisch - aber Ihr auch?
Prinzipiell deckt er den Raumbedarf erst einmal ab. Was uns ein wenig fehlt ist eine Art Abstell/Speisekammer im EG. Esstisch sind wir uns etwas unsicher. Der Tisch ist 1,05 x 2,10m und hat zum Sofa als auch der Kücheninsel 1,5m Abstand. Zur Wand im Flur knapp 1,5m und zur Schiebetür ca. 80cm. Ist das zu wenig? Für ein Allraum in I-Anordnung kommt man vermutlich mit dem aktuellen Baukörper an seine Grenzen? Eventuell kann man ein wenig mehr rausholen mit einem L?

Ab davon sind 18 Stufen bei der Treppe ziemlich viel. Welche Geschosshöhe war noch gleich geplant?
Geschosshöhe wird aktuell mit 3,2m geplant (Oberkante Rohfußboden zu Oberkante Rohdecke). Man könnte noch auf 17 Stufen gehen, hätte dann aber bereits eine grenzwertige Steigung (18,8cm). Treppen haben wir uns vorletztes Wochenende einmal genauer in einem Musterhaus angeschaut, wo alle möglichen Formen, Steigungen, .... von Treppen aufgebaut waren. Dort hat uns die knappe 18cm (17,8cm) Steigung mit ca. 26cm Auftritt (natürlich abhängig davon, ob offen oder geschlossen) sehr gut gefallen.
 
11ant

11ant

Danke für die Hinweise!
Ich hätte auch schon allerlei einzukringeln, wenn der Grundrissesatz auf meinen Seziertisch kommt. Pennt da eigentlich ein riesiger Hase auf dem Treppenpodest ?
Für ein Allraum in I-Anordnung kommt man vermutlich mit dem aktuellen Baukörper an seine Grenzen? Eventuell kann man ein wenig mehr rausholen mit einem L?
Würdet Ihr den Allraum im Beitrag #45 ein I oder L nennen ?
 
J

JKHandler

Wir haben eben mal geschaut, wie man einen Abstellraum in das EG integrieren kann, aber egal wie man die Wände verschiebt - auf den ersten Blick sehen wir hier keine sinnvolle Lösung. Muss man den Grundriss dann noch mal komplett überdenken? Was ist Deine Erfahrung?

Warum tauschst Du nicht die Küche mit dem WZ?
Danke für Dein Vorschlag! Rein von der Möblierung würde das funktionieren, nur wäre dann der Schornstein leider nicht mehr in Wohnzimmernähe. Ich sehe spontan auch keine Möglichkeit, ihn im oberen Bereich First nah zu positionieren.

Ich hätte auch schon allerlei einzukringeln, wenn der Grundrissesatz auf meinen Seziertisch kommt. Pennt da eigentlich ein riesiger Hase auf dem Treppenpodest ?
Erste Vermutung ist, wenn man nun versucht einen Abstellraum im EG einzubringen, das der ganze Grundriss nicht mehr fliegt (oder hoffentlich hat hier wer noch eine zündende Idee). Würde dann eine Betrachtung aus diesem Aspekt Sinn ergeben?

Würdet Ihr den Allraum im Beitrag #45 ein I oder L nennen ?
Von der Anordnung I.
 
Zuletzt aktualisiert 21.12.2025
Im Forum Grundrissplanung / Grundstücksplanung gibt es 2552 Themen mit insgesamt 88540 Beiträgen


Ähnliche Themen zu Grundriss-Entwurf: Einfamilienhaus mit Keller; 560qm Grundstück
Nr.ErgebnisBeiträge
1Grundriss Stadtvilla 180m², Keller, 3 Kinder - Eure Meinungen dazu? - Seite 251
2Grundriss Zugang von Küche in Speis / Abstellraum - Seite 329
3Küche und Abstellraum Etagenwohnung Grundriss optimieren 34
4Grundriss Halboffene Küche mit großem Essbereich - Detailfragen - Seite 212
5Einteilung Grundriss Allraum Küche Wohnen Essen - Seite 358
6LED-Einbaulampen in Allraum Küche, Wohn- und Essbereich 17
7Grundriss-Planung, 2 Vollgeschosse, ca. 130-140 qm ohne Keller - Seite 19192
8Grundriss Meinungen Einfamilienhaus 140qm 2 Vollgeschosse - Seite 692
9Grundriss für Einfamilienhaus statisch realistisch? - Seite 425
10Feedback zu unserem Grundriss und Hausentwurf - Seite 218
11Grundriss Bungalow - Was gibt es zu beachten? - Seite 5164
12Grundriss Einfamilienhaus (ca. 170 qm) mit Garage - Hanglage 35
13Grundriss Neubau Einfamilienhaus: Fenster/Türen/Innenwände Größe/Anordnung ok? - Seite 320
14Bungalow Grundriss Max. 140 m² - Masse laut der Norm ok? 64
15Grundriss Einfamilienhaus OWL ca. 150qm mit Ostgarten - Seite 2175
16Grundriss Bungalow 160-170qm mit Keller - Seite 16175
17Grundriss-Planung Einfamilienhaus 230-235 m² auf zwei Vollgeschossen - Seite 283
18Grundriss Haus mit Einliegerwohnung - Verbesserungsvorschläge? - Seite 21221
19Eure Meinung zum Grundriss für das EG - Seite 528
20Unser Grundriss von 120qm auf 469qm Grundstück - Seite 1273

Oben